Информационная система
«Ёшкин Кот»

Скачать базу одним архивом
Скачать обновления
История создания базы
Карта сайта

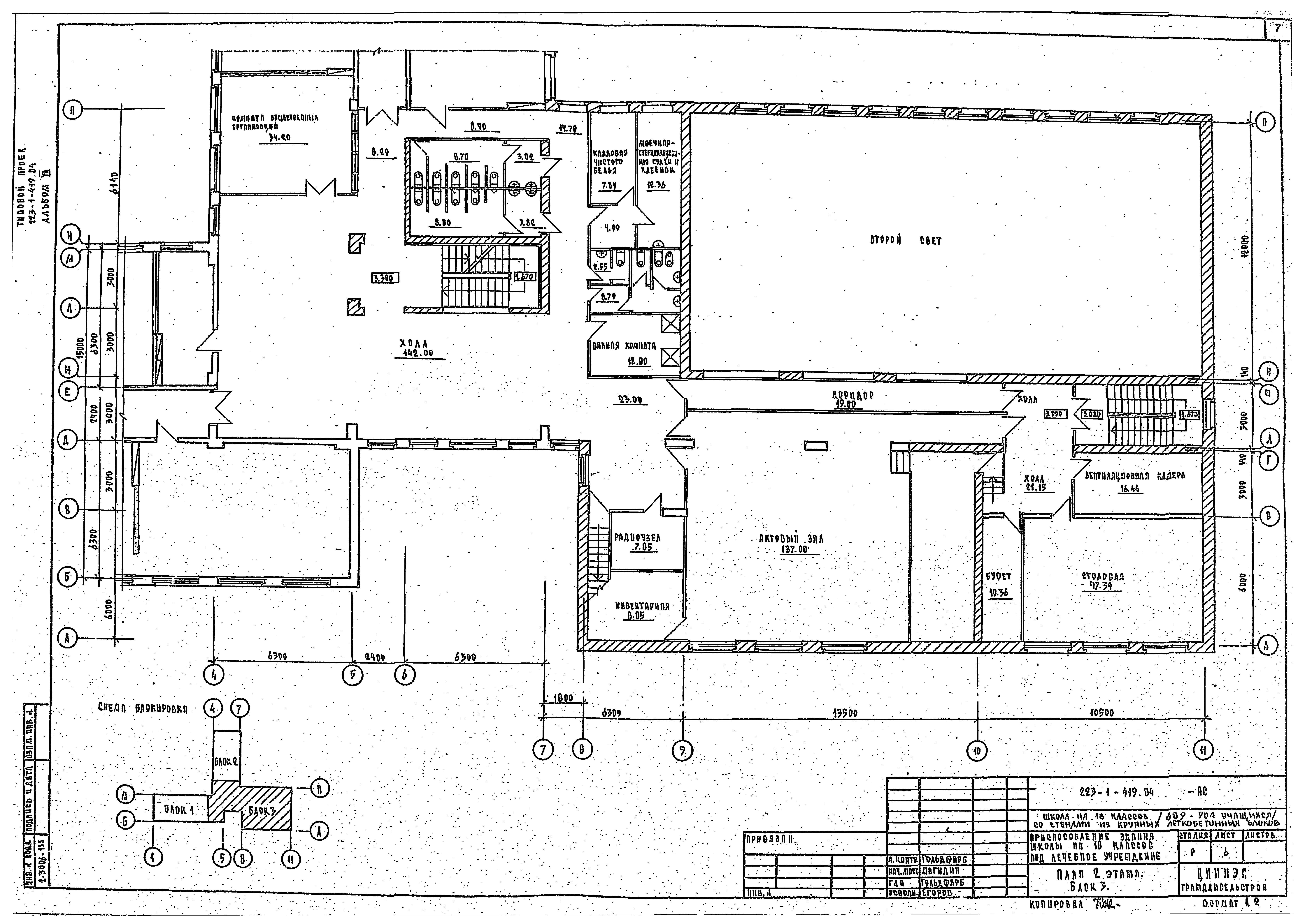
Скачать Типовой проект 223-1-419.84 Альбом VII. Приспособление здания школы под лечебное учреждение

Дата актуализации: 10.08.2017

Типовой проект 223-1-419.84

Альбом VII. Приспособление здания школы под лечебное учреждение

Обозначение: Типовой проект 223-1-419.84
Обозначение англ: 223-1-419.84
Статус:не определен законодательством
Название рус.:Альбом VII. Приспособление здания школы под лечебное учреждение
Дата добавления в базу:01.10.2014
Дата актуализации:05.05.2017
Дата введения:24.01.1985
Оглавление:Архитектурно-строительные чертежи
   Общие данные
   План 1 этажа. Блок I
   План 1 и 2 этажей. Блок II
   План 1 этажа. Блок III
   План 2 этажа. Блок I
   План 2 этажа. Блок III
   План 3 этажа. Блок II
Отопление и вентиляция
   Общие данные
   План 1 этажа (блок 1)
   План 2 этажа (блок 1)
   План 1 и 2 этажей (блок 2)
   План 3 этажа (блок 2)
   План 1 этажа (блок 3)
   План 2 этажа (блок 3)
Водопровод и канализация
   Общие данные
   План 1 и 2 этажей. Блок I
   План 1 и 2 этажей. Блок II
   План 3 этажа. Блок II
   План 1 и 2 этажей. Блок III
Электрооборудование
   Общие указания
   План осветительных и силовых сетей 1 этажа (блок 1)
   План осветительных сетей 2 этажа (блок 1)
   План осветительных и силовых сетей 1 и 2 этажей (блок 2)
   План осветительных и силовых сетей 3 этажа (блок 2)
   План осветительных сетей 2 этажа (блок 3)
Связь и сигнализация
   Общие данные
   Схема расположения устройств связи (палатная сигнализация)
   План 1 этажа. Блок III
   План 1 и 2 этажей. Блок II
   План 1 этажа. Блок I
   План 2 этажа. Блок III
   План 2 этажа. Блок I
   План 3 этажа. Блок II
Разработан: ЦНИИЭП граждансельстрой
Утверждён:19.08.1983 Госгражданстрой (Gosgrazhdanstroy 244)
Расположен в:Техническая документация Строительство Справочные документы Типовые строительные конструкции, изделия и узлы Общероссийский строительный каталог Защитные сооружения гражданской обороны Типовые проекты защитных сооружений гражданской обороны для жилищно-гражданского строительства Для строительства в сельской местности Встроенные помещения, приспосабливаемые под противорадиационные укрытия в общественных зданиях Противорадиационные укрытия в школах и внешкольных учреждениях Общественные здания для строительства в сельской местности Школы и внешкольные учреждения Общеобразовательные школы
Типовой проект 223-1-419.84Типовой проект 223-1-419.84Типовой проект 223-1-419.84Типовой проект 223-1-419.84Типовой проект 223-1-419.84Типовой проект 223-1-419.84Типовой проект 223-1-419.84Типовой проект 223-1-419.84Типовой проект 223-1-419.84Типовой проект 223-1-419.84Типовой проект 223-1-419.84Типовой проект 223-1-419.84Типовой проект 223-1-419.84Типовой проект 223-1-419.84Типовой проект 223-1-419.84Типовой проект 223-1-419.84Типовой проект 223-1-419.84Типовой проект 223-1-419.84Типовой проект 223-1-419.84Типовой проект 223-1-419.84Типовой проект 223-1-419.84Типовой проект 223-1-419.84Типовой проект 223-1-419.84Типовой проект 223-1-419.84Типовой проект 223-1-419.84Типовой проект 223-1-419.84Типовой проект 223-1-419.84Типовой проект 223-1-419.84Типовой проект 223-1-419.84Типовой проект 223-1-419.84Типовой проект 223-1-419.84Типовой проект 223-1-419.84Типовой проект 223-1-419.84Типовой проект 223-1-419.84Типовой проект 223-1-419.84

© 2013 Ёшкин Кот :-) Карта сайта