Информационная система
«Ёшкин Кот»

Скачать базу одним архивом
Скачать обновления
История создания базы
Карта сайта

Скачать Типовой проект 223-1-419.84 Альбом I. Архитектурно-строительные и технологические чертежи

Дата актуализации: 10.08.2017

Типовой проект 223-1-419.84

Альбом I. Архитектурно-строительные и технологические чертежи

Обозначение: Типовой проект 223-1-419.84
Обозначение англ: 223-1-419.84
Статус:не определен законодательством
Название рус.:Альбом I. Архитектурно-строительные и технологические чертежи
Дата добавления в базу:01.10.2014
Дата актуализации:05.05.2017
Дата введения:24.01.1985
Оглавление:Архитектурно-строительные чертежи
   Общие данные
   Схема генерального плана
   Схема расположения фундаментов
   Сечения фундаментов
   Схема расположения подпольных каналов
   План подвала. Воздухозаборная шахта. Схема расположения плит перекрытия. Разрезы
   Фасады
   План 1 этажа (блок 1)
   План 2 этажа (блок 1)
   План 1 и 2 этажей (блок 2)
   План 3 этажа (блок 2). План кинопроекционной
   План 1 этажа (блок 3)
   План 2 этажа (блок 3)
   Спецификация перегородок и столярных изделий
   Разрезы 1-1, 2-2, 3-3
   Ведомость отделки помещений
   Экспликация полов
   Экспликация полов для школы приспосабливаемой под лечебное учреждение (вариант)
   Спецификация к схемам расположения блоков наружных и внутренних стен толщиной 400 и 500 мм
   Схема расположения блоков наружных стен по оси 6, 5
   Схема расположения блоков наружных стен по оси М
   Схема расположения блоков наружных стен по осям Д, 1, Т
   Схема расположения блоков наружных стен по оси 4
   Схема расположения блоков наружных стен по оси 7
   Спецификация к схемам расположения блоков внутренних стен и вентиляционных блоков
   Схема расположения блоков внутренних стен по осям Д, 4, 7
   Схема расположения блоков внутренних стен по осям З, Е, 8, 7
   Схема расположения блоков внутренних стен по оси 5
   Схема расположения блоков внутренних стен по оси 6
   Схемы расположения вентиляционных блоков
   Узлы крепления наружных и внутренних стен
   Спецификация анкеров крепления наружных и внутренних стен
   Кладочный план 1 этажа
   Кладочный план 2 этажа
   Кладочный план 3 этажа
   Ведомость перемычек
   Схема расположения элементов перекрытия 1 этажа
   Схема расположения элементов перекрытия 2 этажа
   Схема расположения элементов перекрытия 3 этажа
   Монолитные участки УМ1 - УМ5-10
   Монолитные участки УМ5-11 - УМ9
   Лестницы №1, №5. Металлические наружные лестницы МЛ-1, МЛ-2
   Лестницы №2, №4
   Лестница №3. Будка выхода на крышу
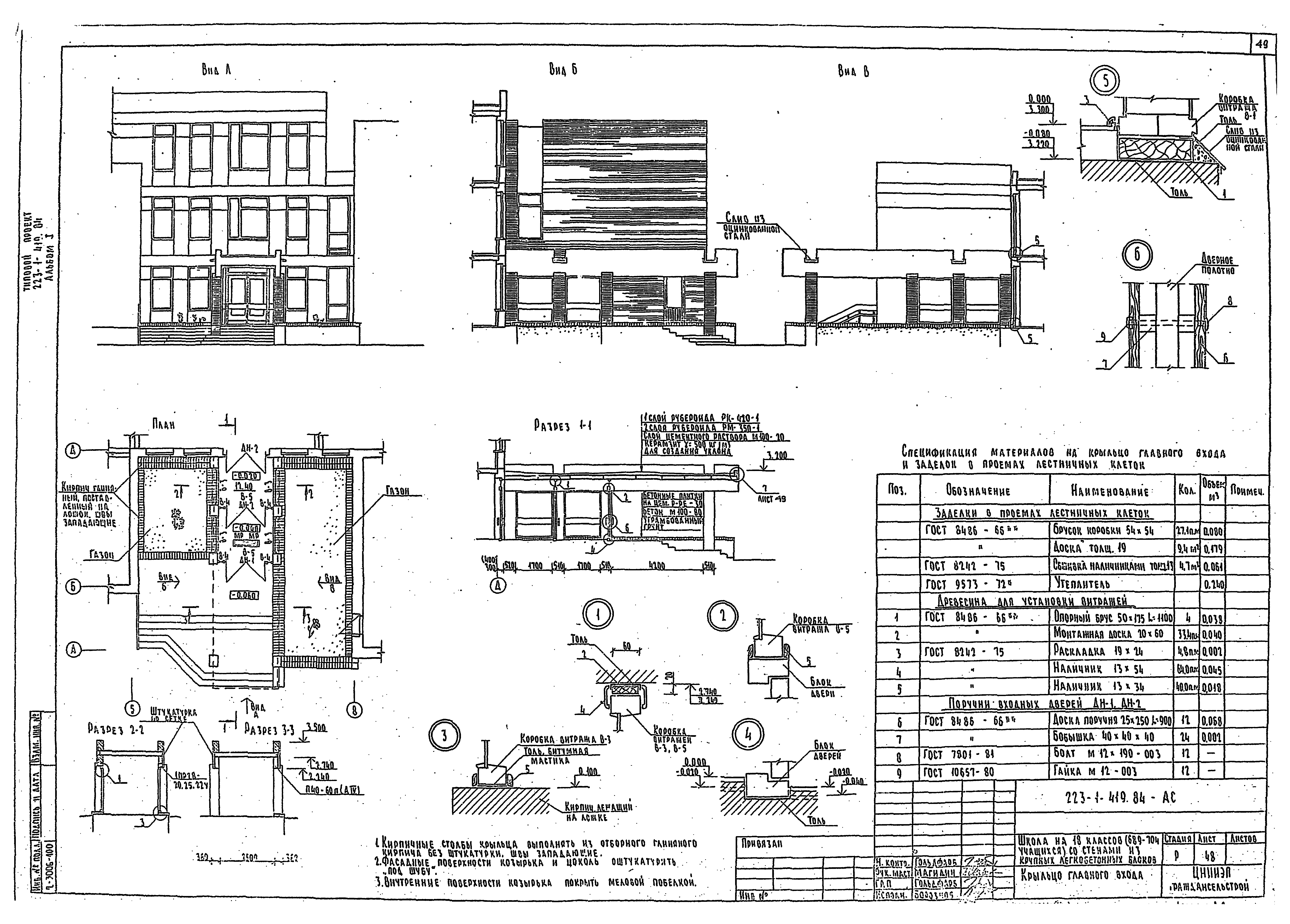
   Крыльцо главного входа
   Крыльца №2 - №3
   Развертки вентиляционных каналов. Зонты
   Развертки вентиляционных каналов
   План кровли. Вентшахты
   Вентшахты на кровле
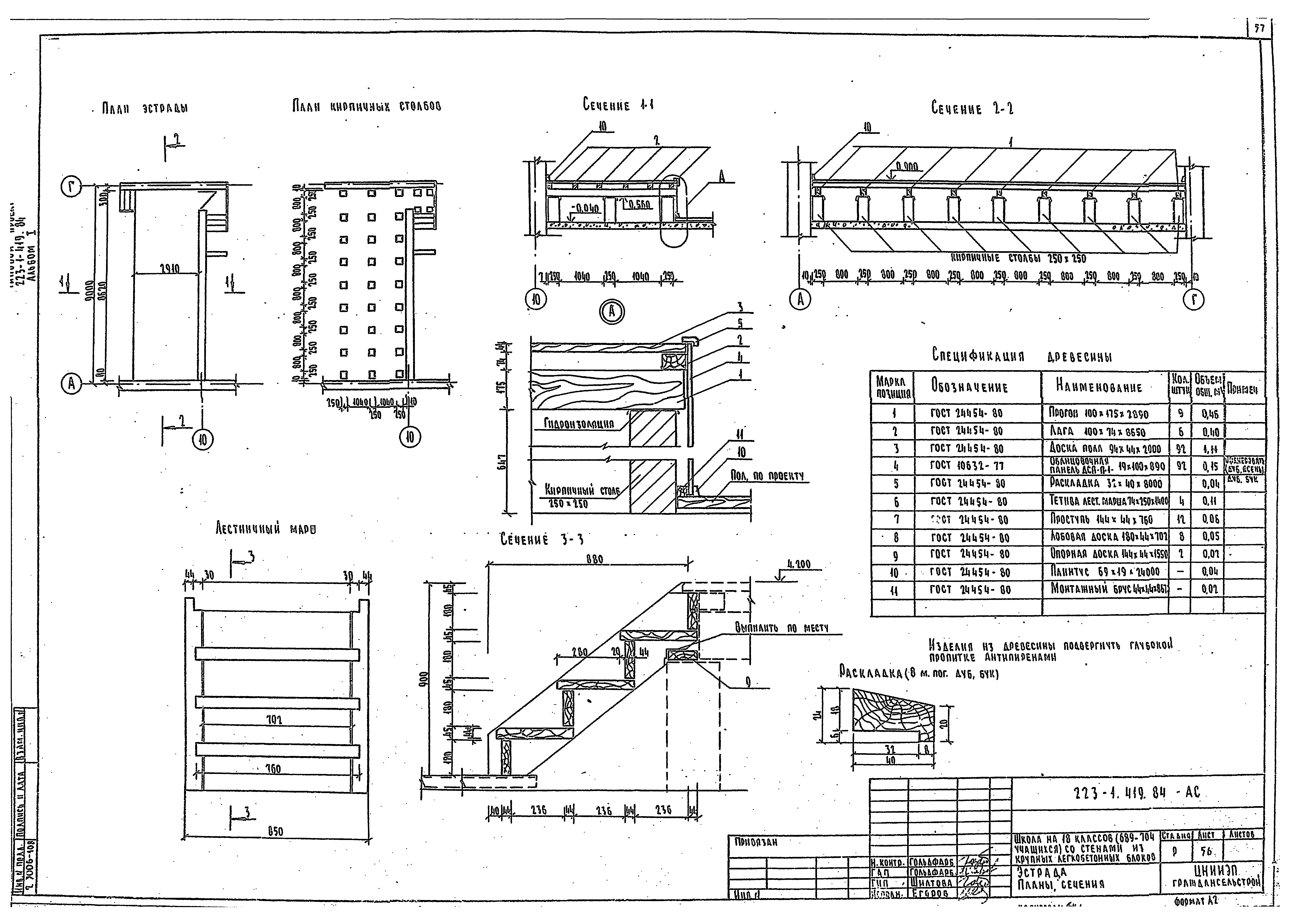
   Эстрада. Планы, сечения
   Учебно-спортивный зал. Развертки стен. Узлы
   Актовый зал. Развертки стен. Узлы
   Обеденный зал. Развертки стен. Узлы
   Экран санузлов. Узлы. Детали. Спецификация материалов на индивидуальные изделия К-1, К-2, К-3
   Детали крепления спортивного оборудования
   Витражи В-1, В-5
   Витражи В-2, В-3, В-4
   Узлы витражей
   Коробки витражей КВ-1, КВ-2, КВ-3, КВ-4. Переплет ПВ-1
Чертежи технологического оборудования
   Общие данные
   План 1 этажа с расстановкой учебного оборудования и мебели. Блок 1
   План 2 этажа с расстановкой учебного оборудования и мебели. Блок 1
   План 1 и 2 этажей. Примеры расстановки учебного оборудования и мебели. Блок 2
   План 3 этажа с расстановкой учебного оборудования. Блок 2
   План 1 этажа с расстановкой оборудования и мебели. Блок 2
   План 2 этажа с расстановкой учебного оборудования и мебели. Блок 3
   План 1 этажа с привязкой подводов воды, электроэнергии к технологическому оборудованию столовой
Чертежи кинотехнологии
   Общие данные
   План актового зала
   Разрезы "А-А" и "Б-Б" актового зала
   План кинопроекционной
   Разрезы "В-В" и "Г-Г" кинопроекционной
   Схема внешних соединений электросилового и кинопроекционного оборудования
   Схема внешних соединений звуковоспроизводящего устройства "Звук Т2-25"
   Монтажная схема кинопроекционной
   Кабельный журнал
Чертежи постановочного освещения
   Общие данные
   Постановочное освещение. Расчетная схема
   Планы на отм. 3.300; 6.550. Электросети постановочного освещения
   Разрез I-I. Электросети постановочного освещения
Разработан: ЦНИИЭП граждансельстрой
Утверждён:19.08.1983 Госгражданстрой (Gosgrazhdanstroy 244)
Расположен в:Техническая документация Строительство Справочные документы Типовые строительные конструкции, изделия и узлы Общероссийский строительный каталог Защитные сооружения гражданской обороны Типовые проекты защитных сооружений гражданской обороны для жилищно-гражданского строительства Для строительства в сельской местности Встроенные помещения, приспосабливаемые под противорадиационные укрытия в общественных зданиях Противорадиационные укрытия в школах и внешкольных учреждениях Общественные здания для строительства в сельской местности Школы и внешкольные учреждения Общеобразовательные школы
Типовой проект 223-1-419.84Типовой проект 223-1-419.84Типовой проект 223-1-419.84Типовой проект 223-1-419.84Типовой проект 223-1-419.84Типовой проект 223-1-419.84Типовой проект 223-1-419.84Типовой проект 223-1-419.84Типовой проект 223-1-419.84Типовой проект 223-1-419.84Типовой проект 223-1-419.84Типовой проект 223-1-419.84Типовой проект 223-1-419.84Типовой проект 223-1-419.84Типовой проект 223-1-419.84Типовой проект 223-1-419.84Типовой проект 223-1-419.84Типовой проект 223-1-419.84Типовой проект 223-1-419.84Типовой проект 223-1-419.84Типовой проект 223-1-419.84Типовой проект 223-1-419.84Типовой проект 223-1-419.84Типовой проект 223-1-419.84Типовой проект 223-1-419.84Типовой проект 223-1-419.84Типовой проект 223-1-419.84Типовой проект 223-1-419.84Типовой проект 223-1-419.84Типовой проект 223-1-419.84Типовой проект 223-1-419.84Типовой проект 223-1-419.84Типовой проект 223-1-419.84Типовой проект 223-1-419.84Типовой проект 223-1-419.84Типовой проект 223-1-419.84Типовой проект 223-1-419.84Типовой проект 223-1-419.84Типовой проект 223-1-419.84Типовой проект 223-1-419.84Типовой проект 223-1-419.84Типовой проект 223-1-419.84Типовой проект 223-1-419.84Типовой проект 223-1-419.84Типовой проект 223-1-419.84Типовой проект 223-1-419.84Типовой проект 223-1-419.84Типовой проект 223-1-419.84Типовой проект 223-1-419.84Типовой проект 223-1-419.84Типовой проект 223-1-419.84Типовой проект 223-1-419.84Типовой проект 223-1-419.84Типовой проект 223-1-419.84Типовой проект 223-1-419.84Типовой проект 223-1-419.84Типовой проект 223-1-419.84Типовой проект 223-1-419.84Типовой проект 223-1-419.84Типовой проект 223-1-419.84Типовой проект 223-1-419.84Типовой проект 223-1-419.84Типовой проект 223-1-419.84Типовой проект 223-1-419.84Типовой проект 223-1-419.84Типовой проект 223-1-419.84Типовой проект 223-1-419.84Типовой проект 223-1-419.84Типовой проект 223-1-419.84Типовой проект 223-1-419.84Типовой проект 223-1-419.84Типовой проект 223-1-419.84Типовой проект 223-1-419.84Типовой проект 223-1-419.84Типовой проект 223-1-419.84Типовой проект 223-1-419.84Типовой проект 223-1-419.84Типовой проект 223-1-419.84Типовой проект 223-1-419.84Типовой проект 223-1-419.84Типовой проект 223-1-419.84Типовой проект 223-1-419.84Типовой проект 223-1-419.84Типовой проект 223-1-419.84Типовой проект 223-1-419.84Типовой проект 223-1-419.84Типовой проект 223-1-419.84Типовой проект 223-1-419.84Типовой проект 223-1-419.84

© 2013 Ёшкин Кот :-) Карта сайта