Информационная система
«Ёшкин Кот»

Скачать базу одним архивом
Скачать обновления
История создания базы
Карта сайта

Скачать Типовой проект 902-2-470.89 Альбом 3. Отстойники. Конструкции железобетонные

Дата актуализации: 10.08.2017

Типовой проект 902-2-470.89

Альбом 3. Отстойники. Конструкции железобетонные

Обозначение: Типовой проект 902-2-470.89
Обозначение англ: 902-2-470.89
Статус:не определен законодательством
Название рус.:Альбом 3. Отстойники. Конструкции железобетонные
Дата добавления в базу:01.10.2014
Дата актуализации:05.05.2017
Дата введения:27.04.1989
Оглавление:Общие данные
Отстойник. Общие виды
Отстойник. Днище. Опалубочный чертеж. План. Сечения 1-1 - 3-3. Узел 1
Отстойник. Днище. Опалубочный чертеж. Сечения 4-4 - 9-9
Отстойник. Днище. Армирование. План нижней и верхней арматуры. Сечение 1-1
Отстойник. Днище. Армирование. Сечения 2-2 - 6-6
Отстойник. Днище. Армирование. Сечения 7-7 - 10-10
Отстойник. Стены. Схема расположения элементов. Узлы 1, 2
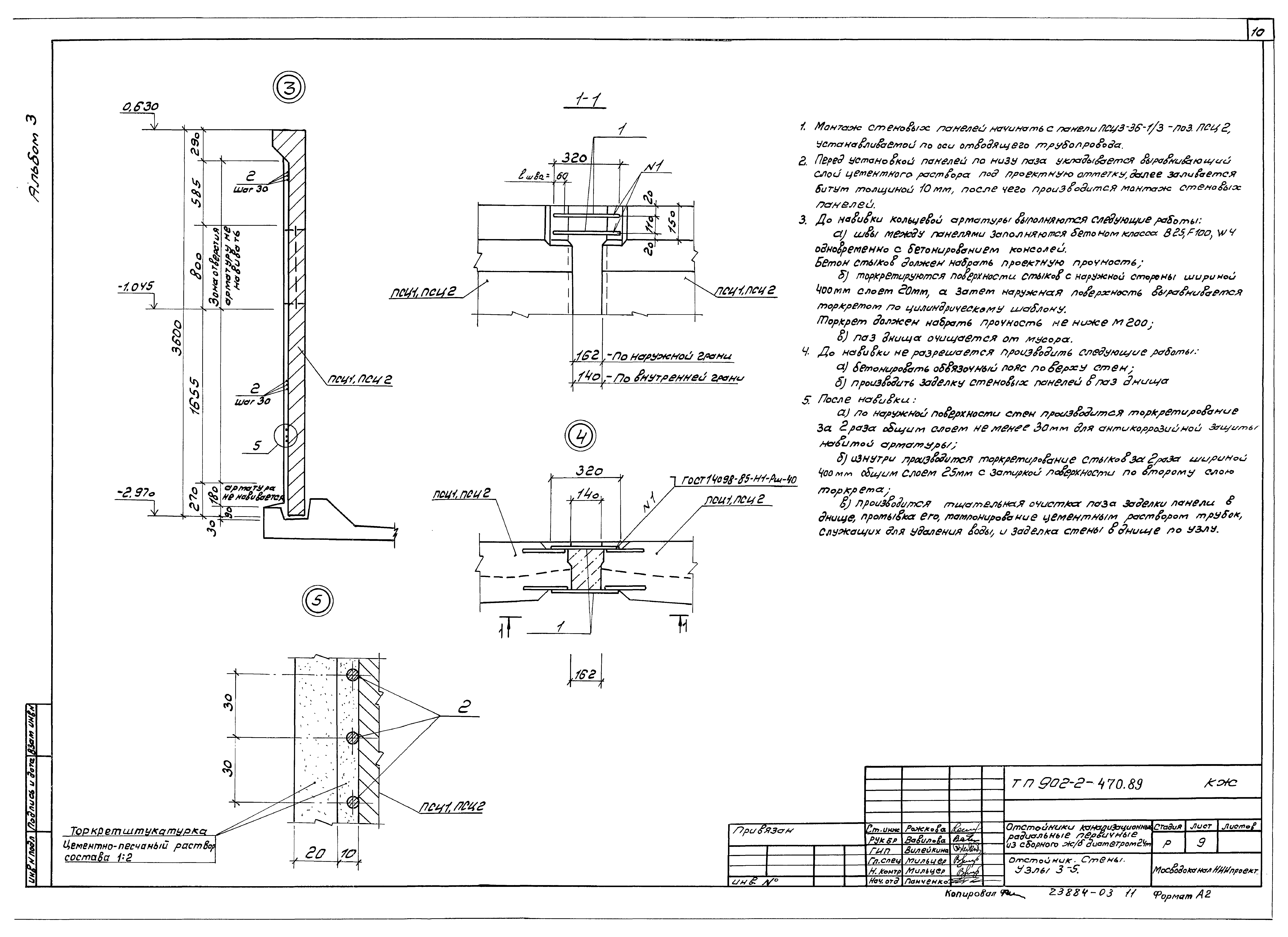
Отстойник. Стены. Узлы 3 - 5
Отстойник. Стены. Консоль Км1. Борт отстойника Бм1
Отстойник. Лотки. Схема расположения
Отстойник. Лотки. Узлы 1 - 3
Отстойник. Лоток монолитный. ЛОм1
Распределительная чаша. Планы. Сечения
Распределительная чаша. Армирование. Сечения 1-1 - 4-4
Распределительная чаша. Армирование. Сечения 5-5 - 8-8
Камера ОП1. Опалубочный чертеж. Армирование. Сечения 3-3 - 4-4
Камера ОП1. Армирование. Сечения 5-5 - 7-7
Жиросборник Ж1
Разработан: МосводоканалНИИпроект
Утверждён:24.04.1989 Мосгорисполком (Mosgorispolkom 841р)
Расположен в:Техническая документация Строительство Справочные документы Типовые строительные конструкции, изделия и узлы Общероссийский строительный каталог Промышленные предприятия, здания и сооружения Здания и сооружения санитарно-технические Канализация Сооружения механической очистки Отстойники Отстойники радиальные первичные
Типовой проект 902-2-470.89Типовой проект 902-2-470.89Типовой проект 902-2-470.89Типовой проект 902-2-470.89Типовой проект 902-2-470.89Типовой проект 902-2-470.89Типовой проект 902-2-470.89Типовой проект 902-2-470.89Типовой проект 902-2-470.89Типовой проект 902-2-470.89Типовой проект 902-2-470.89Типовой проект 902-2-470.89Типовой проект 902-2-470.89Типовой проект 902-2-470.89Типовой проект 902-2-470.89Типовой проект 902-2-470.89Типовой проект 902-2-470.89Типовой проект 902-2-470.89Типовой проект 902-2-470.89Типовой проект 902-2-470.89Типовой проект 902-2-470.89

© 2013 Ёшкин Кот :-) Карта сайта