Информационная система
«Ёшкин Кот»

Скачать базу одним архивом
Скачать обновления
История создания базы
Карта сайта

Скачать Типовой проект 85-012/1.2 ОМП.2-1. Общие материалы для 9-этажных блок-секций серии 85

Дата актуализации: 10.08.2017

Типовой проект 85-012/1.2

ОМП.2-1. Общие материалы для 9-этажных блок-секций серии 85

Обозначение: Типовой проект 85-012/1.2
Обозначение англ: 85-012/1.2
Статус:не определен законодательством
Название рус.:ОМП.2-1. Общие материалы для 9-этажных блок-секций серии 85
Дата добавления в базу:01.10.2014
Дата актуализации:05.05.2017
Дата введения:29.12.1980
Оглавление:Общие данные
Ведомость чертежей
Номенклатура блок-секций
Полный комплект. Основные комплекты. Прилагаемые документы
Полный комплект. Ссылочные документы
Схемы блокировок
Таблица площадей и объемов
Варианты проектных решений
85-012/1.2 и 85-049/1.2. Секция 2Б-2Б-3Б-3Б. Типовой этаж
85-012/1.2; 85-013/1.2. Фрагменты секции 1 этажа. Разрез
85-012/1.2. Секция 2Б-2Б-3Б-4Б. Вариант с поворотной вставкой
85-013/1.2. Секция 1Б-2Б-3Б-4Б. Типовой этаж
Элементы блокировки
85-016/1.2. Секция 2Б-2Б-3Б-3Б. Типовой этаж
85-016/1.2; 85-023/1.2. Фрагменты секции 1 этажа
85-017/1.2. Секция -Б-2Б-2Б-2Б-3Б-3Б. Типовой этаж
85-017/1.2. Фрагменты секции 1 этажа. Разрез
85-023/1.2. Секция 2Б-2Б-3Б-3Б. Типовой этаж
Элементы блокировки
85-049/1.2. План 1 этажа
85-049/1.2. План 2 этажа
Фасад по оси А. Фасад 1
Фасад по оси А. Фасад 2
Фасад по оси И. Фасад 1
Фасад по оси Д. Фасад 1
Фасад по оси Д. Фасад 2
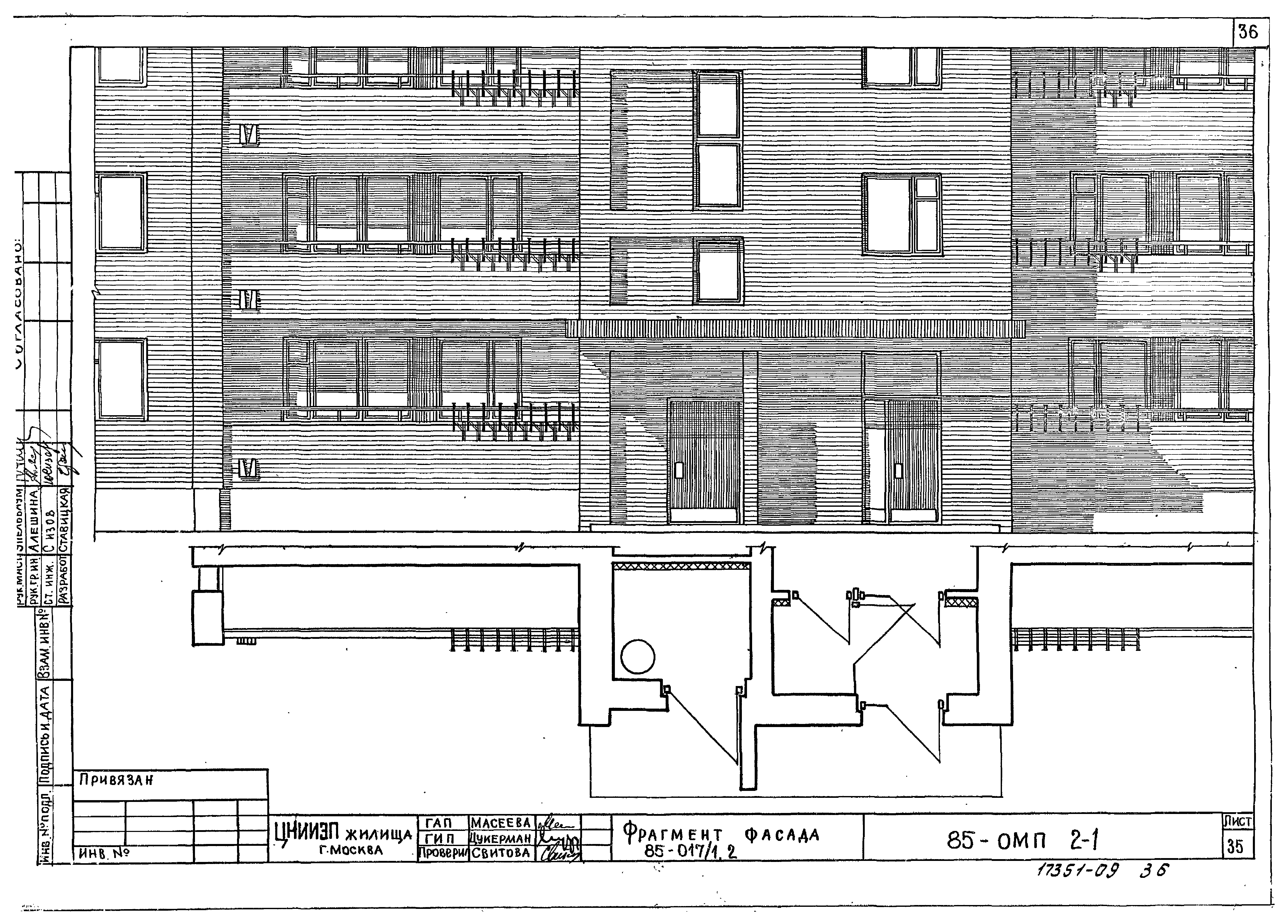
Фрагмент фасада 85-012/1.2; 85-016/1.2; 85-049/1.2
Фрагмент фасада 85-012/1.2; 85-049/1.2
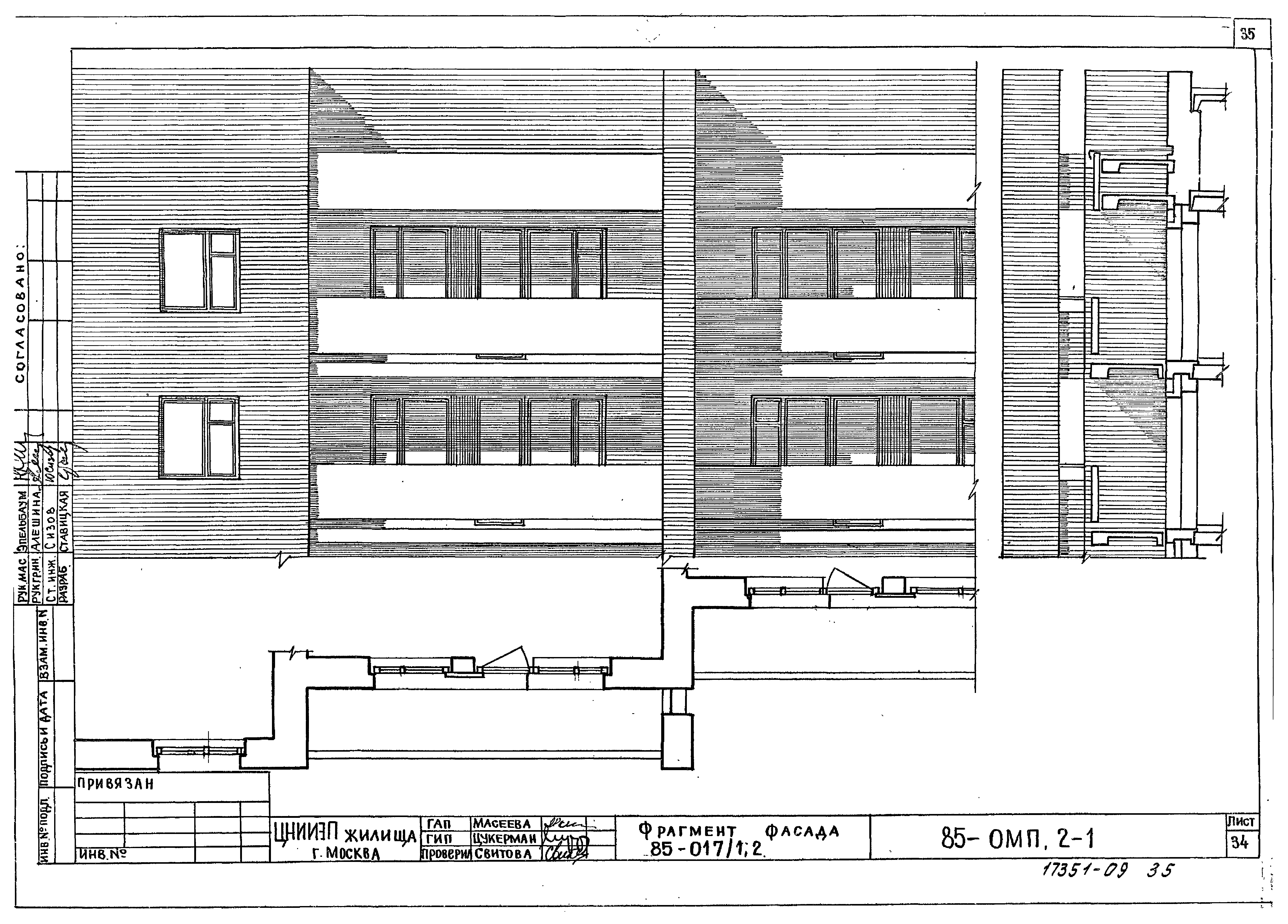
Фрагмент фасада 85-017/1.2
Лоджии. Варианты ограждений
Фрагмент фасада 85-049/1.2
Разработан: ЦНИИЭП жилища
Утверждён:31.12.1969 Госгражданстрой (Gosgrazhdanstroy 280)
Расположен в:Техническая документация Строительство Справочные документы Типовые строительные конструкции, изделия и узлы Общероссийский строительный каталог Жилые здания для строительства в городах и поселках городского типа Обычные условия Жилые дома со стенами из местных материалов Серия 85
Типовой проект 85-012/1.2Типовой проект 85-012/1.2Типовой проект 85-012/1.2Типовой проект 85-012/1.2Типовой проект 85-012/1.2Типовой проект 85-012/1.2Типовой проект 85-012/1.2Типовой проект 85-012/1.2Типовой проект 85-012/1.2Типовой проект 85-012/1.2Типовой проект 85-012/1.2Типовой проект 85-012/1.2Типовой проект 85-012/1.2Типовой проект 85-012/1.2Типовой проект 85-012/1.2Типовой проект 85-012/1.2Типовой проект 85-012/1.2Типовой проект 85-012/1.2Типовой проект 85-012/1.2Типовой проект 85-012/1.2Типовой проект 85-012/1.2Типовой проект 85-012/1.2Типовой проект 85-012/1.2Типовой проект 85-012/1.2Типовой проект 85-012/1.2Типовой проект 85-012/1.2Типовой проект 85-012/1.2Типовой проект 85-012/1.2Типовой проект 85-012/1.2Типовой проект 85-012/1.2Типовой проект 85-012/1.2Типовой проект 85-012/1.2Типовой проект 85-012/1.2Типовой проект 85-012/1.2Типовой проект 85-012/1.2Типовой проект 85-012/1.2Типовой проект 85-012/1.2Типовой проект 85-012/1.2Типовой проект 85-012/1.2

© 2013 Ёшкин Кот :-) Карта сайта