Скачать Типовой проект 85-012/1.2 ОВ.1-2. Отопление и вентиляция ниже и выше отм. 0.000 на расчетные температуры минус 25, минус 30, минус 35 и минус 40 градусов Цельсия. Фасад 2Дата актуализации: 10.08.2017 Типовой проект 85-012/1.2
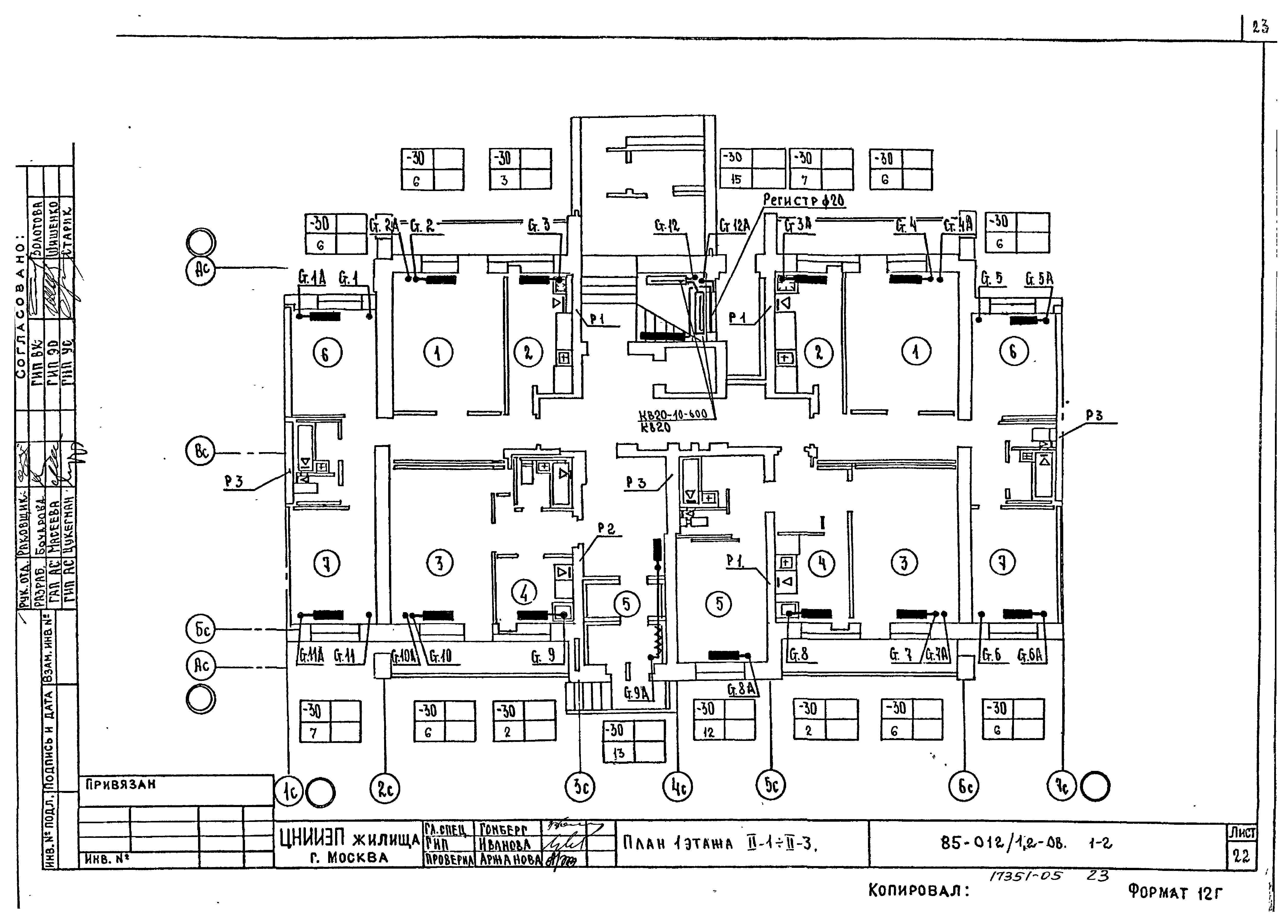
ОВ.1-2. Отопление и вентиляция ниже и выше отм. 0.000 на расчетные температуры минус 25, минус 30, минус 35 и минус 40 градусов Цельсия. Фасад 2Обозначение: | Типовой проект 85-012/1.2 | Обозначение англ: | 85-012/1.2 | Статус: | не определен законодательством | Название рус.: | ОВ.1-2. Отопление и вентиляция ниже и выше отм. 0.000 на расчетные температуры минус 25, минус 30, минус 35 и минус 40 градусов Цельсия. Фасад 2 | Дата добавления в базу: | 01.10.2014 | Дата актуализации: | 05.05.2017 | Дата введения: | 29.12.1980 | Оглавление: | Общие данные План подполья. Схема магистралей I-1 - I-3 План подполья. Схема магистралей I-4 План подполья. Схема магистралей I-5 План подполья. Схема магистралей I-6 План подполья. Схема магистралей I-7 План подполья. Схема магистралей I-8 План подполья. Схема магистралей I-9 План подполья. Схема магистралей II-1 - II-3 План подполья. Схема магистралей II-4 План подполья. Схема магистралей II-5 План 1 этажа I-1 - I-3 План 1 этажа I-4 План 1 этажа I-5 План 1 этажа I-6 План 1 этажа I-7 План 1 этажа I-8 План 1 этажа I-9 План 1 этажа II-1 - II-3 План 1 этажа II-4 План 1 этажа II-5 План 2 - 9 этажей I-1 - I-3; II-1 - II-3 План 2 - 9 этажей I-4; II-4 План 2 - 9 этажей I-5; II-5 План 2 - 9 этажей I-6 План 2 - 9 этажей I-7 План 2 - 9 этажей I-8 План 2 - 9 этажей I-9 План чердака I-1 - I-3; II-1 - II-3 План чердака I-4; II-4 План чердака I-5; II-5 План чердака I-6 План чердака I-7 План чердака I-8 План чердака I-9 Схемы стояков 1, 1А, 2, 2А, 3, 3А, 4, 4А (радиаторы М-140-АО) Схемы стояков 5, 5А, 6, 6А, 7, 7А, 8, 8А, 9, 9А (радиаторы М-140-АО) Схемы стояков 10, 10А, 11, 11А, 13, 13А, 14, 14А, 15, 15А, 16, 16А, 12, 12А (радиаторы М-140-АО) Схемы стояков 17, 17А, 18, 18А, 19, 19А, 20, 20А, 21, 21А, 22, 22А (радиаторы М-140-АО) Схемы стояков 23, 23А, 24, 24А, 25, 25А, 26, 26А, 27, 27А, 28, 28А, 29, 29А (радиаторы М-140-АО) Схемы стояков 30, 30А, 31, 31А, 32, 32А, 33, 33А, 34, 34А (радиаторы М-140-АО) Схемы стояков 1, 1А, 2, 2А, 3, 3А, 4, 4А (конвекторы КН-20) Схемы стояков 5, 5А, 6, 6А, 7, 7А, 8, 8А, 9, 9А (конвекторы КН-20) Схемы стояков 10, 10А, 11, 11А, 13, 13А, 14, 14А, 15, 15А, 16, 16А, 12, 12А (конвекторы КН-20) Схемы стояков 17, 17А, 18, 18А, 19, 19А, 20, 20А, 21, 21А, 22, 22А (конвекторы КН-20) Схемы стояков 23, 23А, 24, 24А, 25, 25А, 26, 26А, 27, 27А, 28, 28А, 29, 29А (конвекторы КН-20) Схемы стояков 30, 30А, 31, 31А, 32, 32А, 33, 33А, 34, 34А (конвекторы КН-20) | Разработан: | ЦНИИЭП жилища
| Утверждён: | 31.12.1969 Госгражданстрой (Gosgrazhdanstroy 280)
| Расположен в: |
|
                                                 
|