Информационная система
«Ёшкин Кот»

Скачать базу одним архивом
Скачать обновления
История создания базы
Карта сайта

Скачать Типовой проект А-IV-600-476.90 Альбом 6. Электросиловое оборудование. Электроосвещение. Связь. Автоматизация

Дата актуализации: 10.08.2017

Типовой проект А-IV-600-476.90

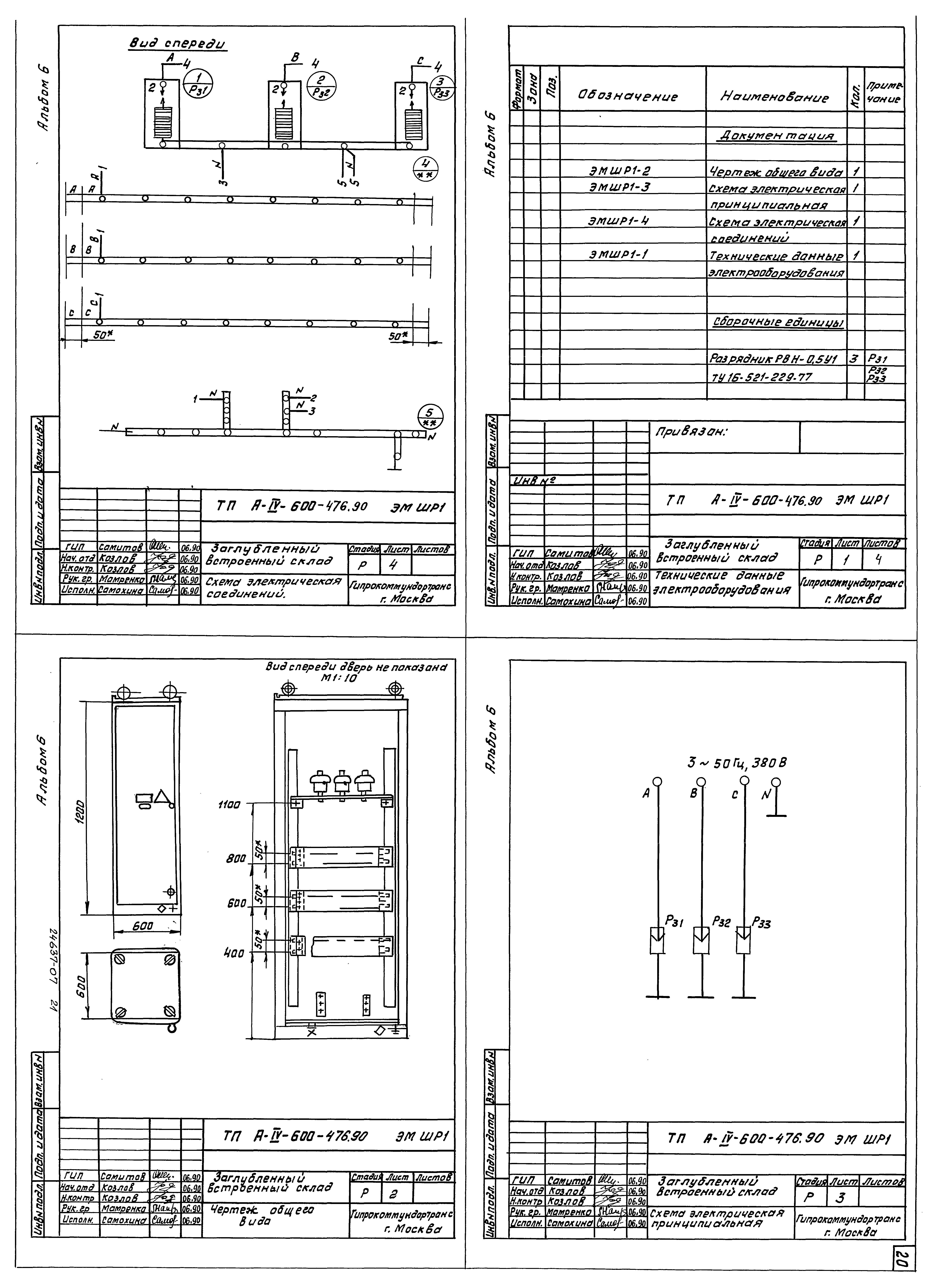
Альбом 6. Электросиловое оборудование. Электроосвещение. Связь. Автоматизация

Обозначение: Типовой проект А-IV-600-476.90
Обозначение англ: А-IV-600-476.90
Статус:не определен законодательством
Название рус.:Альбом 6. Электросиловое оборудование. Электроосвещение. Связь. Автоматизация
Дата добавления в базу:01.10.2014
Дата актуализации:05.05.2017
Дата введения:24.08.1990
Оглавление:Содержание альбома
Силовое электрооборудование
   Общие данные
   План силового электрооборудования (1, 2 климатические зоны)
   План силового электрооборудования (3 климатическая зона)
   План силового электрооборудования (4 климатическая зона)
   Принципиальная схема распределительной сети (1, 2, 3 климатические зоны)
   Принципиальная схема распределительной сети (4 климатическая зона)
   Кабельный журнал (1, 2 климатические зоны)
   Кабельный журнал (3 климатическая зона)
   Кабельный журнал (4 климатическая зона)
   План кабельных линий ДЭС. Кабельный журнал ДЭС (1, 2, 3 климатические зоны)
   План кабельных линий ДЭС. Кабельный журнал ДЭС (4 климатическая зона)
   Принципиальная электрическая схема включения вентилятора В1 с двух мест
   План заземления электрооборудования
   Шкаф с 3-мя разрядниками
Осветительное электрооборудование
   Общие данные
   План осветительного электрооборудования
   Схема включения осветительного щита
   Эскиз общего вида шкафа аварийного освещения ШАО
Чертежи основного комплекта марки СС
   Общие данные
   План телефонизации и радиофикации
Чертежи основного комплекта марки А
   Общие данные
   Система В2. Схема электрическая принципиальная
   Система В2. Схема внешних проводок
   Электрокалорифер. Схема внешних проводок
   План расположения
Разработан: Гипрокоммундортранс
Утверждён:17.08.1990 НГО СССР (62)
Расположен в:Техническая документация Строительство Справочные документы Типовые строительные конструкции, изделия и узлы Общероссийский строительный каталог Защитные сооружения гражданской обороны Типовые проекты защитных сооружений гражданской обороны для объектов промышленности, электроэнергетики, транспорта, связи и складского хозяйства Встроенные помещения, приспособленные под убежища Убежища межотраслевого назначения
Типовой проект А-IV-600-476.90Типовой проект А-IV-600-476.90Типовой проект А-IV-600-476.90Типовой проект А-IV-600-476.90Типовой проект А-IV-600-476.90Типовой проект А-IV-600-476.90Типовой проект А-IV-600-476.90Типовой проект А-IV-600-476.90Типовой проект А-IV-600-476.90Типовой проект А-IV-600-476.90Типовой проект А-IV-600-476.90Типовой проект А-IV-600-476.90Типовой проект А-IV-600-476.90Типовой проект А-IV-600-476.90Типовой проект А-IV-600-476.90Типовой проект А-IV-600-476.90Типовой проект А-IV-600-476.90Типовой проект А-IV-600-476.90Типовой проект А-IV-600-476.90Типовой проект А-IV-600-476.90Типовой проект А-IV-600-476.90Типовой проект А-IV-600-476.90Типовой проект А-IV-600-476.90Типовой проект А-IV-600-476.90Типовой проект А-IV-600-476.90Типовой проект А-IV-600-476.90Типовой проект А-IV-600-476.90Типовой проект А-IV-600-476.90Типовой проект А-IV-600-476.90Типовой проект А-IV-600-476.90Типовой проект А-IV-600-476.90Типовой проект А-IV-600-476.90Типовой проект А-IV-600-476.90

© 2013 Ёшкин Кот :-) Карта сайта