Информационная система
«Ёшкин Кот»

Скачать базу одним архивом
Скачать обновления
История создания базы
Карта сайта

Скачать Типовой проект А-IV-600-476.90 Альбом 2. Архитектурно-строительные решения

Дата актуализации: 10.08.2017

Типовой проект А-IV-600-476.90

Альбом 2. Архитектурно-строительные решения

Обозначение: Типовой проект А-IV-600-476.90
Обозначение англ: А-IV-600-476.90
Статус:не определен законодательством
Название рус.:Альбом 2. Архитектурно-строительные решения
Дата добавления в базу:01.10.2014
Дата актуализации:05.05.2017
Дата введения:24.08.1990
Оглавление:Содержание альбома
Общие данные
План каналов в помещении ДЭС и щитовой
План сооружения на отм. - 4.750
Экспликация помещений. Спецификация элементов заполнения проемов. Схема генплана
Разрезы 1-1, 2-2. План кровли
Вход №1. План. Разрезы (вариант из монолитного железобетона)
Вход №1. План. Разрезы (вариант из сборных железобетонных блоков)
Вход №2. План. Разрезы
План полов. Экспликация полов. Схема герметизации сооружения
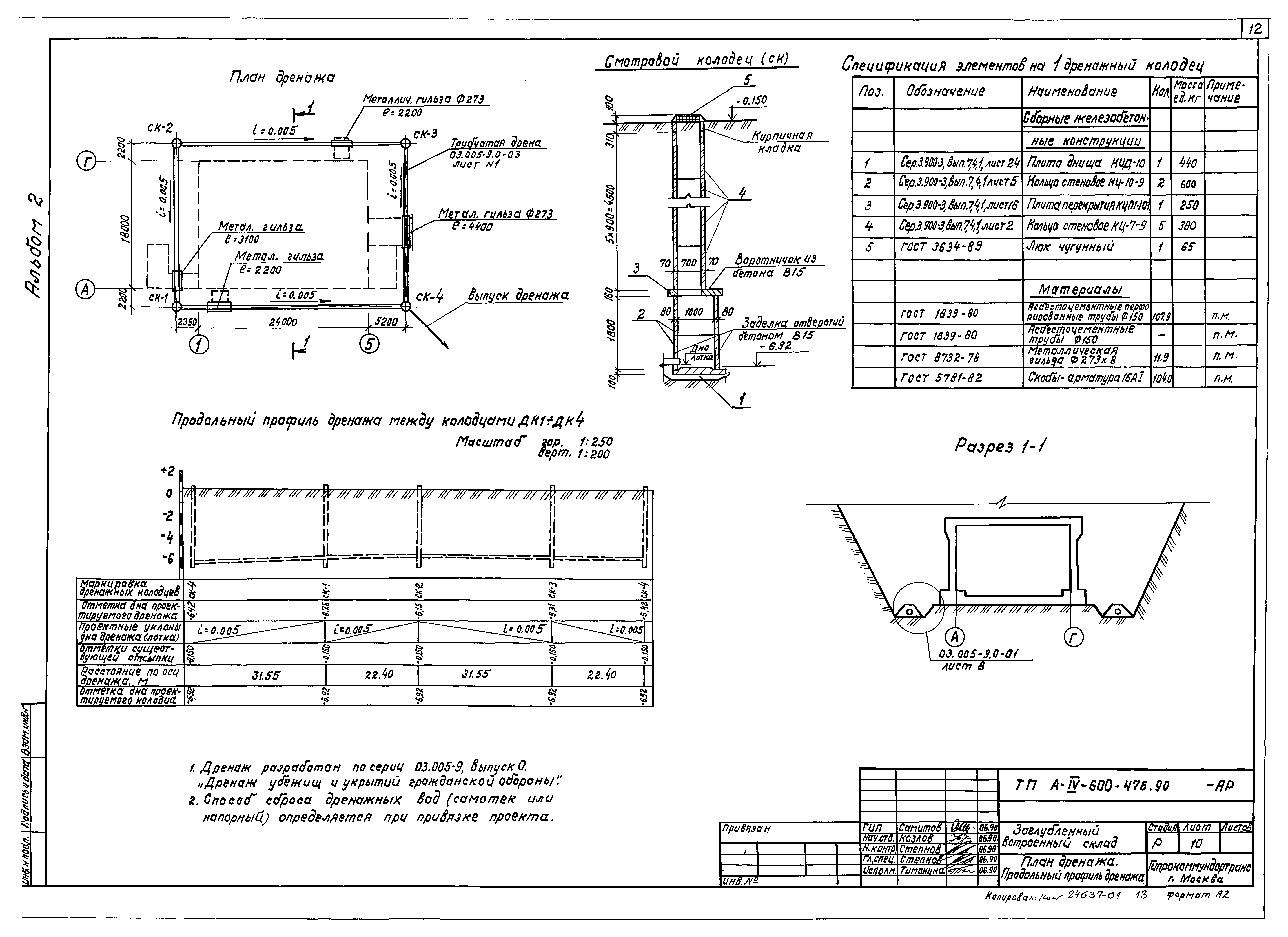
План дренажа. Продольный профиль дренажа
Фекальный резервуар. План, разрезы
План кабин санузлов. Вид по "А". Разрезы и узлы
План отверстий и закладных деталей в стенах и перегородках в осях "1 - 5" и "В - Г" (для 1 и 2 климатических зон)
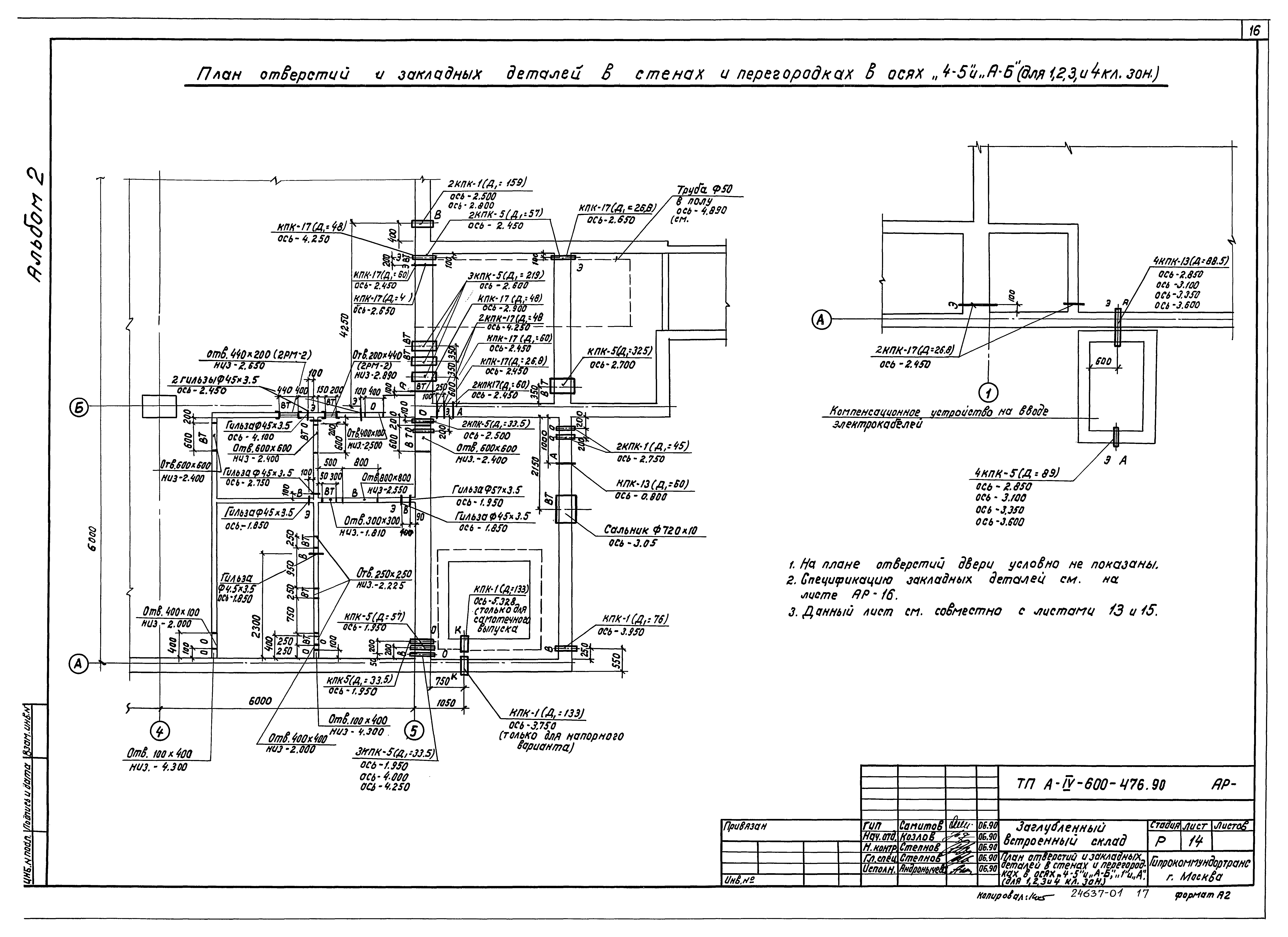
План отверстий и закладных деталей в стенах и перегородках в осях "4 - 5" и "А - Б" (для 1, 2, 3 и 4 климатических зон)
План отверстий и закладных деталей в стенах и перегородках в осях "1 - 3" и "В - Г" (для 3 и 4 климатических зон)
Спецификация закладных деталей в стенах и перегородках
Оголовок №1. План, разрезы. Компенсационное устройство на вводе электрокабелей. План. Разрезы
Дверь павильона шахты подъемника. Спецификация элементов
Схема установки нар. Технологическая схема склада
Дверь Д-1. Спецификация материалов
Разработан: Гипрокоммундортранс
Утверждён:17.08.1990 НГО СССР (62)
Расположен в:Техническая документация Строительство Справочные документы Типовые строительные конструкции, изделия и узлы Общероссийский строительный каталог Защитные сооружения гражданской обороны Типовые проекты защитных сооружений гражданской обороны для объектов промышленности, электроэнергетики, транспорта, связи и складского хозяйства Встроенные помещения, приспособленные под убежища Убежища межотраслевого назначения
Типовой проект А-IV-600-476.90Типовой проект А-IV-600-476.90Типовой проект А-IV-600-476.90Типовой проект А-IV-600-476.90Типовой проект А-IV-600-476.90Типовой проект А-IV-600-476.90Типовой проект А-IV-600-476.90Типовой проект А-IV-600-476.90Типовой проект А-IV-600-476.90Типовой проект А-IV-600-476.90Типовой проект А-IV-600-476.90Типовой проект А-IV-600-476.90Типовой проект А-IV-600-476.90Типовой проект А-IV-600-476.90Типовой проект А-IV-600-476.90Типовой проект А-IV-600-476.90Типовой проект А-IV-600-476.90Типовой проект А-IV-600-476.90Типовой проект А-IV-600-476.90Типовой проект А-IV-600-476.90Типовой проект А-IV-600-476.90Типовой проект А-IV-600-476.90Типовой проект А-IV-600-476.90

© 2013 Ёшкин Кот :-) Карта сайта