Информационная система
«Ёшкин Кот»

Скачать базу одним архивом
Скачать обновления
История создания базы
Карта сайта

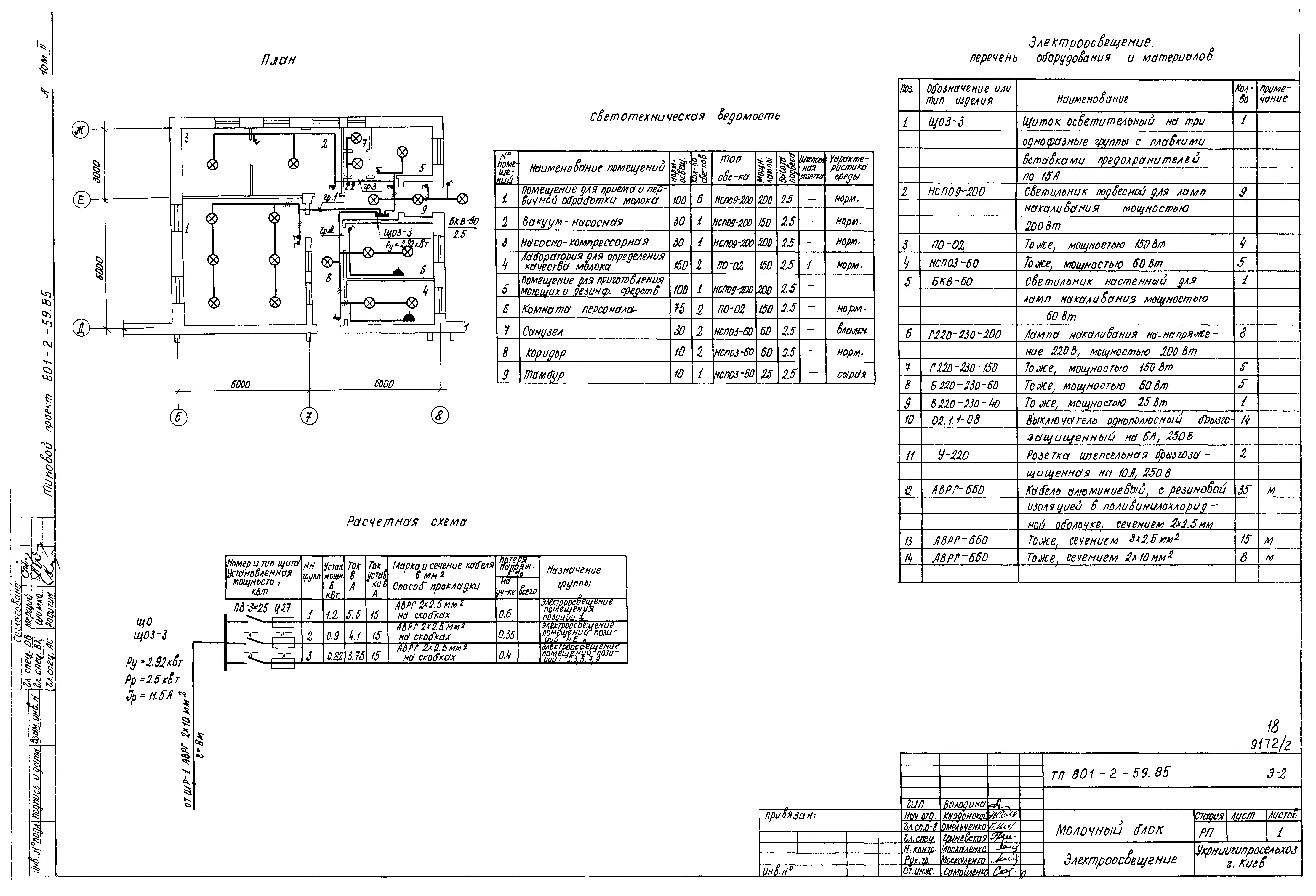
Скачать Типовой проект 801-2-60.85 Альбом II. Молочный блок (из ТП 801-2-59.85)

Дата актуализации: 10.08.2017

Типовой проект 801-2-60.85

Альбом II. Молочный блок (из ТП 801-2-59.85)

Обозначение: Типовой проект 801-2-60.85
Обозначение англ: 801-2-60.85
Статус:действует
Название рус.:Альбом II. Молочный блок (из ТП 801-2-59.85)
Дата добавления в базу:01.10.2014
Дата актуализации:05.05.2017
Оглавление:Содержание альбома
Пояснительная записка
Чертежи основного комплекта марки ТХ
   Общие данные
   Размещение технологического оборудования. План
   Размещение технологического оборудования. Разрезы
Чертежи основного комплекта марки АС
   Общие данные
   План. Фрагмент 1
   Фасады. Разрез 1-1. Схема расположения плит покрытия
   Схема расположения фундаментов
Чертежи основного комплекта марки ВК
   Общие данные
   План на отм. 0.000. Схемы В1, Т3, К1
   План на отм. 0.000. Схема В1. Вариант водопровода с применением пластмассовых труб
Чертежи основного комплекта марки ОВ
   План. Схема системы отопления. Схемы систем ВЕ1, ВЕ2. Узел управления
Чертежи основного комплекта марки Э
   Общие данные
   Электроосвещение
   Силовое электрооборудование
Чертежи основного комплекта марки АОВ
   Общие данные. Схема функциональная и внешних проводок. План расположения
Чертежи основного комплекта марки СС
   Связь и сигнализация. Общие данные и план
Разработан: Укрниигипросельхоз
Утверждён:20.03.1985 МСХ УССР (21-Э)
Расположен в:Техническая документация Строительство Справочные документы Типовые строительные конструкции, изделия и узлы Общероссийский строительный каталог Сельскохозяйственные предприятия, здания и сооружения Предприятия, здания и сооружения для крупного рогатого скота Здания и сооружения Производство молока и выращивание нетелей Коровники
Типовой проект 801-2-60.85Типовой проект 801-2-60.85Типовой проект 801-2-60.85Типовой проект 801-2-60.85Типовой проект 801-2-60.85Типовой проект 801-2-60.85Типовой проект 801-2-60.85Типовой проект 801-2-60.85Типовой проект 801-2-60.85Типовой проект 801-2-60.85Типовой проект 801-2-60.85Типовой проект 801-2-60.85Типовой проект 801-2-60.85Типовой проект 801-2-60.85Типовой проект 801-2-60.85Типовой проект 801-2-60.85Типовой проект 801-2-60.85Типовой проект 801-2-60.85Типовой проект 801-2-60.85Типовой проект 801-2-60.85Типовой проект 801-2-60.85Типовой проект 801-2-60.85

© 2013 Ёшкин Кот :-) Карта сайта