Информационная система
«Ёшкин Кот»

Скачать базу одним архивом
Скачать обновления
История создания базы
Карта сайта

Скачать Типовой проект 903-1-198 Альбом 7.1. Генеральный план. Инженерные сети. Архитектурно-строительная часть конструкции. Автоматизация. Электротехническая часть. Связь и сигнализация. Водопровод и канализация. Тепловые сети (вариант установки котлов КВ-ГМ-100 и ГМ-50-14)

Дата актуализации: 10.08.2017

Типовой проект 903-1-198

Альбом 7.1. Генеральный план. Инженерные сети. Архитектурно-строительная часть конструкции. Автоматизация. Электротехническая часть. Связь и сигнализация. Водопровод и канализация. Тепловые сети (вариант установки котлов КВ-ГМ-100 и ГМ-50-14)

Обозначение: Типовой проект 903-1-198
Обозначение англ: 903-1-198
Статус:действует
Название рус.:Альбом 7.1. Генеральный план. Инженерные сети. Архитектурно-строительная часть конструкции. Автоматизация. Электротехническая часть. Связь и сигнализация. Водопровод и канализация. Тепловые сети (вариант установки котлов КВ-ГМ-100 и ГМ-50-14)
Дата добавления в базу:01.10.2014
Дата актуализации:05.05.2017
Оглавление:Содержание альбома
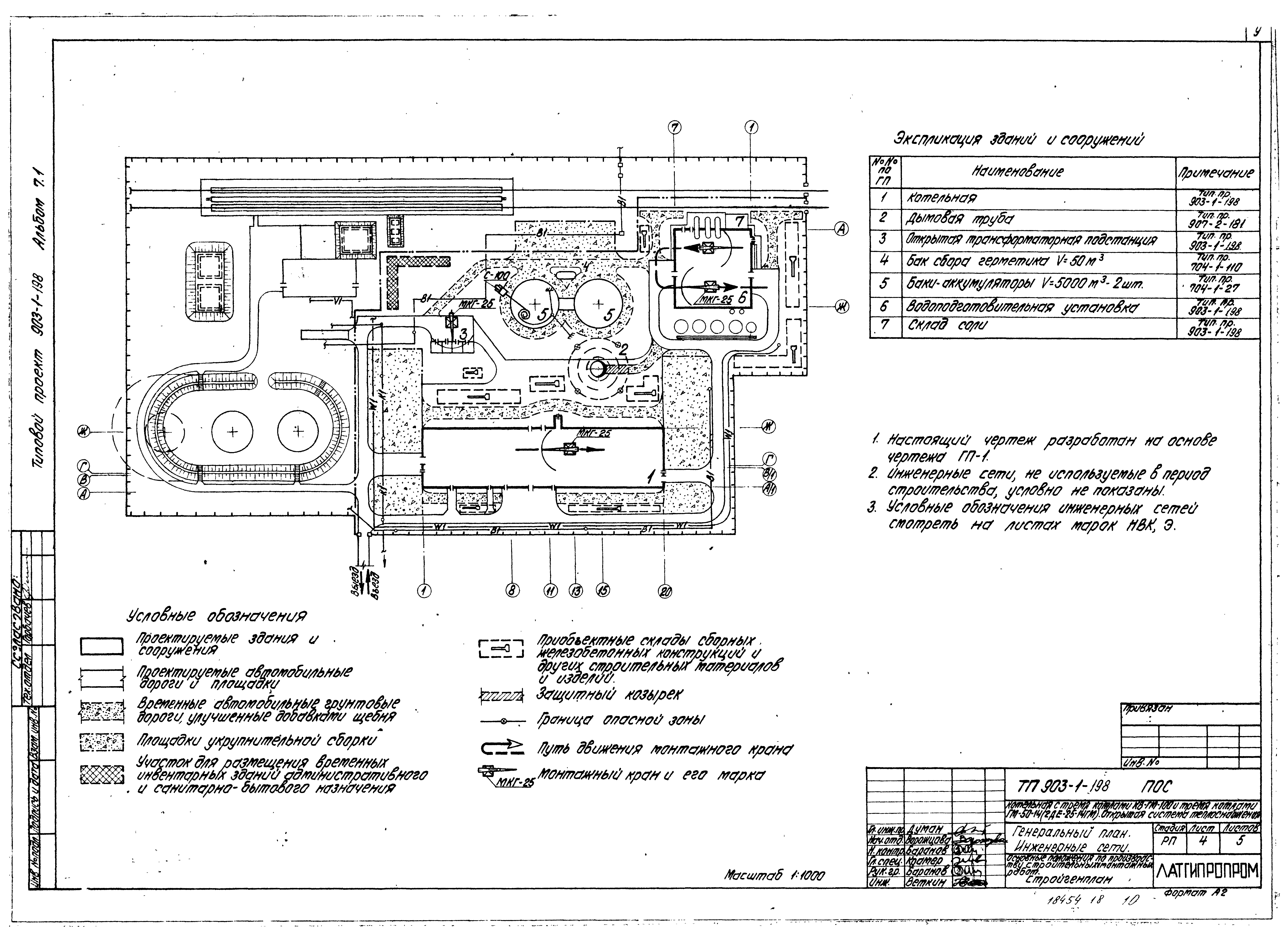
Генеральный план. Инженерные сети
   План привязки
   Сводный план инженерных сетей
   Основные положения по производству строительных и монтажных работ. Пояснительная записка
   Основные положения по производству строительных и монтажных работ. Стройгенплан
   Основные положения по производству строительных и монтажных работ. Монтажный генплан
Архитектурно-строительная часть - конструкции
   Общие данные
   Трасса внутриплощадочных трубопроводов. Схема расположения элементов. Фрагмент плана 1
   Трасса внутриплощадочных трубопроводов. Развертка трассы Т1-1а
   Трасса внутриплощадочных трубопроводов. Фрагменты Фм1 - Фм5. Узлы 1, 2
   Трасса внутриплощадочных трубопроводов. Узлы 3 - 6
   Трасса выводов тепловых сетей. Схема расположения фундаментов. Фрагмент плана 2
   Трасса выводов тепловых сетей. Фундаменты Фм6 - Фм9
Автоматизация
   Общие данные
   План расположения
Электротехническая часть. Связь и сигнализация
   Общие данные
   Кабельный журнал. Расчетная схема питающей сети 380/220 В
   Внутриплощадочные кабельные сети, наружное освещение, сети связи и радиофикации
Водопровод и канализация
   Общие данные
   Генплан с сетями водопровода и канализации
Тепловые сети
   Трасса внутриплощадочных трубопроводов. Общие данные
   Трасса внутриплощадочных трубопроводов. План. Схема трубопроводов
   Трасса внутриплощадочных трубопроводов. Разрезы 1-1, 2-2, Ут-1
   Ут-2. План. Разрез 1-1
Разработан: Латгипропром
Утверждён:14.05.1982 Латгипропром (101А)
Расположен в:Техническая документация Строительство Справочные документы Типовые строительные конструкции, изделия и узлы Общероссийский строительный каталог Промышленные предприятия, здания и сооружения Здания и сооружения санитарно-технические Теплоснабжение Котельные установки Открытые системы теплоснабжения Топливо - газ и мазут
Типовой проект 903-1-198Типовой проект 903-1-198Типовой проект 903-1-198Типовой проект 903-1-198Типовой проект 903-1-198Типовой проект 903-1-198Типовой проект 903-1-198Типовой проект 903-1-198Типовой проект 903-1-198Типовой проект 903-1-198Типовой проект 903-1-198Типовой проект 903-1-198Типовой проект 903-1-198Типовой проект 903-1-198Типовой проект 903-1-198Типовой проект 903-1-198Типовой проект 903-1-198Типовой проект 903-1-198Типовой проект 903-1-198Типовой проект 903-1-198Типовой проект 903-1-198Типовой проект 903-1-198Типовой проект 903-1-198Типовой проект 903-1-198Типовой проект 903-1-198Типовой проект 903-1-198Типовой проект 903-1-198Типовой проект 903-1-198Типовой проект 903-1-198Типовой проект 903-1-198

© 2013 Ёшкин Кот :-) Карта сайта