Информационная система
«Ёшкин Кот»

Скачать базу одним архивом
Скачать обновления
История создания базы
Карта сайта

Скачать Типовой проект 416-1-141.83 Альбом III. Архитектурно-строительные решения

Дата актуализации: 10.08.2017

Типовой проект 416-1-141.83

Альбом III. Архитектурно-строительные решения

Обозначение: Типовой проект 416-1-141.83
Обозначение англ: 416-1-141.83
Статус:действует
Название рус.:Альбом III. Архитектурно-строительные решения
Дата добавления в базу:01.10.2014
Дата актуализации:05.05.2017
Оглавление:Содержание альбома
Архитектурно-строительная часть
   Общие данные
   Схема компоновки зданий
   План на отм. 0.000 и фрагмент плана на отм. 0.000 (вариант с электролизной)
   План на отм. 3.600 и фрагмент плана на отм. 0.000 (вариант с электролизной)
   Разрезы 1-1, 2-2, 3-3, 4-4
   Фасады 1` - 6; 6 - 1`; 1 - 6; 6 - 1; В - А; А - В
   Фрагменты плана. Фасады 5 - 1; 5 - 1`; В - А
   Планы перегородок на отм. 0.000 и 3.600. Спецификация и ведомость перемычек
   План кровли, планы полов на отм. 0.000 и 3.600. Экспликация полов
   Ведомость отделки помещений
   Переходная галерея. План. Разрезы 1-1, 2-2. Фасады В - А; А - В
Конструкции железобетонные
   Общие данные
   Схема расположения фундаментов и фундаментных балок в осях "1` - 5"; "А - Б". Узлы 1 - 4
   Схема расположения фундаментов и фундаментных балок в осях "Г - Ж"; "З". Узлы 5 - 8
   Фундамент Ф2, Ф4. Опалубочный чертеж и армирование
   Фундамент Ф3, Ф5. Опалубочный чертеж и армирование
   Схема расположения колонн и ригелей на отм. 3.600 и 7.200
   Схема расположения плит перекрытия и покрытия
   Схемы расположения стеновых панелей
   Монолитные участки Ум1, Ум2. Опалубочный чертеж и армирование
   Схема расположения лестничной клетки в осях "Б - В", "5". Козырек
   Схемы расположения фундаментов под оборудование на отм. 0.000; 3.600
   Фундаменты Фом1 - Фом3. Разрезы 1-1 - 10-10
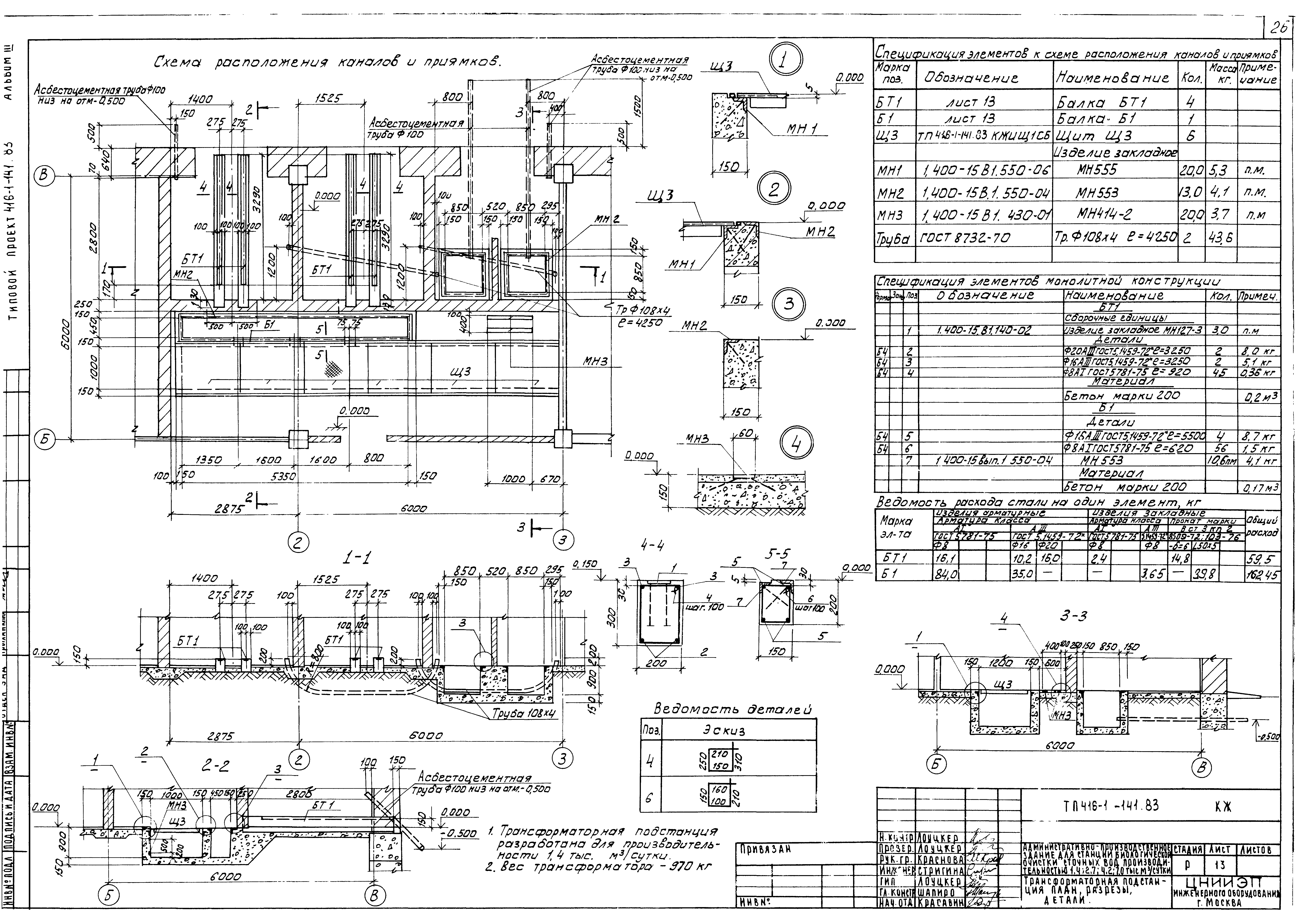
   Трансформаторная подстанция. План, разрезы, детали
   Схемы расположения венткамер на отм. 0.000
   Переходная галерея. Схемы расположения плит покрытия, перекрытия, стеновых панелей
Конструкции металлические
   Общие данные
   Техническая спецификация металла
   Техническая спецификация металла на типовые конструкции
   Ведомость металлоконструкций по видам профилей
   Схема расположения монорельса и пути кран-балки. Разрезы, детали
   Схемы расположения металлических площадок и лестниц. Разрезы 1-1 - 5-5. Узел 9
   Схемы расположения площадок в осях "Б - 4" на отм. 3.600
   Переходная галерея. Схема расположения стоек и балок монорельса. Разрезы, узлы
Разработан: ЦНИИЭП иженерного оборудования
Утверждён:14.02.1983 Госгражданстрой (Gosgrazhdanstroy 49)
Расположен в:Техническая документация Строительство Справочные документы Типовые строительные конструкции, изделия и узлы Общероссийский строительный каталог Промышленные предприятия, здания и сооружения Предприятия, здания и сооружения промышленности и электроэнергетики Ремонтные предприятия. Административно-бытовые, производственные и вспомогательные здания и сооружения промышленных предприятий Здания административно-бытовые, заводоуправления и конторы
Типовой проект 416-1-141.83Типовой проект 416-1-141.83Типовой проект 416-1-141.83Типовой проект 416-1-141.83Типовой проект 416-1-141.83Типовой проект 416-1-141.83Типовой проект 416-1-141.83Типовой проект 416-1-141.83Типовой проект 416-1-141.83Типовой проект 416-1-141.83Типовой проект 416-1-141.83Типовой проект 416-1-141.83Типовой проект 416-1-141.83Типовой проект 416-1-141.83Типовой проект 416-1-141.83Типовой проект 416-1-141.83Типовой проект 416-1-141.83Типовой проект 416-1-141.83Типовой проект 416-1-141.83Типовой проект 416-1-141.83Типовой проект 416-1-141.83Типовой проект 416-1-141.83Типовой проект 416-1-141.83Типовой проект 416-1-141.83Типовой проект 416-1-141.83Типовой проект 416-1-141.83Типовой проект 416-1-141.83Типовой проект 416-1-141.83Типовой проект 416-1-141.83Типовой проект 416-1-141.83Типовой проект 416-1-141.83Типовой проект 416-1-141.83Типовой проект 416-1-141.83Типовой проект 416-1-141.83Типовой проект 416-1-141.83

© 2013 Ёшкин Кот :-) Карта сайта