Информационная система
«Ёшкин Кот»

Скачать базу одним архивом
Скачать обновления
История создания базы
Карта сайта

Скачать Типовой проект 901-3-247.88 Альбом 5. Строительные изделия

Дата актуализации: 10.08.2017

Типовой проект 901-3-247.88

Альбом 5. Строительные изделия

Обозначение: Типовой проект 901-3-247.88
Обозначение англ: 901-3-247.88
Статус:не определен законодательством
Название рус.:Альбом 5. Строительные изделия
Дата добавления в базу:01.10.2014
Дата актуализации:05.05.2017
Дата введения:18.11.1985
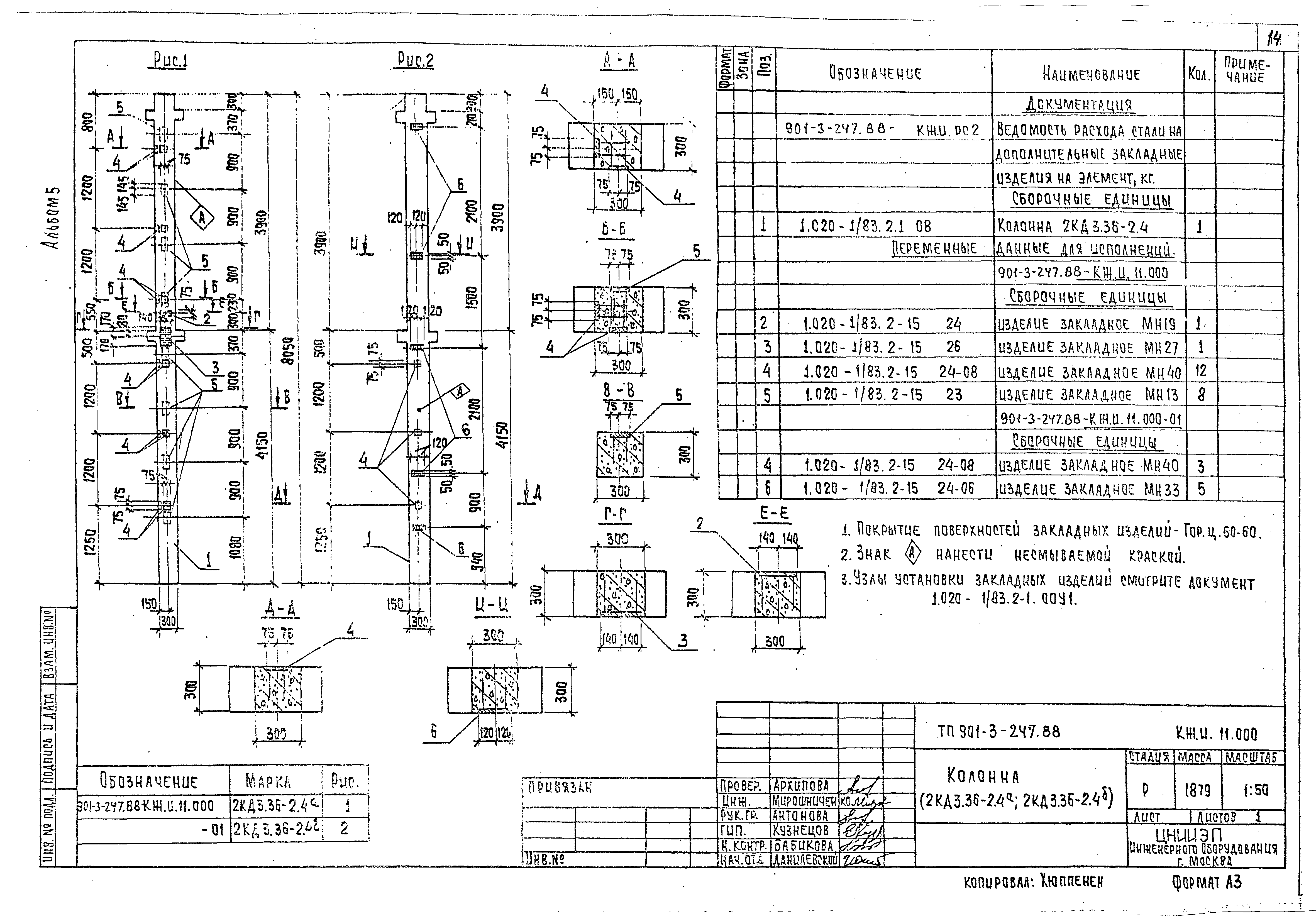
Оглавление:Колонны
Ведомость расхода стали на дополнительные закладные изделия на элемент, кг
Балка стропильная
Ригель
Перемычка
Диафрагма жесткости
Плиты покрытия
Плиты
Панель стеновая
Ведомость расхода стали на дополнительные закладные изделия на элемент, кг
Панель стеновая
Элемент лотковый
Лоток металлический
Изделие закладное
Соединительный элемент
Каркас пространственный
Каркас плоский
Каркас пространственный
Каркас плоский
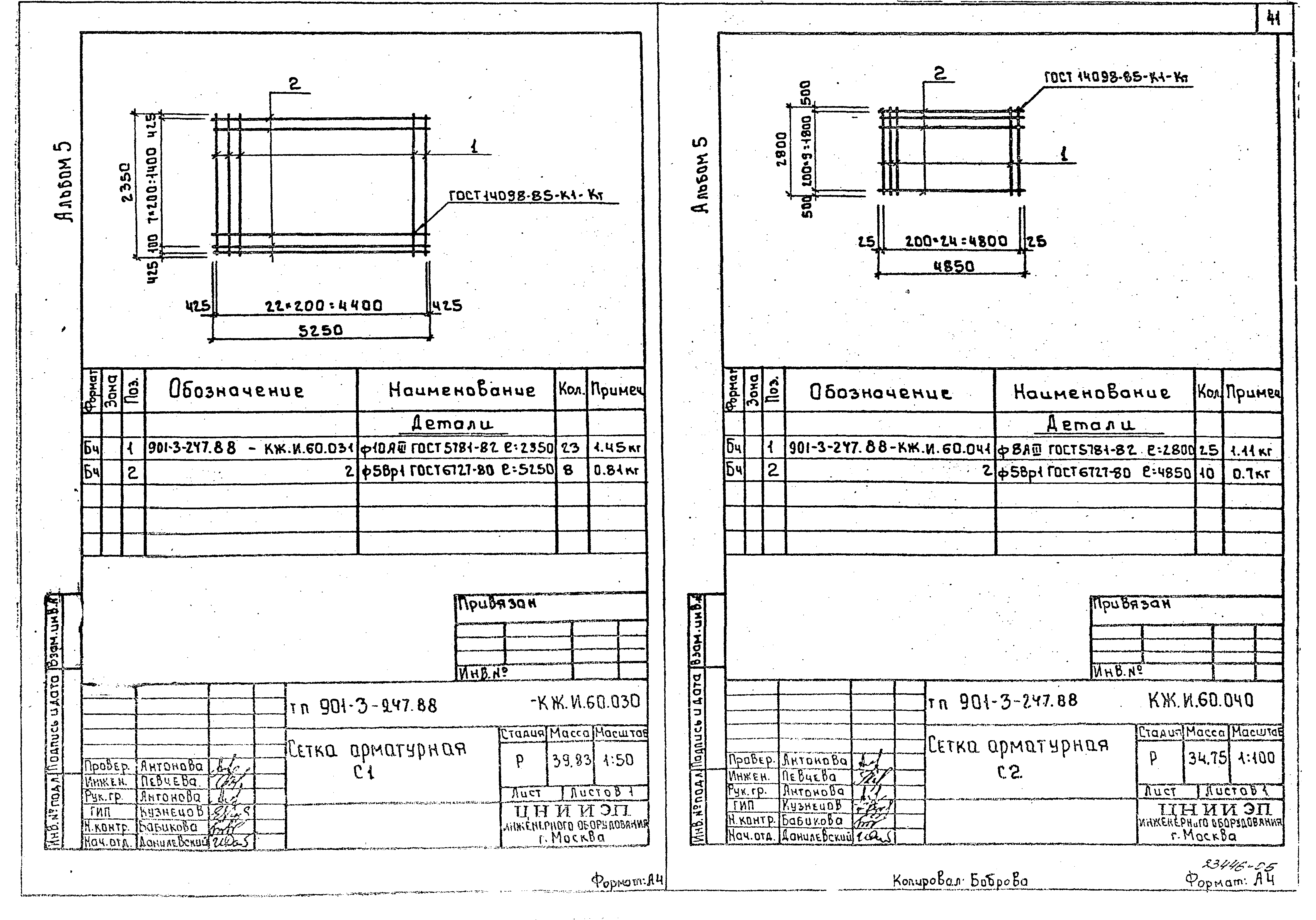
Сетка арматурная
Изделие закладное
Стойка
Изделие соединительное
Щиты
Рама металлическая
Разработан: ЦНИИЭП иженерного оборудования
Утверждён:18.11.1985 Госгражданстрой (Gosgrazhdanstroy 346)
Издан: ЦИТП Госстроя СССР (CITP, Gosstroy (USSR) 1988 г. )
Расположен в:Техническая документация Строительство Справочные документы Типовые строительные конструкции, изделия и узлы Общероссийский строительный каталог Промышленные предприятия, здания и сооружения Здания и сооружения санитарно-технические Водоснабжение Сооружения и установки по подготовке питьевой воды Станция обезжелезивания воды
Типовой проект 901-3-247.88Типовой проект 901-3-247.88Типовой проект 901-3-247.88Типовой проект 901-3-247.88Типовой проект 901-3-247.88Типовой проект 901-3-247.88Типовой проект 901-3-247.88Типовой проект 901-3-247.88Типовой проект 901-3-247.88Типовой проект 901-3-247.88Типовой проект 901-3-247.88Типовой проект 901-3-247.88Типовой проект 901-3-247.88Типовой проект 901-3-247.88Типовой проект 901-3-247.88Типовой проект 901-3-247.88Типовой проект 901-3-247.88Типовой проект 901-3-247.88Типовой проект 901-3-247.88Типовой проект 901-3-247.88Типовой проект 901-3-247.88Типовой проект 901-3-247.88Типовой проект 901-3-247.88Типовой проект 901-3-247.88Типовой проект 901-3-247.88Типовой проект 901-3-247.88Типовой проект 901-3-247.88Типовой проект 901-3-247.88Типовой проект 901-3-247.88Типовой проект 901-3-247.88Типовой проект 901-3-247.88Типовой проект 901-3-247.88Типовой проект 901-3-247.88Типовой проект 901-3-247.88Типовой проект 901-3-247.88Типовой проект 901-3-247.88Типовой проект 901-3-247.88Типовой проект 901-3-247.88Типовой проект 901-3-247.88Типовой проект 901-3-247.88Типовой проект 901-3-247.88Типовой проект 901-3-247.88Типовой проект 901-3-247.88Типовой проект 901-3-247.88Типовой проект 901-3-247.88Типовой проект 901-3-247.88Типовой проект 901-3-247.88Типовой проект 901-3-247.88

© 2013 Ёшкин Кот :-) Карта сайта