Скачать Типовой проект 901-3-247.88 Альбом 2. Архитектурные решения. Конструкции железобетонные. Конструкции металлические. Организация строительстваДата актуализации: 10.08.2017 Типовой проект 901-3-247.88
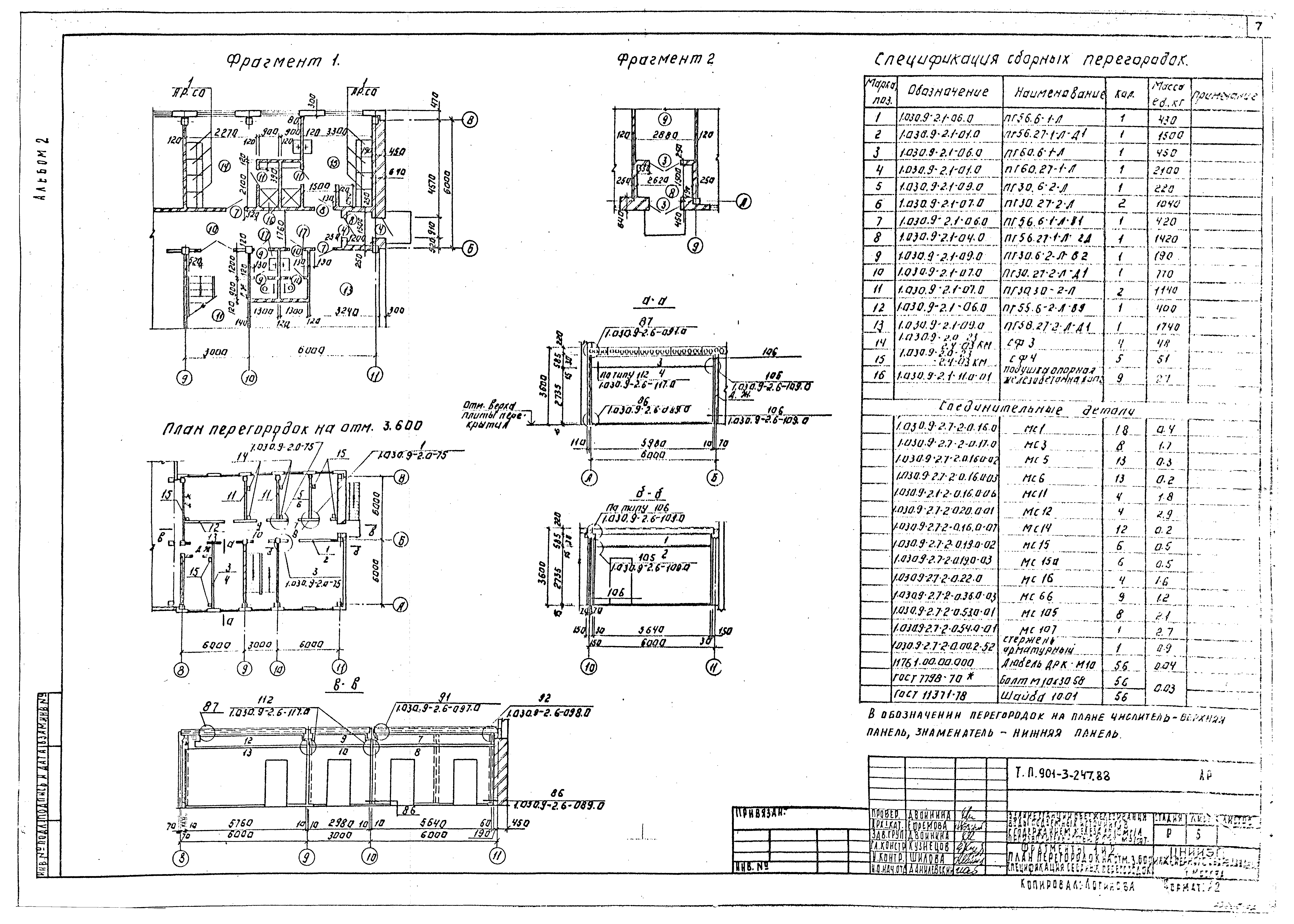
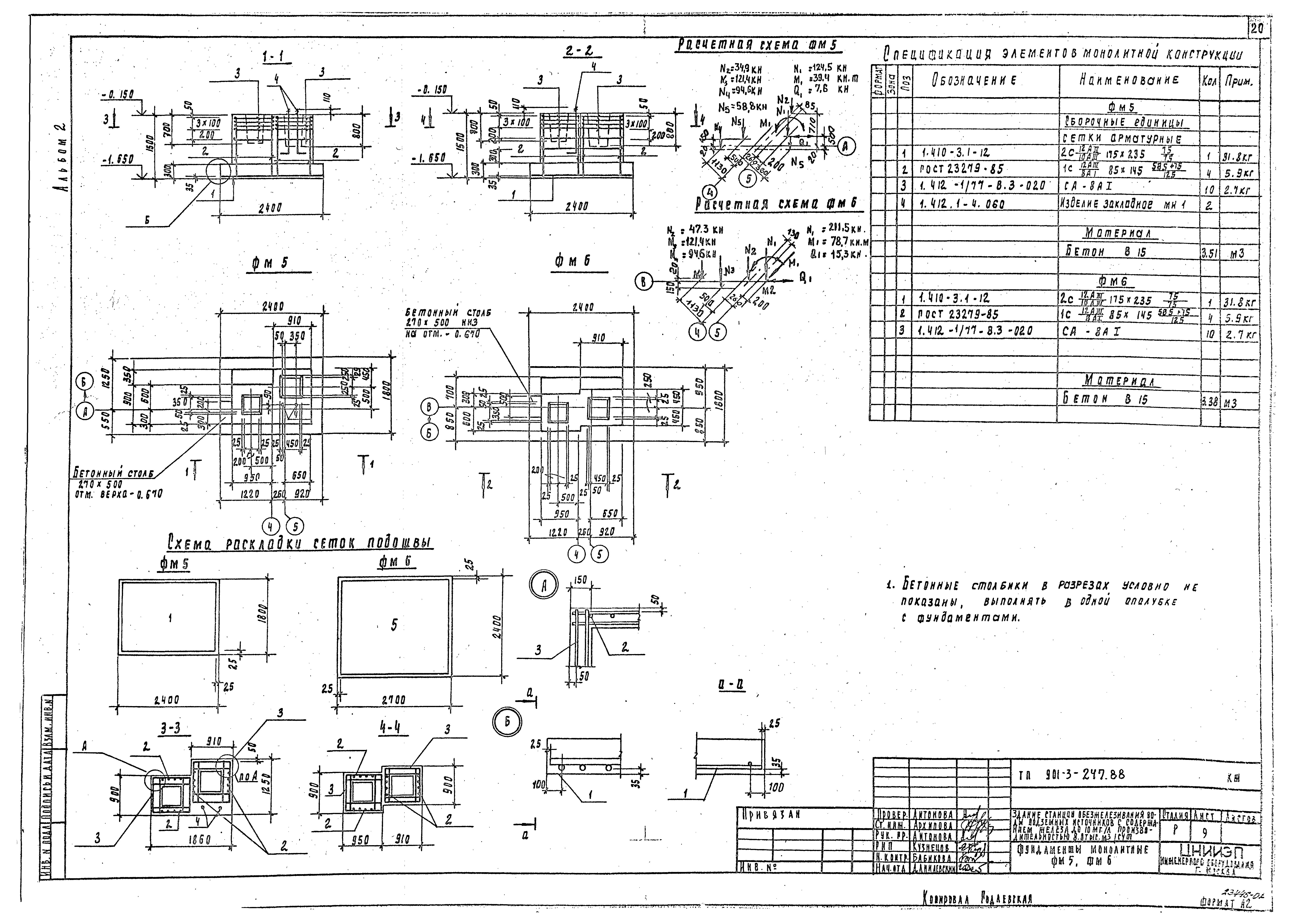
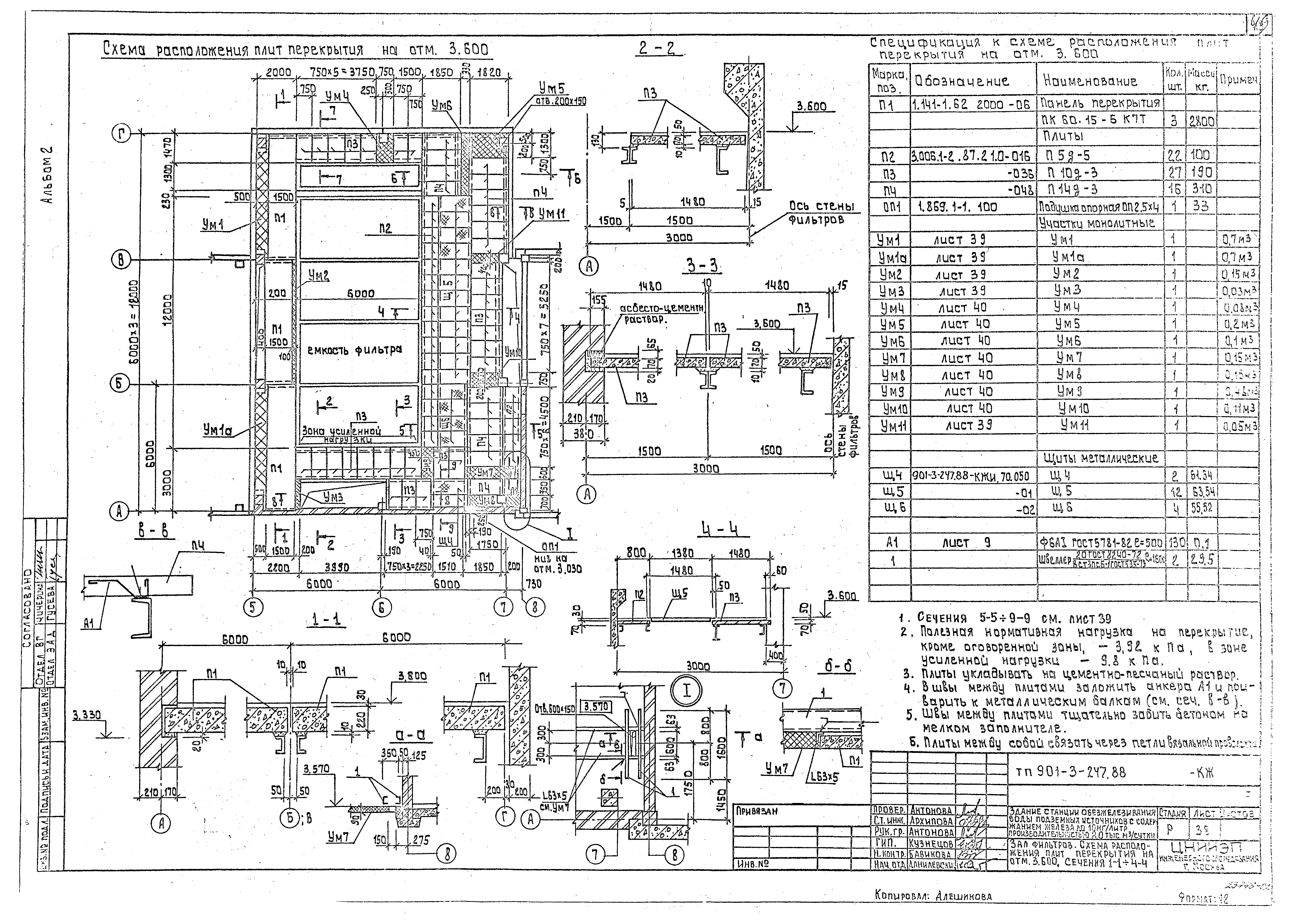
Альбом 2. Архитектурные решения. Конструкции железобетонные. Конструкции металлические. Организация строительстваОбозначение: | Типовой проект 901-3-247.88 | Обозначение англ: | 901-3-247.88 | Статус: | не определен законодательством | Название рус.: | Альбом 2. Архитектурные решения. Конструкции железобетонные. Конструкции металлические. Организация строительства | Дата добавления в базу: | 01.10.2014 | Дата актуализации: | 05.05.2017 | Дата введения: | 18.11.1985 | Оглавление: | Архитектурные решения Общие данные Планы на отм. 0.000; 3.600 Разрезы 1-1, 2-2, 3-3. Узлы IX, X, XI Фасады 1 - 11; 11 - 1; А - Г; Г - А Фрагменты 1 и 2. План перегородок на отм. 3.600. Спецификация сборных перегородок Планы отверстий и перемычек на отм. 0.000 и 3.600. Ведомости отверстий и перемычек. Спецификация перемычек Ведомость проемов ворот и дверей. Спецификация элементов заполнения проемов. Узлы I - V Ведомость отделки помещений. Узлы VI, VII, VIII План кровли. План полов на отм. - 2.400; - 0.800; 0.000; 3.600. Экспликация полов Конструкции железобетонные Общие данные Схема расположения фундаментов. Фрагменты 1, 2 Схема расположения фундаментов. Фрагменты 3 - 7. Узел 1. Сечения Схема расположения фундаментов. Виды 7-7, 8-8. Узел 2. Сечения Схема расположения фундаментов. Виды 9-9 - 17-17. Сечения Схема расположения фундаментов. Виды 28-28, 29-29. Спецификация элементов Фундаменты монолитные Фм1,2,3,4 Фундаменты монолитные Фм5, Фм6 Фундаменты монолитные Фм7,8,15 Фундаменты монолитные Фм9,10,17 Фундаменты монолитные Фм11,12,13,14 Фундаменты монолитные Фм16,18,19 Насосное отделение. Схема расположения элементов подземного хозяйства КТП. Схема расположения каналов и приямков. Сечения. Узлы Схема расположения элементов подземного хозяйства в осях 5 - 11 Схема расположения элементов каркаса в осях 1 - 7 Схема расположения плит покрытия в осях 1 - 7 Схема расположения стеновых панелей в осях 1 - 7 Схема расположения стеновых панелей в осях 1 - 7. Фрагменты Схема расположения элементов каркаса в осях 8 - 11 Схема расположения плит покрытия и перекрытия в осях 8 - 11 Схема расположения плит покрытия и перекрытия. Участок монолитный Ум1. Вентшахта Схемы расположения стеновых панелей в осях 8 - 11 Схема расположения лестничных маршей, проступей, площадок. Разрез 1-1 Площадка Пм1 Схема расположения элементов венткамеры. Разрезы 1-1 - 4-4. Узлы I - V Фильтры. Схема расположения стеновых панелей и монолитных участков Фильтры. Виды 1-1, 2-2, 5-5. Разрезы 3-3, 4-4. Узлы I - IV Фильтры. Днище монолитное. Опалубочный чертеж. План. Разрезы. Узлы Фильтры. Днище монолитное. Армирование. Схемы расположения каркасов, нижних и верхних сеток. Узел I Фильтры. Днище монолитное. Армирование. Узлы II и III. Сечения Фильтры. Участки монолитные Ум1 - Ум6. Опалубочные чертежи Фильтры. Участки монолитные Ум1 - Ум6. Армирование. Спецификация Входная камера. Общие виды Входная камера. Армирование Зал фильтров. Схема расположения плит перекрытия на отм. 3.600. Сечения 1-1 - 4-4 Зал фильтров. Перекрытие на отм. 3.600. Разрезы 5-5 - 9-9. Участки монолитные Ум1 - Ум3, Ум11 Зал фильтров. Перекрытие на отм. 3.600. Участки монолитные Ум4 - Ум10 Насосное отделение. Площадка на отм. 0.000 Конструкции металлические Общие данные. Ведомость металлоконструкций по видам профилей Общие данные. Техническая спецификация металла Схема расположения подвесных путей Насосное отделение. Схема расположения переходных площадок. Разрезы 1-1 - 5-5 Насосное отделение. Схема расположения переходных площадок. Разрезы 6-6 - 19-19. Узел I Узлы к схемам расположения переходных площадок и балочной клетки перекрытия Зал фильтров. Переходные площадки и опоры Зал фильтров. Схема расположения балочной клетки перекрытия. Разрезы 1-1 - 5-5 Зал фильтров. Схема расположения балочной клетки перекрытия. Разрезы 6-6 - 13-13. Узлы I - IV Узлы к схеме расположения балочной клетки перекрытия Эвакуационная лестница Пожарные лестницы Связи Организация строительства График производства работ | Разработан: | ЦНИИЭП иженерного оборудования
| Утверждён: | 18.11.1985 Госгражданстрой (Gosgrazhdanstroy 346)
| Издан: | ЦИТП Госстроя СССР (CITP, Gosstroy (USSR) 1988 г. )
| Расположен в: |
|
                                                                   
|