Информационная система
«Ёшкин Кот»

Скачать базу одним архивом
Скачать обновления
История создания базы
Карта сайта

Скачать Типовой проект 111-135-60/1.2 Части 2; 3; 4. Разделы 2-1; 3; 4. Отопление и вентиляция выше отм. 0.000. Вариант с параметрами теплоносителя 95 - 70 градусов Цельсия. Водоснабжение, канализация выше отм. 0.000. Газопровод

Дата актуализации: 10.08.2017

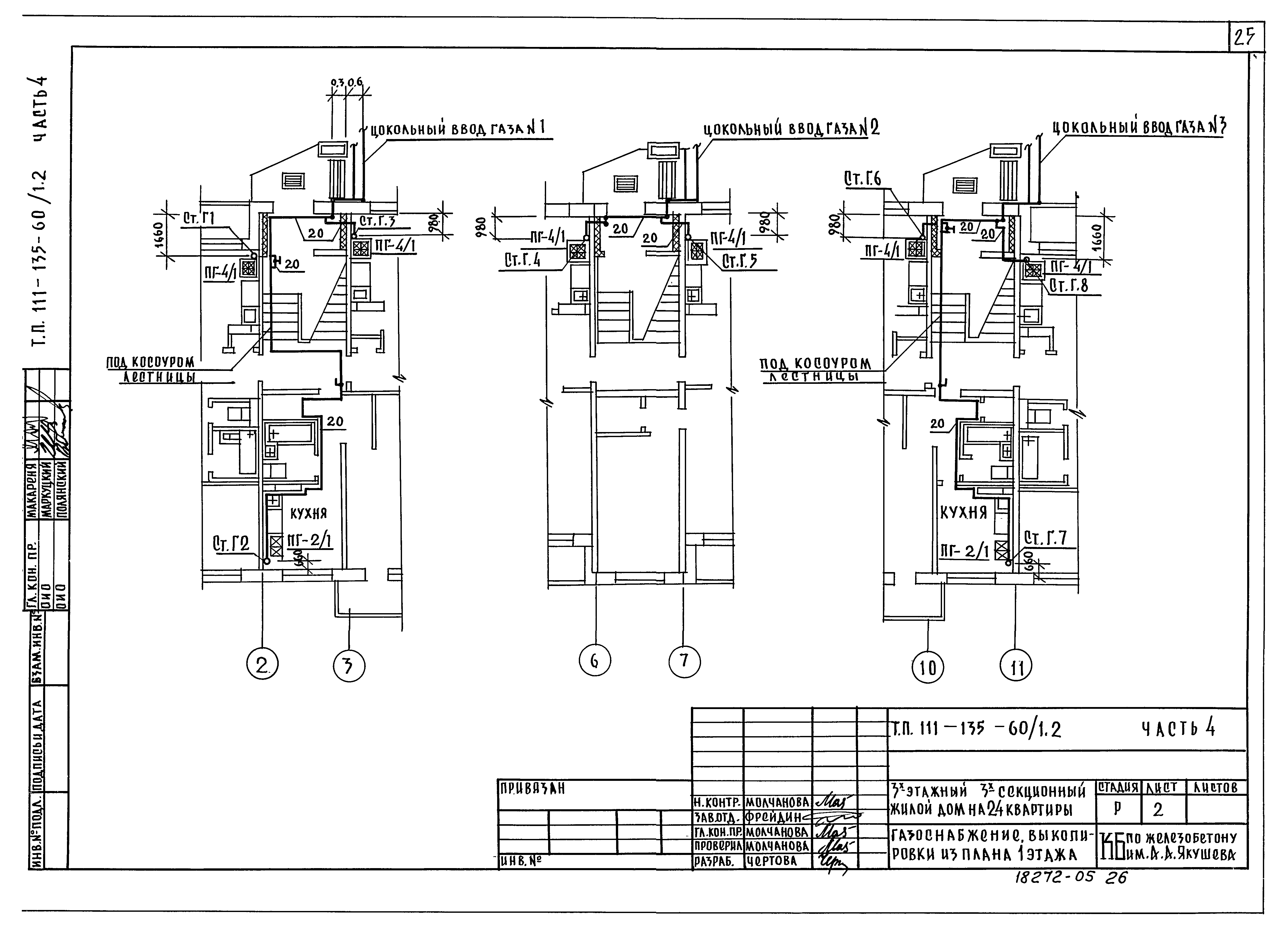
Типовой проект 111-135-60/1.2

Части 2; 3; 4. Разделы 2-1; 3; 4. Отопление и вентиляция выше отм. 0.000. Вариант с параметрами теплоносителя 95 - 70 градусов Цельсия. Водоснабжение, канализация выше отм. 0.000. Газопровод

Обозначение: Типовой проект 111-135-60/1.2
Обозначение англ: 111-135-60/1.2
Статус:не определен законодательством
Название рус.:Части 2; 3; 4. Разделы 2-1; 3; 4. Отопление и вентиляция выше отм. 0.000. Вариант с параметрами теплоносителя 95 - 70 градусов Цельсия. Водоснабжение, канализация выше отм. 0.000. Газопровод
Дата добавления в базу:01.10.2014
Дата актуализации:05.05.2017
Дата введения:26.05.1983
Оглавление:Отопление и вентиляция
   Общие данные
   План 1-го этажа в осях 1 - 8
   План 1-го этажа в осях 8 - 12. Вариант с объемными санкабинами
   План 2-го этажа в осях 1 - 8
   План 2-го этажа в осях 8 - 12
   План 3-го этажа в осях 1 - 8
   План 3-го этажа в осях 8 - 12
   Схемы стояков отопления тип 1 - 9
   Схемы стояков отопления тип 10 - 15; I-IА
Водоснабжение и канализация
   Общие данные
   Спецификация
   План 1 этажа
   Схемы стояков
   План чердака. Схемы канализации
   Монтажный чертеж раздельного санитарного узла
   Монтажный чертеж совмещенного санитарного узла
   Монтажный чертеж кухонного узла, полотенцесушитель
Газоснабжение
   Общие данные
   Выкопировки из плана 1 этажа
   Схемы газоснабжения
Разработан: КБ по железобетону им. А.А. Якушева
Утверждён:03.10.1974 Госстрой РСФСР (Russian Federation Gosstroy 56)
Расположен в:Техническая документация Строительство Справочные документы Типовые строительные конструкции, изделия и узлы Общероссийский строительный каталог Жилые здания для строительства в сельской местности Жилые дома панельные Серия 135
Типовой проект 111-135-60/1.2Типовой проект 111-135-60/1.2Типовой проект 111-135-60/1.2Типовой проект 111-135-60/1.2Типовой проект 111-135-60/1.2Типовой проект 111-135-60/1.2Типовой проект 111-135-60/1.2Типовой проект 111-135-60/1.2Типовой проект 111-135-60/1.2Типовой проект 111-135-60/1.2Типовой проект 111-135-60/1.2Типовой проект 111-135-60/1.2Типовой проект 111-135-60/1.2Типовой проект 111-135-60/1.2Типовой проект 111-135-60/1.2Типовой проект 111-135-60/1.2Типовой проект 111-135-60/1.2Типовой проект 111-135-60/1.2Типовой проект 111-135-60/1.2Типовой проект 111-135-60/1.2Типовой проект 111-135-60/1.2Типовой проект 111-135-60/1.2Типовой проект 111-135-60/1.2Типовой проект 111-135-60/1.2Типовой проект 111-135-60/1.2Типовой проект 111-135-60/1.2Типовой проект 111-135-60/1.2

© 2013 Ёшкин Кот :-) Карта сайта