Информационная система
«Ёшкин Кот»

Скачать базу одним архивом
Скачать обновления
История создания базы
Карта сайта

Скачать Типовой проект 111-135-60/1.2 Часть 01. Раздел 01-1. Архитектурно-строительные чертежи ниже отм. 0.000. Здание с ленточными фундаментами, с подвалом

Дата актуализации: 10.08.2017

Типовой проект 111-135-60/1.2

Часть 01. Раздел 01-1. Архитектурно-строительные чертежи ниже отм. 0.000. Здание с ленточными фундаментами, с подвалом

Обозначение: Типовой проект 111-135-60/1.2
Обозначение англ: 111-135-60/1.2
Статус:не определен законодательством
Название рус.:Часть 01. Раздел 01-1. Архитектурно-строительные чертежи ниже отм. 0.000. Здание с ленточными фундаментами, с подвалом
Дата добавления в базу:01.10.2014
Дата актуализации:05.05.2017
Дата введения:26.05.1983
Оглавление:Общие данные
Указания по производству работ в зимнее время. Схема нормативных нагрузок
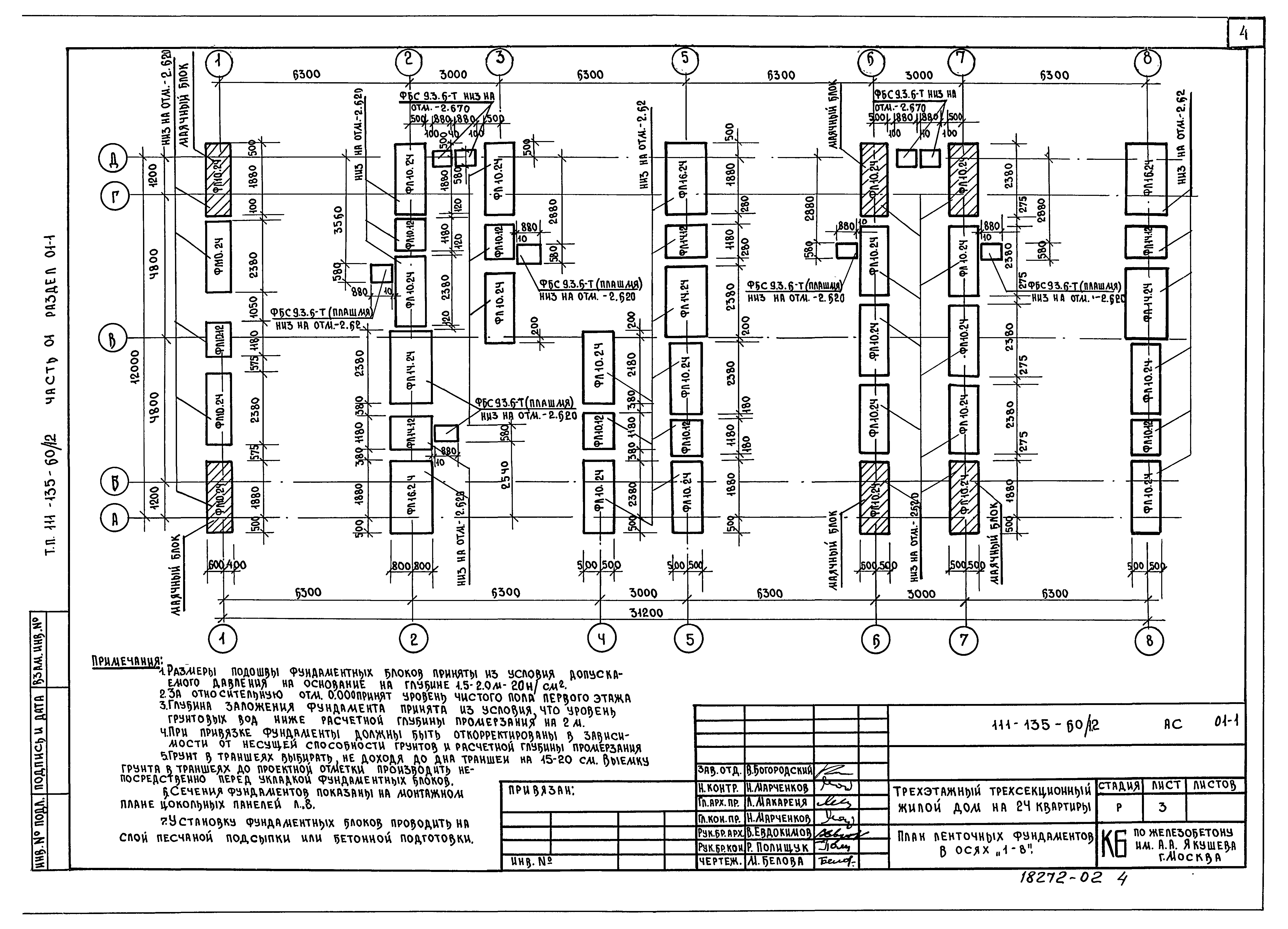
План ленточных фундаментов в осях "1 - 8"
План ленточных фундаментов в осях "8 - 12". Сечения 9-9, 10-10
План подвала в осях "1 - 8"
План подвала в осях "8 - 12". Разрез 1-1
Разрезы I-I, II-II
Монтажный план цокольных панелей в осях "1 - 8"
Монтажный план цокольных панелей в осях "8 - 12". Разрез III-III
Сечения "1-1" - "8-8"
Монтажные планы перекрытия над подвалом. Вариант 1
Монтажный план перекрытия над подвалом. Вариант 2
Спецификация сборных железобетонных элементов ниже отм. 0.000
Спецификация металлических и деревянных изделий ниже отм. 0.000
Разработан: КБ по железобетону им. А.А. Якушева
Утверждён:03.10.1974 Госстрой РСФСР (Russian Federation Gosstroy 56)
Расположен в:Техническая документация Строительство Справочные документы Типовые строительные конструкции, изделия и узлы Общероссийский строительный каталог Жилые здания для строительства в сельской местности Жилые дома панельные Серия 135
Типовой проект 111-135-60/1.2Типовой проект 111-135-60/1.2Типовой проект 111-135-60/1.2Типовой проект 111-135-60/1.2Типовой проект 111-135-60/1.2Типовой проект 111-135-60/1.2Типовой проект 111-135-60/1.2Типовой проект 111-135-60/1.2Типовой проект 111-135-60/1.2Типовой проект 111-135-60/1.2Типовой проект 111-135-60/1.2Типовой проект 111-135-60/1.2Типовой проект 111-135-60/1.2Типовой проект 111-135-60/1.2Типовой проект 111-135-60/1.2Типовой проект 111-135-60/1.2

© 2013 Ёшкин Кот :-) Карта сайта