Скачать Типовой проект 264-12-318.92 Альбом 5. Пояснительная записка. Внутренний водопровод и канализация. Установки водяного пожаротушения (технология, оборудование). Установки водяного пожаротушения (сигнализация)Дата актуализации: 10.08.2017 Типовой проект 264-12-318.92
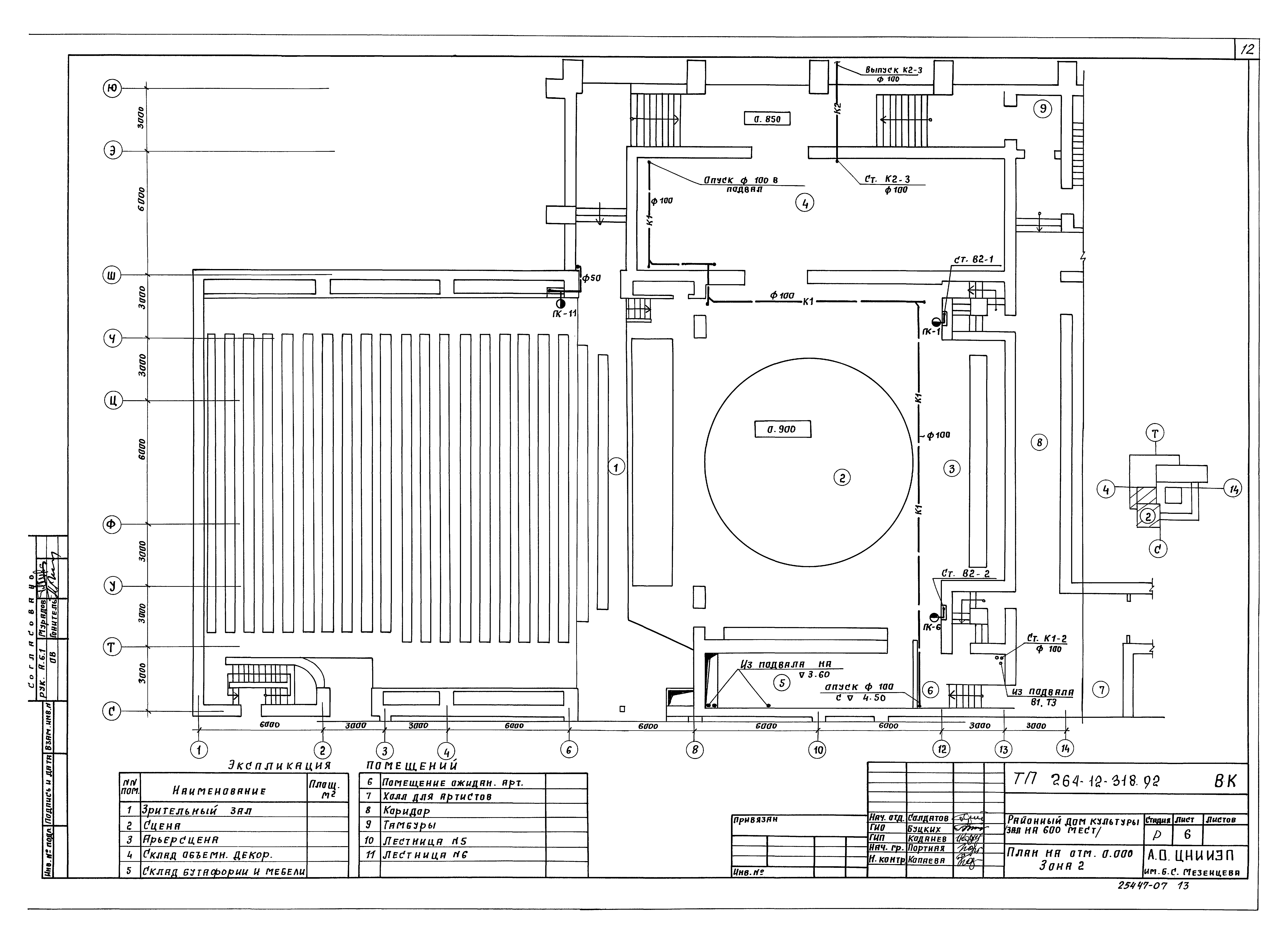
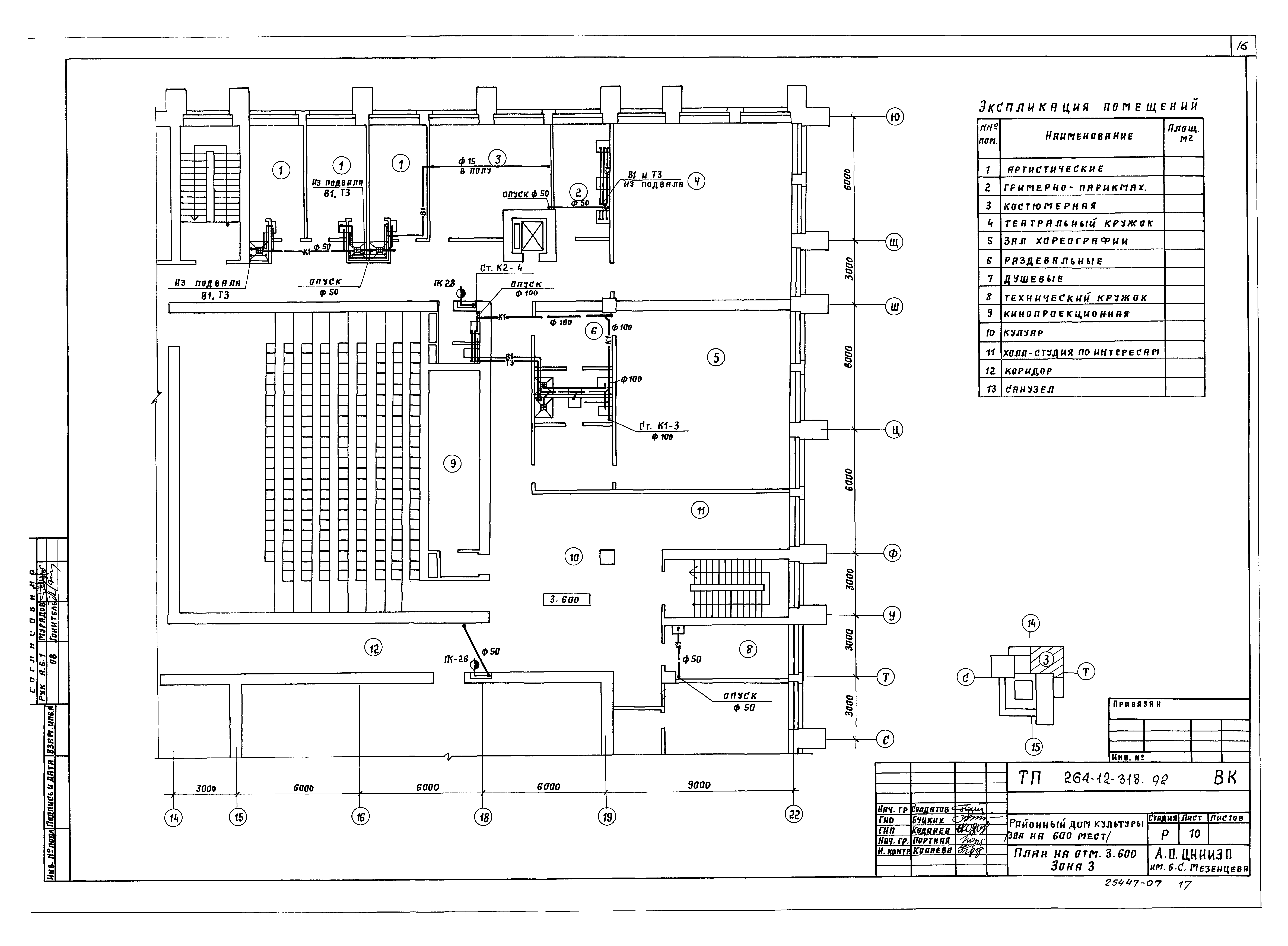
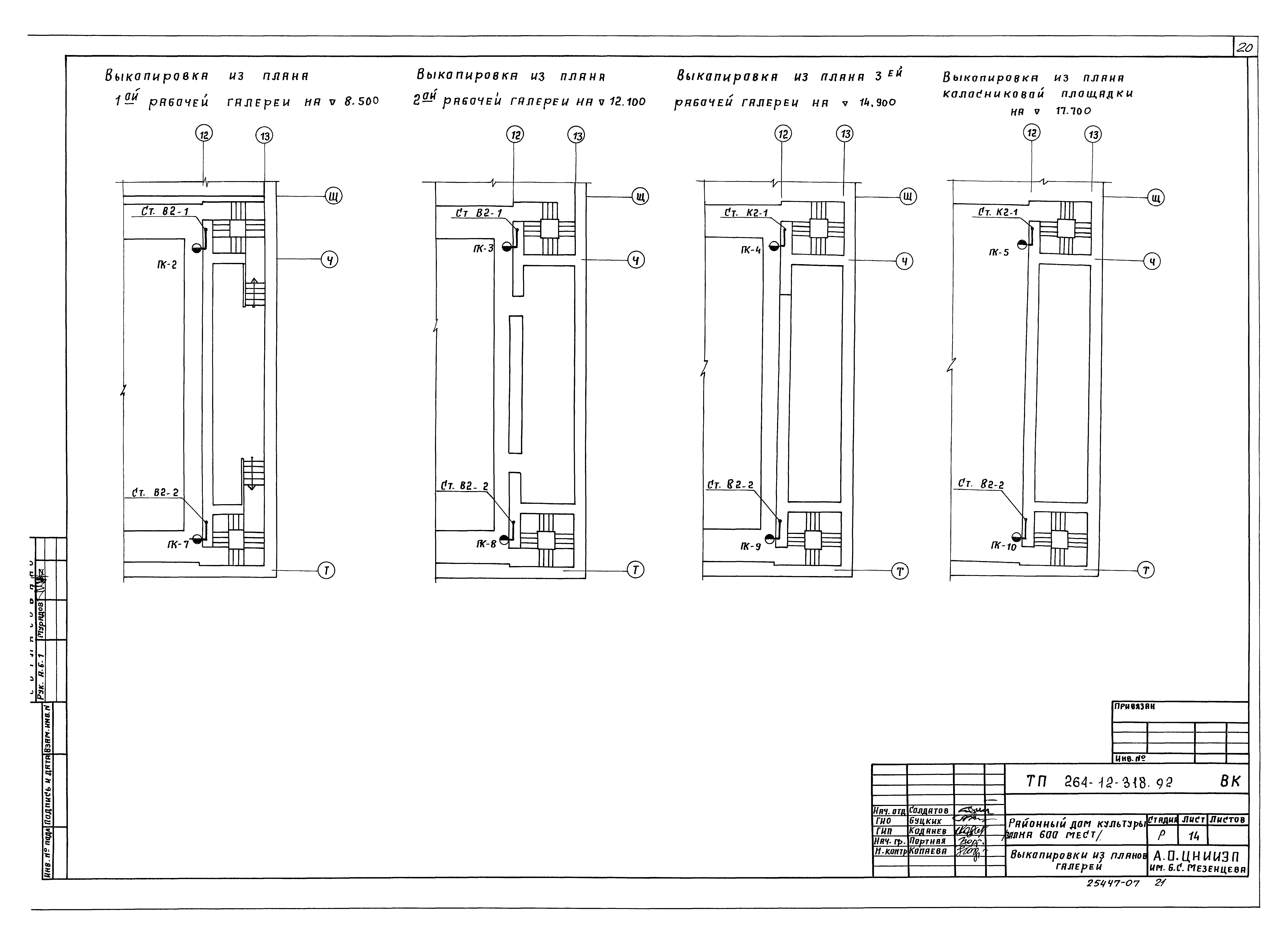
Альбом 5. Пояснительная записка. Внутренний водопровод и канализация. Установки водяного пожаротушения (технология, оборудование). Установки водяного пожаротушения (сигнализация)Обозначение: | Типовой проект 264-12-318.92 | Обозначение англ: | 264-12-318.92 | Статус: | не определен законодательством | Название рус.: | Альбом 5. Пояснительная записка. Внутренний водопровод и канализация. Установки водяного пожаротушения (технология, оборудование). Установки водяного пожаротушения (сигнализация) | Дата добавления в базу: | 01.10.2014 | Дата актуализации: | 05.05.2017 | Дата введения: | 17.09.1992 | Оглавление: | Пояснительная записка Водопровод и канализация Общие данные План подвала. Зона 1 План на отм. 0.000. Зона 1 План на отм. 3.600 и 4.500. Зона 1 План подвала. Зона 2 План на отм. 0.000. Зона 2 План на отм. 3.600. Зона 2 План подвала. Зона 3 План на отм. 0.000. Зона 3 План на отм. 3.600. Зона 3 План подвала. Зона 4 План на отм. 0.000. Зона 4 План на отм. 3.600. Зона 4 Выкопировка из планов галерей План кровли Схема систем В1, Т3 и Т4 Схема системы В2 Схемы систем К1 и К3 Схемы систем К2 Водяное автоматическое пожаротушение (технология, управление и сигнализация) Общие данные План подвала с трубопроводами секций №1, 2, 3, 4, 5, 6 План 1-го этажа с трубопроводами секций №1, 2, 3, 4, 5 План 1-й и 2-й рабочих галерей с трубопроводами секций №1, 3, 4 План 3-й рабочей галереи и колосников сцены с трубопроводами секций №1, 3, 4 План покрытия сцены с трубопроводами секций №1, 4 Схема спринклеров 2-й и 3-й рабочих галерей арьерсцены, трюма и покрытия сцены, ВС-100, секция №1 Схема спринклеров завесы над подсобными помещениями, ВС-100, секция №2 Схема дренчеров под 1-й рабочей галереей и колосниками сцены, КЗС-150, секция №3 Схема дренчеров завесы над дверными проемами сцены, арьерсцены и трюма, КЗС-100, секция №4 Схема дренчеров завесы портала сцены, КЗС-65, секция №5. Схема дренчеров завесы сейфа, секция №6 Схема побудительной сети Разрезы I-I, II-II Насосная станция противопожарного водоснабжения. План. Разрез I-I Аксонометрическая схема трубопроводов насосной станции противопожарного водоснабжения Узел управления спринклерной установки с клапаном ВС-100 Узел управления дренчерной установки с клапаном КЗС-150 с гидравлическим пуском Узел управления дренчерной установки с клапаном КЗС-100 с гидравлическим пуском Узел управления дренчерной установки с клапаном КЗС-65 с гидравлическим пуском Детали крепления трубопроводов Насосная станция противопожарного водоснабжения с расстановкой оборудования Шкафы ШН-1, ШУ-1, ящик ЯС-1, магнитный пускатель КМ319. Схема принципиальная однолинейная Приводы 320, 321. Аппаратура, устанавливаемая в шкафах управления и сигнализации Приводы 320, 321. Схема управления и сигнализации | Разработан: | ЦНИИЭП им. Б.С. Мезенцева Госкомархитектуры
| Утверждён: | 29.11.1991 Госкомархитектура (2-129)
| Расположен в: |
|
                                                        
|