Скачать Типовой проект 813-4-2.94 Альбом 1. Пояснительная записка. Технология производства. Холодоснабжение. Автоматизация технологических процессов. Электроснабжение, силовое электрооборудование и электрическое освещение. Связь и сигнализация. Архитектурно-строительные решения. Отопление и вентиляция. Внутренние водопровод и канализацияДата актуализации: 10.08.2017 Типовой проект 813-4-2.94
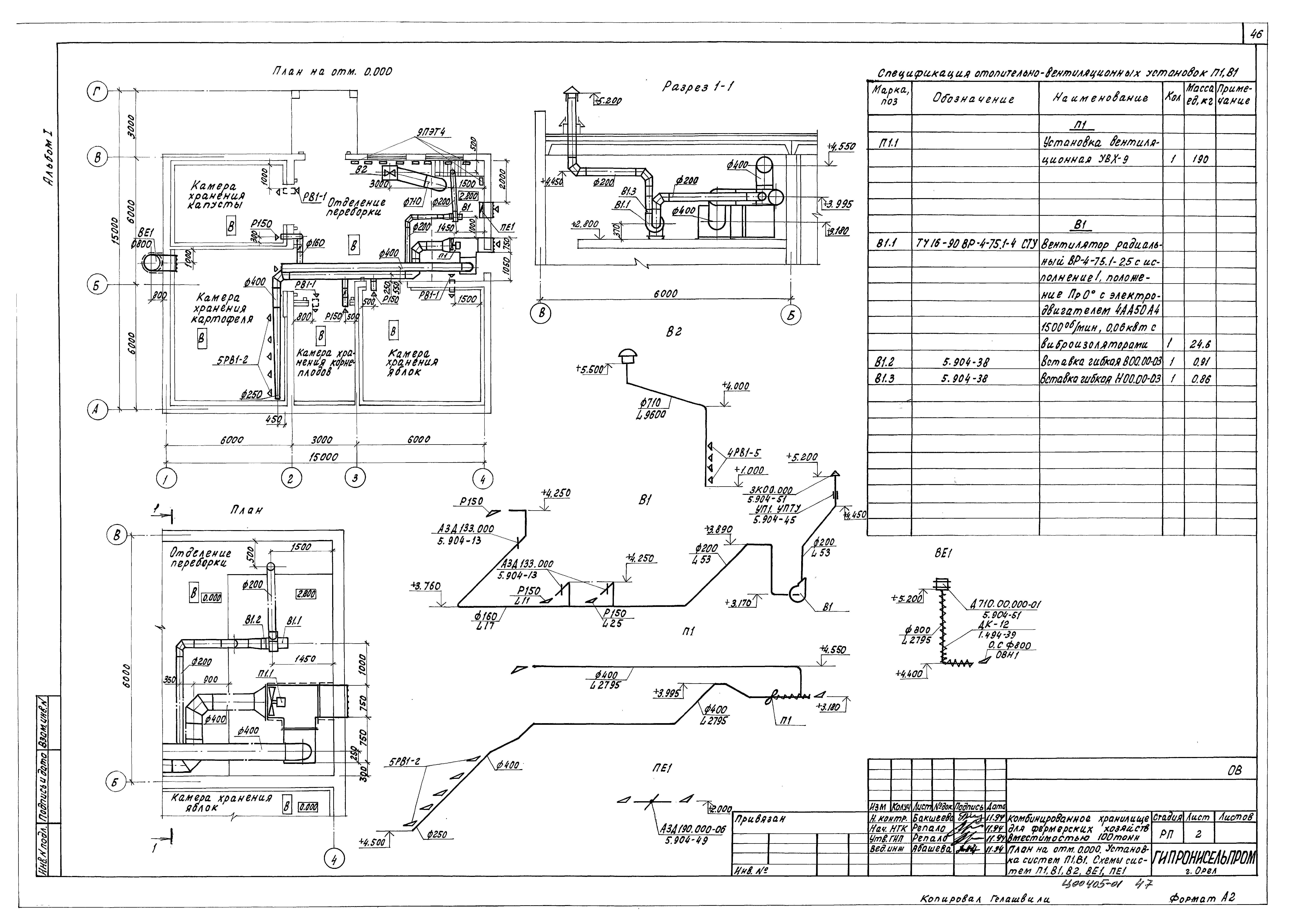
Альбом 1. Пояснительная записка. Технология производства. Холодоснабжение. Автоматизация технологических процессов. Электроснабжение, силовое электрооборудование и электрическое освещение. Связь и сигнализация. Архитектурно-строительные решения. Отопление и вентиляция. Внутренние водопровод и канализацияОбозначение: | Типовой проект 813-4-2.94 | Обозначение англ: | 813-4-2.94 | Статус: | не определен законодательством | Название рус.: | Альбом 1. Пояснительная записка. Технология производства. Холодоснабжение. Автоматизация технологических процессов. Электроснабжение, силовое электрооборудование и электрическое освещение. Связь и сигнализация. Архитектурно-строительные решения. Отопление и вентиляция. Внутренние водопровод и канализация | Дата добавления в базу: | 01.10.2014 | Дата актуализации: | 05.05.2017 | Дата введения: | 28.12.1994 | Оглавление: | Содержание альбома Пояснительная записка Технология производства Общие данные План расположения. Разрезы 1-1, 2-2. Узлы I, II. Сечение 3-3 Холодоснабжение Общие данные План на отм. 0.000 между осями 1…4; А…Г. Узел крепления воздухоохладителя Аксонометрическая схема разводки хладоновых трубопроводов Автоматизация технологических процессов Общие данные Приточная система П1. Схема автоматизации Вытяжная установка В1. Схемы электрические Регулирование температуры в зоне холодильных машин. Схемы электрические Электрообогрев помещений. Схемы электрические Приточная система П1. Схема соединений внешних проводок Холодильная машина М1 (М2). Схема соединений внешних проводок План расположения Электроснабжение, силовое электрооборудование и электрическое освещение Общие данные Принципиальная схема распределительной сети шкафа ШР Принципиальная схема распределительной сети шкафов ШУ-1, ШУ-2 Планы расположения силового электрооборудования на отм. 0.000 между осями 1…4; А…Г и на отм. 2.800 между осями 4, Б…В Планы расположения лучистых нагревателей в камерах хранения и приемных устройств Планы сети электрического освещения на отм. 0.000 между осями 1…4; А…Г и на отм. 2.800 между осями 4, В Связь и сигнализация Общие данные. План расположения сигнализации безопасности на отм. 0.000 Архитектурно-строительные решения Общие данные Планы на отм. 0.000. Разрез 1-1. Фасад 4 - 1, А - Г. Схема расположения элементов заполнения оконного проема План кровли. Схема расположения элементов сетчатого ограждения. Узлы 1…3 Схема расположения элементов теплоизоляции кирпичных стен Схема расположения отверстий, закладных деталей в стенах. Схема расположения асбестоцементных листов в покрытии навеса. Узлы 4, 5 Схема расположения фундаментов. Фундаменты монолитные Фм2, ФОм1 Схема расположения плит покрытия. Узел 6 Схемы расположения элементов покрытия навеса и площадки ПМ1 Строительные изделия Изделие соединительное МС1 Изделие соединительное МС2 Анкер А1 Изделие закладное МН1 Изделие закладное (МН2, МН3) Элемент фасонный МН4 Отопление и вентиляция Общие данные План на отм. 0.000. Установка систем П1, В1. Схемы систем П1, В1, В2, ВЕ1, ПЕ1 Чертежи общих видов нетиповых конструкций систем отопления и вентиляции ОВН Внутренние водопровод и канализация Общие данные. План на отм. 0.000. Схема системы К13 | Разработан: | ФГУП Гипронисельпром (Гипронисельпром)
| Утверждён: | 07.12.1994 Министерство сельского хозяйства и продовольствия Российской Федерации (54)
| Расположен в: |
|
                                               
|