Информационная система
«Ёшкин Кот»

Скачать базу одним архивом
Скачать обновления
История создания базы
Карта сайта

Скачать Типовой проект 707-2-30с.94 Альбом 2. Технологические решения. Системы объемоуказания. Антикоррозийная защита

Дата актуализации: 10.08.2017

Типовой проект 707-2-30с.94

Альбом 2. Технологические решения. Системы объемоуказания. Антикоррозийная защита

Обозначение: Типовой проект 707-2-30с.94
Обозначение англ: 707-2-30с.94
Статус:не определен законодательством
Название рус.:Альбом 2. Технологические решения. Системы объемоуказания. Антикоррозийная защита
Дата добавления в базу:01.10.2014
Дата актуализации:05.05.2017
Дата введения:16.12.1993
Оглавление:Технологическая часть
   Общие данные
   Схема трубопроводов
   Монтажный чертеж трубопроводов. План на отм. 0.000
   Вместимость 100 и 300 куб. м. Монтажный чертеж трубопроводов. Разрез А-А
   Вместимость 600 куб. м. Монтажный чертеж трубопроводов. Разрез А-А
   Монтажный чертеж трубопроводов. Разрезы Б-Б и В-В
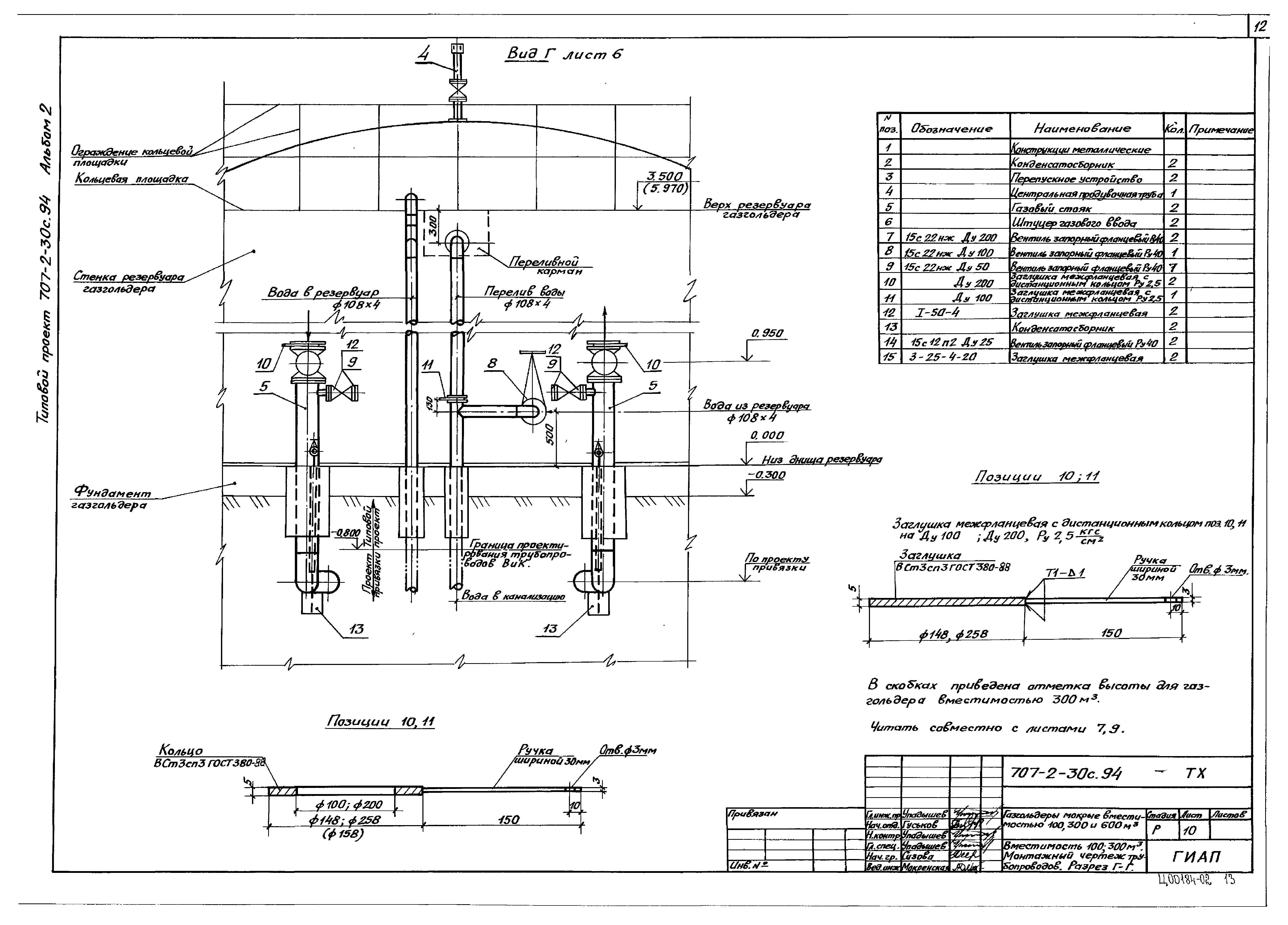
   Вместимость 100 и 300 куб. м. Монтажный чертеж трубопроводов. Разрез Г-Г
   Вместимость 600 куб. м. Монтажный чертеж трубопроводов. Разрез Г-Г
   Резервуар газгольдера. Планы, разрезы и схема обогрева №1 (без утепления)
   Резервуар газгольдера. Планы, разрезы и схема обогрева №2 (с утеплением)
   Установка и крепление нагревательных приборов в резервуарах
   Узлы крепления трубопроводов к площадкам резервуара
   Шкаф датчиков объемоуказания газа. План, разрезы, схема обогрева
Системы объемоуказания
   Общие данные
   Принципиальная схема непрерывного объемоуказания
   Принципиальные схемы подключения сельсин-датчиков и сельсин-приемников
   Диаграмма работы контактов командоаппарата
   Монтажная схема сельсин-датчика и командоаппарата
   Монтажная схема щита сигнализации для нормальных помещений
Антикоррозийная защита
   Общие данные
   Конструкции антикоррозийной защиты
Разработан: ГИАП
Утверждён:16.12.1993 Роскомхимнефтепром (Roskomkhimnefteprom 09/1-1-14Б)
Расположен в:Техническая документация Строительство Справочные документы Типовые строительные конструкции, изделия и узлы Общероссийский строительный каталог Промышленные предприятия, здания и сооружения Предприятия, здания и сооружения складские Газгольдеры
Заменяет собой:
Типовой проект 707-2-30с.94Типовой проект 707-2-30с.94Типовой проект 707-2-30с.94Типовой проект 707-2-30с.94Типовой проект 707-2-30с.94Типовой проект 707-2-30с.94Типовой проект 707-2-30с.94Типовой проект 707-2-30с.94Типовой проект 707-2-30с.94Типовой проект 707-2-30с.94Типовой проект 707-2-30с.94Типовой проект 707-2-30с.94Типовой проект 707-2-30с.94Типовой проект 707-2-30с.94Типовой проект 707-2-30с.94Типовой проект 707-2-30с.94Типовой проект 707-2-30с.94Типовой проект 707-2-30с.94Типовой проект 707-2-30с.94Типовой проект 707-2-30с.94Типовой проект 707-2-30с.94Типовой проект 707-2-30с.94Типовой проект 707-2-30с.94Типовой проект 707-2-30с.94Типовой проект 707-2-30с.94Типовой проект 707-2-30с.94Типовой проект 707-2-30с.94Типовой проект 707-2-30с.94Типовой проект 707-2-30с.94Типовой проект 707-2-30с.94Типовой проект 707-2-30с.94

© 2013 Ёшкин Кот :-) Карта сайта