Информационная система
«Ёшкин Кот»

Скачать базу одним архивом
Скачать обновления
История создания базы
Карта сайта

Скачать Типовой проект 411-2-144 Альбом I. Общая пояснительная записка. Технологические чертежи. Архитектурно-строительные решения. Конструкции железобетонные

Дата актуализации: 10.08.2017

Типовой проект 411-2-144

Альбом I. Общая пояснительная записка. Технологические чертежи. Архитектурно-строительные решения. Конструкции железобетонные

Обозначение: Типовой проект 411-2-144
Обозначение англ: 411-2-144
Статус:не определен законодательством
Название рус.:Альбом I. Общая пояснительная записка. Технологические чертежи. Архитектурно-строительные решения. Конструкции железобетонные
Дата добавления в базу:01.10.2014
Дата актуализации:05.05.2017
Дата введения:31.07.1986
Оглавление:Содержание альбома
Пояснительная записка
Технологические решения
   Общие данные
   План расположения технологического оборудования
   Схема разводки сжатого воздуха
Архитектурные решения
   Общие данные
   Ведомость перемычек
   Планы на отм. 0.000
   Планы на отм. - 2.400 и - 2.900. План кровли. План венткамеры
   Разрезы. Узлы. Сечения. Планы полов
   Фасады
Конструкции железобетонные
   Общие данные
   План фундаментов из бутобетона, фрагмент 1
   Сечения 2-2 - 7-7 (фундаменты из бутобетона)
   Сечения 8-8, 9-9. Узел 1 (фундаменты из бутобетона)
   Узлы 2 - 4 (фундаменты из бутобетона)
   План фундаментов из сборных бетонных блоков, фрагмент 1
   Сечения 2-2, 3-3. Узлы 1, 2 (фундаменты сборные)
   Узлы 3, 4 (фундаменты сборные)
   Сечения 4-4 - 9-9 (фундаменты сборные, t = минус 20 градусов Цельсия)
   Сечения 20-20, раскладка блоков по осям 1, 2, 3, 4 (фундаменты сборные, t = минус 20 градусов Цельсия)
   Раскладка блоков по осям 5, 11, А, В, Г (фундаменты сборные, t = минус 20 градусов Цельсия)
   Сечения 4-4 - 9-9 (фундаменты сборные, t = минус 30 градусов Цельсия)
   Раскладка блоков по осям 1, 2, 3, 4 (фундаменты сборные, t = минус 30 градусов Цельсия)
   Раскладка блоков по осям 5, 11, А, В, Г (фундаменты сборные, t = минус 30 градусов Цельсия)
   Сечения 4-4 - 9-9 (фундаменты сборные, t = минус 40 градусов Цельсия)
   Раскладка блоков по осям 1, 2, 3, 4 (фундаменты сборные, t = минус 40 градусов Цельсия)
   Раскладка блоков по осям 5, 11, А, В, Г (фундаменты сборные, t = минус 40 градусов Цельсия)
   Фундаменты Фм1, Фм2. Узлы 1, 2
   Фундаменты Фм3, Фм4. Узел 3
   Фундаменты Фм5, Фм6. Узел 4
   Схема расположения фундаментов под оборудование, каналов и приямка
   Канал на отм. - 2.400, фундаменты бревнотаски вне цеха
   Фундамент ФОм1, опалубочный чертеж
   Армирование фундамента ФОм1. План, разрезы 1-1 - 3-3
   Армирование фундамента ФОм1. Сечения 4-4, 5-5
   Фундаменты под оборудование ФОм2, ФОм20 и ФОм21
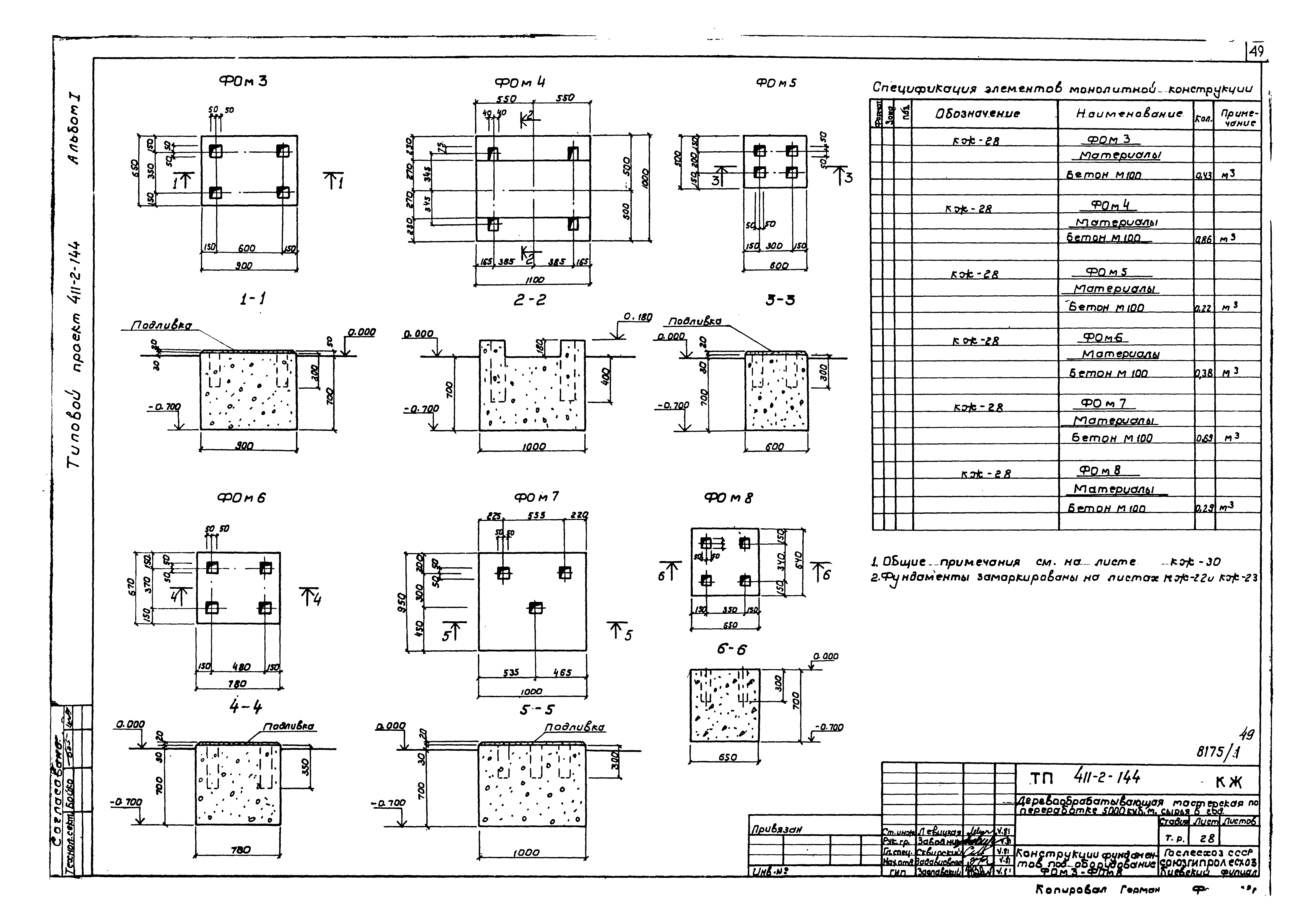
   Фундаменты под оборудование ФОм3 - ФОм8
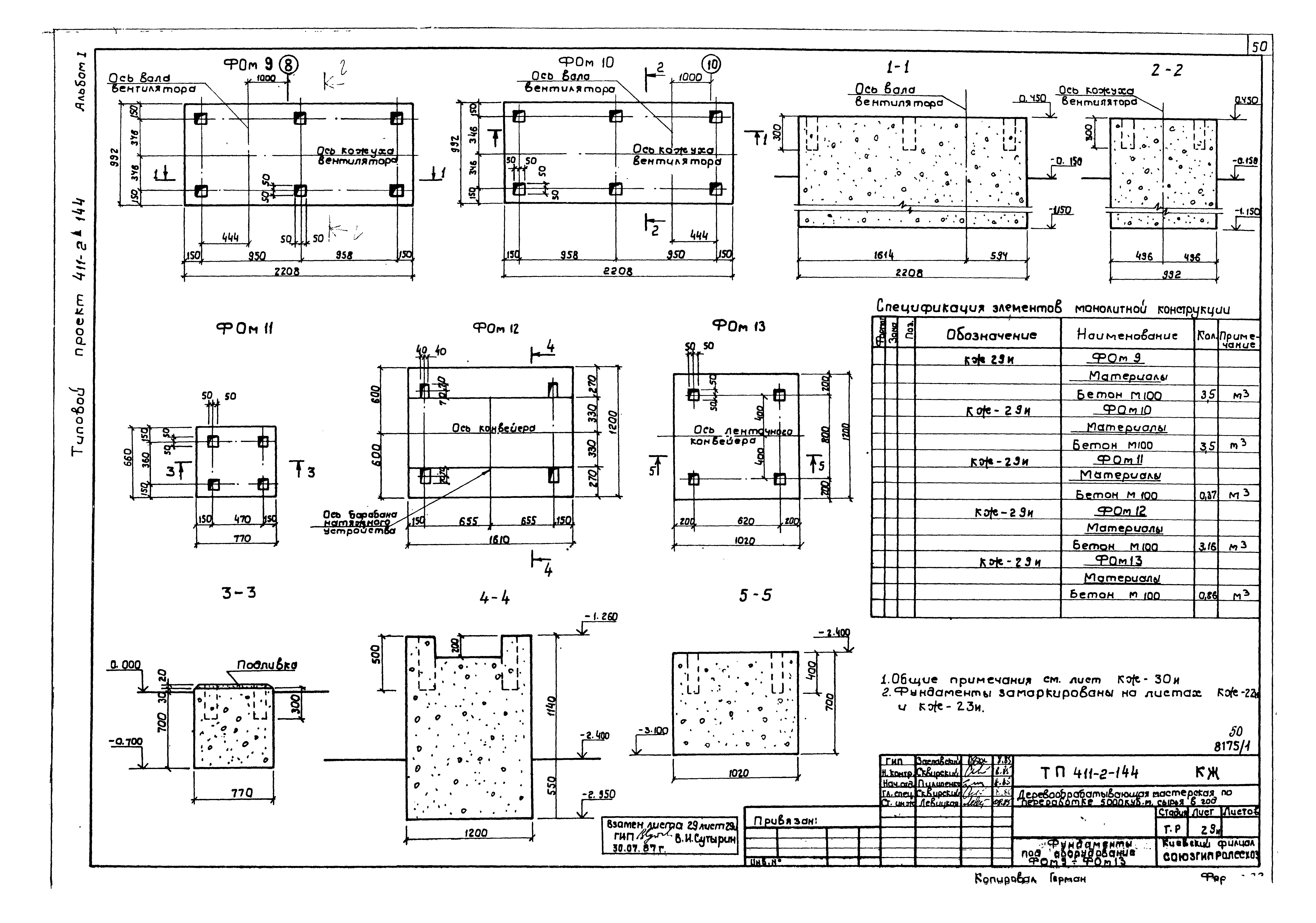
   Фундаменты под оборудование ФОм9 - ФОм13
   Фундаменты под оборудование ФОм14 - ФОм19
   Схема расположения колонн, балок и опорных подушек
   Схемы расположения плит покрытия и перекрытия
   Схема расположения панелей стен и стальных стоек
   Нетиповые элементы
   Монолитные участки Ум1 - Ум4
   Переходной мостик ПМ1, металлические лестницы Л1, Л2
   Эстакада пневмотранспорта
   Эстакада транспортера для выноса отходов. Верхнее строение ВС1
   Узлы 1 - 5 верхнего строения ВС1
   Короб ленточного транспортера КД1
   Опора под бункер БУ1. Узел 1
   Узлы 2, 3, 6. Стойки СК1 - СК3
   Сетки С1 - С5
   Сетки С6 - С9
   Сетки С10 - С12, анкеры А1, А2, траверса Т1. Закладные изделия МН1 - МН6
   Закладные изделия МН7 - МН11. Крышка КР1, соединительные изделия МС1, МС2
   Молниезащита
Разработан: Союзгипролесхоз
Утверждён:31.07.1986 Гослесхоз СССР (USSR Gosleskhoz 24)
Расположен в:Техническая документация Строительство Справочные документы Типовые строительные конструкции, изделия и узлы Общероссийский строительный каталог Промышленные предприятия, здания и сооружения Предприятия, здания и сооружения промышленности и электроэнергетики Промышленность деревообрабатывающая Здания общего назначения
Типовой проект 411-2-144Типовой проект 411-2-144Типовой проект 411-2-144Типовой проект 411-2-144Типовой проект 411-2-144Типовой проект 411-2-144Типовой проект 411-2-144Типовой проект 411-2-144Типовой проект 411-2-144Типовой проект 411-2-144Типовой проект 411-2-144Типовой проект 411-2-144Типовой проект 411-2-144Типовой проект 411-2-144Типовой проект 411-2-144Типовой проект 411-2-144Типовой проект 411-2-144Типовой проект 411-2-144Типовой проект 411-2-144Типовой проект 411-2-144Типовой проект 411-2-144Типовой проект 411-2-144Типовой проект 411-2-144Типовой проект 411-2-144Типовой проект 411-2-144Типовой проект 411-2-144Типовой проект 411-2-144Типовой проект 411-2-144Типовой проект 411-2-144Типовой проект 411-2-144Типовой проект 411-2-144Типовой проект 411-2-144Типовой проект 411-2-144Типовой проект 411-2-144Типовой проект 411-2-144Типовой проект 411-2-144Типовой проект 411-2-144Типовой проект 411-2-144Типовой проект 411-2-144Типовой проект 411-2-144Типовой проект 411-2-144Типовой проект 411-2-144Типовой проект 411-2-144Типовой проект 411-2-144Типовой проект 411-2-144Типовой проект 411-2-144Типовой проект 411-2-144Типовой проект 411-2-144Типовой проект 411-2-144Типовой проект 411-2-144Типовой проект 411-2-144Типовой проект 411-2-144Типовой проект 411-2-144Типовой проект 411-2-144Типовой проект 411-2-144Типовой проект 411-2-144Типовой проект 411-2-144Типовой проект 411-2-144Типовой проект 411-2-144Типовой проект 411-2-144Типовой проект 411-2-144Типовой проект 411-2-144Типовой проект 411-2-144Типовой проект 411-2-144Типовой проект 411-2-144Типовой проект 411-2-144Типовой проект 411-2-144Типовой проект 411-2-144Типовой проект 411-2-144Типовой проект 411-2-144

© 2013 Ёшкин Кот :-) Карта сайта