Скачать Типовой проект 901-3-181.83 Альбом II. Часть 1. Технологическая, санитарно-техническая части, нестандартизированное оборудованиеДата актуализации: 10.08.2017 Типовой проект 901-3-181.83
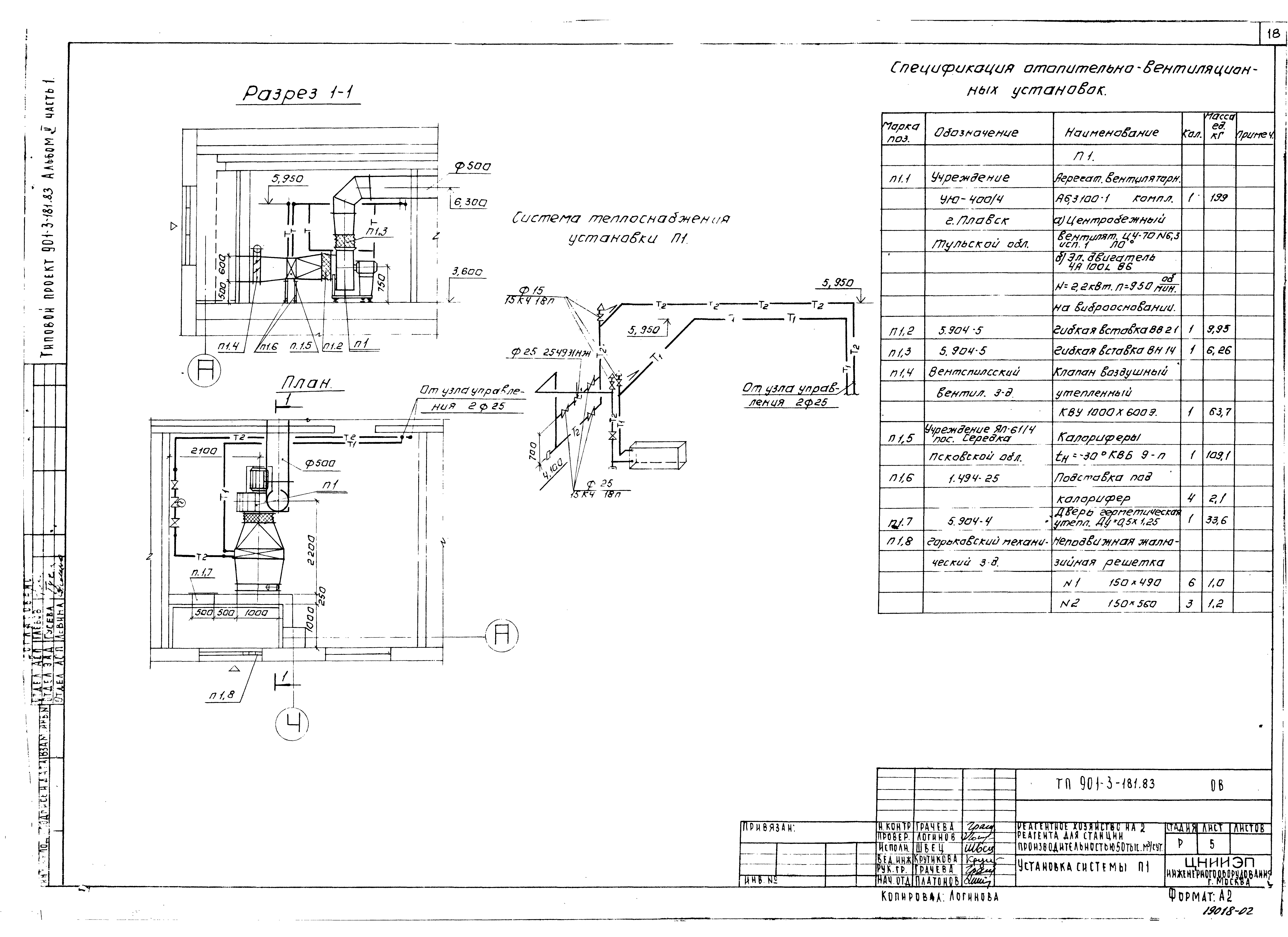
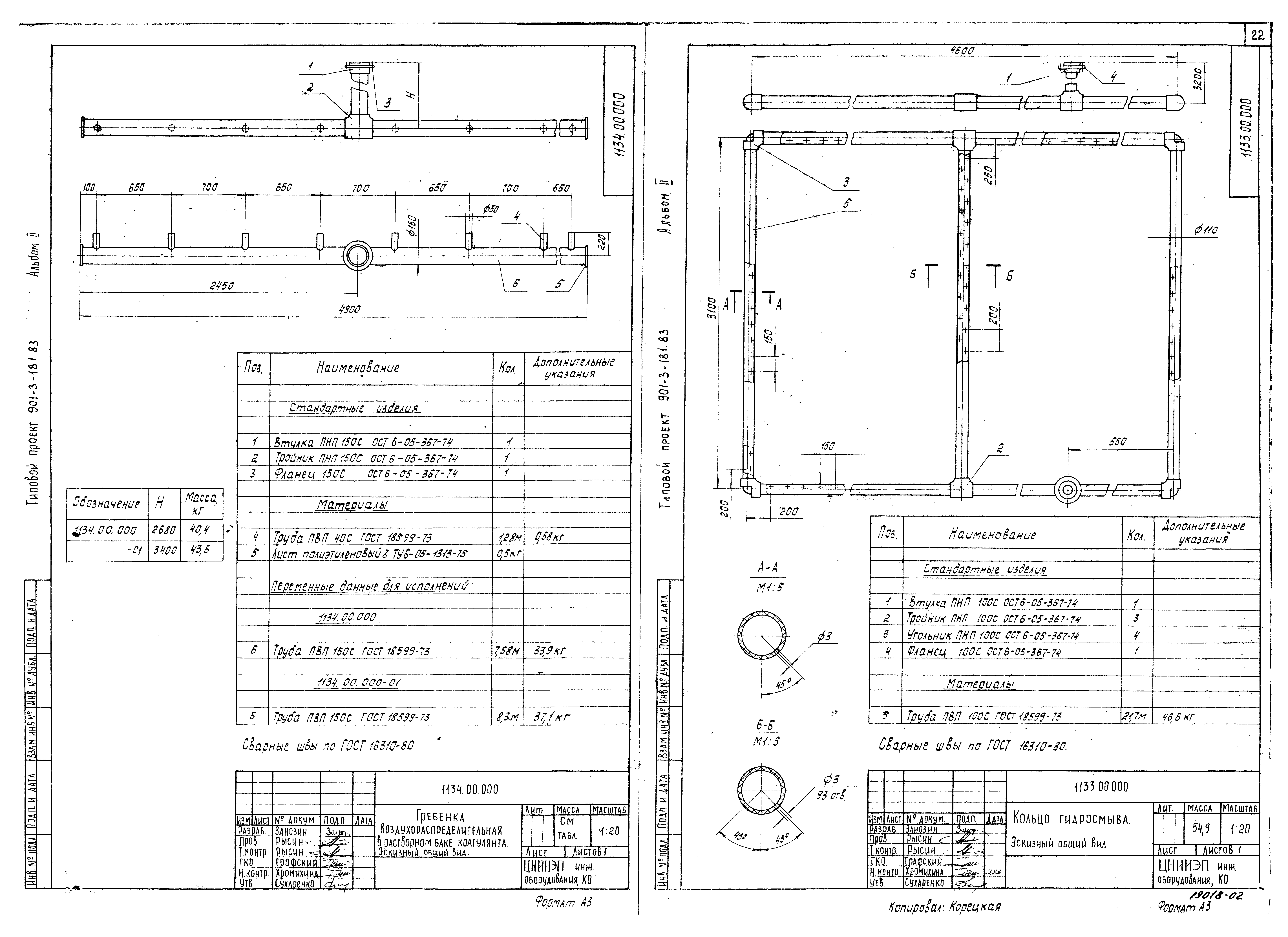
Альбом II. Часть 1. Технологическая, санитарно-техническая части, нестандартизированное оборудованиеОбозначение: | Типовой проект 901-3-181.83 | Обозначение англ: | 901-3-181.83 | Статус: | не определен законодательством | Название рус.: | Альбом II. Часть 1. Технологическая, санитарно-техническая части, нестандартизированное оборудование | Дата добавления в базу: | 01.10.2014 | Дата актуализации: | 05.05.2017 | Дата введения: | 21.06.1983 | Оглавление: | Технологическая часть Общие данные Общий вид. Планы на отм. 0.000; 0.600; 3.600 План на отм. 0.600; 0.000 и - 2.500 Разрез 1-1. Сечения А-А, Б-Б Разрезы 2-2, 3-3, 4-4 Аксонометрическая схема трубопроводов растворов реагента Аксонометрические схемы технологических трубопроводов Спецификация материалов и оборудования Механическая мастерская Санитарно-техническая часть Общие данные Внутренний водопровод, канализация, водостоки. Планы. Аксонометрические схемы Отопление и вентиляция Общие данные План на отм. 0.000; 0.600 и 3.600 Схема системы отопления Схемы систем П1, В1, В2, В5, В6, ВЕ1 и ВЕ2 Установка системы П1 Установки систем В1, В2, В5, В6 Конфузоры, переходы Воздуховод из асбестоцементных листов. Узлы соединений Нестандартизированное оборудование Гребенка воздухораспределительная в растворном баке коагулянта. Эскизный общий вид Кольцо гидросмыва. Эскизный общий вид Поплавок. Эскизный общий вид Гребенка воздухораспределительная в расходном баке коагулянта. Эскизный общий вид Гребенка воздухораспределительная в расходном баке полиакриламида. Эскизный общий вид | Разработан: | ЦНИИЭП иженерного оборудования
| Утверждён: | 31.10.1980 Госгражданстрой (Gosgrazhdanstroy 297)
| Издан: | ЦИТП Госстроя СССР (CITP, Gosstroy (USSR) 1988 г. )
| Расположен в: |
|
                       
|