| ||||||||||||||||||||||||||||||||||||
Скачать СП 146.13330.2012 Геронтологические центры, дома сестринского ухода, хосписы. Правила проектированияДата актуализации: 10.08.2017
|
| Обозначение: | СП 146.13330.2012 |
| Обозначение англ: | SP 146.13330.2012 |
| Статус: | действует |
| Название рус.: | Геронтологические центры, дома сестринского ухода, хосписы. Правила проектирования |
| Название англ.: | Gerontological centers, nursing homes, hospices. Design rules |
| Дата добавления в базу: | 01.10.2014 |
| Дата актуализации: | 05.05.2017 |
| Дата введения: | 01.07.2013 |
| Область применения: | Свод правил устанавливает основные положения и требования к размещению, участку, функциональной организации и архитектурно-планировочным решениям стационарных учреждений медико-социального обслуживания: геронтологических центров (учреждений), домов (отделений) сестринского ухода и хосписов. Свод правил распространяется на проектирование новых, реконструируемых, капитально ремонтируемых зданий гериатрических организаций и отделений. |
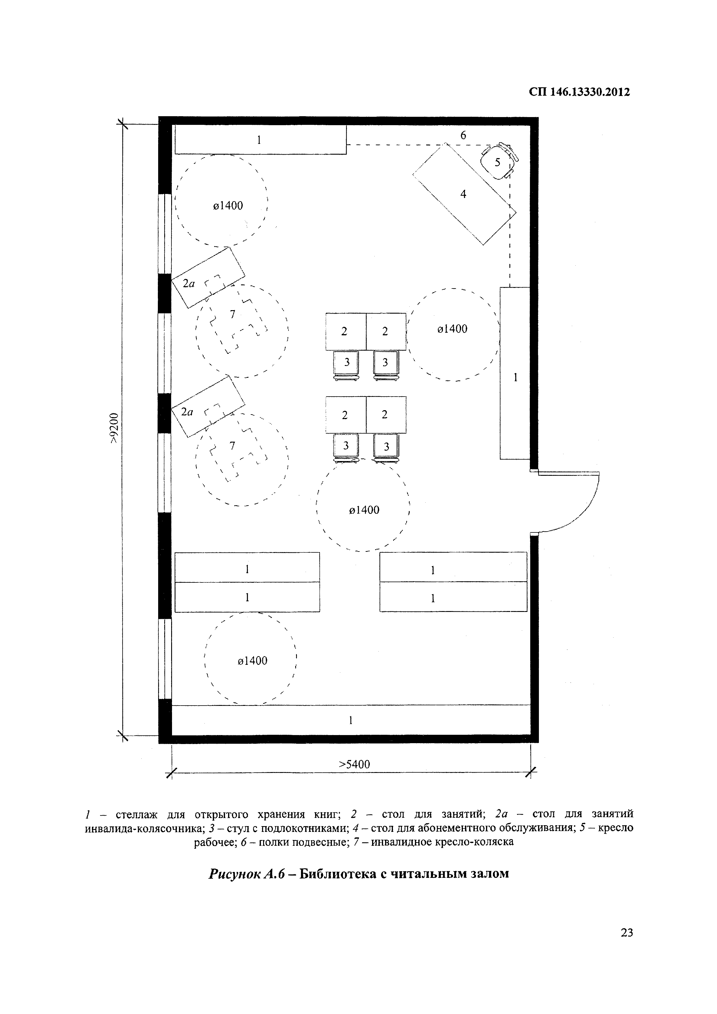
| Оглавление: | 1 Область применения 2 Нормативные ссылки 3 Термины и определения 4 Общие положения 5 Требования к размещению и территории участка 6 Требования к функционально-планировочной структуре 6.1 Общие требования 6.2 Геронтологический центр 6.3 Геронтопсихиатрический центр 6.4 Дом сестринского ухода 6.5 Хоспис 7 Требования к архитектурно-планировочным решениям 8 Инженерное оборудование 9 Противопожарные требования Приложение А (рекомендуемое). Габаритные схемы помещений с расстановкой технологического оборудования |
| Разработан: | ОАО ЦНИИЭП жилища ОАО Институт общественных зданий (ОАО ИОЗ ) ЗАО Гипроздрав - НПЦ по объектам здравоохранения и отдыха |
| Утверждён: | 27.12.2012 Федеральное агентство по строительству и жилищно-коммунальному хозяйству (133/ГС) |
| Издан: | Минстрой России (2016 г. ) |
| Расположен в: | |
| Список изменений: |
|
| Нормативные ссылки: |
|




































Текстовое изменение № 1 от 25.03.2016










