Информационная система
«Ёшкин Кот»

Скачать базу одним архивом
Скачать обновления
История создания базы
Карта сайта

Скачать Типовой проект 704-1-172.84 Альбом III. Основание и фундаменты. Крепежные узлы

Дата актуализации: 10.08.2017

Типовой проект 704-1-172.84

Альбом III. Основание и фундаменты. Крепежные узлы

Обозначение: Типовой проект 704-1-172.84
Обозначение англ: 704-1-172.84
Статус:действует
Название рус.:Альбом III. Основание и фундаменты. Крепежные узлы
Дата добавления в базу:01.09.2013
Дата актуализации:05.05.2017
Оглавление:Содержание
Конструкции железобетонные
   Общие данные
   Пояснительная записка
   Расчетный лист
   Схемы оснований №№1 - 6
   Схемы оснований №№7 - 11
   Общий вид основания. Основная таблица привязки оснований
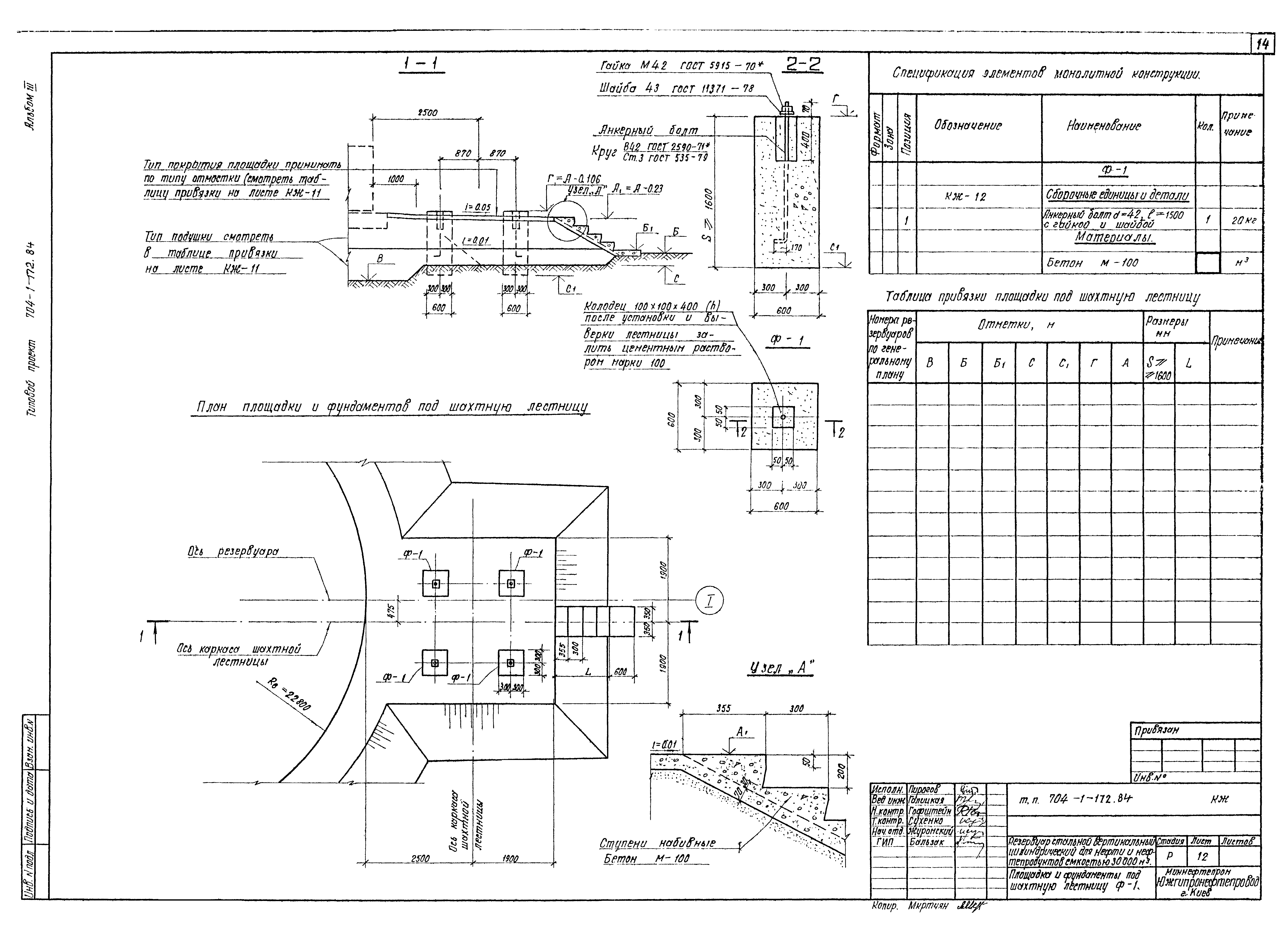
   Площадка и фундамент под шахтную лестницу Ф-1
   Тип подушек, отмосток и покрытия площадок
   Узел А. Типы А.1, А.2, А.3
   Узел А. Типы А.4, А.5, А.6
   Узел Б. Типы Б-1, Б-2
   Фундаментное кольцо КФ-1
   Фундаментное кольцо КФ-2. Плита ПФ-1
   Контрольный колодец КК-1
   Плиты П-1, П-2
   Фундамент под шкаф узла управления системой подогрева
Крепежные узлы
   Шкаф узла управления системой подогрева
   Кронштейны крепления трубопроводов
   Кронштейн уровнемера
   Кронштейн установки уровнемера
   Люк уровнемера
   Молниеприемник
Разработан: Южгипронефтепровод Миннефтепрома СССР
Утверждён:23.05.1983 Миннефтепром (Minnefteprom )
Расположен в:Техническая документация Строительство Справочные документы Типовые строительные конструкции, изделия и узлы Общероссийский строительный каталог Промышленные предприятия, здания и сооружения Предприятия, здания и сооружения складские Резервуары и склады для нефти и нефтепродуктов Резервуары стальные для нефти и нефтепродуктов
Типовой проект 704-1-172.84Типовой проект 704-1-172.84Типовой проект 704-1-172.84Типовой проект 704-1-172.84Типовой проект 704-1-172.84Типовой проект 704-1-172.84Типовой проект 704-1-172.84Типовой проект 704-1-172.84Типовой проект 704-1-172.84Типовой проект 704-1-172.84Типовой проект 704-1-172.84Типовой проект 704-1-172.84Типовой проект 704-1-172.84Типовой проект 704-1-172.84Типовой проект 704-1-172.84Типовой проект 704-1-172.84Типовой проект 704-1-172.84Типовой проект 704-1-172.84Типовой проект 704-1-172.84Типовой проект 704-1-172.84Типовой проект 704-1-172.84Типовой проект 704-1-172.84Типовой проект 704-1-172.84Типовой проект 704-1-172.84Типовой проект 704-1-172.84Типовой проект 704-1-172.84Типовой проект 704-1-172.84Типовой проект 704-1-172.84Типовой проект 704-1-172.84Типовой проект 704-1-172.84

© 2013 Ёшкин Кот :-) Карта сайта