Скачать Типовой проект 503-5-23.86 Альбом III. Отопление и вентиляция. Водоснабжение и канализация. Электрическое освещение. Силовое электрооборудование. Связь и сигнализация. АвтоматизацияДата актуализации: 10.08.2017 Типовой проект 503-5-23.86
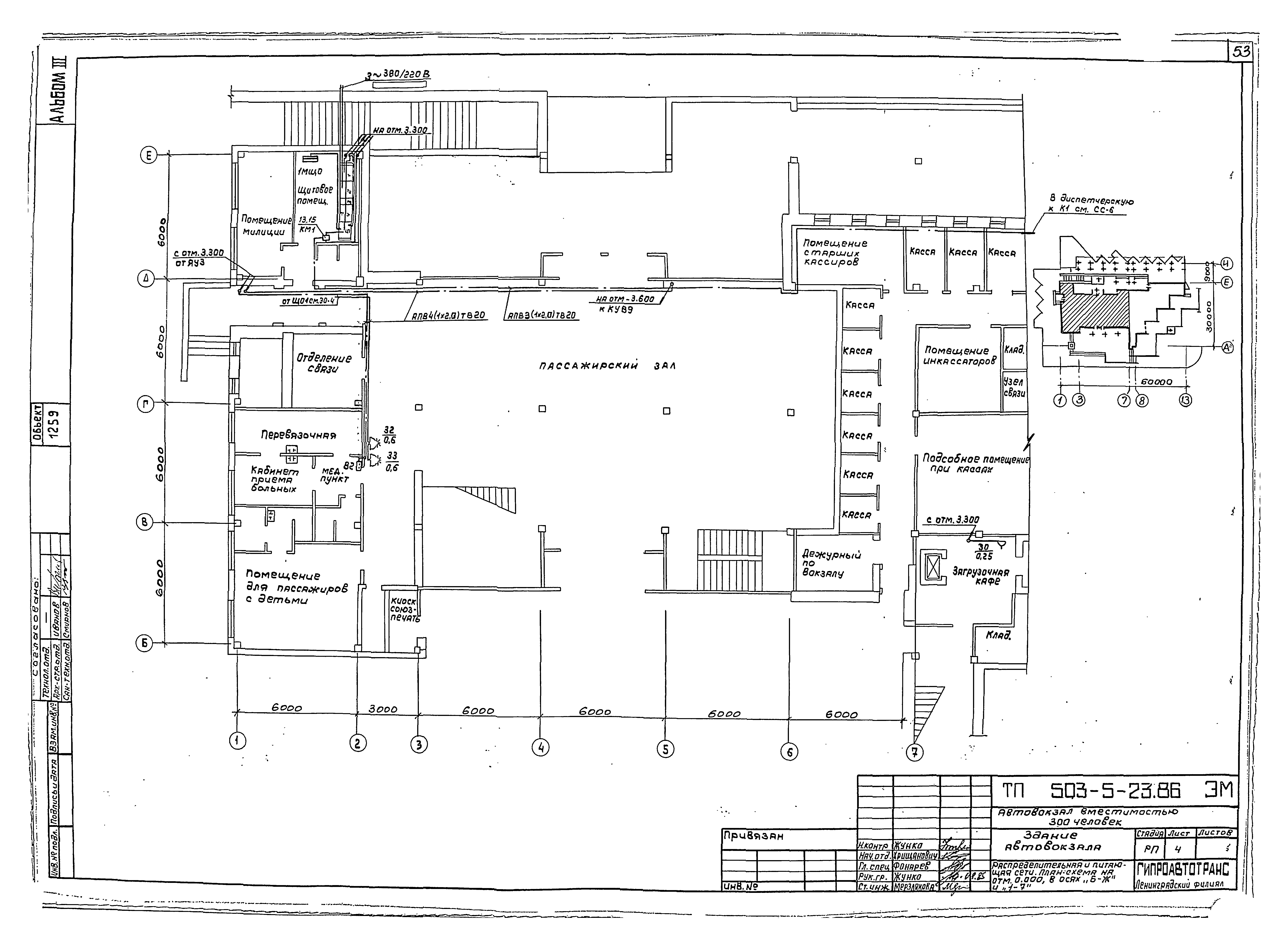
Альбом III. Отопление и вентиляция. Водоснабжение и канализация. Электрическое освещение. Силовое электрооборудование. Связь и сигнализация. АвтоматизацияОбозначение: | Типовой проект 503-5-23.86 | Обозначение англ: | 503-5-23.86 | Статус: | не определен законодательством | Название рус.: | Альбом III. Отопление и вентиляция. Водоснабжение и канализация. Электрическое освещение. Силовое электрооборудование. Связь и сигнализация. Автоматизация | Дата добавления в базу: | 01.09.2013 | Дата актуализации: | 05.05.2017 | Дата введения: | 12.09.1986 | Оглавление: | Содержание альбома Чертежи основного комплекта марки ОВ Общие данные Отопление, теплоснабжение, вентиляция. План на отм. - 3.600 Отопление, теплоснабжение, вентиляция. План на отм. 0.000 между осями 1 - 7 Отопление, теплоснабжение, вентиляция. План на отм. 0.000 между осями 7 - 13 Отопление, теплоснабжение, вентиляция. План на отм. 3.300 между осями 1 - 7 Отопление, теплоснабжение, вентиляция. План на отм. 3.300 между осями 7 - 13 Таблица местных отсосов. Разрез 1-1 Схемы систем отопления №1, №2 Схема системы отопления №3. Схема системы теплоснабжения установок П1 - П5 Схемы систем П1 - П5 Схемы систем В1 - В6 Схемы систем В7 - В9, ВЕ1 - ВЕ7 Установка системы П1 Установка систем П2, В2 - В4, В9. План, разрезы Спецификация отопительно-вентиляционных установок П2, В2 - В4, В9 Установки систем П3 - П5, В1, В5 - В9. План, разрезы Спецификация отопительно-вентиляционных установок П3, П4, В1 Спецификация отопительно-вентиляционных установок П5, В5 - В8 Тепловой пункт. План на отм. 3.600. Разрезы 1-1 - 3-3 Тепловой пункт. Разрез 4-4. Спецификация Тепловой пункт. Принципиальная схема Чертежи основного комплекта марки ОВН Титульный лист. Содержание альбома. Воздуховод из шлакобетонных плит Конструкция тепловой изоляции. Переход, тип I. Переход, тип II Чертежи основного комплекта марки ВК Общие данные План на отм. - 3.600 План на отм. 0.000 между осями 1 - 7 и Б - Е План на отм. 0.000 между осями 6 - 13 и А - Е План на отм. 0.000 между осями 1 - 7 и Б - Е. План на отм. 6.600 План на отм. 3.300 между осями 6 - 13 и А - Е Водомерный узел. План на отм. - 0.300 между осями 7 - 8 и А - Б. Разрез I-I. Схема Система ВО. Схема между осями 1 - 7 и Б - Е Система ВО. Схема между осями 7 - 13 и А - Е Система Т3. Схема Система К1. Схемы выпусков 1, 2, 3 Система К1. Схемы выпусков 4, 5, 6 Система К2. План кровли. Схема выпусков 1, 2, 3 Чертежи основного комплекта марки ВКН Содержание альбома. Опоры марки ОП-1, ОП-2. Конструкция тепловой изоляции Чертежи основного комплекта марки ЭО Электрическое освещение. Общие данные Принципиальная электрическая схема питающей сети 380/220 В Общее освещение. План на отм. - 3.600 Общее освещение. План на отм. 0.000 в осях "1 - 6" и "Б - Е" Общее освещение. План на отм. 0.000 в осях 6 - 13 и А - Е Общее освещение перрона Общее освещение. План на отм. 3.300 в осях "1 - 7" и "Б - Е" Общее освещение. План на отм. 3.300 в осях 7 - 13 и А - Д и на отм. 6.600 Чертежи основного комплекта марки ЭМ Силовое электрооборудование. Общие данные Расположение оборудования в электрощитовой. Схема электрическая принципиальная электроснабжения Распределительная и питающая сети. План-схема на отм. 0.000 в осях "Б - Ж" и "1 - 7" Распределительная и питающая сети. План-схема на отм. 3.300 в осях "Б - Е" и "1 - 9" Распределительная и питающая сети. План-схема на отм. - 3.600 и 6.600. Отключение вентиляции при пожаре. Схема электрическая принципиальная Распределительная сеть ШР1 и ШР2. Схема электрическая Распределительная сеть ШР3 и ШР4. Схема электрическая принципиальная Чертежи основного комплекта марки СС Связь и сигнализация. Общие данные Схема систем связи и сигнализации План расположения устройств связи и сигнализации на отм. - 3.600 План расположения устройств связи и сигнализации на отм. 0.000 в осях "Б - Е" и "1 - 7" План расположения устройств связи и сигнализации на отм. 0.000 в осях "Б - Е" и "6 - 13" План расположения устройств связи и сигнализации на отм. 3.300 в осях "Б - Е" и "1 - 7" План расположения устройств связи и сигнализации на отм. 3.300 в осях "А - Д" и "6 - 13" Схема расположения комплексной сети Схема расположения сетей. Распорядительно-поисковый связи и городской радиотрансляции Схема станционных соединений ШРП-300 Пожарная сигнализация. Схема электрическая принципиальная Пожарная сигнализация. Схема электрическая соединений Чертежи основного комплекта марки АОВ Автоматизация. Общие данные Приточная система П1 (П2…П5). Схема функциональная Тепловой пункт. Схема функциональная Приточная система П1 (П2…П5). Схема электрическая принципиальная управления Светофорная сигнализация. Схема электрическая принципиальная Задвижка в канализационной сети. Схемы электрическая принципиальная и подключения Приточная система П1 (П2…П5). Схема внешних соединений электрических проводок Тепловой пункт. Схемы внешних соединений электрических проводок и питания Тепловой пункт. Схемы внешних соединений электрических проводок Светофорная сигнализация. Схема внешних соединений и монтажный чертеж электрических проводок Планы венткамер. Монтажный чертеж электрических проводок | Разработан: | Ленинградский филиал Гипроавтотранс
| Утверждён: | 12.09.1986 Минавтотранс РСФСР (Russian Federation Minavtotrans 20)
| Издан: | ЦИТП Госстроя СССР (CITP, Gosstroy (USSR) 1988 г. )
| Расположен в: |
| Заменяет собой: | | Нормативные ссылки: | |
                                                                                  
|