Информационная система
«Ёшкин Кот»

Скачать базу одним архивом
Скачать обновления
История создания базы
Карта сайта

Скачать Типовой проект 503-5-23.86 Альбом I. Пояснительная записка. Генеральный план и транспорт. Архитектурные решения

Дата актуализации: 10.08.2017

Типовой проект 503-5-23.86

Альбом I. Пояснительная записка. Генеральный план и транспорт. Архитектурные решения

Обозначение: Типовой проект 503-5-23.86
Обозначение англ: 503-5-23.86
Статус:не определен законодательством
Название рус.:Альбом I. Пояснительная записка. Генеральный план и транспорт. Архитектурные решения
Дата добавления в базу:01.09.2013
Дата актуализации:05.05.2017
Дата введения:12.09.1986
Оглавление:Содержание альбома
Пояснительная записка
Чертежи основного комплекта марки ГТ
   Общие данные
   Генеральный план и транспорт
Чертежи основного комплекта марки АР
   Общие данные
   План на отм. - 3.600
   План на отм. - 3.600 с нанесением отверстий и перемычек
   План на отм. 0.000 в осях 1 - 6
   План на отм. 0.000 в осях 6 - 13
   План на отм. 0.000 в осях 1 - 6 с нанесением отверстий и перемычек
   План на отм. 0.000 в осях 6 - 13 с нанесением отверстий и перемычек
   План на отм. 3.300 в осях 1 - 6
   План на отм. 3.300 в осях 6 - 13
   План на отм. 3.300 в осях 1 - 6 с нанесением отверстий и перемычек
   План на отм. 3.300 в осях 6 - 13 с нанесением отверстий и перемычек
   План на отм. 6.600. Ведомость перемычек
   Ведомость перемычек. Спецификации
   Разрез 1-1. Узел "А"
   Разрезы 2-2 и 3-3
   Фасад 1 - 13
   Фасады А - И; И - А
   Фасад 13 - 1
   Фрагменты 1, 2, 3
   Часы башенные
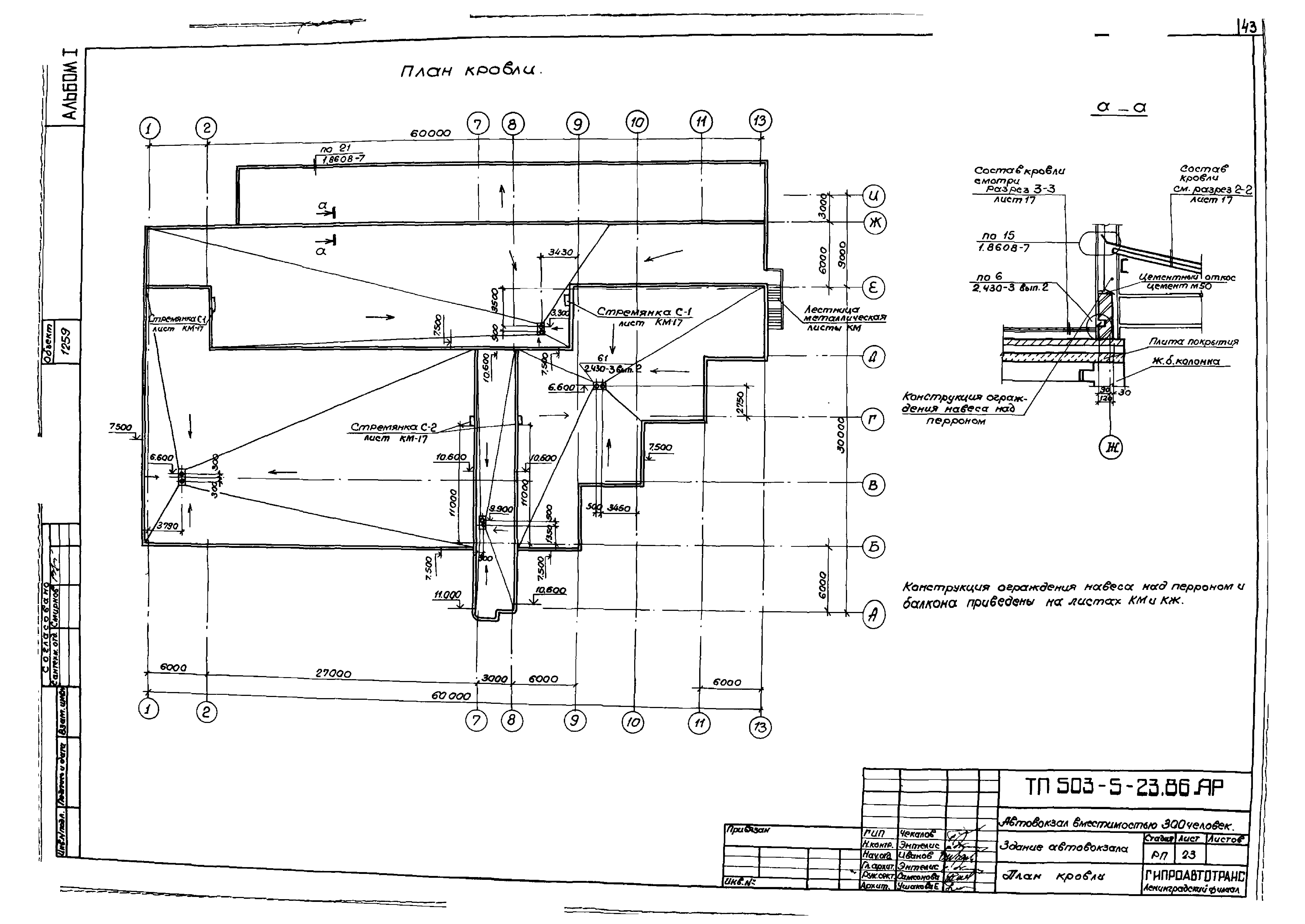
   План кровли
   Схема расположения крылец и благоустройство территории
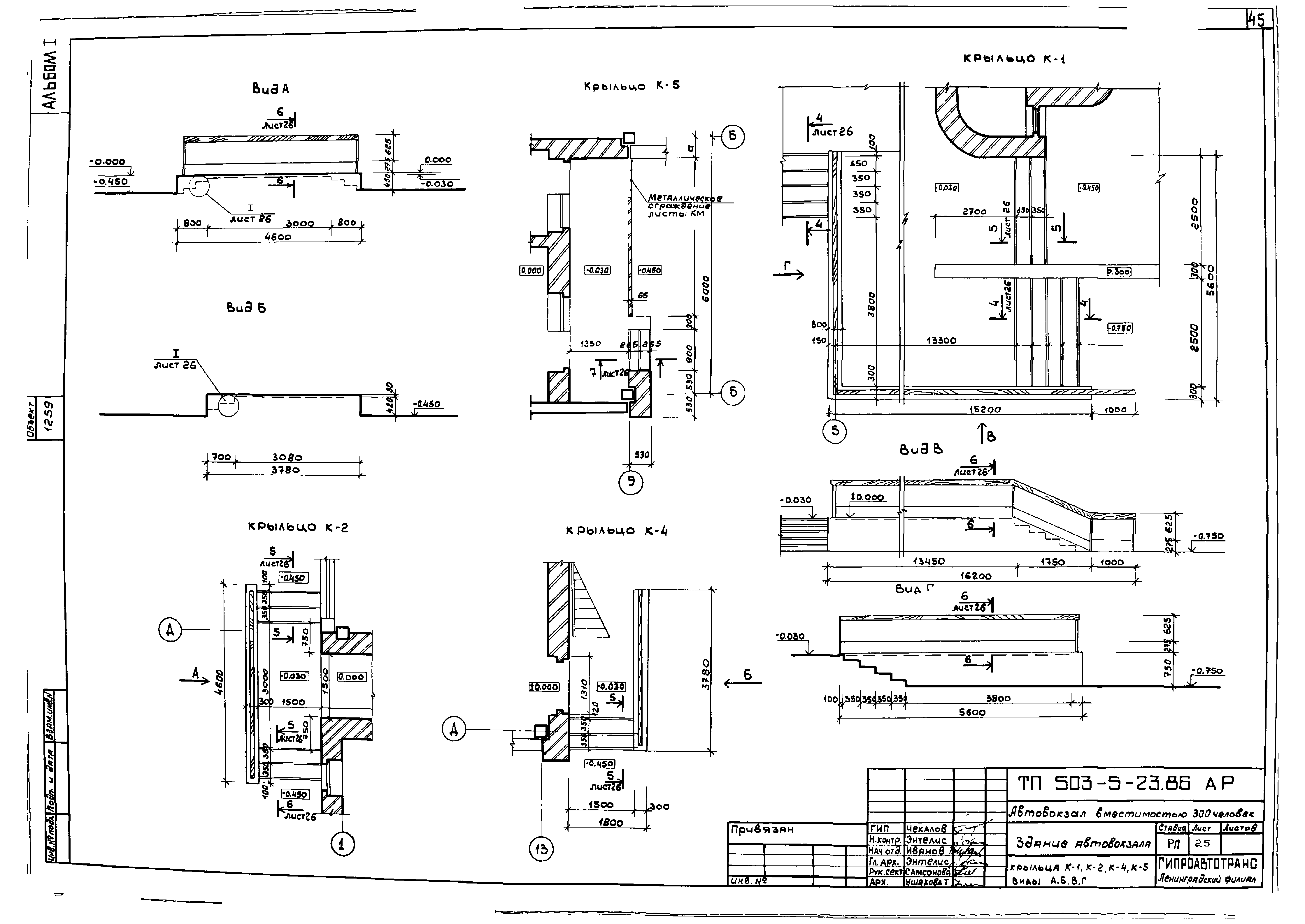
   Крыльца К-1, К-2, К-4, К-5. Виды А, Б, В, Г
   Крыльца К-1 - К5 и благоустройство территории. Сечения
   Схема расположения элементов отделки колонн. Сечения. Узлы
   Крепление отделки колонн. Сечения
   Планы полов на отм. - 3.600; 0.000; 3.300; 6.600
   Экспликация полов
   Пол в диспетчерской
   Барьер кассовых кабин
   Барьеры №№1, 2, 3
   Подвесной потолок. Сечения. Узлы
   Окна О-1, О-2
   Планы подвесного потолка на отм. 2.400; 2.700 и 6.100 с раскладкой панелей
   Планы подвесного потолка на отм. 2.400; 2.700 и 6.100. Сечения
   Подвесные потолки. Сечения. Узлы
   Реклама
   Фрагмент 4. Устройство поручня ограждения (Узел I)
   Расстановка мебели и оборудования. Кафе на 25 посадочных мест
   План на отм. - 3.600. Расстановка мебели и оборудования
   План на отм. 0.000 в осях 1 - 6. Расстановка мебели и оборудования
   План на отм. 0.000 в осях 6 - 13. Расстановка мебели и оборудования
   План на отм. 3.300 в осях 1 - 7. Расстановка мебели и оборудования
   План на отм. 3.300 в осях 6 - 13. Расстановка мебели и оборудования
Чертежи основного комплекта марки ПОС
   Стройгенплан
Разработан: Ленинградский филиал Гипроавтотранс
Утверждён:12.09.1986 Минавтотранс РСФСР (Russian Federation Minavtotrans 20)
Издан: ЦИТП Госстроя СССР (CITP, Gosstroy (USSR) 1988 г. )
Расположен в:Техническая документация Строительство Справочные документы Типовые строительные конструкции, изделия и узлы Общероссийский строительный каталог Защитные сооружения гражданской обороны Типовые проекты защитных сооружений гражданской обороны для объектов промышленности, электроэнергетики, транспорта, связи и складского хозяйства Встроенные помещения, приспосабливаемые под противорадиационные укрытия Противорадиационные укрытия в зданиях и сооружениях транспорта Промышленные предприятия, здания и сооружения Предприятия, здания и сооружения транспорта Транспорт автомобильный Здания и сооружения по обслуживанию пассажиров
Заменяет собой:
  • Типовой проект 503-239
Нормативные ссылки:
Типовой проект 503-5-23.86Типовой проект 503-5-23.86Типовой проект 503-5-23.86Типовой проект 503-5-23.86Типовой проект 503-5-23.86Типовой проект 503-5-23.86Типовой проект 503-5-23.86Типовой проект 503-5-23.86Типовой проект 503-5-23.86Типовой проект 503-5-23.86Типовой проект 503-5-23.86Типовой проект 503-5-23.86Типовой проект 503-5-23.86Типовой проект 503-5-23.86Типовой проект 503-5-23.86Типовой проект 503-5-23.86Типовой проект 503-5-23.86Типовой проект 503-5-23.86Типовой проект 503-5-23.86Типовой проект 503-5-23.86Типовой проект 503-5-23.86Типовой проект 503-5-23.86Типовой проект 503-5-23.86Типовой проект 503-5-23.86Типовой проект 503-5-23.86Типовой проект 503-5-23.86Типовой проект 503-5-23.86Типовой проект 503-5-23.86Типовой проект 503-5-23.86Типовой проект 503-5-23.86Типовой проект 503-5-23.86Типовой проект 503-5-23.86Типовой проект 503-5-23.86Типовой проект 503-5-23.86Типовой проект 503-5-23.86Типовой проект 503-5-23.86Типовой проект 503-5-23.86Типовой проект 503-5-23.86Типовой проект 503-5-23.86Типовой проект 503-5-23.86Типовой проект 503-5-23.86Типовой проект 503-5-23.86Типовой проект 503-5-23.86Типовой проект 503-5-23.86Типовой проект 503-5-23.86Типовой проект 503-5-23.86Типовой проект 503-5-23.86Типовой проект 503-5-23.86Типовой проект 503-5-23.86Типовой проект 503-5-23.86Типовой проект 503-5-23.86Типовой проект 503-5-23.86Типовой проект 503-5-23.86Типовой проект 503-5-23.86Типовой проект 503-5-23.86Типовой проект 503-5-23.86Типовой проект 503-5-23.86Типовой проект 503-5-23.86Типовой проект 503-5-23.86Типовой проект 503-5-23.86Типовой проект 503-5-23.86Типовой проект 503-5-23.86Типовой проект 503-5-23.86Типовой проект 503-5-23.86Типовой проект 503-5-23.86Типовой проект 503-5-23.86Типовой проект 503-5-23.86Типовой проект 503-5-23.86Типовой проект 503-5-23.86

© 2013 Ёшкин Кот :-) Карта сайта