Информационная система
«Ёшкин Кот»

Скачать базу одним архивом
Скачать обновления
История создания базы
Карта сайта

Скачать Типовой проект 503-4-57с.88 Альбом 6. Отопление и вентиляция. Внутренний водопровод и канализация

Дата актуализации: 10.08.2017

Типовой проект 503-4-57с.88

Альбом 6. Отопление и вентиляция. Внутренний водопровод и канализация

Обозначение: Типовой проект 503-4-57с.88
Обозначение англ: 503-4-57с.88
Статус:не определен законодательством
Название рус.:Альбом 6. Отопление и вентиляция. Внутренний водопровод и канализация
Дата добавления в базу:01.09.2013
Дата актуализации:05.05.2017
Дата введения:20.06.1988
Оглавление:Чертежи основного комплекта марки ОВ
   Общие данные
   Отопление, теплоснабжение. План на отм. 0.000 в осях 1 - 6
   Отопление, теплоснабжение. План на отм. 0.000 в осях 6 - 11
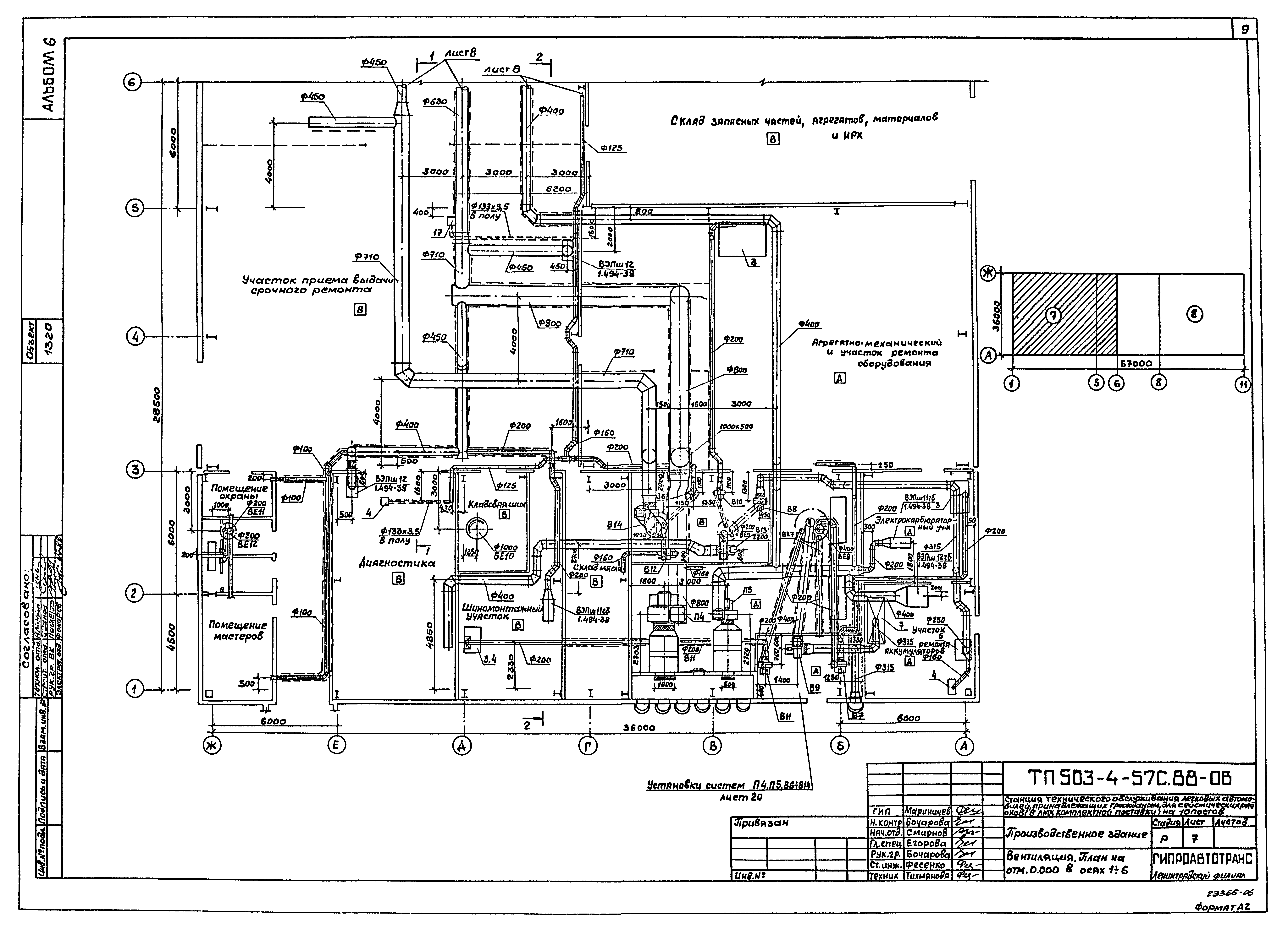
   Вентиляция. План на отм. 0.000 в осях 1 - 6
   Вентиляция. План на отм. 0.000 в осях 6 - 11
   Таблица местных отсосов
   Таблица местных отсосов. Разрезы 1-1, 2-2
   Схема системы отопления №1
   Схема системы отопления №2
   Схема системы теплоснабжения установок П1 - П5
   Схемы систем П1 - П4
   Схемы систем П5, ВЕ1 - ВЕ12
   Схемы систем В1 - В8
   Схемы систем В9 - В15
   Установки систем П1, П2, П3. План. Разрезы
   Спецификация отопительно-вентиляционных установок П1 - П3
   Установки систем П4, П5, В6 - В14. План. Разрезы 1-1, 2-2
   Установки систем П4, П5, В6 - В14. Разрез 3-3. Спецификация отопительно-вентиляционных установок В9 - В14
   Спецификация отопительно-вентиляционных установок П4, П5, В6 - В8
   Установки систем В1 - В3
Чертежи основного комплекта марки ВК
   Общие данные
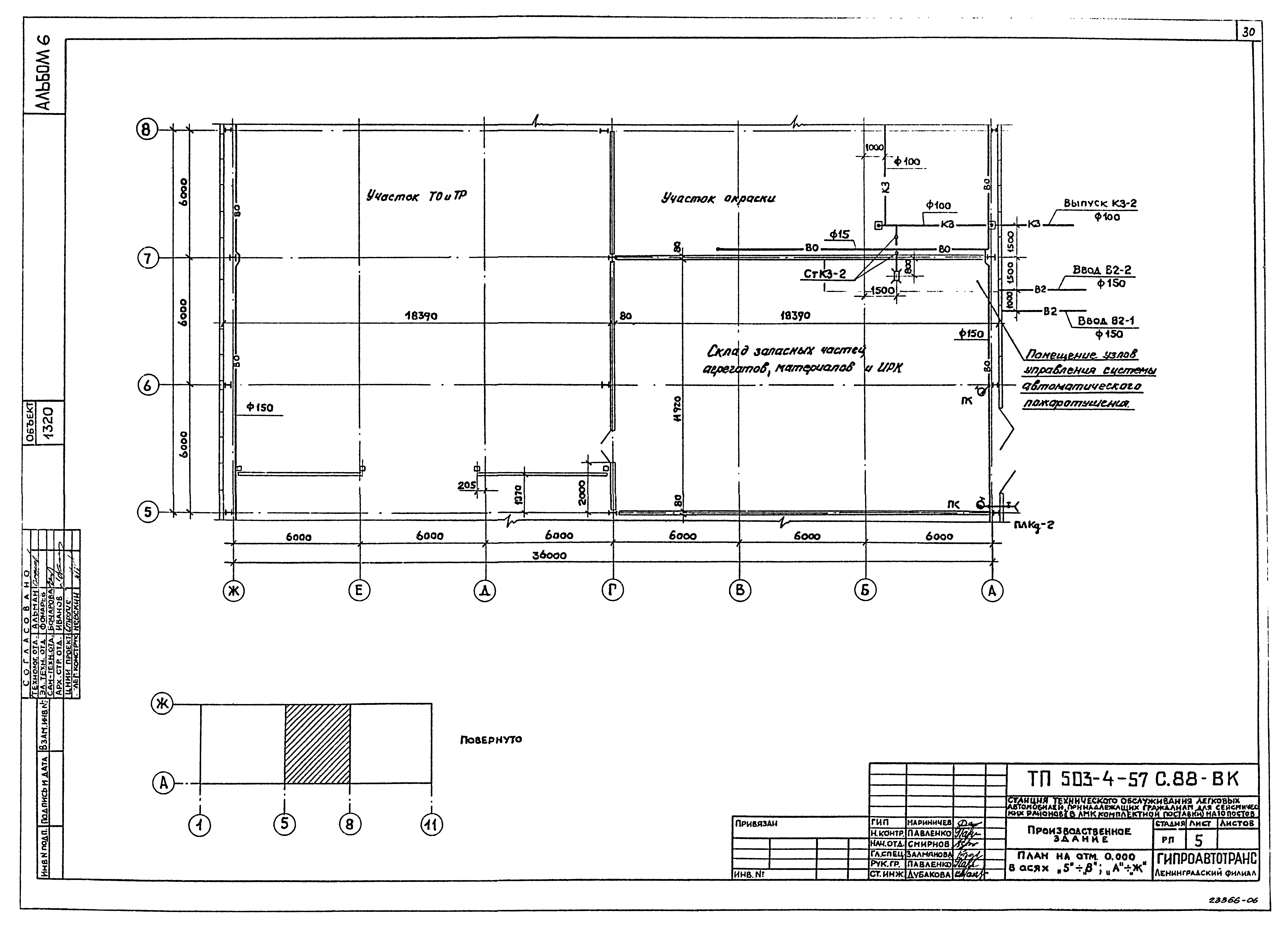
   План на отм. 0.000 в осях "1 - 5"; "А - Ж"
   План на отм. 0.000 в осях "5 - 8"; "А - Ж"
   План на отм. 0.000 в осях "8 - 11"; "А - Ж"
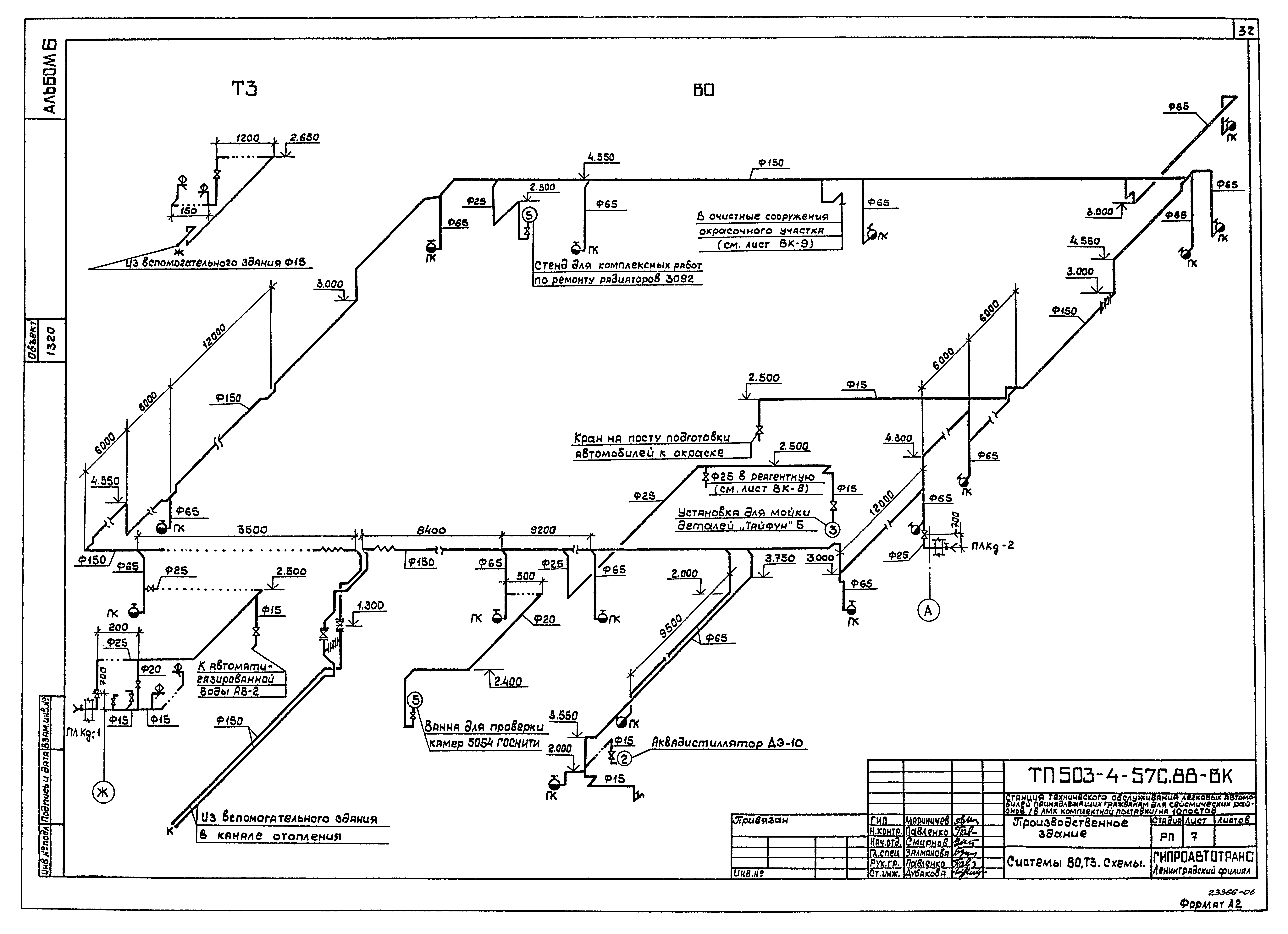
   Системы В0, Т3. Схемы
   Система оборотного водоснабжения моющих растворов. План. Разрез. Схема
   Система оборотного водоснабжения участка окраски. План. Разрез. Схема
   Система К1. Схема К1-1. Система К3. Схемы выпусков К3-1, К3-2, К3-3
   Система К2. План кровли. Схемы выпусков К2-1, К2-2
   Система К2. Схемы выпусков К2-3, К2-4, К2-5, К2-6, К2-7, К2-8, К2-9
   Блок-отстойник стальной. Общий вид. Установка пожарного крана Ф 65 в шкафу
Разработан: Ленинградский филиал Гипроавтотранс
Утверждён:20.06.1988 Минавтопром СССР (USSR Minavtoprom 23)
Издан: ЦИТП Госстроя СССР (CITP, Gosstroy (USSR) 1988 г. )
Расположен в:Техническая документация Строительство Справочные документы Типовые строительные конструкции, изделия и узлы Общероссийский строительный каталог Промышленные предприятия, здания и сооружения Предприятия, здания и сооружения транспорта Транспорт автомобильный Корпуса производственные, станции технического обслуживания и ремонта грузовых и легковых автомобилей и автобусов
Типовой проект 503-4-57с.88Типовой проект 503-4-57с.88Типовой проект 503-4-57с.88Типовой проект 503-4-57с.88Типовой проект 503-4-57с.88Типовой проект 503-4-57с.88Типовой проект 503-4-57с.88Типовой проект 503-4-57с.88Типовой проект 503-4-57с.88Типовой проект 503-4-57с.88Типовой проект 503-4-57с.88Типовой проект 503-4-57с.88Типовой проект 503-4-57с.88Типовой проект 503-4-57с.88Типовой проект 503-4-57с.88Типовой проект 503-4-57с.88Типовой проект 503-4-57с.88Типовой проект 503-4-57с.88Типовой проект 503-4-57с.88Типовой проект 503-4-57с.88Типовой проект 503-4-57с.88Типовой проект 503-4-57с.88Типовой проект 503-4-57с.88Типовой проект 503-4-57с.88Типовой проект 503-4-57с.88Типовой проект 503-4-57с.88Типовой проект 503-4-57с.88Типовой проект 503-4-57с.88Типовой проект 503-4-57с.88Типовой проект 503-4-57с.88Типовой проект 503-4-57с.88Типовой проект 503-4-57с.88Типовой проект 503-4-57с.88Типовой проект 503-4-57с.88Типовой проект 503-4-57с.88Типовой проект 503-4-57с.88Типовой проект 503-4-57с.88Типовой проект 503-4-57с.88Типовой проект 503-4-57с.88

© 2013 Ёшкин Кот :-) Карта сайта