Информационная система
«Ёшкин Кот»

Скачать базу одним архивом
Скачать обновления
История создания базы
Карта сайта

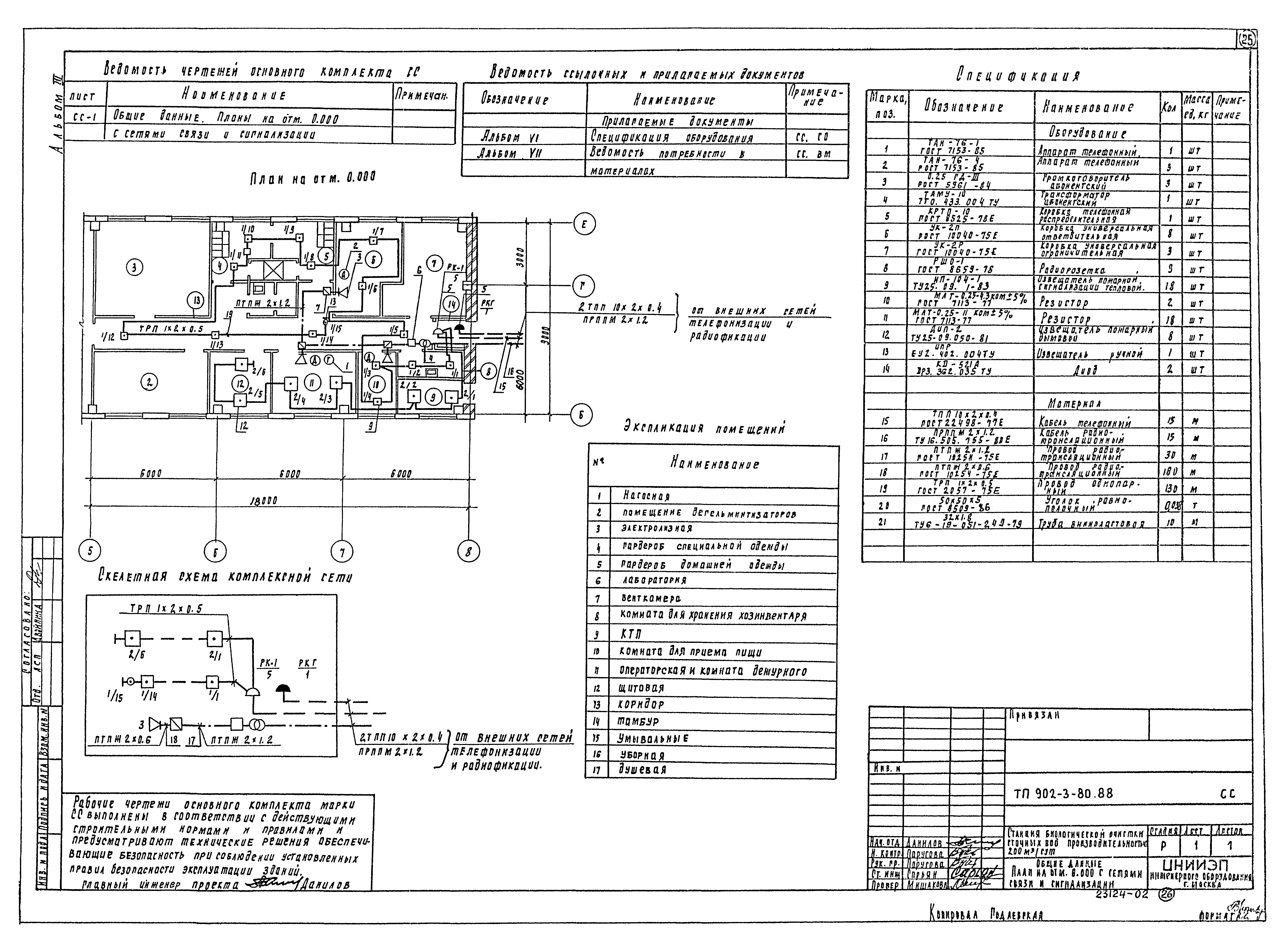
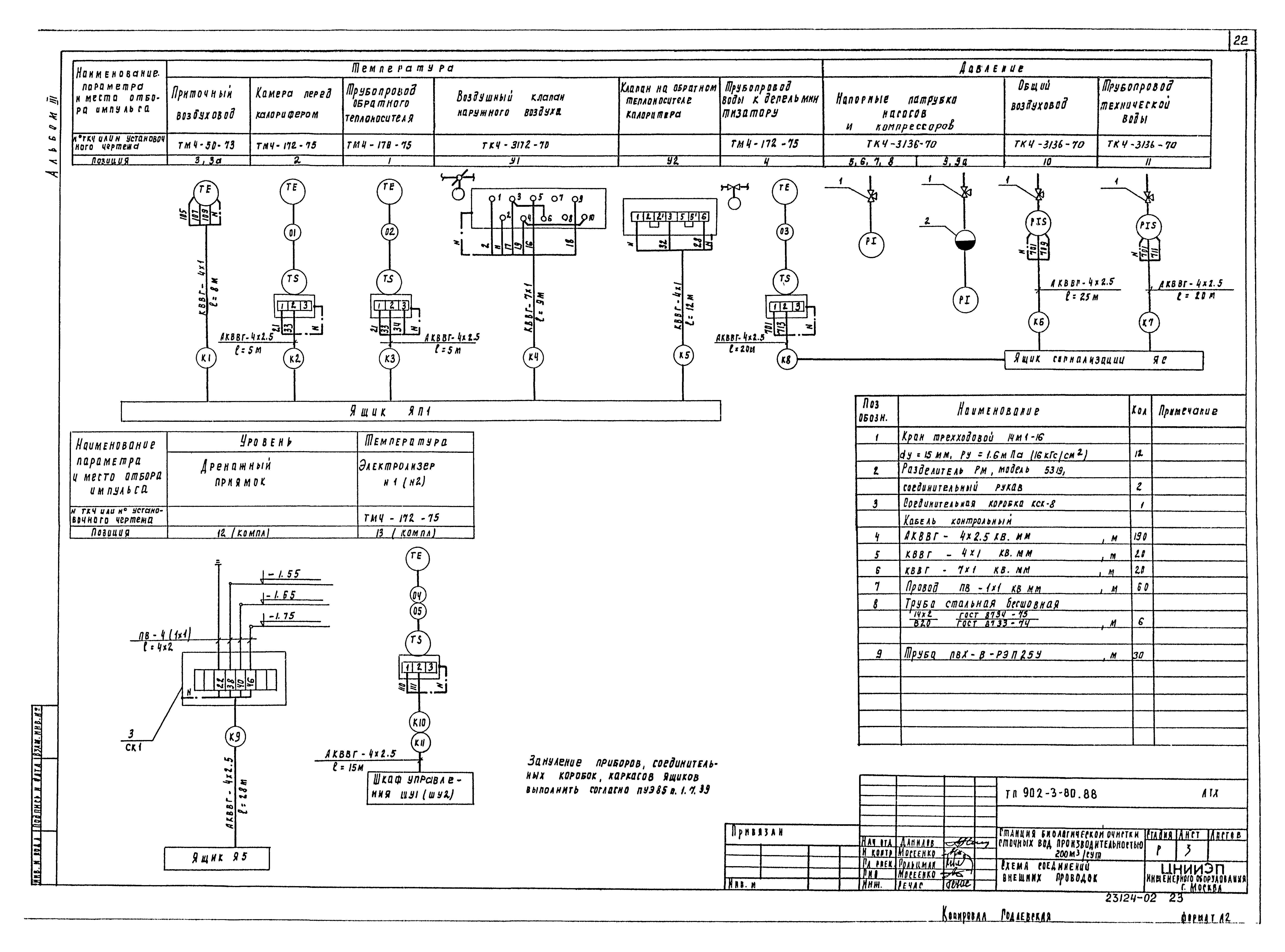
Скачать Типовой проект 902-3-80.88 Альбом III. Электротехнические решения

Дата актуализации: 10.08.2017

Типовой проект 902-3-80.88

Альбом III. Электротехнические решения

Обозначение: Типовой проект 902-3-80.88
Обозначение англ: 902-3-80.88
Статус:не определен законодательством
Название рус.:Альбом III. Электротехнические решения
Дата добавления в базу:01.02.2017
Дата актуализации:05.05.2017
Дата введения:10.02.1988
Разработан: ЦНИИЭП инженерного оборудования
Утверждён:10.02.1988 Госкомархитектура (38)
Издан: ЦИТП Госстроя СССР (CITP, Gosstroy (USSR) 1989 г. )
Расположен в:Техническая документация Строительство Справочные документы Типовые строительные конструкции, изделия и узлы Общероссийский строительный каталог Промышленные предприятия, здания и сооружения Здания и сооружения санитарно-технические Канализация Сооружения биологической (биохимической) очистки Станции биологической очистки сточных вод
Типовой проект 902-3-80.88Типовой проект 902-3-80.88Типовой проект 902-3-80.88Типовой проект 902-3-80.88Типовой проект 902-3-80.88Типовой проект 902-3-80.88Типовой проект 902-3-80.88Типовой проект 902-3-80.88Типовой проект 902-3-80.88Типовой проект 902-3-80.88Типовой проект 902-3-80.88Типовой проект 902-3-80.88Типовой проект 902-3-80.88Типовой проект 902-3-80.88Типовой проект 902-3-80.88Типовой проект 902-3-80.88Типовой проект 902-3-80.88Типовой проект 902-3-80.88Типовой проект 902-3-80.88Типовой проект 902-3-80.88Типовой проект 902-3-80.88Типовой проект 902-3-80.88Типовой проект 902-3-80.88Типовой проект 902-3-80.88Типовой проект 902-3-80.88Типовой проект 902-3-80.88Типовой проект 902-3-80.88

© 2013 Ёшкин Кот :-) Карта сайта