Информационная система
«Ёшкин Кот»

Скачать базу одним архивом
Скачать обновления
История создания базы
Карта сайта

Скачать Типовой проект 902-2-477.89 Альбом 2. Технологические решения. Спецификации оборудования. Конструкции железобетонные. Организация строительства

Дата актуализации: 10.08.2017

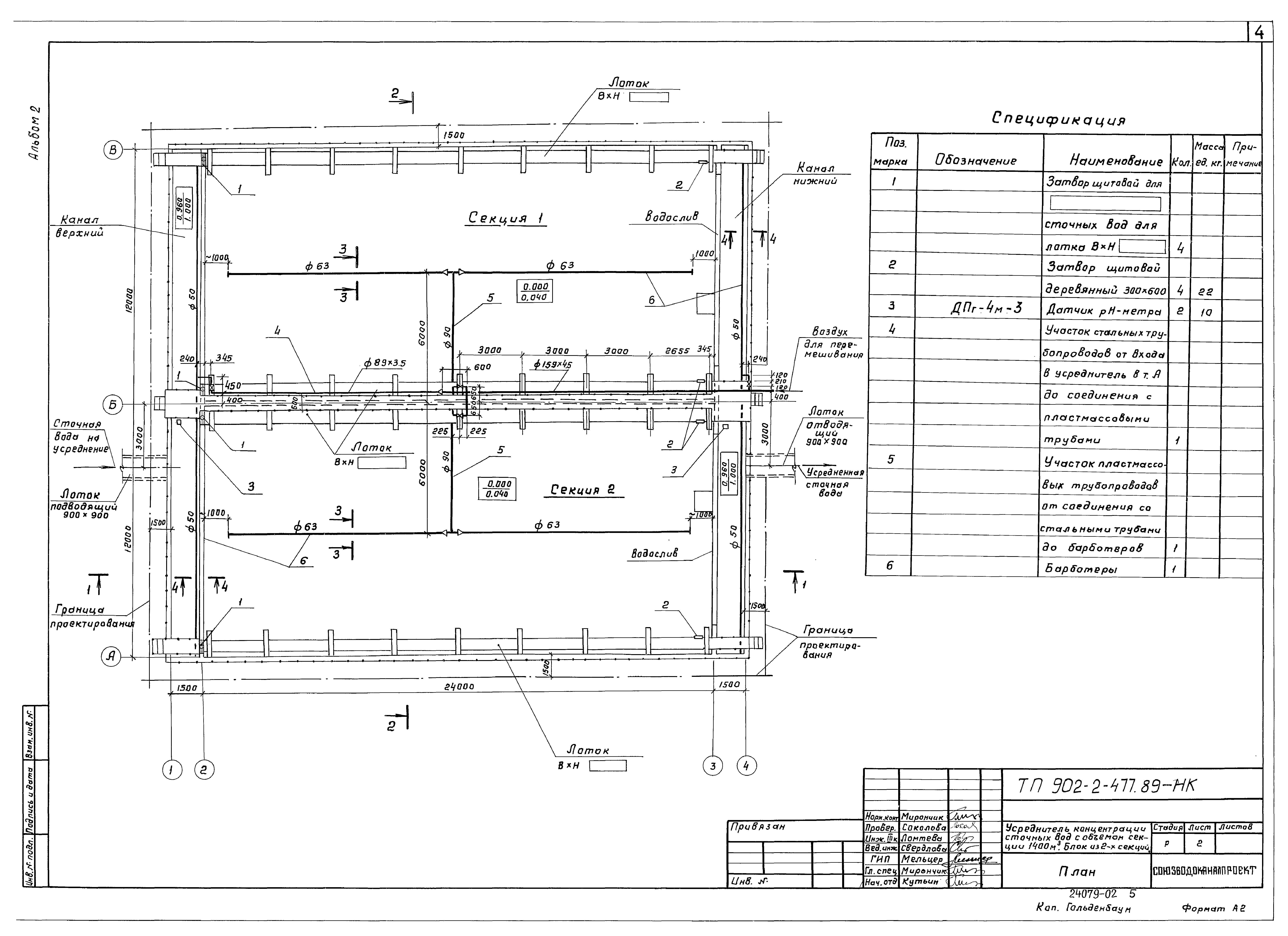
Типовой проект 902-2-477.89

Альбом 2. Технологические решения. Спецификации оборудования. Конструкции железобетонные. Организация строительства

Обозначение: Типовой проект 902-2-477.89
Обозначение англ: 902-2-477.89
Статус:не определен законодательством
Название рус.:Альбом 2. Технологические решения. Спецификации оборудования. Конструкции железобетонные. Организация строительства
Дата добавления в базу:01.09.2013
Дата актуализации:05.05.2017
Дата введения:28.09.1989
Оглавление:Содержание альбома
Чертежи основного комплекта марки НК
   Общие данные
   План
   Разрезы 1-1 - 4-4. Узлы А, Б
   Аксонометрические схемы трубопроводов
   Спецификация оборудования
   Затвор щитовой деревянный 300х600
   Затворы щитовые для неагрессивных сточных вод
   Затворы щитовые для агрессивных сточных вод
Чертежи основного комплекта марки КЖ
   Общие данные
   Общий вид. План, разрезы
   Общий вид. Узлы I, II. Разрезы 3-3 - 7-7
   Днище. Опалубочный чертеж. Сечения. Спецификация
   Днище. Арматурный чертеж. Сечения
   Днище. Арматурно-опалубочный чертеж. Сечения
   Днище. Арматурный чертеж. Узлы I, II. Спецификация
   Схема расположения стеновых панелей и монолитных участков. Виды 1-1 - 3-3
   Схема расположения панелей. Виды 4-4 - 5-5
   Монолитные участки Ум1, Ум2, Ум5. Опалубочный чертеж
   Монолитные участки Ум3, Ум4, Ум6. Опалубочный чертеж
   Монолитные участки Ум1, Ум2. Арматурный чертеж
   Монолитные участки. Узлы, сечения. Арматурный чертеж
   Монолитные участки Ум3, Ум4, Ум6. Арматурный чертеж
   Монолитный участок Ум5. Арматурный чертеж
   Монолитные участки Ум1 - Ум6. Спецификация
   Схема расположения балок и плит на отм. 5.74. Узлы, сечения
   Схема расположения балок и плит на отм. 5.74. Спецификация
   Схема расположения лотков. Спецификация
Чертежи основного комплекта марки ОС
   Общие данные. Стройгенплан
   График производства основных строительных и монтажных работ
Разработан: Союзводоканалпроект
Проектхимзащита Минмонтажспецстроя СССР
Утверждён:28.09.1989 Союзводоканалпроект (Soyuzvodokanalproject 86)
Расположен в:Техническая документация Строительство Справочные документы Типовые строительные конструкции, изделия и узлы Общероссийский строительный каталог Промышленные предприятия, здания и сооружения Здания и сооружения санитарно-технические Канализация Сооружения для очистки производственных сточных вод Станции физико-химической очистки
Заменяет собой:
  • Типовой проект 902-2-329
Типовой проект 902-2-477.89Типовой проект 902-2-477.89Типовой проект 902-2-477.89Типовой проект 902-2-477.89Типовой проект 902-2-477.89Типовой проект 902-2-477.89Типовой проект 902-2-477.89Типовой проект 902-2-477.89Типовой проект 902-2-477.89Типовой проект 902-2-477.89Типовой проект 902-2-477.89Типовой проект 902-2-477.89Типовой проект 902-2-477.89Типовой проект 902-2-477.89Типовой проект 902-2-477.89Типовой проект 902-2-477.89Типовой проект 902-2-477.89Типовой проект 902-2-477.89Типовой проект 902-2-477.89Типовой проект 902-2-477.89Типовой проект 902-2-477.89Типовой проект 902-2-477.89Типовой проект 902-2-477.89Типовой проект 902-2-477.89Типовой проект 902-2-477.89Типовой проект 902-2-477.89Типовой проект 902-2-477.89Типовой проект 902-2-477.89Типовой проект 902-2-477.89Типовой проект 902-2-477.89Типовой проект 902-2-477.89Типовой проект 902-2-477.89Типовой проект 902-2-477.89

© 2013 Ёшкин Кот :-) Карта сайта