Информационная система
«Ёшкин Кот»

Скачать базу одним архивом
Скачать обновления
История создания базы
Карта сайта

Скачать Типовой проект 503-1-97.91 Альбом 3. Архитектурные решения. Конструкции железобетонные. Конструкции металлические. Отопление и вентиляция. Внутренние водопровод и канализация

Дата актуализации: 10.08.2017

Типовой проект 503-1-97.91

Альбом 3. Архитектурные решения. Конструкции железобетонные. Конструкции металлические. Отопление и вентиляция. Внутренние водопровод и канализация

Обозначение: Типовой проект 503-1-97.91
Обозначение англ: 503-1-97.91
Статус:не определен законодательством
Название рус.:Альбом 3. Архитектурные решения. Конструкции железобетонные. Конструкции металлические. Отопление и вентиляция. Внутренние водопровод и канализация
Дата добавления в базу:01.09.2013
Дата актуализации:05.05.2017
Дата введения:13.02.1992
Оглавление:Чертежи основного комплекта марки АР
   Общие данные
   План на отм. 0.000
   План на отм. 3.300; 0.000
   Фрагменты 1, 2, 3
   Фасад 1 - 10; фасад 10 - 1. Узлы 1 - 4
   Фасад А - Е; фасад Е - А. Узлы 5 - 7
   Разрез 1-1. План кровли
   Планы полов. Узлы 8, 9, 10
   Планы подвесных потолков. Узлы 11, 12
Чертежи основного комплекта марки КЖ
   Общие данные
   Схема расположения элементов фундаментов
   Узлы 1…4
   Узлы 5…10
   Узлы 11…13. Фм11
   Фундаменты Фм1…Фм4
   Фундаменты Фм5, Фм6, Фм8…Фм10
   Фундамент Фм7
   Схема расположения элементов подземного хозяйства
   Подземное хозяйство. Фундаменты ФОм1…ФОм4, ФОм18. Разрезы. Лючок Л1
   Подземное хозяйство. Фундаменты ФОм5, ФОм6, ФОм7. Разрезы
   Подземное хозяйство. Фундамент ФОм8. Разрезы 1-1…3-3
   Подземное хозяйство. Фундамент ФОм8. Разрезы 4-4…6-6. Узлы 1…3
   Подземное хозяйство. Фундамент ФОм8. Фрагмент плана 1
   Подземное хозяйство. Фундамент ФОм8. Фрагмент плана 2
   Подземное хозяйство. Фундаменты ФОм9 - ФОм14, ФОм15. Колодец К1. Канал КЛ1
   Подземное хозяйство. Фундамент ФОм9. Крышка КМ1. Узлы 1, 2
   Подземное хозяйство. Фундамент ФОм9. Плита основания ПМ1
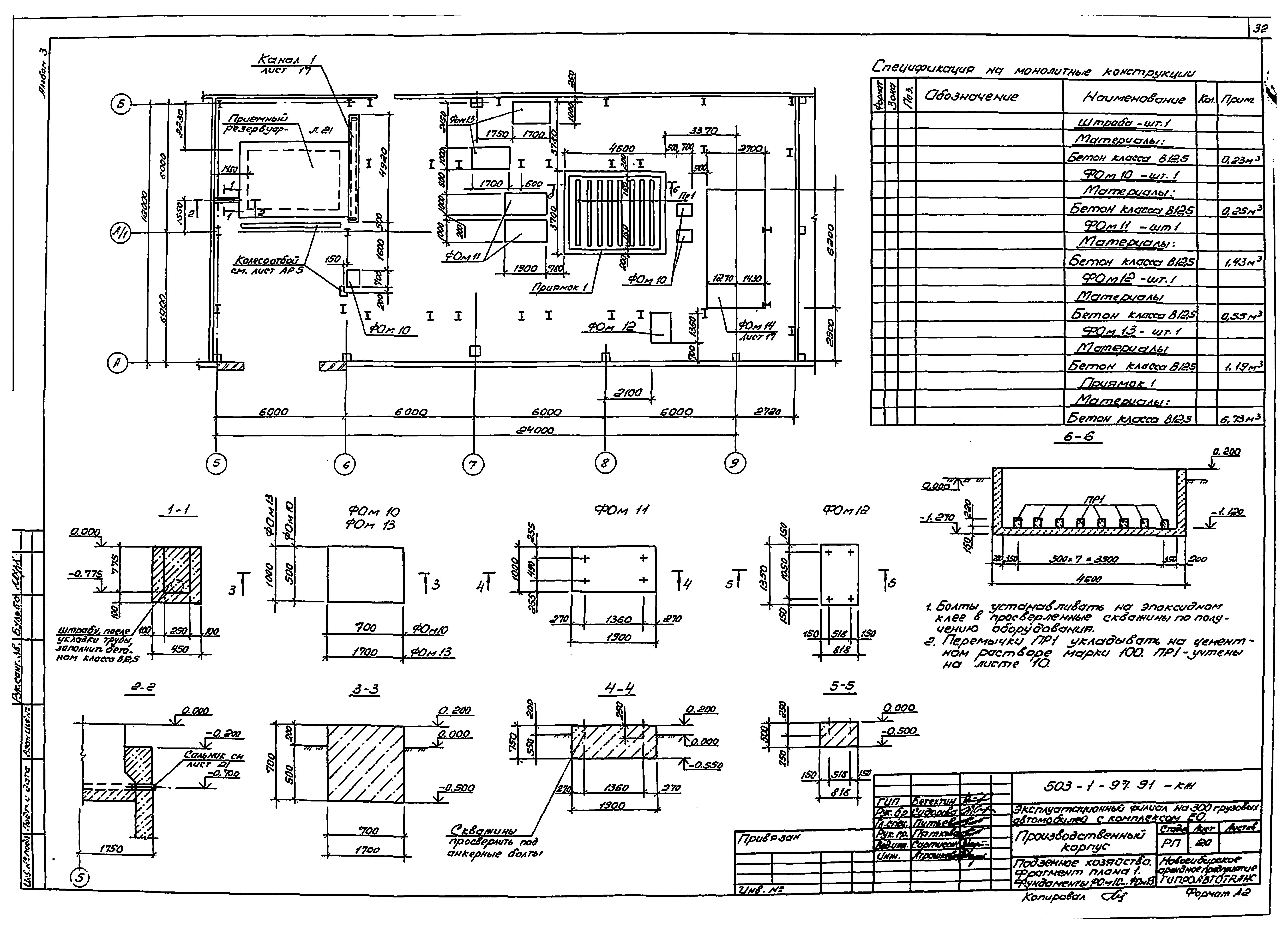
   Подземное хозяйство. Фрагмент плана 1. Фундаменты ФОм10…ФОм13
   Подземное хозяйство. Фундамент ФОм17
   Приемный резервуар. План. Разрезы 1-1, 2-2. ФОм16
   Приемный резервуар. Схема расположения плит перекрытия и щитов. Узел 1
   Приемный резервуар. Схема расположения панелей стен
   Приемный резервуар. Днище монолитное ДМ1
   Схема расположения колонн. Сечения 1-1…3-3
   Схема расположения балок покрытия и ригелей перекрытия
   Сечения 6-6…16-16
   Спецификация к схеме расположения колонн, балок, ригелей, стоек
   Схема расположения элементов плит покрытия. Разрез 1-1, ФОм
   Схема расположения плит перекрытия. Участки монолитные
   Спецификация к схеме расположения плит покрытия и перекрытия
   Схема расположения стеновых панелей
   Спецификация к схеме расположения стеновых панелей. Узел А
Чертежи основного комплекта марки КМ
   Общие данные
   Схема расположения балок перекрытия. Узлы 1…4. Сечения 1-1…4-4
   Схемы расположения стоек, балок, лестницы, ограждения, перекрытия на отм. 3.000. СК1, СК2
   Разрезы 3-3…4-4. Сечения 5-5…12-12. Узлы 1…5
   Схемы расположения стоек, балок и перекрытия на отм. - 2.000. Стойки С2…С4
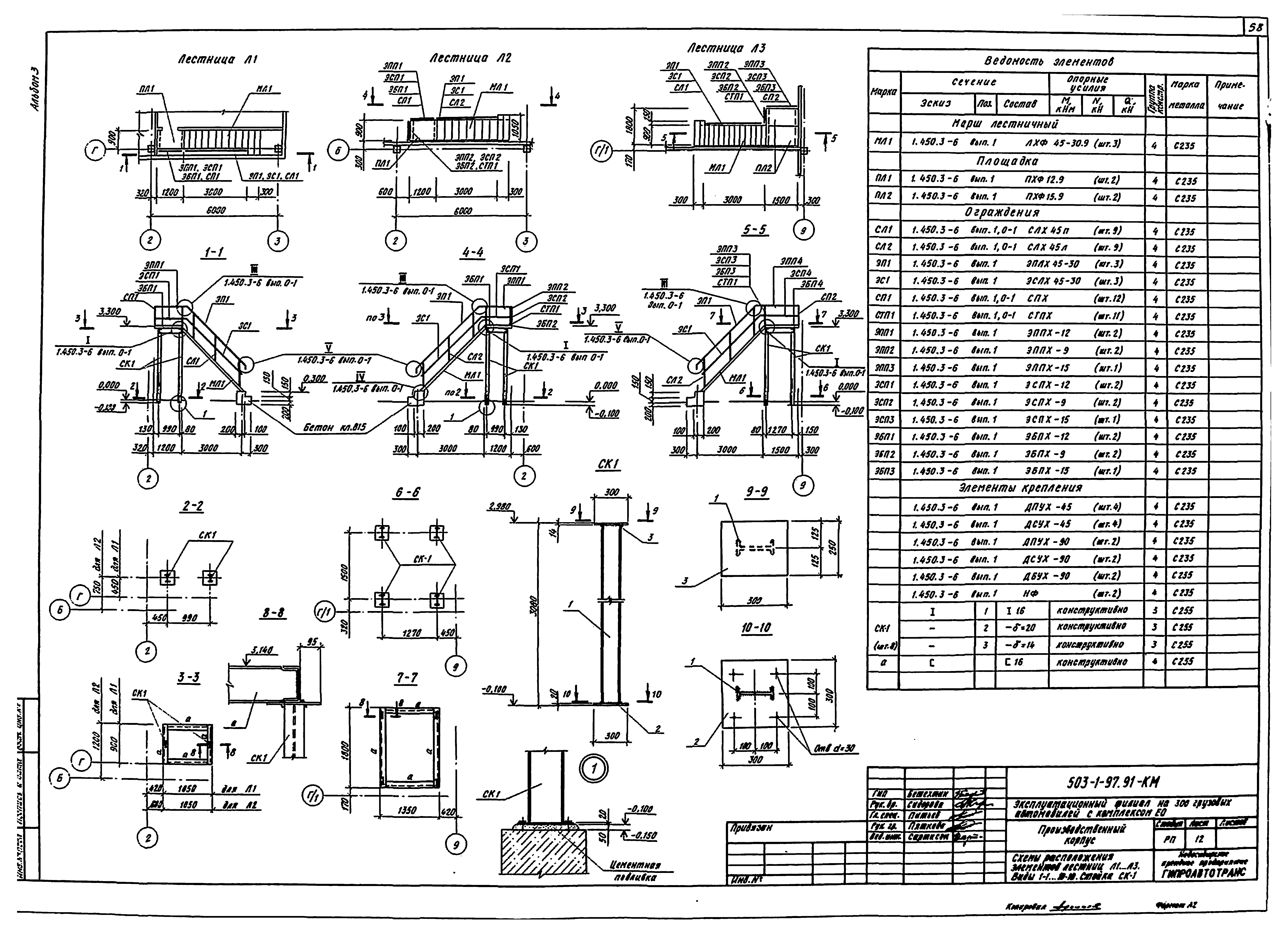
   Схемы расположения элементов лестниц Л1…Л3. Виды 1-1…10-10. Стойка СК1
   Схема расположения элементов подвесного оборудования. Разрезы 1-1…8-8. Узлы 1…4
   Узлы 5, 6. Стойки СК5, СК6
   Схемы расположения элементов площадки на отм. 3.500. Узел 1
   Схемы расположения элементов пожарной лестницы Л4. Узлы 1, 2, 3. Сечения
   Схемы расположения зенитных фонарей, ворот, сетчатых перегородок
Чертежи основного комплекта марки ОВ
   Общие данные
   Отопление, теплоснабжение. План на отм. 0.000. Вентиляция. План на отм. 0.000
   Вентиляция. План на отм. 0.000
   Схема системы отопления
   Схема системы теплоснабжения установок П1…П15. Узлы 1…15
   Схема системы теплоснабжения установок У1…У30. Узлы 1…7
   Узлы 8…15
   Схемы систем П1…П9
   Схемы систем П10…П15, У1…У30, В1…В4
   Схемы систем В5…В23
   Схемы систем В24…В32, ВЕ1…ВЕ31
   Установки систем П1…П6, В2, В3, В9, В11, В20, В22
   Установки систем П7…П12
   Установки систем П13…П15, В13, В14, В31
   Установки систем В1, В4, В6…В8, В10, В12, В16…В19, В21, В23…В28, В32 на кровле
   Спецификация отопительно-вентиляционных установок П1…П5
   Спецификация отопительно-вентиляционных установок П6…П9
   Спецификация отопительно-вентиляционных установок П14
   Спецификация отопительно-вентиляционных установок П15, В2, В3, В9, В13, В20
Чертежи основного комплекта марки ВК
   Общие данные
   План с сетями водопровода и канализации
   План кровли. Схемы системы К2
   Схемы систем В1, 2
   Схемы систем Т3, К1, К3, 1
   Фрагмент 1. План расстановки технологического оборудования на отм. 0.000
   Фрагмент 1. План расстановки технологического оборудования на отм. 3.000
   Фрагмент 1. План на отм. 0.000
   Фрагмент 1. План на отм. 3.000
   Технологическая схема очистки сточных вод и обезвоживания осадка. Фрагмент 1
   Фрагмент 1. Разрез 1-1
   Фрагмент 1. Разрез 2-2, 3-3
   Фрагмент 1. Схемы систем 1, 2, 12, 16, 17, 18
   Фрагмент 1. Схемы систем 3, 4
   Фрагмент 1. Схемы систем 5, 7, 8, 14
   Фрагмент 1. Схемы систем 6
   Фрагмент 1. Схемы систем 9, 10. таблица колодцев
   Фрагмент 1. Схемы систем 10, Т3, В1
Разработан: Гипроавтотранс Новосибирский филиал
Утверждён:13.02.1992 Росавтотранс (1)
Расположен в:Техническая документация Строительство Справочные документы Типовые строительные конструкции, изделия и узлы Общероссийский строительный каталог Промышленные предприятия, здания и сооружения Предприятия, здания и сооружения транспорта Транспорт автомобильный Предприятия автотранспортные, гаражи и стоянки для грузовых автомобилей и механизмов
Типовой проект 503-1-97.91Типовой проект 503-1-97.91Типовой проект 503-1-97.91Типовой проект 503-1-97.91Типовой проект 503-1-97.91Типовой проект 503-1-97.91Типовой проект 503-1-97.91Типовой проект 503-1-97.91Типовой проект 503-1-97.91Типовой проект 503-1-97.91Типовой проект 503-1-97.91Типовой проект 503-1-97.91Типовой проект 503-1-97.91Типовой проект 503-1-97.91Типовой проект 503-1-97.91Типовой проект 503-1-97.91Типовой проект 503-1-97.91Типовой проект 503-1-97.91Типовой проект 503-1-97.91Типовой проект 503-1-97.91Типовой проект 503-1-97.91Типовой проект 503-1-97.91Типовой проект 503-1-97.91Типовой проект 503-1-97.91Типовой проект 503-1-97.91Типовой проект 503-1-97.91Типовой проект 503-1-97.91Типовой проект 503-1-97.91Типовой проект 503-1-97.91Типовой проект 503-1-97.91Типовой проект 503-1-97.91Типовой проект 503-1-97.91Типовой проект 503-1-97.91Типовой проект 503-1-97.91Типовой проект 503-1-97.91Типовой проект 503-1-97.91Типовой проект 503-1-97.91Типовой проект 503-1-97.91Типовой проект 503-1-97.91Типовой проект 503-1-97.91Типовой проект 503-1-97.91Типовой проект 503-1-97.91Типовой проект 503-1-97.91Типовой проект 503-1-97.91Типовой проект 503-1-97.91Типовой проект 503-1-97.91Типовой проект 503-1-97.91Типовой проект 503-1-97.91Типовой проект 503-1-97.91Типовой проект 503-1-97.91Типовой проект 503-1-97.91Типовой проект 503-1-97.91Типовой проект 503-1-97.91Типовой проект 503-1-97.91Типовой проект 503-1-97.91Типовой проект 503-1-97.91Типовой проект 503-1-97.91Типовой проект 503-1-97.91Типовой проект 503-1-97.91Типовой проект 503-1-97.91Типовой проект 503-1-97.91Типовой проект 503-1-97.91Типовой проект 503-1-97.91Типовой проект 503-1-97.91Типовой проект 503-1-97.91Типовой проект 503-1-97.91Типовой проект 503-1-97.91Типовой проект 503-1-97.91Типовой проект 503-1-97.91Типовой проект 503-1-97.91Типовой проект 503-1-97.91Типовой проект 503-1-97.91Типовой проект 503-1-97.91Типовой проект 503-1-97.91Типовой проект 503-1-97.91Типовой проект 503-1-97.91Типовой проект 503-1-97.91Типовой проект 503-1-97.91Типовой проект 503-1-97.91Типовой проект 503-1-97.91Типовой проект 503-1-97.91Типовой проект 503-1-97.91Типовой проект 503-1-97.91Типовой проект 503-1-97.91Типовой проект 503-1-97.91Типовой проект 503-1-97.91Типовой проект 503-1-97.91Типовой проект 503-1-97.91Типовой проект 503-1-97.91Типовой проект 503-1-97.91Типовой проект 503-1-97.91Типовой проект 503-1-97.91Типовой проект 503-1-97.91Типовой проект 503-1-97.91Типовой проект 503-1-97.91Типовой проект 503-1-97.91Типовой проект 503-1-97.91Типовой проект 503-1-97.91Типовой проект 503-1-97.91Типовой проект 503-1-97.91Типовой проект 503-1-97.91Типовой проект 503-1-97.91Типовой проект 503-1-97.91Типовой проект 503-1-97.91Типовой проект 503-1-97.91Типовой проект 503-1-97.91Типовой проект 503-1-97.91Типовой проект 503-1-97.91Типовой проект 503-1-97.91Типовой проект 503-1-97.91Типовой проект 503-1-97.91Типовой проект 503-1-97.91Типовой проект 503-1-97.91Типовой проект 503-1-97.91Типовой проект 503-1-97.91

© 2013 Ёшкин Кот :-) Карта сайта