Информационная система
«Ёшкин Кот»

Скачать базу одним архивом
Скачать обновления
История создания базы
Карта сайта

Скачать Типовой проект 503-1-97.91 Альбом 2. Технология производства. Силовое электрооборудование. Связь и сигнализация. Пожарная сигнализация

Дата актуализации: 10.08.2017

Типовой проект 503-1-97.91

Альбом 2. Технология производства. Силовое электрооборудование. Связь и сигнализация. Пожарная сигнализация

Обозначение: Типовой проект 503-1-97.91
Обозначение англ: 503-1-97.91
Статус:не определен законодательством
Название рус.:Альбом 2. Технология производства. Силовое электрооборудование. Связь и сигнализация. Пожарная сигнализация
Дата добавления в базу:01.09.2013
Дата актуализации:05.05.2017
Дата введения:13.02.1992
Оглавление:Содержание альбома
Технология производства ТХ
   Общие данные
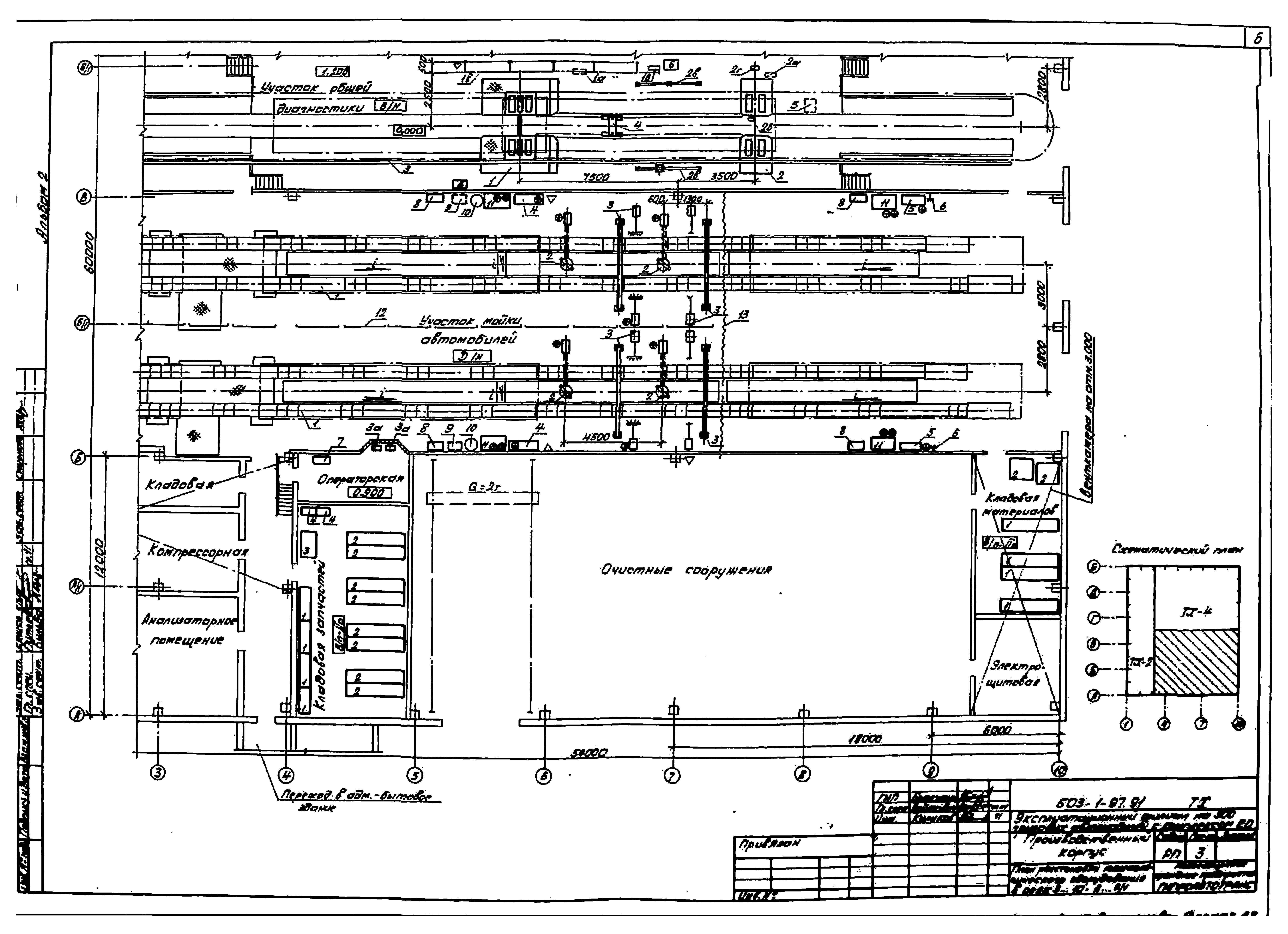
   План расстановки технологического оборудования в осях 1…3 - А…Е
   План расстановки технологического оборудования в осях 3…10 - А…В/1
   План расстановки технологического оборудования в осях 3…10 - В/1…Е
   Эстакада. Чертеж общего вида
   Эстакада. Виды, схема
   Эстакада. Разрезы, выносные элементы
   План разводки трубопроводов сжатого воздуха
   Схема разводки трубопроводов сжатого воздуха
   План разводки трубопроводов масел
   Схема разводки трубопроводов масел
Силовое электрооборудование ЭМ
   Общие данные
   Принципиальная схема комплектной трансформаторной подстанции КТП1
   Принципиальная схема комплектной трансформаторной подстанции КТП2
   Принципиальная схема питающей сети РП1, РП2, АВР1, АВР2
   Принципиальная схема питающей сети РП3, РП4
   Принципиальная схема питающей сети РП5, РП6, ШР31
   Принципиальная схема питающей сети РП7, РП8
   Принципиальная схема питающей сети РП9, РП10
   Схема электрическая принципиальная распределительной сети АВР1, АВР2
   Схема электрическая принципиальная распределительной сети ШР1, ШР2
   Схема электрическая принципиальная распределительной сети ШР3
   Схема электрическая принципиальная распределительной сети ШР4, ШР5
   Схема электрическая принципиальная распределительной сети ШР6, ШР7
   Схема электрическая принципиальная распределительной сети ШР8, ШР9
   Схема электрическая принципиальная распределительной сети ШР10
   Схема электрическая принципиальная распределительной сети ШР11
   Схема электрическая принципиальная распределительной сети ШР12, ШР13
   Схема электрическая принципиальная распределительной сети ШР14, ШР15
   Схема электрическая принципиальная распределительной сети ШР16, ШР17, ШР18
   Схема электрическая принципиальная распределительной сети ШР19, ШР20
   Схема электрическая принципиальная распределительной сети ШР21
   Схема электрическая принципиальная распределительной сети ШР22, ШР23
   Схема электрическая принципиальная распределительной сети ШР24
   Схема электрическая принципиальная распределительной сети ШР25, 26
   Схема электрическая принципиальная распределительной сети ШР7, ШР28, ШР29
   АВР. Схема электрическая принципиальная
   План расположения электрооборудования и прокладка питающих сетей
   План расположения электрооборудования и прокладки электрических сетей в осях 1 - 4; А - Е
   План расположения электрооборудования и прокладки электрических сетей в осях 4 - 10; А - В/1
   План расположения электрооборудования и прокладки электрических сетей в осях 4 - 10; В/1 - Е
   План расположения электрооборудования и прокладки электрических сетей в осях 1 - 10; А - Е
   План расположения электрооборудования и прокладки электрических сетей в очистных сооружениях на отм. 0.000
   План расположения электрооборудования и прокладки электрических сетей в очистных сооружениях на отм. 3.000
   План расположения электрооборудования и прокладки электрических сетей в венткамерах на отм. 3.000 и 3.300
   Сечения лотков
   Опросный лист для заказа КТП1
   Опросный лист для заказа КТП2
   Ведомость электромонтажных конструкций, подлежащих изготовлению в МЭЗ. Ведомость изделий и материалов для изготовления электромонтажных конструкций и деталей в МЭЗ
   Эскизный чертеж шкафа АВР1 (АВР2)
Электрическое освещение ЭО
   Общие данные
   План расположения электрического оборудования и прокладки электрических сетей на отм. 0.000 в осях 1…3; А…Е
   План расположения электрического оборудования и прокладки электрических сетей на отм. 0.000 в осях 3…10; А…В/1
   План расположения электрического оборудования и прокладки электрических сетей на отм. 0.000 в осях 3…10; В/1…Е
   План расположения электрического оборудования и прокладки электрических сетей на отм. 0.000 и 3.300
   Ведомость узлов установки электрического оборудования на плане расположения. Принципиальная схема питающей сети
   Ведомость электромонтажных конструкций, подлежащих изготовлению в МЭЗ
   Ведомость изделий и материалов для изготовления электромонтажных конструкций и деталей в МЭЗ
Связь и сигнализация СС
   Общие данные
   План сети телефонизации, часофикации, радиофикации и громкоговорящей связи
Пожарная сигнализация ПС
   Общие данные
   План сети пожарной сигнализации
   Схема электрическая подключений
Разработан: Гипроавтотранс Новосибирский филиал
Утверждён:13.02.1992 Росавтотранс (1)
Расположен в:Техническая документация Строительство Справочные документы Типовые строительные конструкции, изделия и узлы Общероссийский строительный каталог Промышленные предприятия, здания и сооружения Предприятия, здания и сооружения транспорта Транспорт автомобильный Предприятия автотранспортные, гаражи и стоянки для грузовых автомобилей и механизмов
Типовой проект 503-1-97.91Типовой проект 503-1-97.91Типовой проект 503-1-97.91Типовой проект 503-1-97.91Типовой проект 503-1-97.91Типовой проект 503-1-97.91Типовой проект 503-1-97.91Типовой проект 503-1-97.91Типовой проект 503-1-97.91Типовой проект 503-1-97.91Типовой проект 503-1-97.91Типовой проект 503-1-97.91Типовой проект 503-1-97.91Типовой проект 503-1-97.91Типовой проект 503-1-97.91Типовой проект 503-1-97.91Типовой проект 503-1-97.91Типовой проект 503-1-97.91Типовой проект 503-1-97.91Типовой проект 503-1-97.91Типовой проект 503-1-97.91Типовой проект 503-1-97.91Типовой проект 503-1-97.91Типовой проект 503-1-97.91Типовой проект 503-1-97.91Типовой проект 503-1-97.91Типовой проект 503-1-97.91Типовой проект 503-1-97.91Типовой проект 503-1-97.91Типовой проект 503-1-97.91Типовой проект 503-1-97.91Типовой проект 503-1-97.91Типовой проект 503-1-97.91Типовой проект 503-1-97.91Типовой проект 503-1-97.91Типовой проект 503-1-97.91Типовой проект 503-1-97.91Типовой проект 503-1-97.91Типовой проект 503-1-97.91Типовой проект 503-1-97.91Типовой проект 503-1-97.91Типовой проект 503-1-97.91Типовой проект 503-1-97.91Типовой проект 503-1-97.91Типовой проект 503-1-97.91Типовой проект 503-1-97.91Типовой проект 503-1-97.91Типовой проект 503-1-97.91Типовой проект 503-1-97.91Типовой проект 503-1-97.91Типовой проект 503-1-97.91Типовой проект 503-1-97.91Типовой проект 503-1-97.91Типовой проект 503-1-97.91Типовой проект 503-1-97.91Типовой проект 503-1-97.91Типовой проект 503-1-97.91Типовой проект 503-1-97.91Типовой проект 503-1-97.91Типовой проект 503-1-97.91Типовой проект 503-1-97.91Типовой проект 503-1-97.91Типовой проект 503-1-97.91Типовой проект 503-1-97.91Типовой проект 503-1-97.91Типовой проект 503-1-97.91Типовой проект 503-1-97.91

© 2013 Ёшкин Кот :-) Карта сайта