| ||||||||||||||||||||||||||||||
Скачать Часть I Клапаны (вентили) запорные из углеродистой и коррозионно-стойкой сталейДата актуализации: 10.08.2017
|
| Обозначение: | Часть I |
| Обозначение англ: | Часть I |
| Статус: | действует |
| Название рус.: | Клапаны (вентили) запорные из углеродистой и коррозионно-стойкой сталей |
| Дата добавления в базу: | 01.09.2013 |
| Дата актуализации: | 05.05.2017 |
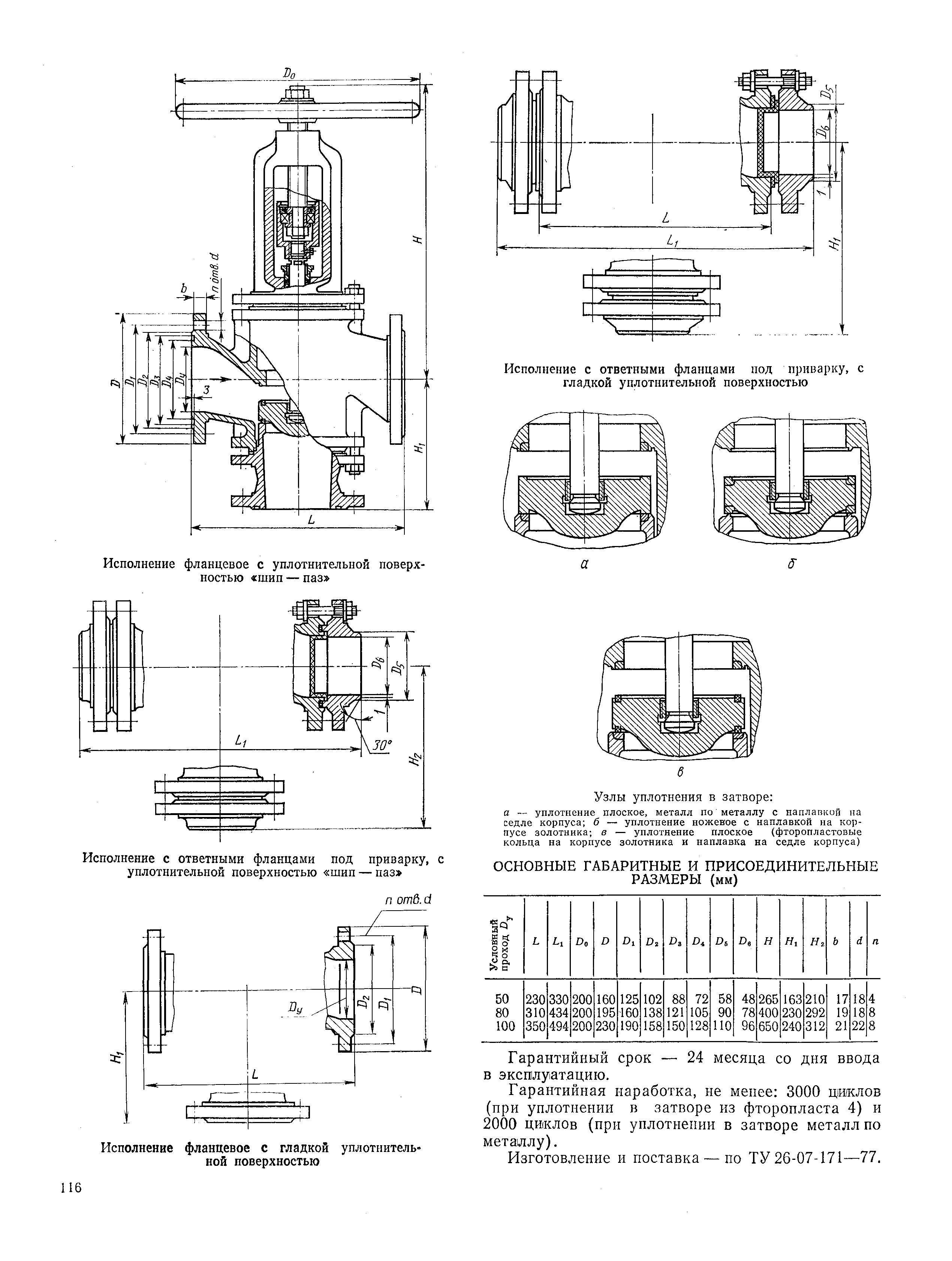
| Область применения: | Каталог содержит описание серийно изготовляемых запорных клапанов (вентилей). Каталог предназначен для инженерно-технических работников проектных организаций, проектирующих предприятий, на которых применяют промышленную трубопроводную арматуру; предприятий, изготавливающих и эксплуатирующих эту арматуру, а также работников плановых и сбытовых организаций. |
| Оглавление: | Введение Общие сведения Клапаны (вентили) запорные из углеродистой и коррозионно-стойкой сталей Приложение 1. Опорный лист Приложение 2. Перечень основных ГОСТов на клапаны (вентили) запорные |
| Разработан: | ЦКБА ЦИНТИхимнефтемаш |
| Утверждён: | ЦКБА |
| Издан: | ЦИНТИХИМНЕФТЕМАШ (1988 г. ) |
| Расположен в: | |
| Список изменений: |










































































































































































Текстовое изменение опечатки