Информационная система
«Ёшкин Кот»

Скачать базу одним архивом
Скачать обновления
История создания базы
Карта сайта

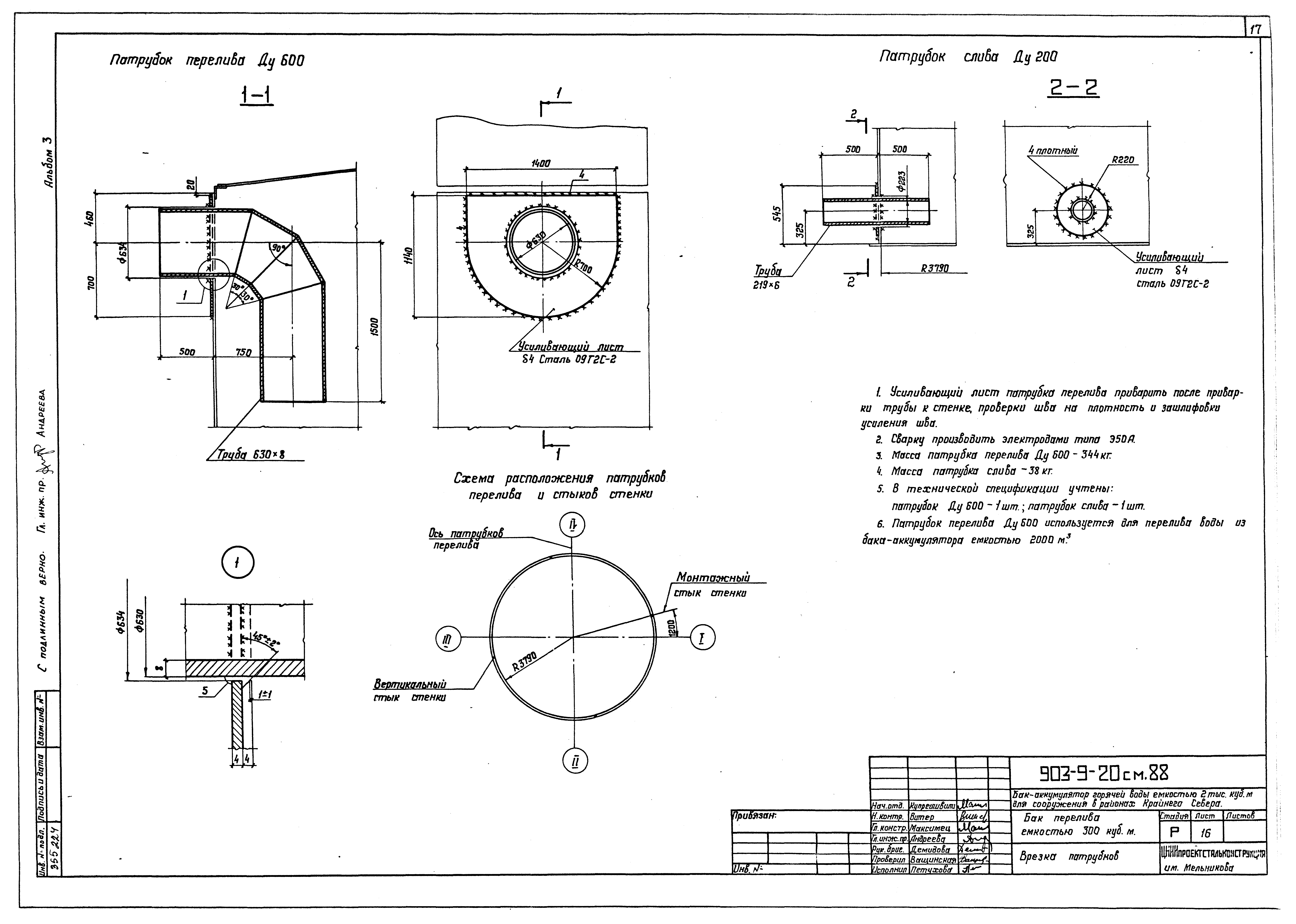
Скачать Типовой проект 903-9-21см.88 Альбом 3. Бак перелива емкостью 300 куб. м (из ТП 903-9-20см.88)

Дата актуализации: 10.08.2017

Типовой проект 903-9-21см.88

Альбом 3. Бак перелива емкостью 300 куб. м (из ТП 903-9-20см.88)

Обозначение: Типовой проект 903-9-21см.88
Обозначение англ: 903-9-21см.88
Статус:не определен законодательством
Название рус.:Альбом 3. Бак перелива емкостью 300 куб. м (из ТП 903-9-20см.88)
Дата добавления в базу:01.09.2013
Дата актуализации:05.05.2017
Дата введения:28.11.1988
Оглавление:Общие данные
Техническая спецификация стали
Ведомость металлоконструкций по видам профилей
Общий вид
Стенка
Днище
Покрытие. Монтажные узлы
Покрытие. Начальный щит
Покрытие. Промежуточный щит
Покрытие. Замыкающий щит
Покрытие. Центральное кольцо. Центральный щит
Покрытие. Узлы щитов
Площадки и ограждение на крыше
Врезка патрубков
Врезка патрубков. Исходные данные для проектирования основания и фундаментов
Разработан: ВНИПИэнергопром
ЦНИИпроектстальконструкция
Утверждён:20.01.1987 Минэнерго СССР (USSR Minenergo 3)
Расположен в:Техническая документация Строительство Справочные документы Типовые строительные конструкции, изделия и узлы Общероссийский строительный каталог Промышленные предприятия, здания и сооружения Здания и сооружения санитарно-технические Теплоснабжение Здания и сооружения разные
Типовой проект 903-9-21см.88Типовой проект 903-9-21см.88Типовой проект 903-9-21см.88Типовой проект 903-9-21см.88Типовой проект 903-9-21см.88Типовой проект 903-9-21см.88Типовой проект 903-9-21см.88Типовой проект 903-9-21см.88Типовой проект 903-9-21см.88Типовой проект 903-9-21см.88Типовой проект 903-9-21см.88Типовой проект 903-9-21см.88Типовой проект 903-9-21см.88Типовой проект 903-9-21см.88Типовой проект 903-9-21см.88Типовой проект 903-9-21см.88Типовой проект 903-9-21см.88Типовой проект 903-9-21см.88Типовой проект 903-9-21см.88

© 2013 Ёшкин Кот :-) Карта сайта