Информационная система
«Ёшкин Кот»

Скачать базу одним архивом
Скачать обновления
История создания базы
Карта сайта

Скачать Типовой проект 705-4-77с Альбом I. Стальные конструкции. Пояснительная записка. Чертежи

Дата актуализации: 10.08.2017

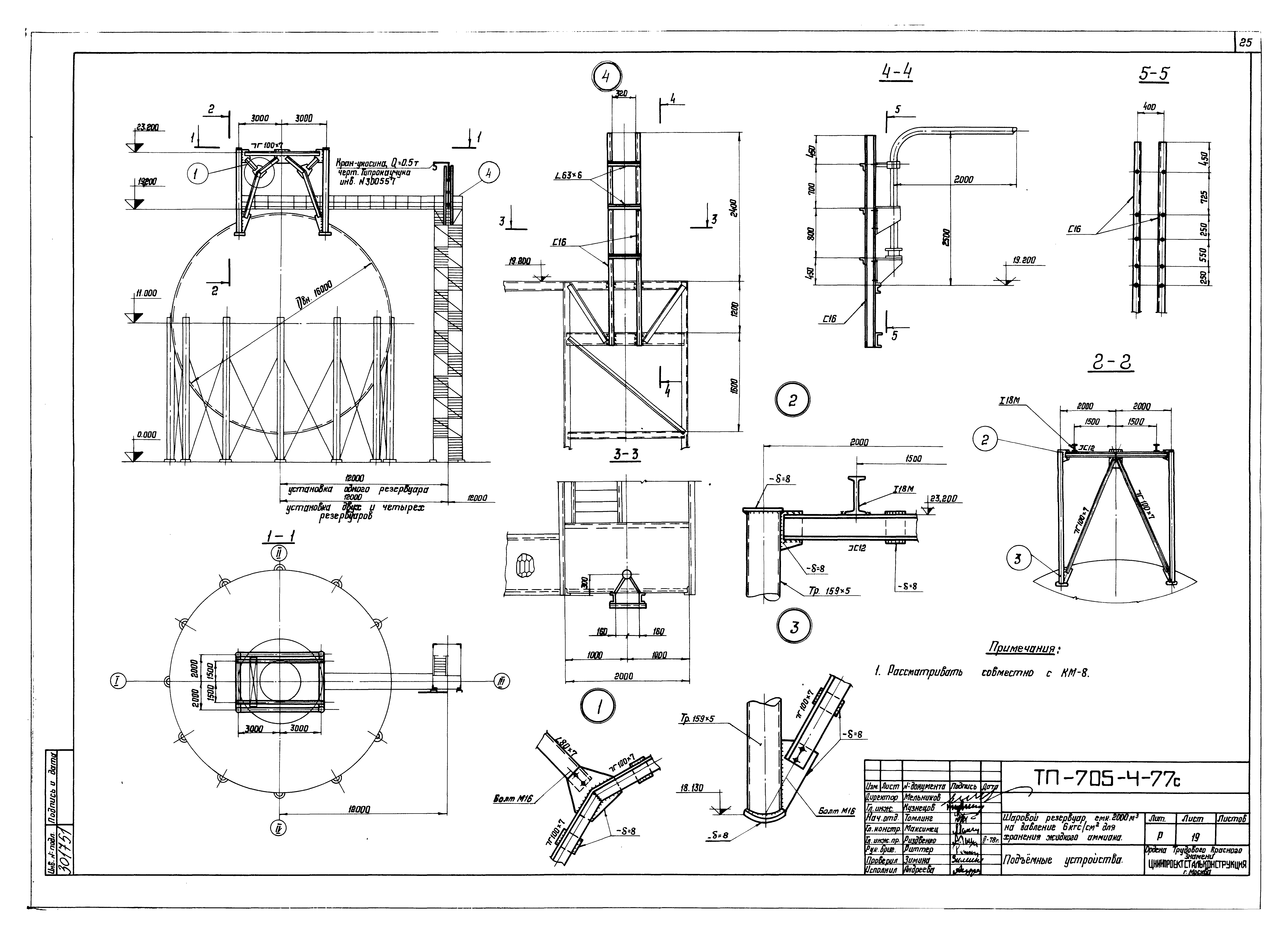
Типовой проект 705-4-77с

Альбом I. Стальные конструкции. Пояснительная записка. Чертежи

Обозначение: Типовой проект 705-4-77с
Обозначение англ: 705-4-77с
Статус:действует
Название рус.:Альбом I. Стальные конструкции. Пояснительная записка. Чертежи
Дата добавления в базу:01.09.2013
Дата актуализации:05.05.2017
Оглавление:Содержание альбома
Пояснительная записка
Расчет конструкций
Техническая спецификация стали. Установка одного резервуара
Техническая спецификация стали. Установка двух резервуаров
Техническая спецификация стали. Установка четырех резервуаров
Общий вид. Установка одного резервуара
Общий вид. Установка двух резервуаров
Общий вид. Установка четырех резервуаров
Раскрой оболочки
Опоры резервуара и узлы
Шахтная лестница. Общий вид
Шахтная лестница. Схема каркаса
Шахтная лестница. Узлы
Шахтная лестница. Марши и площадки
Шахтная лестница. Детали узлов
Кольцевая и переходная площадки. Установка одного и двух резервуаров
Кольцевая и переходная площадки. Установка четырех резервуаров
Подъемные устройства
Смотровая лестница. Общий вид
Смотровая лестница. Разрезы и узлы
Схема расположения штуцеров и люков. Экспликация штуцеров и люков
Схема расположения штуцеров и люков. Схемы установок резервуаров
Узлы штуцеров и люков
План анкерных болтов и нагрузки на фундамент
План анкерных болтов и нагрузки на фундамент. Таблица нагрузок
План анкерных болтов и нагрузки на фундамент
Опоры резервуара и узлы. Сейсмика
Разработан: ЦНИИпроектстальконструкция
Утверждён:27.12.1978 Минхимпром (16-4-47/1370)
Расположен в:Техническая документация Строительство Справочные документы Типовые строительные конструкции, изделия и узлы Общероссийский строительный каталог Промышленные предприятия, здания и сооружения Предприятия, здания и сооружения складские Склады и резервуары для химических продуктов Склады химических продуктов
Типовой проект 705-4-77сТиповой проект 705-4-77сТиповой проект 705-4-77сТиповой проект 705-4-77сТиповой проект 705-4-77сТиповой проект 705-4-77сТиповой проект 705-4-77сТиповой проект 705-4-77сТиповой проект 705-4-77сТиповой проект 705-4-77сТиповой проект 705-4-77сТиповой проект 705-4-77сТиповой проект 705-4-77сТиповой проект 705-4-77сТиповой проект 705-4-77сТиповой проект 705-4-77сТиповой проект 705-4-77сТиповой проект 705-4-77сТиповой проект 705-4-77сТиповой проект 705-4-77сТиповой проект 705-4-77сТиповой проект 705-4-77сТиповой проект 705-4-77сТиповой проект 705-4-77сТиповой проект 705-4-77сТиповой проект 705-4-77сТиповой проект 705-4-77сТиповой проект 705-4-77сТиповой проект 705-4-77сТиповой проект 705-4-77сТиповой проект 705-4-77сТиповой проект 705-4-77сТиповой проект 705-4-77сТиповой проект 705-4-77сТиповой проект 705-4-77сТиповой проект 705-4-77сТиповой проект 705-4-77сТиповой проект 705-4-77сТиповой проект 705-4-77с

© 2013 Ёшкин Кот :-) Карта сайта