Информационная система
«Ёшкин Кот»

Скачать базу одним архивом
Скачать обновления
История создания базы
Карта сайта

Скачать Типовой проект 409-29-65 Альбом II. Выпуск 1. Архитектурно-строительная и санитарно-техническая части. Инвентарный вариант (в металле)

Дата актуализации: 10.08.2017

Типовой проект 409-29-65

Альбом II. Выпуск 1. Архитектурно-строительная и санитарно-техническая части. Инвентарный вариант (в металле)

Обозначение: Типовой проект 409-29-65
Обозначение англ: 409-29-65
Статус:действует
Название рус.:Альбом II. Выпуск 1. Архитектурно-строительная и санитарно-техническая части. Инвентарный вариант (в металле)
Дата добавления в базу:01.09.2013
Дата актуализации:05.05.2017
Оглавление:Содержание
Архитектурно-строительные решения
   Общие данные
   Планы на отм. 0.000; 1.100; 2.000; - 5.200. Разрезы 5-5, 6-6
   Планы на отм. 2.700; 4.800; 6.000; 16.960. Разрез 7-7. Деталь 5
   Разрезы 1-1, 2-2, 3-3
   Разрез 4-4. Детали 1 - 4
   Фасады. Схема заполнения оконного проема
   Планы на отм. 0.000; 6.000; 16.960. Разрез 8-8
   Маркировочные схемы раскладки листов и установки креплений в кровле и стенах галереи. Фасады 1 - 7; 7 - 1
   Маркировочные схемы раскладки листов и установки креплений в кровле и стенах галереи. Детали 6 и 7
   Маркировочные схемы раскладки листов и установки креплений в кровле навесов и стене по оси 1. Детали 8 - 11
Конструкции железобетонные
   Общие данные
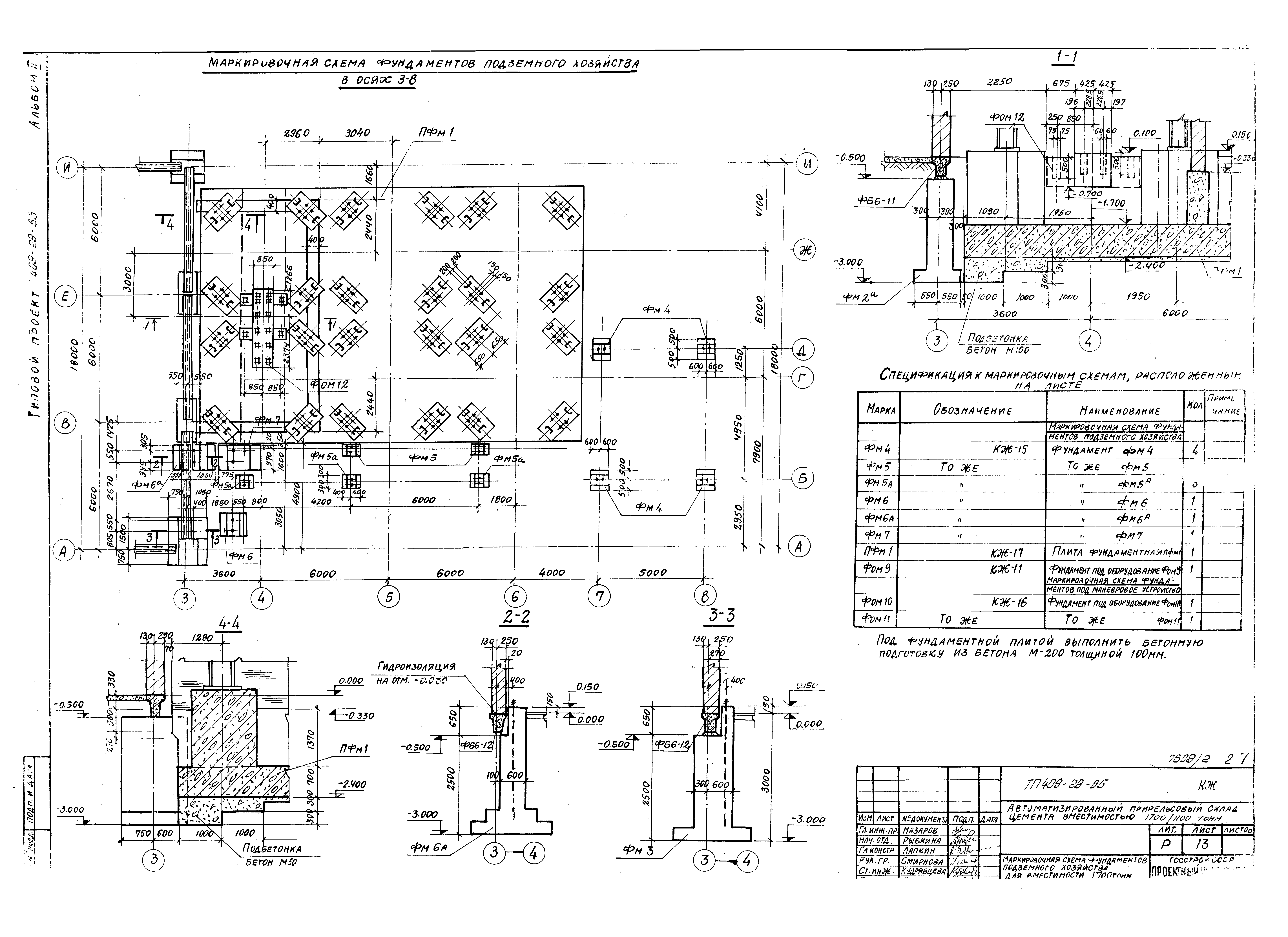
   Маркировочная схема фундаментов, фундаментных балок и подземного хозяйства в осях 1 - 3
   Маркировочная схема фундаментов, фундаментных балок и подземного хозяйства в осях 1 - 3. Узел 3. Сечение А-А. ПК1, ПК2
   Маркировочная схема подвала приемного бункера. Фундаменты ФОМ1, ФОМ2
   Подвал приемного бункера. Стена СТМ1
   Подвал приемного бункера. Стена СТМ2
   Подвал приемного бункера. Стена СТМ3, СТМ4 и фундамент ФОМ13
   Приямок входа в подвал приемного бункера ПРМ1
   Фундаменты ФОМ3 - ФОМ9
   Фундаменты ФМ1, ФМ2, ФМ2а. Приямок ПРМ2. Камера для воды К1
   Маркировочная схема фундаментов подземного хозяйства для вместимости 1700 тонн
   Маркировочная схема фундаментов подземного хозяйства для вместимости 1100 тонн
   Фундаменты ФМ3, ФМ4, ФМ5, ФМ5а, ФМ6, ФМ6а, ФМ7
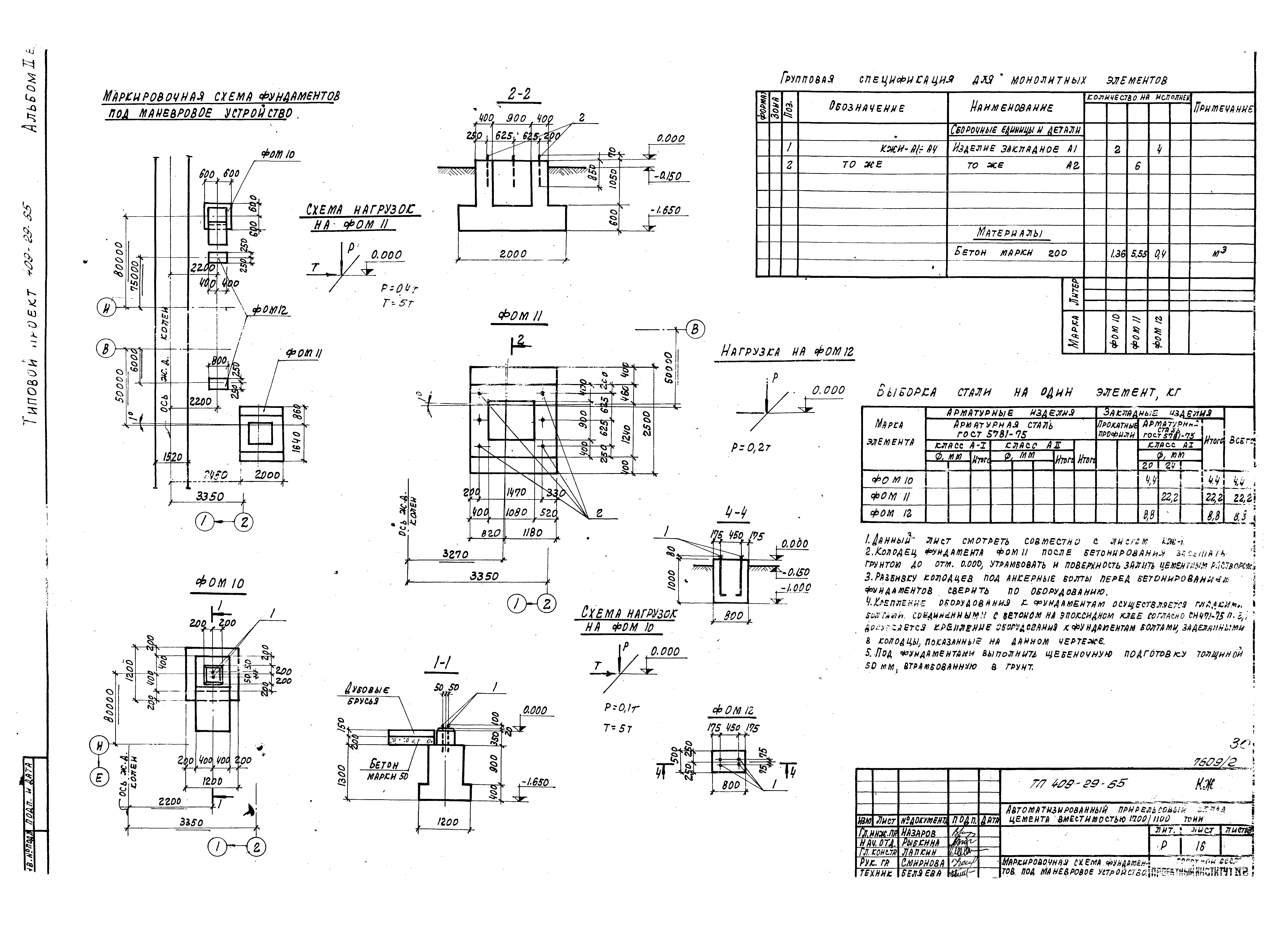
   Маркировочная схема фундаментов под маневровое устройство. Фундаменты ФОМ10 - ФОМ12
   Плиты фундаментные ПФМ-1, ПФМ-2. Узел 1
   Плита фундаментная ПФм1 (армирование)
   Плита фундаментная ПФм2 (армирование)
   Маркировочные схемы стеновых щитов приемного устройства. Спецификация
   Маркировочные схемы стеновых щитов помещения пневмовинтового насоса. Узлы 1 - 4
   Маркировочная схема щитов покрытия пневмовинтового насоса. Узлы
   Маркировочная схема щитов покрытия приемного устройства. Узлы
Конструкции металлические
   Ведомость чертежей основного комплекта
   Общие данные
   План анкерных болтов. Нагрузки на фундаменты
   Склад вместимостью 1700 т. Схема склада
   Техническая спецификация стали склада вместимостью 1700 т
   Техническая спецификация стали склада вместимостью 1700 т (выдача в автоцементовозы с самозагрузкой)
   Ведомости металлоконструкций по видам профилей склада вместимостью 1700 т
   Склад вместимостью 1100 т. Схема склада
   Техническая спецификация стали склада вместимостью 1100 т
   Техническая спецификация стали склада вместимостью 1100 т (выдача в автоцементовозы с самозагрузкой)
   Ведомости металлоконструкций по видам профилей склада вместимостью 1100 т
   Силосы
      Общий вид силоса
      Разрезы 4-4 - 8-8. Узлы 1, 2
      Узел опирания силоса на колонну
      Воронка силоса ОБ-5
      Опора силоса. Узлы 3, 4, 5
      Крышки силосов ОБ-6. Узлы 6, 7, 8
      Узлы 9 - 15
   Надсилосная площадка
      Блоки БП-1, БП-2. Узлы 1 - 4
      Блоки БП-3, БП-4
      Блоки БП-5, БП-6
      Блоки БП-7, БП-8
   Надсилосная галерея
      Склад вместимостью 1700 т. Схема каркаса. Планы. Разрезы
      Склад вместимостью 1100 т. Схема каркаса. Планы. Разрезы
      Узлы 1 - 6
   Приемное устройство
      Схема каркаса. Разрез 1-1
      Схема каркаса. Разрезы 2-2 - 4-4; 7-7
      Разрез 5-5. Узлы 1 - 4
      Узлы 5, 6, 7, 8
      Схема приемного бункера
      Узлы 9, 10, 11
      Узлы 12 - 18
      Блок БТ1. Узлы 19, 20, 21
      Блоки БТ2, БТ3. Щиты Щ1 - Щ4. Помещение пневмовинтового насоса
      Схема каркаса. Планы. Разрезы
      Узлы 1 - 6
   Площадка обслуживания боковых разгружателей узел выдачи на автотранспорт
      Склад вместимостью 1700 т. Схема каркаса. Планы. Разрез 1-1
      Схема каркаса. Блоки ПЛ-1, ПЛ-2. Разрезы 2-2 - 6-6
      Блоки ПЛ-3 - ПЛ-7. Узлы 1, 2, 3
      Узлы 4 - 8
      Склад вместимостью 1100 т. Схема каркаса. Планы. Разрезы
   Лестница
      Схема лестницы. Блоки БЛ-1, БЛ-2
      Блоки БЛ-3 - БЛ-8. Узел 1
      Узлы 2, 3, 4
Отопление и вентиляция
   Общие данные
   План и схема систем отопления и вентиляции
Водопровод и канализация
   Общие данные
   План на отм. 0.000; 1.100. Схемы систем В1, В5, В6, К3. Сводная спецификация
Организация строительства
   Общие положения по организации строительства
Разработан: Гипростроммашина
Укрпроектстальконструкция
Проектный институт № 2 Госстроя СССР
Утверждён:02.07.1979 Госстрой СССР (Государственный комитет Совета Министров СССР по делам строительства) (USSR Gosstroy 35)
Расположен в:Техническая документация Строительство Справочные документы Типовые строительные конструкции, изделия и узлы Общероссийский строительный каталог Промышленные предприятия, здания и сооружения Предприятия, здания и сооружения складские Склады строительных материалов и изделий
Типовой проект 409-29-65Типовой проект 409-29-65Типовой проект 409-29-65Типовой проект 409-29-65Типовой проект 409-29-65Типовой проект 409-29-65Типовой проект 409-29-65Типовой проект 409-29-65Типовой проект 409-29-65Типовой проект 409-29-65Типовой проект 409-29-65Типовой проект 409-29-65Типовой проект 409-29-65Типовой проект 409-29-65Типовой проект 409-29-65Типовой проект 409-29-65Типовой проект 409-29-65Типовой проект 409-29-65Типовой проект 409-29-65Типовой проект 409-29-65Типовой проект 409-29-65Типовой проект 409-29-65Типовой проект 409-29-65Типовой проект 409-29-65Типовой проект 409-29-65Типовой проект 409-29-65Типовой проект 409-29-65Типовой проект 409-29-65Типовой проект 409-29-65Типовой проект 409-29-65Типовой проект 409-29-65Типовой проект 409-29-65Типовой проект 409-29-65Типовой проект 409-29-65Типовой проект 409-29-65Типовой проект 409-29-65Типовой проект 409-29-65Типовой проект 409-29-65Типовой проект 409-29-65Типовой проект 409-29-65Типовой проект 409-29-65Типовой проект 409-29-65Типовой проект 409-29-65Типовой проект 409-29-65Типовой проект 409-29-65Типовой проект 409-29-65Типовой проект 409-29-65Типовой проект 409-29-65Типовой проект 409-29-65Типовой проект 409-29-65Типовой проект 409-29-65Типовой проект 409-29-65Типовой проект 409-29-65Типовой проект 409-29-65Типовой проект 409-29-65Типовой проект 409-29-65Типовой проект 409-29-65Типовой проект 409-29-65Типовой проект 409-29-65Типовой проект 409-29-65Типовой проект 409-29-65Типовой проект 409-29-65Типовой проект 409-29-65Типовой проект 409-29-65Типовой проект 409-29-65Типовой проект 409-29-65Типовой проект 409-29-65Типовой проект 409-29-65Типовой проект 409-29-65Типовой проект 409-29-65Типовой проект 409-29-65Типовой проект 409-29-65Типовой проект 409-29-65Типовой проект 409-29-65Типовой проект 409-29-65Типовой проект 409-29-65Типовой проект 409-29-65Типовой проект 409-29-65Типовой проект 409-29-65Типовой проект 409-29-65Типовой проект 409-29-65Типовой проект 409-29-65Типовой проект 409-29-65Типовой проект 409-29-65Типовой проект 409-29-65Типовой проект 409-29-65Типовой проект 409-29-65Типовой проект 409-29-65Типовой проект 409-29-65Типовой проект 409-29-65Типовой проект 409-29-65Типовой проект 409-29-65Типовой проект 409-29-65Типовой проект 409-29-65Типовой проект 409-29-65Типовой проект 409-29-65Типовой проект 409-29-65Типовой проект 409-29-65Типовой проект 409-29-65Типовой проект 409-29-65Типовой проект 409-29-65Типовой проект 409-29-65Типовой проект 409-29-65

© 2013 Ёшкин Кот :-) Карта сайта