Информационная система
«Ёшкин Кот»

Скачать базу одним архивом
Скачать обновления
История создания базы
Карта сайта

Скачать Типовой проект 701-5-1с.87 Альбом II. Конструкции металлические

Дата актуализации: 10.08.2017

Типовой проект 701-5-1с.87

Альбом II. Конструкции металлические

Обозначение: Типовой проект 701-5-1с.87
Обозначение англ: 701-5-1с.87
Статус:не определен законодательством
Название рус.:Альбом II. Конструкции металлические
Дата добавления в базу:01.09.2013
Дата актуализации:05.05.2017
Дата введения:20.08.1985
Оглавление:Общие данные
Техническая спецификация стали
Общий вид. Фасад и план
Общий вид. Разрез и таблица показателей расхода стали
Днища
Стенка
Покрытие. Монтажные узлы
Покрытие. Центральное кольцо
Покрытие. Начальный щит
Покрытие. Промежуточный щит
Покрытие. Замыкающий щит
Покрытие. Узлы щитов
Шахтная лестница. Общий вид. Разрезы и узлы
Шахтная лестница. Планы. Лист 1
Шахтная лестница. Планы. Лист 2
Шахтная лестница. Марши и площадки
Шахтная лестница. Переходная площадка и ограждение
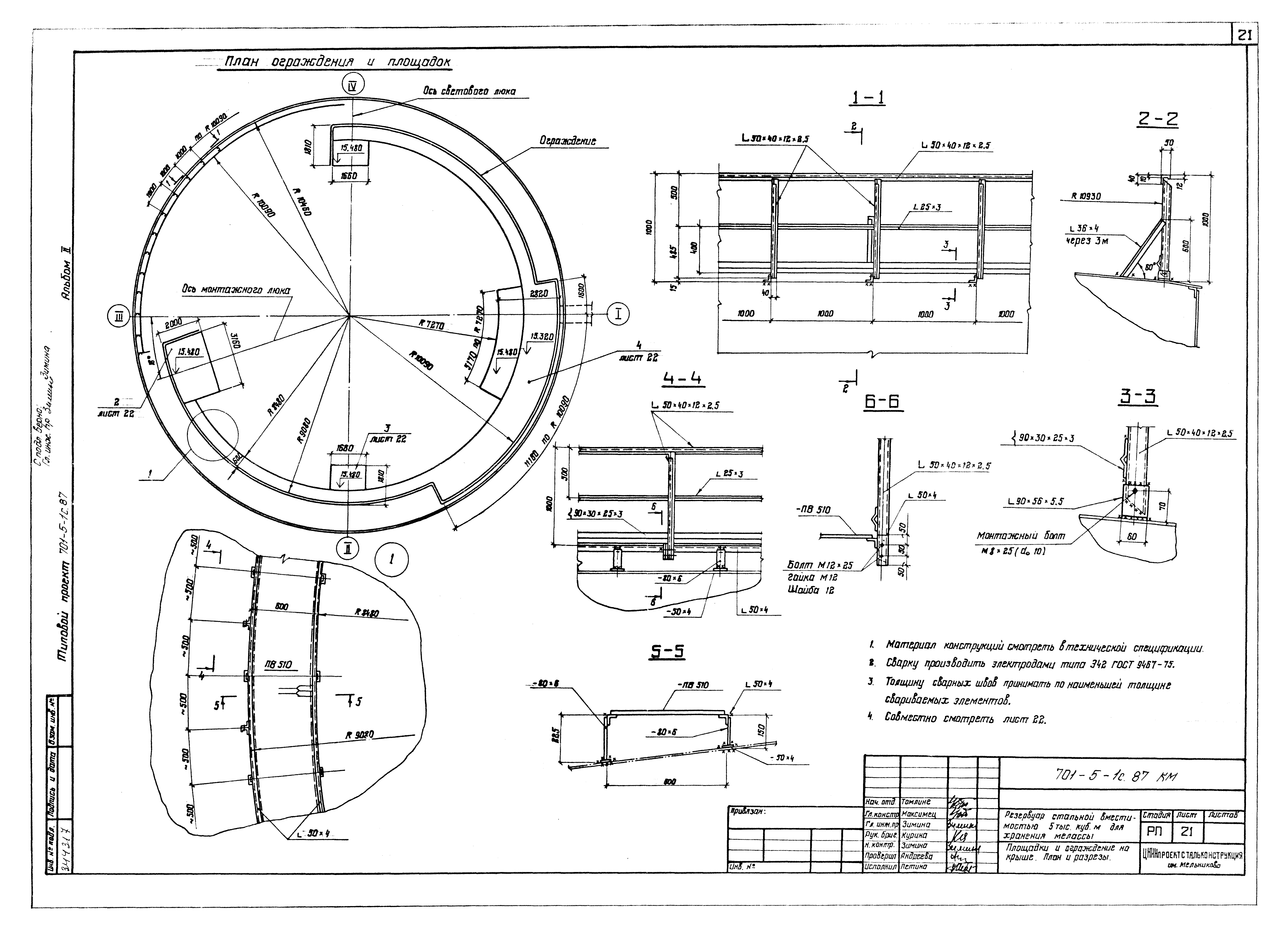
Площадки и ограждение на крыше. План и разрезы
Площадки и ограждение на крыше. Узлы
Внутренняя лестница
Люки-лазы в I поясе стенки
Люк монтажный и штуцера на крыше
Нагрузка на фундамент
Площадки для обслуживания контрольно-измерительных приборов
Ведомость металлоконструкций по видам профилей
Разработан: ЦНИИпроектстальконструкция Госстроя
Утверждён:20.08.1985 Минпищепром СССР (USSR Minpisheprom 7727)
Расположен в:Техническая документация Строительство Справочные документы Типовые строительные конструкции, изделия и узлы Общероссийский строительный каталог Промышленные предприятия, здания и сооружения Предприятия, здания и сооружения складские Здания и сооружения складские общего назначения, холодильники и склады жидких пищевых продуктов резервуарного хранения Склады жидких пищевых продуктов резервуарного хранения
Типовой проект 701-5-1с.87Типовой проект 701-5-1с.87Типовой проект 701-5-1с.87Типовой проект 701-5-1с.87Типовой проект 701-5-1с.87Типовой проект 701-5-1с.87Типовой проект 701-5-1с.87Типовой проект 701-5-1с.87Типовой проект 701-5-1с.87Типовой проект 701-5-1с.87Типовой проект 701-5-1с.87Типовой проект 701-5-1с.87Типовой проект 701-5-1с.87Типовой проект 701-5-1с.87Типовой проект 701-5-1с.87Типовой проект 701-5-1с.87Типовой проект 701-5-1с.87Типовой проект 701-5-1с.87Типовой проект 701-5-1с.87Типовой проект 701-5-1с.87Типовой проект 701-5-1с.87Типовой проект 701-5-1с.87Типовой проект 701-5-1с.87Типовой проект 701-5-1с.87Типовой проект 701-5-1с.87Типовой проект 701-5-1с.87Типовой проект 701-5-1с.87Типовой проект 701-5-1с.87Типовой проект 701-5-1с.87Типовой проект 701-5-1с.87

© 2013 Ёшкин Кот :-) Карта сайта