| ||||||||||||||||||||||||
Скачать Рекомендации по проектированию усадебных жилых домов для сельского строительстваДата актуализации: 10.08.2017 |
| Статус: | cправочные материалы, мп, тпр |
| Название рус.: | Рекомендации по проектированию усадебных жилых домов для сельского строительства |
| Дата добавления в базу: | 01.09.2013 |
| Дата актуализации: | 05.05.2017 |
| Область применения: | Рекомендации по проектированию усадебных жилых домов и хозяйственных построек при них для государственного, колхозного и индивидуального строительства в сельской местности разработаны с учетом измененных нормативных требований, опыта проектирования и технико—экономических обоснований по выбору оптимальных решений. В Рекомендациях рассматриваются одно— и двухквартирные усадебные жилые дома с квартирами от двух до пяти комнат. С целью сокращения теплопотерь и стоимости строительства однокомнатные квартиры для лиц, занимающихся подсобным хозяйством целесообразно размещать в многоквартирных блокированных домах с приквартирными земельными участками. |
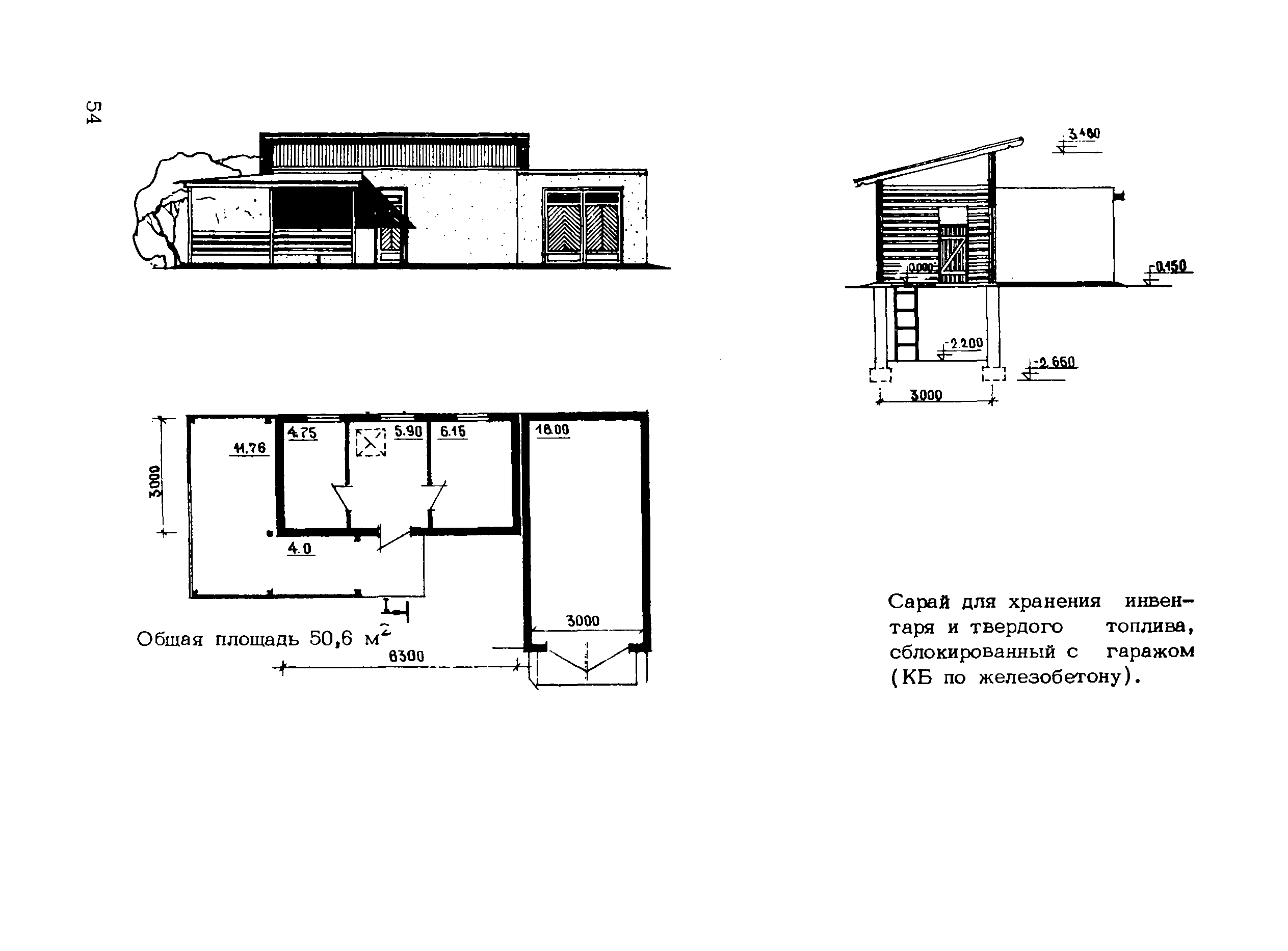
| Оглавление: | Введение 1. Типы домов 2. Типы квартир 3. Хозяйственные постройки 4. Технико-экономические показатели Заключение Иллюстрации |
| Разработан: | ЦНИИЭП граждансельстрой ЦНИИЭП жилища |
| Утверждён: | 30.03.1984 ЦНИИЭП жилища (TsNIIEPzhilishcha 13) |
| Расположен в: | |
| Нормативные ссылки: |
























































