Скачать Типовой проект 503-4-18 Альбом I. Общая пояснительная записка, технологические, электротехнические решения, автоматизация производства и санитарно-технических систем, устройства связи и сигнализации, архитектурно-строительные решения, конструкции железобетонные, отопление и вентиляция, внутренние водопровод и канализацияДата актуализации: 10.08.2017 Типовой проект 503-4-18
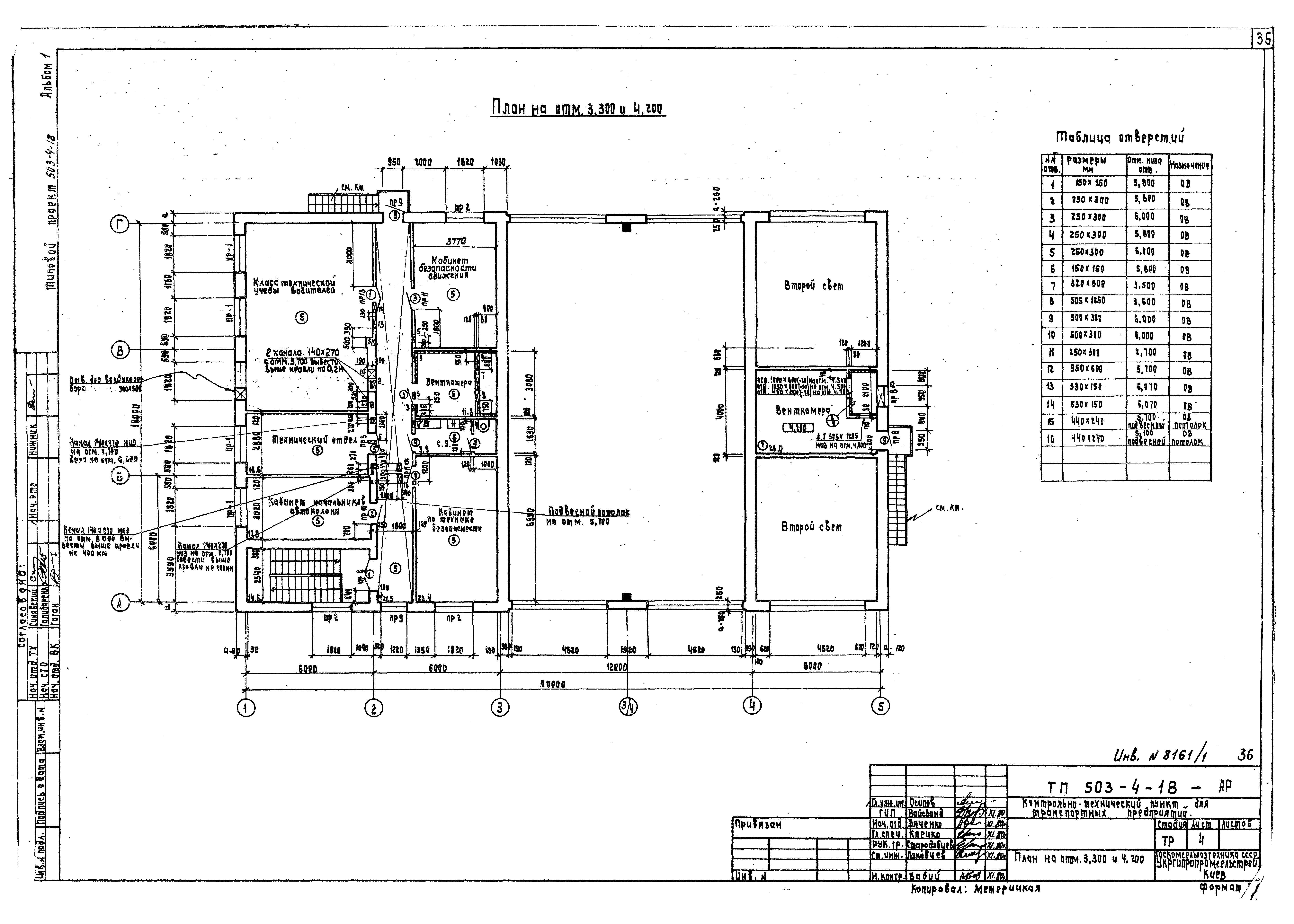
Альбом I. Общая пояснительная записка, технологические, электротехнические решения, автоматизация производства и санитарно-технических систем, устройства связи и сигнализации, архитектурно-строительные решения, конструкции железобетонные, отопление и вентиляция, внутренние водопровод и канализацияОбозначение: | Типовой проект 503-4-18 | Обозначение англ: | 503-4-18 | Статус: | действует | Название рус.: | Альбом I. Общая пояснительная записка, технологические, электротехнические решения, автоматизация производства и санитарно-технических систем, устройства связи и сигнализации, архитектурно-строительные решения, конструкции железобетонные, отопление и вентиляция, внутренние водопровод и канализация | Дата добавления в базу: | 01.09.2013 | Дата актуализации: | 05.05.2017 | Оглавление: | Содержание альбома Пояснительная записка Чертежи основного комплекта марки Т Общие данные План расположения технологического оборудования на отм. 0.000 План расположения технологического оборудования на отм. 3.300 Чертежи основного комплекта марки ЭЛ Общие данные План сети электроосвещения на отм. 0.000. Расчетные таблицы щитов освещения ЩО-1 - ЩО-3 План сети электроосвещения на отм. 3.300 и 4.200. Схема питающей сети электроосвещения План сети силового электрооборудования на отм. 0.000 План сети силового электрооборудования кровли на отм. 3.300 и на отм. 4.200 Расчетно-монтажные таблицы щитов ШР-1, ШР-3 Крышные вентиляторы В-2, В-3, В-4, В-5. Схема электрическая принципиальная управления Крышные вентиляторы В-2, В-3, В-4, В-5. Схема подключений Чертежи основного комплекта марки АО Общие данные Приточные установки П1, П2. Функциональная схема автоматизации Приточные установки П1, П2. Схема электрическая принципиальная управления Приточные установки П1, П2. Схема подключений Воздушно-тепловые завесы. Схема электрическая принципиальная управления Воздушно-тепловые завесы. Схема подключений Вытяжные установки В3, В4. Схема электрическая принципиальная управления Вытяжные установки В3, В4. Схема подключений Схема расположения Чертежи основного комплекта марки СС Общие данные План сетей связи и сигнализации на отм. 0.000 План сетей связи и сигнализации на отм. 3.300 Чертежи основного комплекта марки АР Общие данные План на отм. 0.000 План на отм. 3.300 и 4.200 Фасады 1 - 5; 5 - 1 Фасады А - Г; Г - А. Схемы заполнения оконных проемов Разрез 1-1. ВШ-1. Деталь утепления панелей. План расположения козырьков План кровли. Экспликация покрытия и полов Окно О-1. Детали 1 - 4. Фрагмент раскладки асбестоцементных волнистых листов покрытия Чертежи основного комплекта марки КЖ Общие данные Схема расположения фундаментов, каналов и приямков. Сечения Канал Кл-2. Сечения Схема расположения плит покрытия канала Кл-2. Сечения 4-4 - 9-9 Канал Кл-2 Приямки ПРм1 - ПРм-2. Каналы Кл-3 - Кл-4 Схемы расположения ферм, прогонов, опорных плит связей для снеговой нагрузки 70 кгс/кв. м; 100 кгс/кв. м; 150 кгс/кв. м Схема расположения элементов лестницы между осями "1 - 2", элементов каркаса между осями "3 - 4", "4 - 3", элементов ворот между осями "4 - 5" и "5 - 4" Схемы расположения плит покрытия на отм. 6.300 и перекрытий на отм. 3.000; 3.900 Монолитные участки Ум-1, Ум-2, Ум-3 Ферма ФС-1, колонна К-2. Опорная подушка ОП-2. Опалубочные чертежи Схема расположения прогонов и связей покрытия для снеговой нагрузки 70 кгс/кв. м; 100 кгс/кв. м; 150 кгс/кв. м Схемы расположения элементов лестницы ЛМ1 между осями "5" - "Б", металлических прогонов подвесного потолка. Спецификация Металлические изделия Чертежи основного комплекта марки ОВ Общие данные Вентиляция. План на отм. 0.000 Вентиляция. План на отм. 3.300 и 4.200. План кровли Вентиляция. Установки систем П1 и П2 Вентиляция. Схемы систем П1, П2, В1, В2, ВЕ1, ВЕ2 Отопление и теплоснабжение. Планы на отм. 0.000; 3.300; 4.200 Отопление. Система отопления №1, №2. Узлы управления №1, №2 Теплоснабжение. Система теплоснабжения установок У1, 1а, У2, 2а Чертежи основного комплекта марки ВК Общие данные План на отм. 0.000; 3.300 в осях 1 - 3 Схемы систем В1, В2, Т3, К1 Чертежи основного комплекта марки ПП Общие данные. Фрагмент плана на отм. 0.000. Схема разводки трубопроводов сжатого воздуха | Разработан: | Укргипропромсельстрой
| Утверждён: | 10.04.1981 Госкомсельхозтехника СССР (19)
| Расположен в: |
|
                                                                        
|