Информационная система
«Ёшкин Кот»

Скачать базу одним архивом
Скачать обновления
История создания базы
Карта сайта

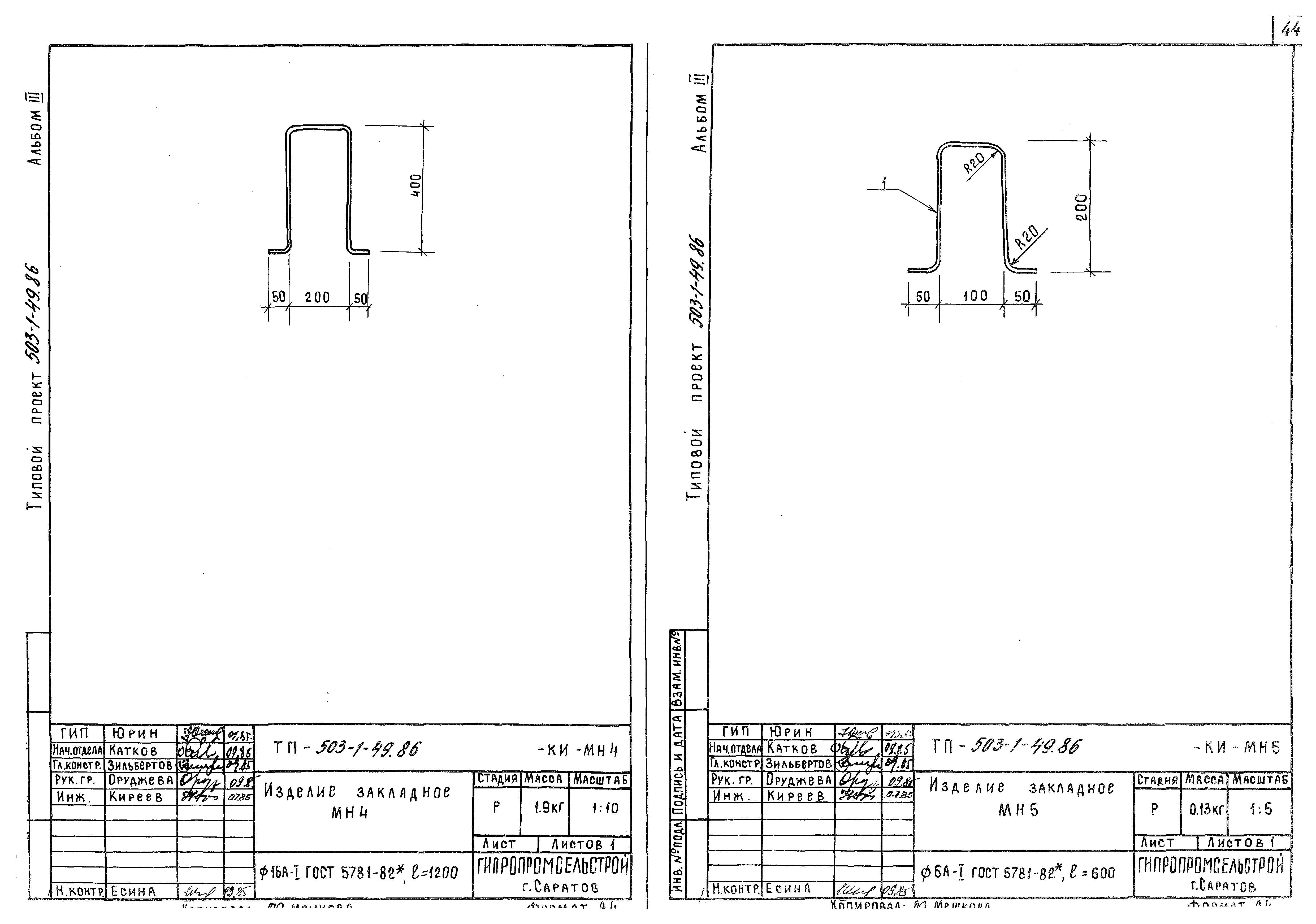
Скачать Типовой проект 503-1-49.86 Альбом III. Чертежи индустриальных конструкций и изделий

Дата актуализации: 10.08.2017

Типовой проект 503-1-49.86

Альбом III. Чертежи индустриальных конструкций и изделий

Обозначение: Типовой проект 503-1-49.86
Обозначение англ: 503-1-49.86
Статус:не определен законодательством
Название рус.:Альбом III. Чертежи индустриальных конструкций и изделий
Дата добавления в базу:01.09.2013
Дата актуализации:05.05.2017
Дата введения:21.11.1985
Оглавление:Содержание альбома
Технические требования к изготовлению металлических изделий
Колонны
Ферма подстропильная
Фермы
Плита покрытия
Стакан
Ригели
Плита перекрытия
Плита
Панели
Балки
Насадки
Стойка
Решетка
Ограждение
Изделие соединительное
Изделие закладное
Каркас пространственный
Каркас плоский
Сетка арматурная
Изделие соединительное
Разработан: Гипропромсельстрой
Утверждён:31.10.1983 Госкомсельхозтехника СССР (66)
Расположен в:Техническая документация Строительство Справочные документы Типовые строительные конструкции, изделия и узлы Общероссийский строительный каталог Защитные сооружения гражданской обороны Типовые проекты защитных сооружений гражданской обороны для объектов промышленности, электроэнергетики, транспорта, связи и складского хозяйства Встроенные помещения, приспосабливаемые под противорадиационные укрытия Противорадиационные укрытия в зданиях и сооружениях транспорта Промышленные предприятия, здания и сооружения Предприятия, здания и сооружения транспорта Транспорт автомобильный Предприятия автотранспортные, гаражи и стоянки для грузовых автомобилей и механизмов
Типовой проект 503-1-49.86Типовой проект 503-1-49.86Типовой проект 503-1-49.86Типовой проект 503-1-49.86Типовой проект 503-1-49.86Типовой проект 503-1-49.86Типовой проект 503-1-49.86Типовой проект 503-1-49.86Типовой проект 503-1-49.86Типовой проект 503-1-49.86Типовой проект 503-1-49.86Типовой проект 503-1-49.86Типовой проект 503-1-49.86Типовой проект 503-1-49.86Типовой проект 503-1-49.86Типовой проект 503-1-49.86Типовой проект 503-1-49.86Типовой проект 503-1-49.86Типовой проект 503-1-49.86Типовой проект 503-1-49.86Типовой проект 503-1-49.86Типовой проект 503-1-49.86Типовой проект 503-1-49.86Типовой проект 503-1-49.86Типовой проект 503-1-49.86Типовой проект 503-1-49.86Типовой проект 503-1-49.86Типовой проект 503-1-49.86Типовой проект 503-1-49.86Типовой проект 503-1-49.86Типовой проект 503-1-49.86Типовой проект 503-1-49.86Типовой проект 503-1-49.86Типовой проект 503-1-49.86Типовой проект 503-1-49.86Типовой проект 503-1-49.86Типовой проект 503-1-49.86Типовой проект 503-1-49.86Типовой проект 503-1-49.86Типовой проект 503-1-49.86Типовой проект 503-1-49.86Типовой проект 503-1-49.86Типовой проект 503-1-49.86Типовой проект 503-1-49.86Типовой проект 503-1-49.86Типовой проект 503-1-49.86Типовой проект 503-1-49.86Типовой проект 503-1-49.86Типовой проект 503-1-49.86Типовой проект 503-1-49.86Типовой проект 503-1-49.86Типовой проект 503-1-49.86Типовой проект 503-1-49.86Типовой проект 503-1-49.86Типовой проект 503-1-49.86Типовой проект 503-1-49.86Типовой проект 503-1-49.86Типовой проект 503-1-49.86Типовой проект 503-1-49.86Типовой проект 503-1-49.86Типовой проект 503-1-49.86Типовой проект 503-1-49.86Типовой проект 503-1-49.86

© 2013 Ёшкин Кот :-) Карта сайта