Скачать Типовой проект 503-1-49.86 Альбом II. Части 1, 2. Архитектурные решения. Конструкции железобетонные. Конструкции металлическиеДата актуализации: 10.08.2017 Типовой проект 503-1-49.86
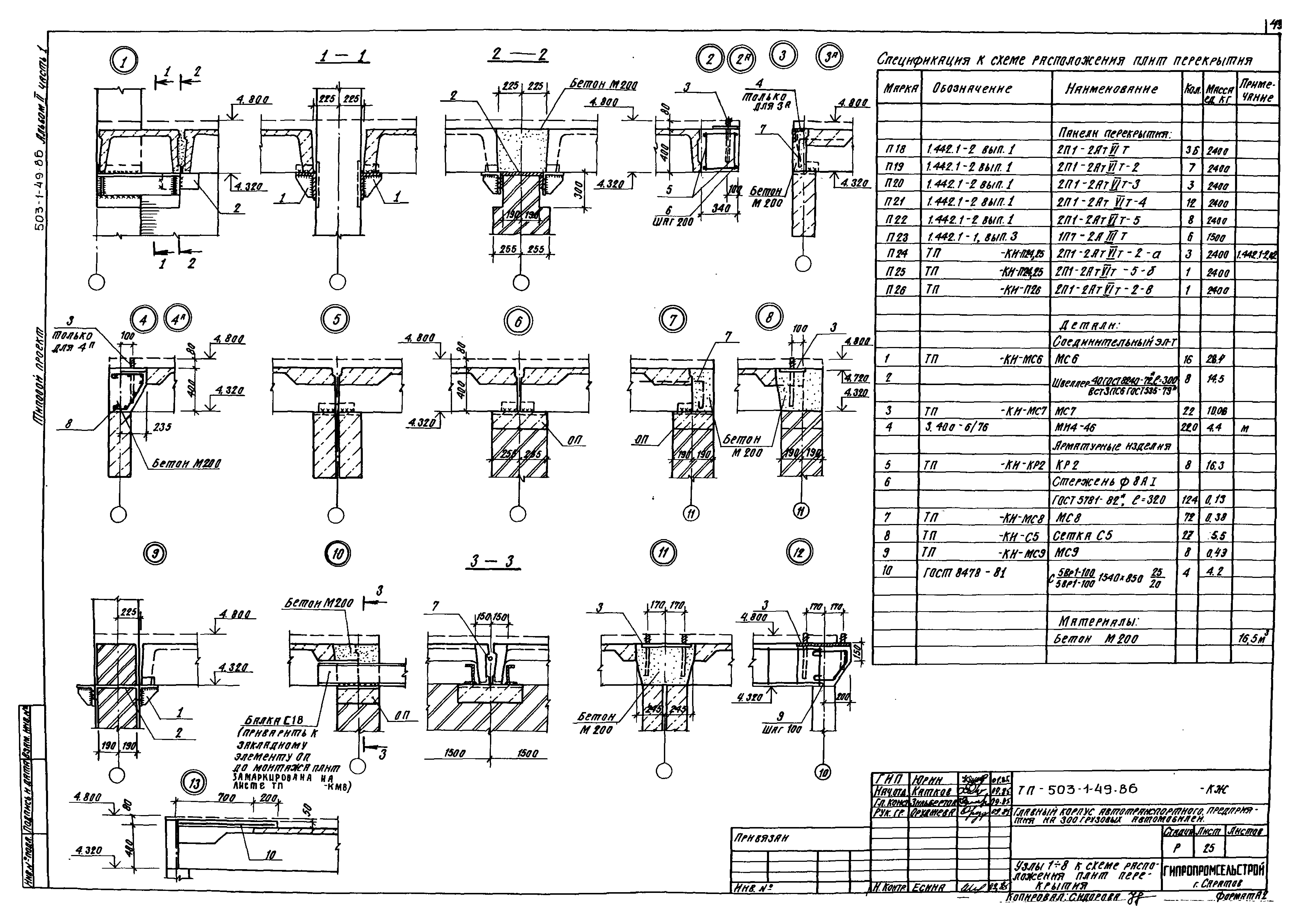
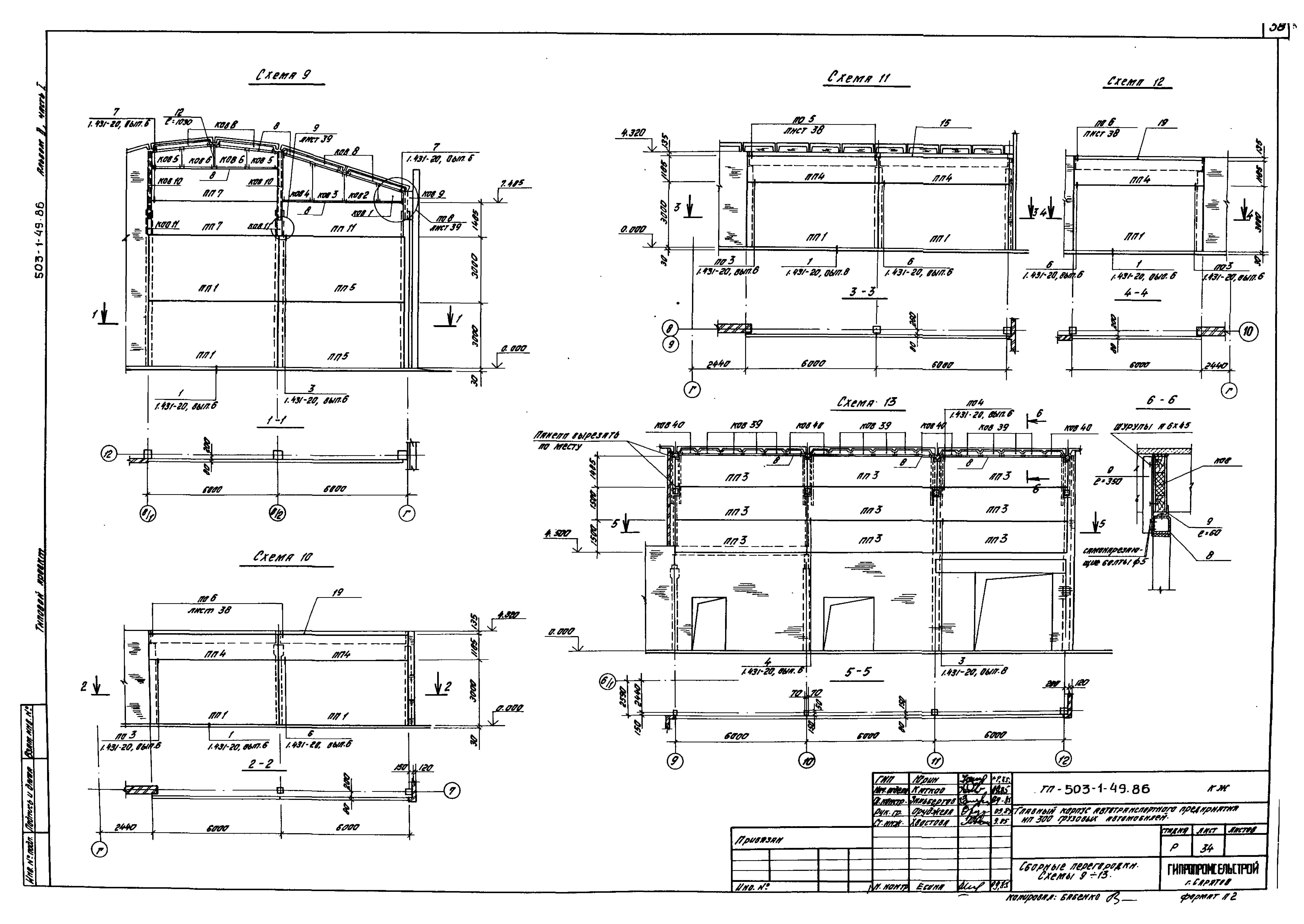
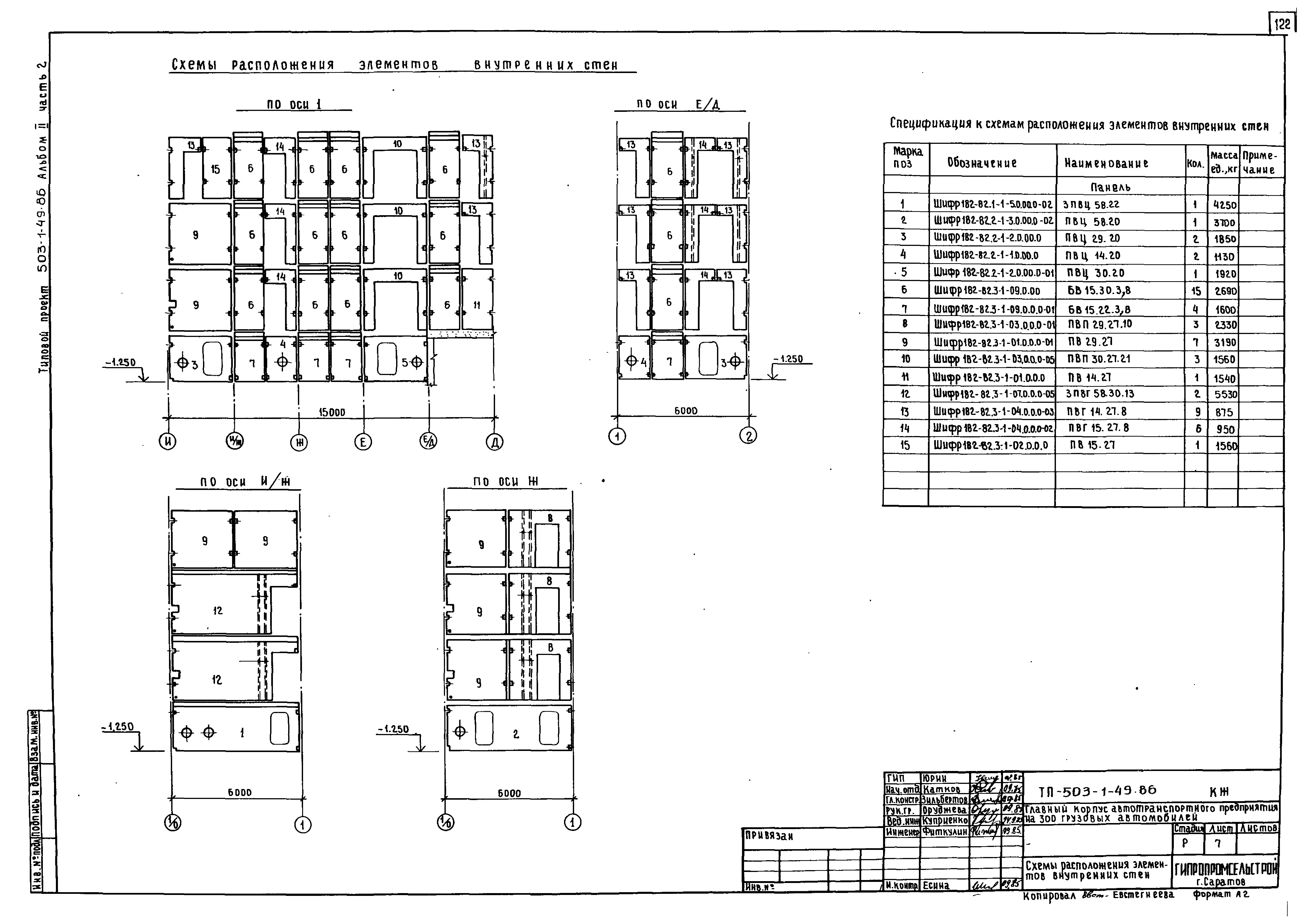
Альбом II. Части 1, 2. Архитектурные решения. Конструкции железобетонные. Конструкции металлическиеОбозначение: | Типовой проект 503-1-49.86 | Обозначение англ: | 503-1-49.86 | Статус: | не определен законодательством | Название рус.: | Альбом II. Части 1, 2. Архитектурные решения. Конструкции железобетонные. Конструкции металлические | Дата добавления в базу: | 01.09.2013 | Дата актуализации: | 05.05.2017 | Дата введения: | 21.11.1985 | Оглавление: | Содержание альбома Часть 1. Производственная часть Архитектурно-строительные решения АР Общие данные Фасады 1 - 15; 15 - 1; Г - А Фасад А - Г. Схемы заполнения оконных проемов ОК1 - ОК3 План на отм. 0.000 Фрагменты 1, 2. Обрамление проемов поз. 9 - 12 План площадки на отм. 4.000 План подвала на отм. - 3.500 Разрезы 1-1, 2-2 Разрезы 3-3, 6-6 Узлы 1 - 11 Вид по А-А, Б-Б, В-В. Узлы 1 - 4 Планы полов План кровли Перегородка кирпичная по схеме 1 Перегородки щитовые стальные. Схемы 1, 2 Схемы расположения элементов подвесного потолка в осях 8 - 9; 14 - 15 Схема конструкций, используемых в качестве заземляющих устройств Конструкции железобетонные КЖ Общие данные Схема расположения элементов фундаментов Узлы 1 - 9 к схеме расположения элементов фундаментов Узлы 10 - 12 к схеме расположения элементов фундаментов Узлы 13 - 20 к схеме расположения элементов фундаментов Узлы 21 - 27 к схеме расположения элементов фундаментов Сечения 1-1 - 9-9; 8а - 8а; 9а - 9а к схеме расположения элементов фундаментов Схема расположения элементов перекрытия подвала и входа в подвал Схема расположения элементов подземного хозяйства Указания и спецификация к схеме расположения элементов подземного хозяйства Каналы КЛ1, КЛ2. Приямок ТП2. Сечения 1-1, 2-2, 2а - 2а Каналы КЛ1, КЛ3 - КЛ5 Каналы КЛ1, КЛ6 - КЛ9 Каналы КЛ10 - КЛ13 Каналы КЛ14 - КЛ20 Каналы КЛ21, КЛ22. Сечения 3-3 - 22-22 Схема расположения колонн каркаса и перегородок Схема расположения стропильных и подстропильных ферм. Разрезы 1-1 - 4-4 Схема расположения элементов покрытия Схема расположения балок перекрытия. Разрезы 1-1 - 4-4 Узлы 1 - 8 к схеме расположения балок перекрытия Схема расположения элементов перекрытия на отм. 4.800 Узлы 1 - 8 к схеме расположения плит перекрытия Схемы расположения стеновых панелей по осям А, Г, 1 Схема расположения стеновых панелей по оси 15. Узел 1 Спецификация к схемам расположения стеновых панелей Фахверк перегородок. Схемы 1, 3 - 5, 9, 13, 14, 16, 17 Фахверк перегородок. Схемы 18 - 21. Узлы 1, 2 Узлы 3 - 5 к схемам фахверка перегородок Сборные перегородки. Схемы 1 - 4 Сборные перегородки. Схемы 5 - 8 Сборные перегородки. Схемы 9 - 13 Сборные перегородки. Схемы 14 - 15 Сборные перегородки. Схемы 16, 17 Сборные перегородки. Схемы 18 - 21 Узлы 1 - 6 к схемам сборных перегородок Узлы 7 - 9 к схемам сборных перегородок Каркасно-обшивочные вкладыши КОВ1 - КОВ27 Каркасно-обшивочные вкладыши КОВ28 - КОВ45 Спецификация элементов фахверка и сборных перегородок Фундаменты Фм1, Фм1а, Фм1б Фундаменты Фм2, Фм2а, Фм3, Фм3а Фундаменты Фм4, Фм4а, Фм5, Фм5а Фундаменты Фм6, Фм7 Фундаменты Фм8, Фм9, Фм10 Фундаменты Фм11, Фм12 Смотровая канава СК1 Смотровая канава СК2 Смотровые канавы. Сечения 1-1 - 3-3. Узлы 1 - 3 Смотровая канава СК3 Смотровая канава СК3. Сечения 1-1 - 5-5. Рассекатели 1, 2 Смотровая канава СК4 Смотровая канава СК4. Фрагмент 1. Сечения 1-1 - 6-6 Смотровая канава СК5 Смотровая канава СК5. Сечения 1-1, 3-3 - 5-5 Смотровая канава СК6 Смотровая канава СК6. Сечения 1-1 - 4-4 Смотровая канава СК6. Сечения 5-5 - 10-10 Фундамент под оборудование ФО1 Фундамент под оборудование ФО2 Армирование подфундаментного короба фундаментов ФО2а, ФО2б. Сечения 1-1 - 6-6 Фундаменты под оборудование ФО3 - ФО6 Фундаменты под оборудование ФО7 - ФО12 Приямок ТП1 Монолитные опорные плиты ОП1 - ОП4 Металлические конструкции КМ Общие данные Техническая спецификация металла Техническая спецификация металла на лестницы, площадки, ограждения Схема расположения элементов подвесных крановых путей и монорельсов Фрагменты 1, 2 Схемы расположения элементов лестниц Л1 - Л4 Узлы 1 - 10 Часть 2. Административно-бытовые помещения Архитектурно-строительные решения АР Общие данные Фасады Д - И; 2 - 1/0; И - Д Планы на отм. - 1.150; 1.050 Планы на отм. 5.050; 7.050 Разрезы 1-1 - 5-5 Фрагмент 1 (тамбур входа) Узлы 1 - 9 Планы полов План кровли Схемы расположения элементов перегородок на отм. 1.050; 4.050; 7.050 Душевые блоки 1 - 3 Конструкции железобетонные КЖ Общие данные Схема расположения элементов фундаментов. Сечения 1-1 - 9-9 Развертки стен фундаментов Схемы расположения элементов наружных стен Схемы расположения монтажных узлов внутренних и наружных стеновых панелей Схемы расположения элементов внутренних стен Схемы расположения панелей перекрытия на отм. 1.050; 4.050; 7.050, покрытия на отм. 10.050 Схема расположения элементов лестницы Л1 Схемы расположения элементов лестницы Л2 и входа Монтажные узлы 1 - 12 | Разработан: | Гипропромсельстрой
| Утверждён: | 31.10.1983 Госкомсельхозтехника СССР (66)
| Расположен в: |
|
                                                                                                                             
|