Информационная система
«Ёшкин Кот»

Скачать базу одним архивом
Скачать обновления
История создания базы
Карта сайта

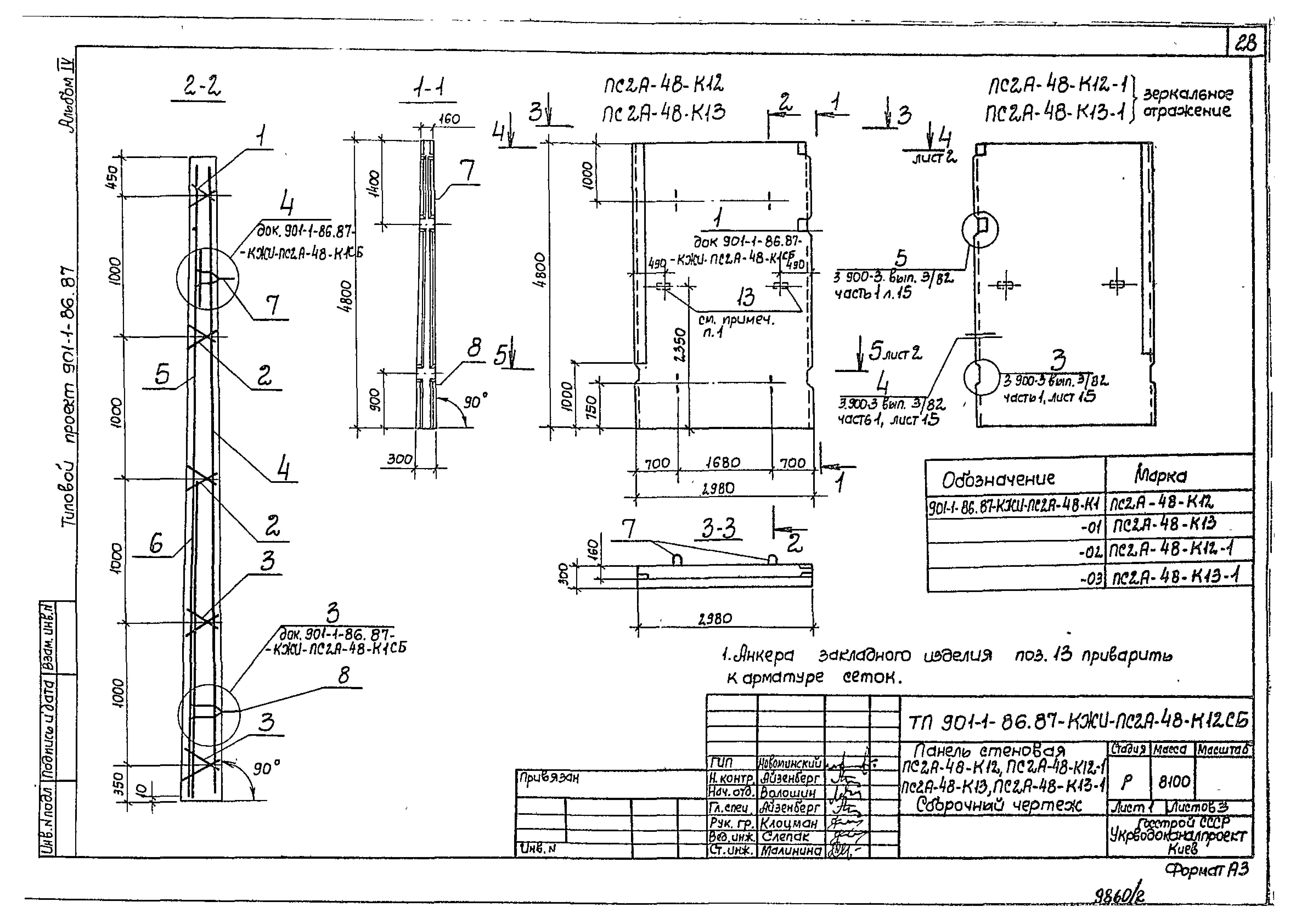
Скачать Типовой проект 901-1-86.87 Альбом IV. Индустриальные изделия

Дата актуализации: 10.08.2017

Типовой проект 901-1-86.87

Альбом IV. Индустриальные изделия

Обозначение: Типовой проект 901-1-86.87
Обозначение англ: 901-1-86.87
Статус:не определен законодательством
Название рус.:Альбом IV. Индустриальные изделия
Дата добавления в базу:01.10.2014
Дата актуализации:05.05.2017
Дата введения:28.08.1987
Оглавление:Технические требования
Плита перекрытия
Плита
Балка
Панель стеновая (надземная часть)
Колонна
Панель карнизная
Перемычка
Панель стеновая
Панель стеновая с дополнительными закладными изделиями
Каркас плоский
Изделие закладное
Изделие соединительное
Решетка
Изделие закладное
Разработан: ГПИ Укрводоканалпроект
Утверждён:28.08.1987 Госстрой СССР (Государственный комитет Совета Министров СССР по делам строительства) (USSR Gosstroy 57)
Расположен в:Техническая документация Строительство Справочные документы Типовые строительные конструкции, изделия и узлы Общероссийский строительный каталог Промышленные предприятия, здания и сооружения Здания и сооружения санитарно-технические Водоснабжение Насосные станции Насосные станции водопроводные
Заменяет собой:
Типовой проект 901-1-86.87Типовой проект 901-1-86.87Типовой проект 901-1-86.87Типовой проект 901-1-86.87Типовой проект 901-1-86.87Типовой проект 901-1-86.87Типовой проект 901-1-86.87Типовой проект 901-1-86.87Типовой проект 901-1-86.87Типовой проект 901-1-86.87Типовой проект 901-1-86.87Типовой проект 901-1-86.87Типовой проект 901-1-86.87Типовой проект 901-1-86.87Типовой проект 901-1-86.87Типовой проект 901-1-86.87Типовой проект 901-1-86.87Типовой проект 901-1-86.87Типовой проект 901-1-86.87Типовой проект 901-1-86.87Типовой проект 901-1-86.87Типовой проект 901-1-86.87Типовой проект 901-1-86.87Типовой проект 901-1-86.87Типовой проект 901-1-86.87Типовой проект 901-1-86.87Типовой проект 901-1-86.87Типовой проект 901-1-86.87Типовой проект 901-1-86.87Типовой проект 901-1-86.87Типовой проект 901-1-86.87Типовой проект 901-1-86.87Типовой проект 901-1-86.87Типовой проект 901-1-86.87Типовой проект 901-1-86.87Типовой проект 901-1-86.87Типовой проект 901-1-86.87Типовой проект 901-1-86.87Типовой проект 901-1-86.87Типовой проект 901-1-86.87Типовой проект 901-1-86.87Типовой проект 901-1-86.87Типовой проект 901-1-86.87Типовой проект 901-1-86.87Типовой проект 901-1-86.87Типовой проект 901-1-86.87Типовой проект 901-1-86.87Типовой проект 901-1-86.87Типовой проект 901-1-86.87Типовой проект 901-1-86.87Типовой проект 901-1-86.87Типовой проект 901-1-86.87

© 2013 Ёшкин Кот :-) Карта сайта