Информационная система
«Ёшкин Кот»

Скачать базу одним архивом
Скачать обновления
История создания базы
Карта сайта

Скачать Типовой проект 901-1-85.87 Альбом V. Электротехническая часть (из ТП 901-1-87.87)

Дата актуализации: 10.08.2017

Типовой проект 901-1-85.87

Альбом V. Электротехническая часть (из ТП 901-1-87.87)

Обозначение: Типовой проект 901-1-85.87
Обозначение англ: 901-1-85.87
Статус:не определен законодательством
Название рус.:Альбом V. Электротехническая часть (из ТП 901-1-87.87)
Дата добавления в базу:01.10.2014
Дата актуализации:05.05.2017
Дата введения:28.08.1987
Оглавление:ТП 901-1-87.87-ЭМ Содержание
ТП 901-1-87.87-ЭМ Основной комплект ЭМ
ТП 901-1-87.87-ЭМ-1 Общие данные (начало)
ТП 901-1-87.87-ЭМ-2 Общие данные (продолжение)
ТП 901-1-87.87-ЭМ-3 Общие данные (окончание)
ТП 901-1-87.87-ЭМ-4 Гидромеханическая схема и ведомость электрооборудования
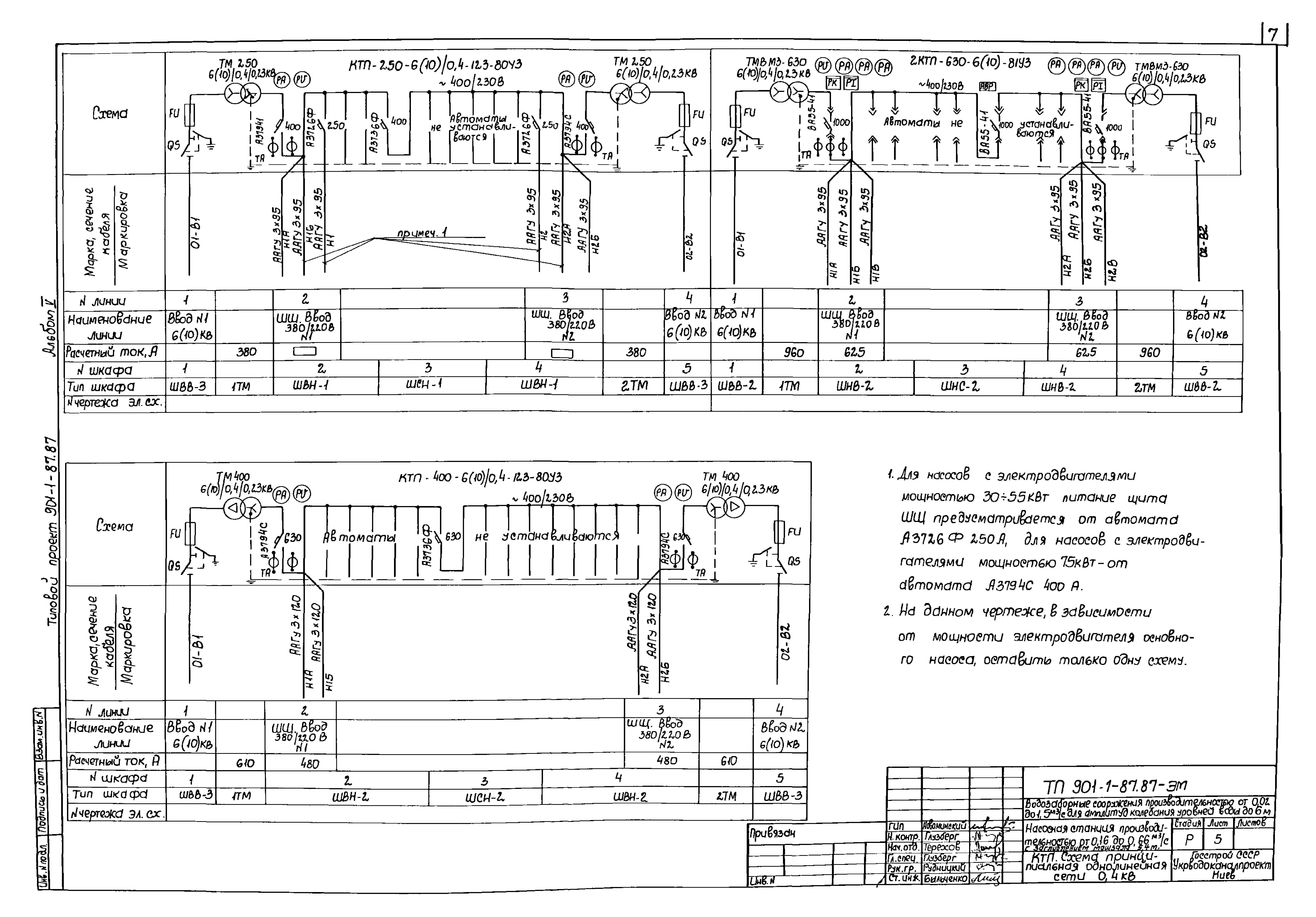
ТП 901-1-87.87-ЭМ-5 КТП. Схема принципиальная однолинейная сети 0.4 кВ
ТП 901-1-87.87-ЭМ-6 ШЩ. Схема принципиальная однолинейная сети 0.4 кВ (начало)
ТП 901-1-87.87-ЭМ-7 ШЩ. Схема принципиальная однолинейная сети 0.4 кВ (окончание)
ТП 901-1-87.87-ЭМ-8 Насосные агрегаты. Схема принципиальная (начало)
ТП 901-1-87.87-ЭМ-9 Насосные агрегаты. Схема принципиальная (окончание)
ТП 901-1-87.87-ЭМ-10 Вакуум установка. Вакуум насос. Схема принципиальная
ТП 901-1-87.87-ЭМ-11 Дренажные насосы. Схема принципиальная
ТП 901-1-87.87-ЭМ-12 Вентиляция. Схема принципиальная
ТП 901-1-87.87-ЭМ-13 Напорная задвижка (затвор). Схема принципиальная
ТП 901-1-87.87-ЭМ-14 Затворы на напорных водоводах. Затворы с управлением по месту. Схема принципиальная
ТП 901-1-87.87-ЭМ-15 Аварийно-предупредительная сигнализация. Схема принципиальная
ТП 901-1-87.87-ЭМ-16 Схема подключений (начало)
ТП 901-1-87.87-ЭМ-17 Схема подключений (продолжение)
ТП 901-1-87.87-ЭМ-18 Схема подключений (продолжение)
ТП 901-1-87.87-ЭМ-19 Схема подключений (окончание)
ТП 901-1-87.87-ЭМ-20 Расположение электрооборудования. Зануление
ТП 901-1-87.87-ЭМ-21 Кабельный журнал (начало)
ТП 901-1-87.87-ЭМ-22 Кабельный журнал (окончание)
ТП 901-1-87.87-ЭМ-23 План прокладки кабелей и труб (начало)
ТП 901-1-87.87-ЭМ-24 План прокладки кабелей и труб (продолжение)
ТП 901-1-87.87-ЭМ-25 План прокладки кабелей и труб (продолжение)
ТП 901-1-87.87-ЭМ-26 План прокладки кабелей и труб (окончание)
ТП 901-1-87.87-ЭМ-27 Электроосвещение (начало)
ТП 901-1-87.87-ЭМ-28 Электроосвещение (окончание)
ТП 901-1-87.87-ЭМ.ЛО Опросные листы (ЭМ.ЛО)
ТП 901-1-87.87-ЭМ.ЛО Опросный лист для заказа КТП 2х250 кВА Ереванского завода
ТП 901-1-87.87-ЭМ.ЛО Опросный лист для заказа КТП 2х400 кВА Ереванского завода
ТП 901-1-87.87-ЭМ.ЛО Опросный лист для заказа КТП 2х630 кВА Хмельницкого завода
ТП 901-1-87.87-ЭМ-1 Ведомость объемов монтажных и строительных работ
ТП 901-1-87.87-АТХ Основной комплект АТХ
ТП 901-1-87.87-АТХ-1 Общие данные
ТП 901-1-87.87-АТХ-2 Схема функциональная технологического контроля
ТП 901-1-87.87-АТХ-3 Схемы принципиальные электропитания щита КИП и технологических измерений
ТП 901-1-87.87-АТХ-4 Схема внешних электрических труб проводок (начало)
ТП 901-1-87.87-АТХ-5 Схема внешних электрических труб проводок (окончание)
ТП 901-1-87.87-АТХ-6 План расположения средств автоматизации и проводок
ТП 901-1-87.87-АТХ-7 Установка датчиков технологического контроля
Разработан: Укрводоканалпроект
Утверждён:28.08.1987 Госстрой СССР (Государственный комитет Совета Министров СССР по делам строительства) (USSR Gosstroy 57)
Расположен в:Техническая документация Строительство Справочные документы Типовые строительные конструкции, изделия и узлы Общероссийский строительный каталог Промышленные предприятия, здания и сооружения Здания и сооружения санитарно-технические Водоснабжение Насосные станции Насосные станции водопроводные
Заменяет собой:
Типовой проект 901-1-85.87Типовой проект 901-1-85.87Типовой проект 901-1-85.87Типовой проект 901-1-85.87Типовой проект 901-1-85.87Типовой проект 901-1-85.87Типовой проект 901-1-85.87Типовой проект 901-1-85.87Типовой проект 901-1-85.87Типовой проект 901-1-85.87Типовой проект 901-1-85.87Типовой проект 901-1-85.87Типовой проект 901-1-85.87Типовой проект 901-1-85.87Типовой проект 901-1-85.87Типовой проект 901-1-85.87Типовой проект 901-1-85.87Типовой проект 901-1-85.87Типовой проект 901-1-85.87Типовой проект 901-1-85.87Типовой проект 901-1-85.87Типовой проект 901-1-85.87Типовой проект 901-1-85.87Типовой проект 901-1-85.87Типовой проект 901-1-85.87Типовой проект 901-1-85.87Типовой проект 901-1-85.87Типовой проект 901-1-85.87Типовой проект 901-1-85.87Типовой проект 901-1-85.87Типовой проект 901-1-85.87Типовой проект 901-1-85.87Типовой проект 901-1-85.87Типовой проект 901-1-85.87Типовой проект 901-1-85.87Типовой проект 901-1-85.87Типовой проект 901-1-85.87Типовой проект 901-1-85.87Типовой проект 901-1-85.87Типовой проект 901-1-85.87Типовой проект 901-1-85.87

© 2013 Ёшкин Кот :-) Карта сайта