Информационная система
«Ёшкин Кот»

Скачать базу одним архивом
Скачать обновления
История создания базы
Карта сайта

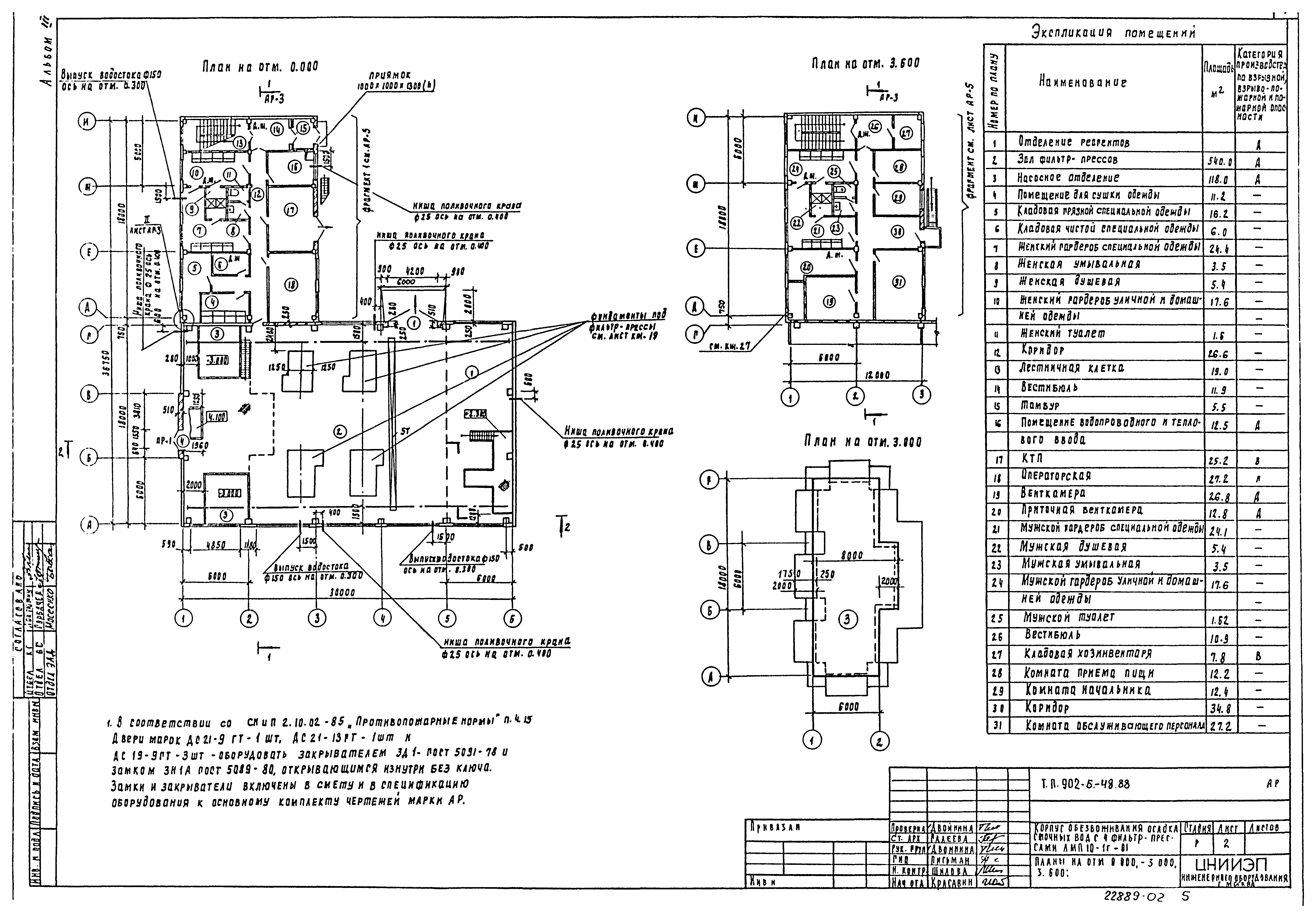
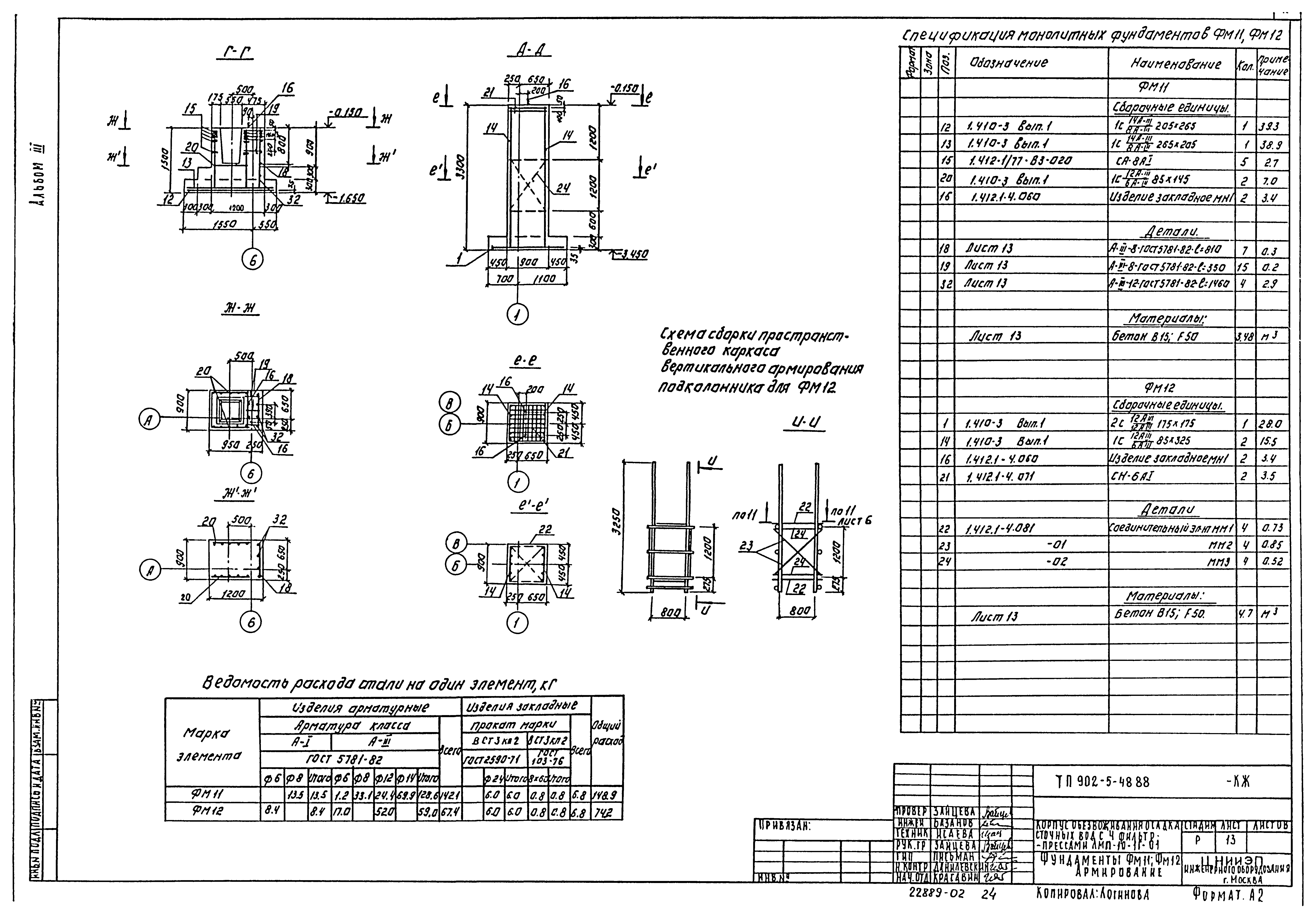
Скачать Типовой проект 902-5-48.88 Альбом III. Архитектурные решения. Конструкции железобетонные и металлические

Дата актуализации: 10.08.2017

Типовой проект 902-5-48.88

Альбом III. Архитектурные решения. Конструкции железобетонные и металлические

Обозначение: Типовой проект 902-5-48.88
Обозначение англ: 902-5-48.88
Статус:не определен законодательством
Название рус.:Альбом III. Архитектурные решения. Конструкции железобетонные и металлические
Дата добавления в базу:12.02.2016
Дата актуализации:05.05.2017
Дата введения:01.06.1988
Разработан: ЦНИИЭП инженерного оборудования
Утверждён:03.11.1986 Госгражданстрой (Gosgrazhdanstroy 361)
Расположен в:Техническая документация Строительство Справочные документы Типовые строительные конструкции, изделия и узлы Общероссийский строительный каталог Промышленные предприятия, здания и сооружения Здания и сооружения санитарно-технические Канализация Сооружения для очистки производственных сточных вод Сооружения для обработки осадка
Типовой проект 902-5-48.88Типовой проект 902-5-48.88Типовой проект 902-5-48.88Типовой проект 902-5-48.88Типовой проект 902-5-48.88Типовой проект 902-5-48.88Типовой проект 902-5-48.88Типовой проект 902-5-48.88Типовой проект 902-5-48.88Типовой проект 902-5-48.88Типовой проект 902-5-48.88Типовой проект 902-5-48.88Типовой проект 902-5-48.88Типовой проект 902-5-48.88Типовой проект 902-5-48.88Типовой проект 902-5-48.88Типовой проект 902-5-48.88Типовой проект 902-5-48.88Типовой проект 902-5-48.88Типовой проект 902-5-48.88Типовой проект 902-5-48.88Типовой проект 902-5-48.88Типовой проект 902-5-48.88Типовой проект 902-5-48.88Типовой проект 902-5-48.88Типовой проект 902-5-48.88Типовой проект 902-5-48.88Типовой проект 902-5-48.88Типовой проект 902-5-48.88Типовой проект 902-5-48.88Типовой проект 902-5-48.88Типовой проект 902-5-48.88Типовой проект 902-5-48.88Типовой проект 902-5-48.88Типовой проект 902-5-48.88Типовой проект 902-5-48.88Типовой проект 902-5-48.88Типовой проект 902-5-48.88Типовой проект 902-5-48.88Типовой проект 902-5-48.88Типовой проект 902-5-48.88Типовой проект 902-5-48.88Типовой проект 902-5-48.88Типовой проект 902-5-48.88Типовой проект 902-5-48.88Типовой проект 902-5-48.88Типовой проект 902-5-48.88Типовой проект 902-5-48.88Типовой проект 902-5-48.88Типовой проект 902-5-48.88Типовой проект 902-5-48.88Типовой проект 902-5-48.88Типовой проект 902-5-48.88Типовой проект 902-5-48.88Типовой проект 902-5-48.88

© 2013 Ёшкин Кот :-) Карта сайта