Информационная система
«Ёшкин Кот»

Скачать базу одним архивом
Скачать обновления
История создания базы
Карта сайта

Скачать Типовой проект 407-3-580.90 Альбом 1. Пояснительная записка. Электротехническая часть. Архитектурно-строительные решения. Строительные изделия

Дата актуализации: 10.08.2017

Типовой проект 407-3-580.90

Альбом 1. Пояснительная записка. Электротехническая часть. Архитектурно-строительные решения. Строительные изделия

Обозначение: Типовой проект 407-3-580.90
Обозначение англ: 407-3-580.90
Статус:не определен законодательством
Название рус.:Альбом 1. Пояснительная записка. Электротехническая часть. Архитектурно-строительные решения. Строительные изделия
Дата добавления в базу:01.09.2013
Дата актуализации:05.05.2017
Дата введения:15.08.1990
Оглавление:Пояснительная записка
Электротехническая часть
   Общие данные
   Схема электрических соединений подстанции со шкафами КРН-10У1. Схема блокировки
   План и разрез подстанции со шкафами КРН-10У1. Подстанции с трансформаторами мощностью 400 - 1000 кВА
   План и разрез подстанции со шкафами КРН-10У1. Подстанция с трансформатором мощностью 1600 кВА
   Опросный лист на КРН-10У1
   Схема электрических соединений подстанции со шкафом К-108. Схема блокировки
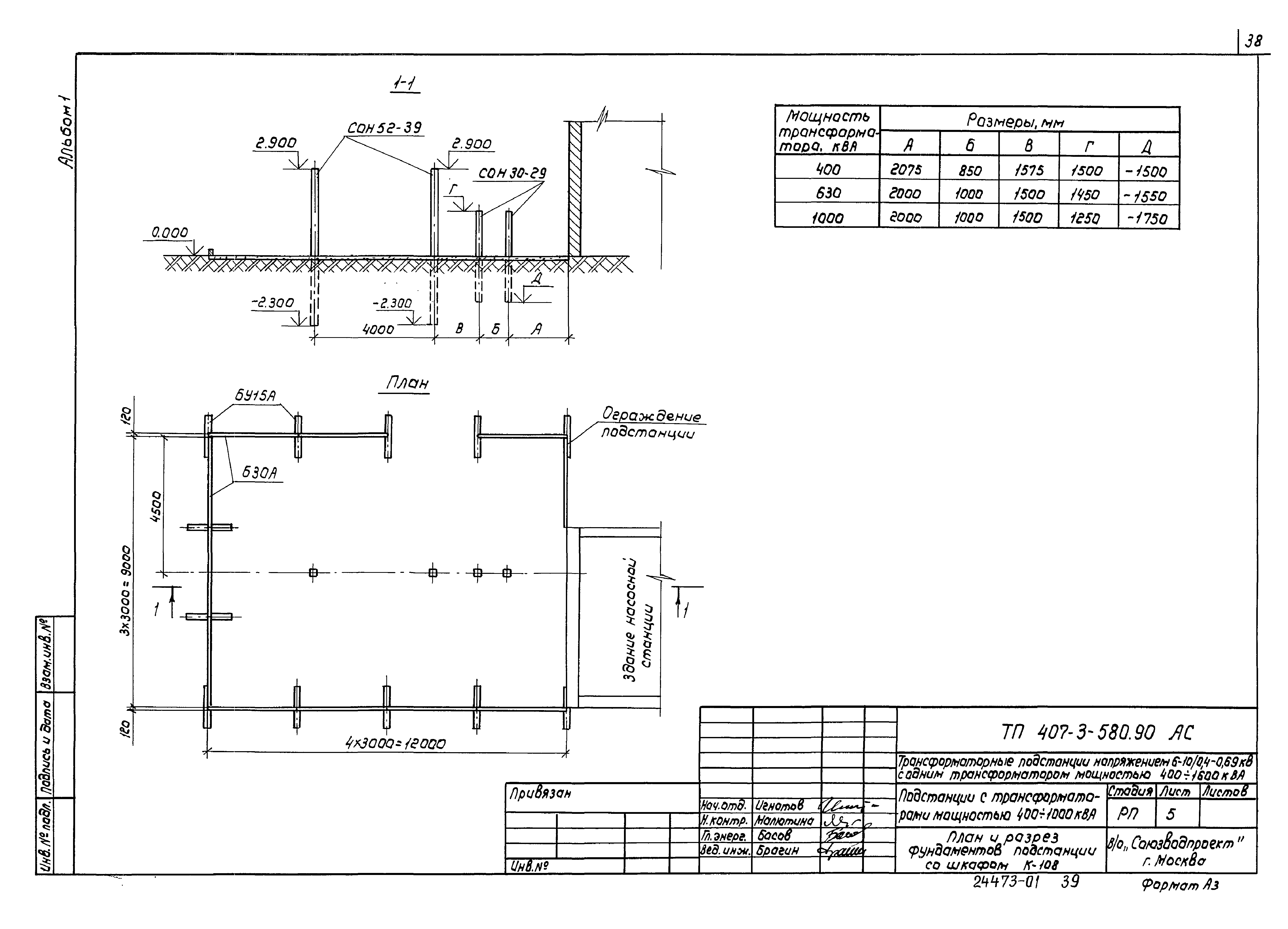
   План и разрез подстанции со шкафом К-108. Подстанции с трансформаторами мощностью 400 - 1000 кВА
   План и разрез подстанции со шкафом К-108. Подстанция с трансформатором мощностью 1600 кВА
   Опросный лист на К-108
   Схема электрических соединений подстанции с высоковольтными предохранителями. Схема блокировки
   План и разрез подстанции с высоковольтными предохранителями. Подстанции с трансформаторами мощностью 400, 630 кВА
   Ввод низкого напряжения в здание насосной станции. План и разрез
   Установка шкафов КРН-10У1
   Установка шкафа К-108
   Установка разъединителя РЛНД.1-10/400У1
   Установка высоковольтных предохранителей и разрядников. Подстанции с трансформаторами мощностью 400, 630 кВА
   Установка проходных изоляторов в шкафу КРН-10У1
   Плита с проходными изоляторами ИП-10
   Установка кронштейна К1
   Установка кронштейна К2
   Установка кронштейна К3
   Раскладка кабелей, освещение и заземляющее устройство подстанции со шкафами КРН-10У1
   Раскладка кабелей, освещение и заземляющее устройство подстанции со шкафом К-108
   Раскладка кабелей, освещение и заземляющее устройство подстанции с высоковольтными предохранителями
   Кабельные журналы
Архитектурно-строительные решения
   Общие данные
   План и разрез фундаментов подстанции со шкафами КРН-10У1. Подстанции с трансформаторами мощностью 400 - 1000 кВА
   План и разрез фундаментов подстанции со шкафами КРН-10У1. Подстанция с трансформатором мощностью 1600 кВА
   План и разрез подстанции со шкафом К-108. Подстанции с трансформаторами мощностью 400 - 1000 кВА
   План и разрез подстанции со шкафом К-108. Подстанция с трансформатором мощностью 1600 кВА
   План и разрез подстанции с высоковольтными предохранителями. Подстанции с трансформаторами мощностью 400, 630 кВА
   Фундамент под трансформатор мощностью 400 кВА
   Фундамент под трансформатор мощностью 630, 1000 кВА
   Фундамент под трансформатор мощностью 1600 кВА
   Фундамент под шкаф К-108
   Опора под разъединитель РЛНД.1-10/400У1
   Опора под высоковольтные предохранители и разрядники. Подстанции с трансформаторами мощностью 400, 630 кВА
   Колодец-маслосборник
   Ограждение подстанции
   Ограждение высоковольтных предохранителей
   Монтажные узлы 1, 2
   Монтажные узлы 3, 4
   Панель сетчатая рядовая Р1. Панель сетчатая съемная Р1А
   Панель сетчатая с калиткой Р2
   Установка механических блокировочных замков на калитке ограждения высоковольтных предохранителей
Строительные изделия
   Рама РМ1
   Рама РМ2
   Рама РМ3. Марка М1
   Рама РМ4. Рама РМ5
   Рама РМ6
   Рама РМ7
   Рама РМ8
   Марки М2, М3, М4
   Кронштейн К1
   Кронштейн К2
   Кронштейн К3. Рама РМ9
   Изделия соединительные МС1, МС2
Разработан: Союзводпроект Минводстроя СССР
Утверждён:15.08.1990 Союзводпроект (830)
Издан: АПП ЦИТП (1991 г. )
Расположен в:Техническая документация Строительство Справочные документы Типовые строительные конструкции, изделия и узлы Общероссийский строительный каталог Промышленные предприятия, здания и сооружения Предприятия, здания и сооружения промышленности и электроэнергетики Электроэнергетика Устройства и подстанции распределительные
Типовой проект 407-3-580.90Типовой проект 407-3-580.90Типовой проект 407-3-580.90Типовой проект 407-3-580.90Типовой проект 407-3-580.90Типовой проект 407-3-580.90Типовой проект 407-3-580.90Типовой проект 407-3-580.90Типовой проект 407-3-580.90Типовой проект 407-3-580.90Типовой проект 407-3-580.90Типовой проект 407-3-580.90Типовой проект 407-3-580.90Типовой проект 407-3-580.90Типовой проект 407-3-580.90Типовой проект 407-3-580.90Типовой проект 407-3-580.90Типовой проект 407-3-580.90Типовой проект 407-3-580.90Типовой проект 407-3-580.90Типовой проект 407-3-580.90Типовой проект 407-3-580.90Типовой проект 407-3-580.90Типовой проект 407-3-580.90Типовой проект 407-3-580.90Типовой проект 407-3-580.90Типовой проект 407-3-580.90Типовой проект 407-3-580.90Типовой проект 407-3-580.90Типовой проект 407-3-580.90Типовой проект 407-3-580.90Типовой проект 407-3-580.90Типовой проект 407-3-580.90Типовой проект 407-3-580.90Типовой проект 407-3-580.90Типовой проект 407-3-580.90Типовой проект 407-3-580.90Типовой проект 407-3-580.90Типовой проект 407-3-580.90Типовой проект 407-3-580.90Типовой проект 407-3-580.90Типовой проект 407-3-580.90Типовой проект 407-3-580.90Типовой проект 407-3-580.90Типовой проект 407-3-580.90Типовой проект 407-3-580.90Типовой проект 407-3-580.90Типовой проект 407-3-580.90Типовой проект 407-3-580.90Типовой проект 407-3-580.90Типовой проект 407-3-580.90Типовой проект 407-3-580.90Типовой проект 407-3-580.90Типовой проект 407-3-580.90Типовой проект 407-3-580.90Типовой проект 407-3-580.90Типовой проект 407-3-580.90Типовой проект 407-3-580.90Типовой проект 407-3-580.90Типовой проект 407-3-580.90Типовой проект 407-3-580.90Типовой проект 407-3-580.90Типовой проект 407-3-580.90Типовой проект 407-3-580.90Типовой проект 407-3-580.90Типовой проект 407-3-580.90Типовой проект 407-3-580.90

© 2013 Ёшкин Кот :-) Карта сайта