Скачать Типовой проект 902-1-121.87 Альбом VI. Силовое электрооборудование. Технологический контроль. Пожарная сигнализация. Задание заводу-изготовителю на щиты (из ТП 902-1-122.87)Дата актуализации: 10.08.2017 Типовой проект 902-1-121.87
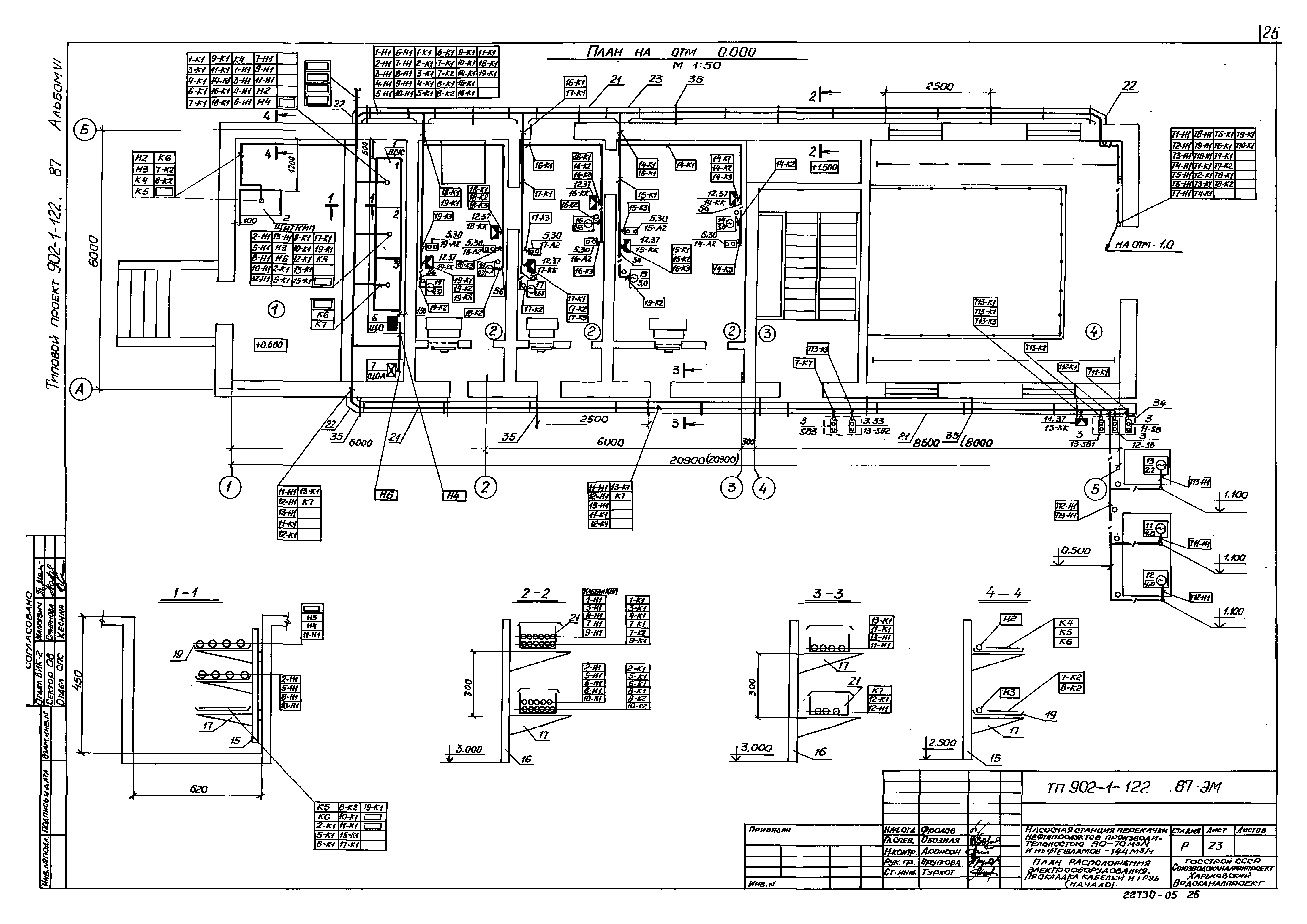
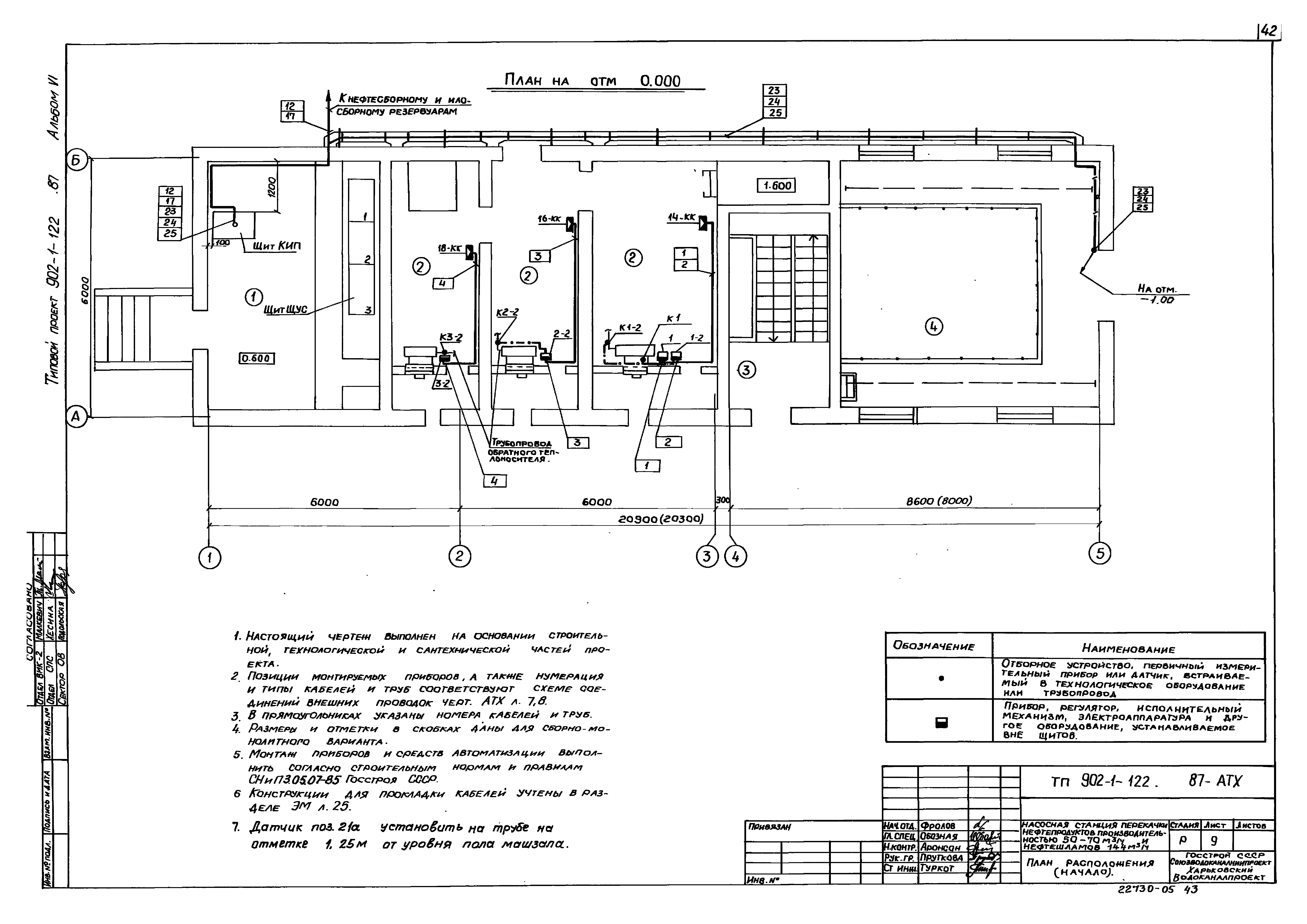
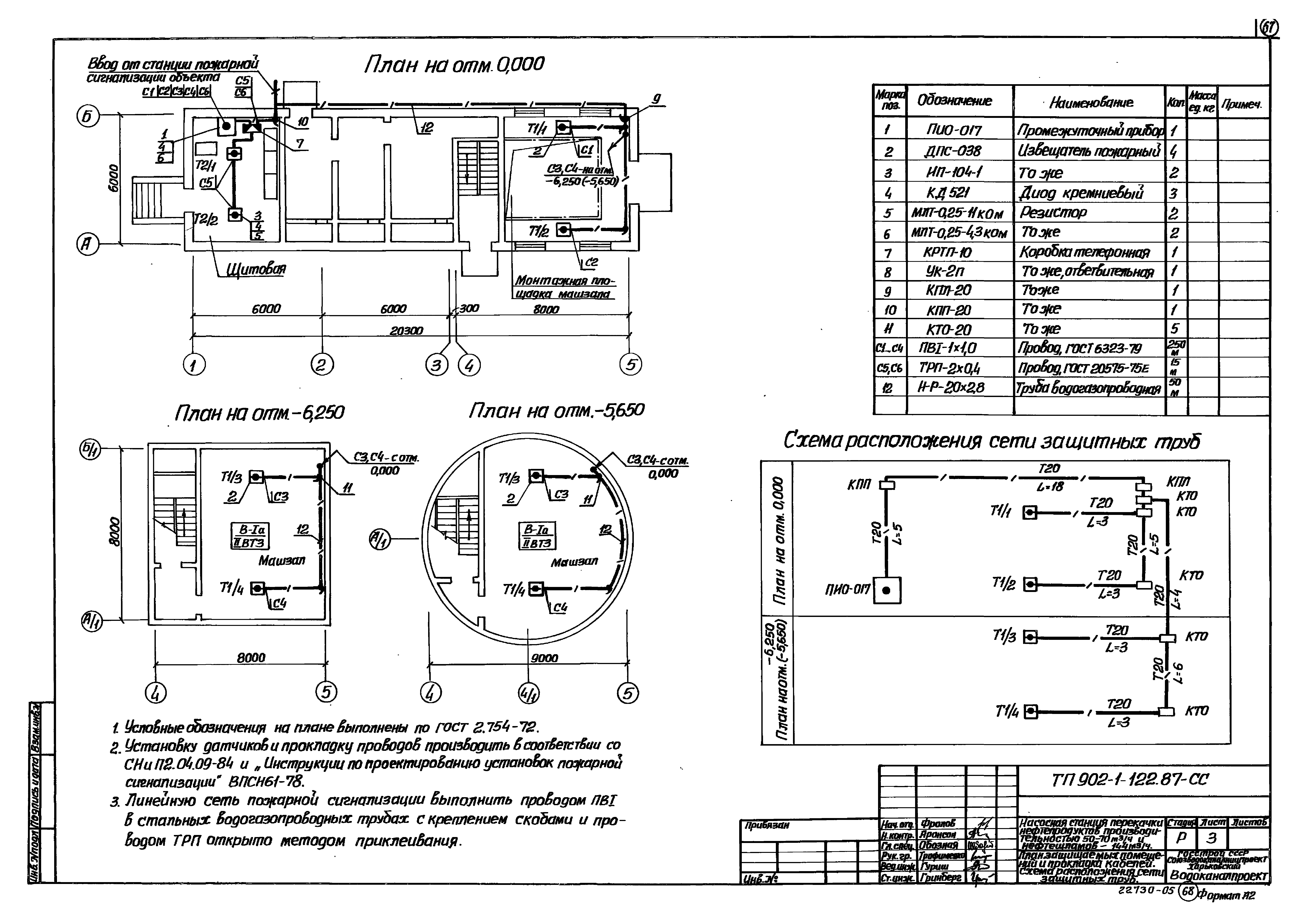
Альбом VI. Силовое электрооборудование. Технологический контроль. Пожарная сигнализация. Задание заводу-изготовителю на щиты (из ТП 902-1-122.87)Обозначение: | Типовой проект 902-1-121.87 | Обозначение англ: | 902-1-121.87 | Статус: | не определен законодательством | Название рус.: | Альбом VI. Силовое электрооборудование. Технологический контроль. Пожарная сигнализация. Задание заводу-изготовителю на щиты (из ТП 902-1-122.87) | Дата добавления в базу: | 01.09.2013 | Дата актуализации: | 05.05.2017 | Дата введения: | 23.11.1987 | Оглавление: | ТП 902-1-122.87 Содержание альбома ТП 902-1-122.87-ЭМ Основной комплект марки ЭМ ТП 902-1-122.87-ЭМ-1,2 Общие данные ТП 902-1-122.87-ЭМ-3 Схема электрическая принципиальная однолинейная распределительной сети ~380/220 В ТП 902-1-122.87-ЭМ-4,5 Схема электрическая принципиальная АВР ~380/220 Вольт ТП 902-1-122.87-ЭМ-6,7 Схема электрическая принципиальная управления приводами 1...3 насосов перекачки нефтепродуктов ТП 902-1-122.87-ЭМ-8 Схема электрическая принципиальная управления приводами 4,5 насосов перекачки нефтешлама ТП 902-1-122.87-ЭМ-9 Схемы электрические принципиальные управления приводом 6 насоса гидроуплотнения и приводами 9,10 вентилей ТП 902-1-122.87-ЭМ-10 Схемы электрические принципиальные управления приводами 7,8 дренажных насосов ТП 902-1-122.87-ЭМ-11 Схемы электрические принципиальные управления приводами вытяжных вентустановок В1,1Р и АВ1 ТП 902-1-122.87-ЭМ-12 Схемы электрические принципиальные управления приводами приточный вентустановок П1,1Р,П2,2Р,П3,3Р ТП 902-1-122.87-ЭМ-13 Схема электрическая принципиальная общих цепей управления ТП 902-1-122.87-ЭМ-14,15 Схема электрическая принципиальная сигнализации ТП 902-1-122.87-ЭМ-16,17 Схема подключения электрооборудования ТП 902-1-122.87-ЭМ-18-20 Щит ЩУС. Схема подключения ТП 902-1-122.87-ЭМ-21 Щит КИП. Схема подключения ТП 902-1-122.87-ЭМ-22 Кабельный журнал ТП 902-1-122.87-ЭМ-23-25 План расположения электрооборудования. Прокладка кабелей и труб ТП 902-1-122.87-ЭМ-26 Зануление ТП 902-1-122.87-ЭМ-27 Молниезащита ТП 902-1-122.87-ЭМ-28 Электроосвещение ТП 902-1-122.87-ЭМИ Задание МЭЗ марки ЭМИ ТП 902-1-122.87-ЭМИ.ДО Ведомость чертежей раздела ТП 902-1-122.87-ЭМИ.ВБ Ведомость электромонтажных конструкций, подлежащих изготовлению в МЭЗ ТП 902-1-122.87-ЭМИ.ВА Ведомость изделий и материалов для изготовления электромонтажных конструкций в МЭЗ ТП 902-1-122.87-ЭМИ.СБ Трубозаготовительная ведомость ТП 902-1-122.87-АТХ Основной комплект марки АТХ ТП 902-1-122.87-АТХ-1 Общие данные ТП 902-1-122.87-АТХ-2 Схема автоматизации ТП 902-1-122.87-АТХ-3 Схемы электрические принципиальные питания приборов и контроля уровня в нефтесборном резервуаре ТП 902-1-122.87-АТХ-4 Схема электрическая принципиальная контроля уровней в илосборном резервуаре и баке разрыва струи ТП 902-1-122.87-АТХ-5 Схема электрическая принципиальная контроля уровня в дренажных приямках и затопления машзала ТП 902-1-122.87-АТХ-6 Схема электрическая принципиальная контроля довзрывоопасной концентрации паров бензина и ПДК сероводорода в воздухе машзала ТП 902-1-122.87-АТХ-7,8 Схема соединений внешних проводок ТП 902-1-122.87-АТХ-9,10 План расположения ТП 902-1-122.87-АТХ-11 Конструкция для установки датчиков уровня в дренажных приямках ТП 902-1-122.87-АТХ-12 Установка датчиков уровня в дренажных приямках ТП 902-1-122.87-АТХ-13 Конструкция для установки датчика газоанализатора "Сирена" ТП 902-1-122.87-АТХ-14 Установка датчика газоанализатора "Сирена" ТП 902-1-122.87-ЭМ.ЗЗИ Задание заводу-изготовителю марки ЭМ.ЗЗИ ТП 902-1-122.87-ЭМ.ЗЗИ-1 Ведомость чертежей раздела ТП 902-1-122.87-ЭМ.ЗЗИ-2 Перечень комплектных устройств ТП 902-1-122.87-ЭМ.ЗЗИ-3.1 Щит ЩУС. Чертеж общего вида ТП 902-1-122.87-ЭМ.ЗЗИ-3.2 Щит ЩУС. Таблица технических данных аппаратов ТП 902-1-122.87-ЭМ.ЗЗИ-3.3-5.11 Щит ЩУС. Перечень надписей ТП 902-1-122.87-ЭМ.ЗЗИ-7.1-7.5 Щит ЩУС. Таблица межпанельных соединений ТП 902-1-122.87-ЭМ.ЗЗИ-6.1-6.7 Щит ЩУС. Схема электрическая соединений ТП 902-1-122.87-ЭМ.ЗЗИ-8 Щит КИП. Чертеж общего вида ТП 902-1-122.87-ЭМ.ЗЗИ-9.1 Щит КИП. Таблица технических данных аппаратов ТП 902-1-122.87-ЭМ.ЗЗИ-10.1,10.2 Щит КИП. Перечень надписей ТП 902-1-122.87-ЭМ.ЗЗИ-11.1,11.2 Щит КИП. Схема электрическая соединений ТП 902-1-122.87-СС Основной комплект марки СС ТП 902-1-122.87-СС-1 Общие данные. Схема расположения сети пожарной сигнализации ТП 902-1-122.87-СС-2 Схема подключения. Кабельный журнал ТП 902-1-122.87-СС-3 План защищаемых помещений и прокладка кабелей. Схема расположения сети защитных труб | Разработан: | Харьковский Водоканалпроект
| Утверждён: | 18.08.1987 Госстрой СССР (Государственный комитет Совета Министров СССР по делам строительства) (USSR Gosstroy 49)
| Расположен в: |
| Заменяет собой: | - Типовой проект 902-2-146 «Насосная станция при нефтеловушках на 2 насоса 5НКЭ-5х1, насос 4НКЭ-5х1 и 2 насоса 5Ф-6 для перекачки нефтепродуктов и осадка»
|
                                                                  
|