Информационная система
«Ёшкин Кот»

Скачать базу одним архивом
Скачать обновления
История создания базы
Карта сайта

Скачать Типовой проект 501-193 Часть IV. Производство работ

Дата актуализации: 10.08.2017

Типовой проект 501-193

Часть IV. Производство работ

Обозначение: Типовой проект 501-193
Обозначение англ: 501-193
Статус:действует
Название рус.:Часть IV. Производство работ
Дата добавления в базу:01.09.2013
Дата актуализации:05.05.2017
Оглавление:Состав проекта
Пояснительная записка
Трубы
   Пристройка трубы
Промежуточные свайные опоры
   Погружение свай вибропогружателем
   Монтаж насадок
Свайные устои
   Погружение вертикальных свай вибропогружателем
   Погружение вертикальных свай молотом
   Погружение наклонных свай
   Монтаж насадок
Опоры на естественном основании
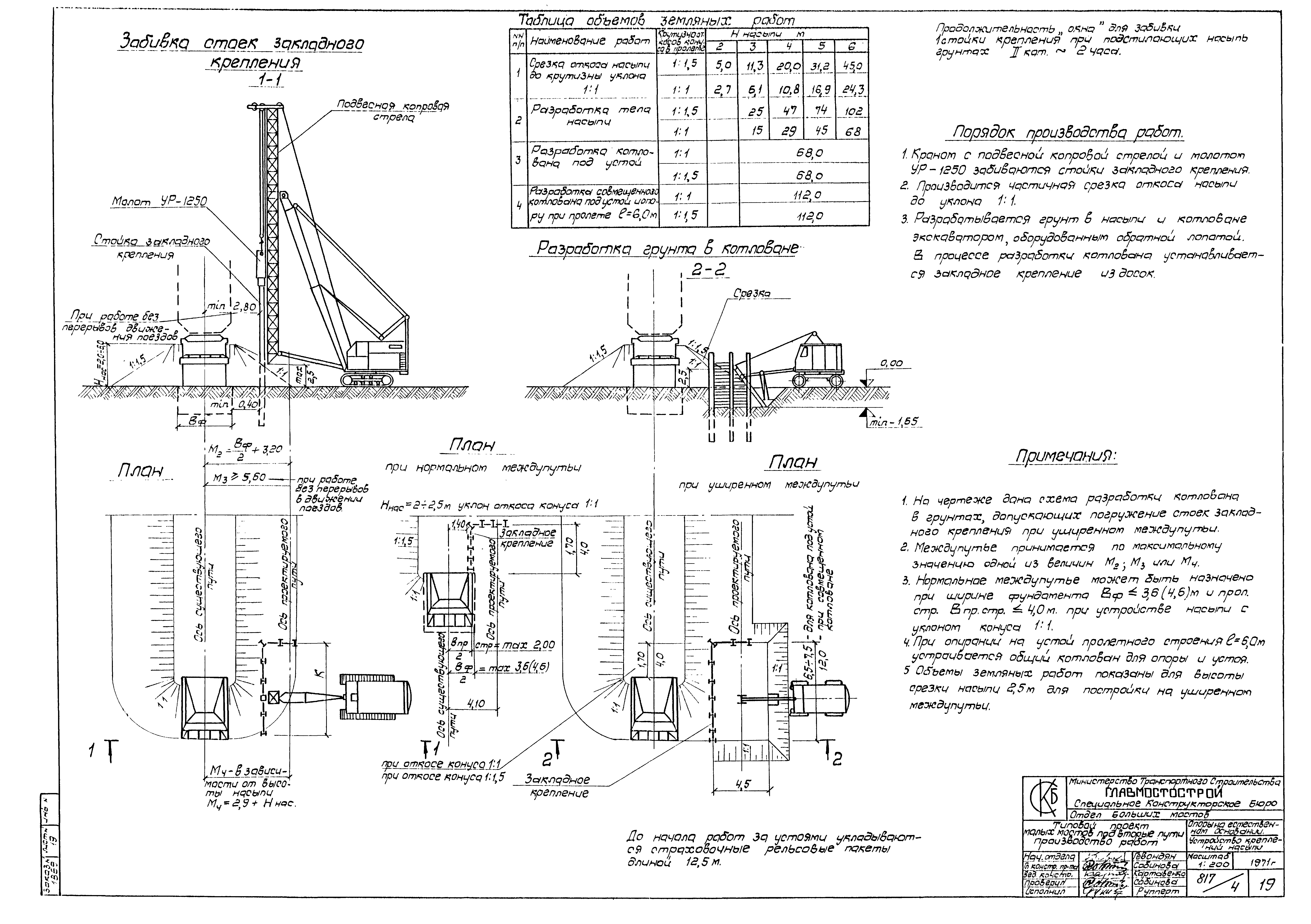
   Устройство крепления насыпи
   Монтаж фундаментов
   Монтаж стоек и насадок
Устои с параллельными откосными крыльями
   Устройство крепления насыпи
   Монтаж фундаментов и стеновых блоков
   Монтаж шкафных блоков
   Бетонирование карниза
Монтаж пролетных строений
   Длиной 2,95 - 6,0 м автокраном
   Длиной 2,95 - 6,0 м одним ж/д краном К-501
   Длиной 9,3; 11,5 и 13,5 м двумя ж/д кранами
   Консольным краном
Графики производства работ
   Пример: пристройка трубы
   Пример: сооружение моста со свайными опорами
   Пример: сооружение моста с опорами на естественном основании
   Пример: постройка моста на устоях с параллельными откосными крыльями
Крепление насыпей и котлованов
   При пристройке труб и свайных опор
   При постройке устоев с параллельными откосными крыльями
   При постройке опор на естественном основании
Конструктивные чертежи
   Плоский направляющий каркас для погружения свай. Общий вид
   Плоский направляющий каркас для погружения свай. Детали
   Инвентарный направляющий каркас для погружения свай промежуточных опор. Общий вид
   Инвентарный направляющий каркас для погружения свай промежуточных опор. Детали
   Инвентарный направляющий каркас для погружения свай промежуточных опор. Общий вид
   Инвентарный направляющий каркас для погружения свай промежуточных опор. Детали
   Инвентарный направляющий каркас для погружения свай устоев. Общий вид
   Инвентарный направляющий каркас для погружения свай устоев. Детали
   Инвентарный направляющий каркас для погружения свай устоев. Общий вид
   Инвентарный направляющий каркас для погружения свай устоев. Детали
   Кондуктор для свай (стоек) промежуточной опоры. Общий вид
   Кондуктор для свай (стоек) промежуточной опоры. Детали
   Кондуктор для свай (стоек) устоев. Общий вид
   Кондуктор для свай (стоек) устоев. Детали
Разработан: Ленгипротрансмост
Утверждён:15.02.1972 МПС (Ministry of Railroads П-4230)
Расположен в:Техническая документация Строительство Справочные документы Типовые строительные конструкции, изделия и узлы Общероссийский строительный каталог Строительные конструкции, изделия и узлы зданий и сооружений для всех видов строительства Конструкции и изделия сооружений и оборудования зданий Надземные сооружения Конструкции и сооружения транспорта Пролетные строения мостов, мосты и путепроводы
Типовой проект 501-193Типовой проект 501-193Типовой проект 501-193Типовой проект 501-193Типовой проект 501-193Типовой проект 501-193Типовой проект 501-193Типовой проект 501-193Типовой проект 501-193Типовой проект 501-193Типовой проект 501-193Типовой проект 501-193Типовой проект 501-193Типовой проект 501-193Типовой проект 501-193Типовой проект 501-193Типовой проект 501-193Типовой проект 501-193Типовой проект 501-193Типовой проект 501-193Типовой проект 501-193Типовой проект 501-193Типовой проект 501-193Типовой проект 501-193Типовой проект 501-193Типовой проект 501-193Типовой проект 501-193Типовой проект 501-193Типовой проект 501-193Типовой проект 501-193Типовой проект 501-193Типовой проект 501-193Типовой проект 501-193Типовой проект 501-193Типовой проект 501-193Типовой проект 501-193Типовой проект 501-193Типовой проект 501-193Типовой проект 501-193Типовой проект 501-193Типовой проект 501-193Типовой проект 501-193Типовой проект 501-193Типовой проект 501-193Типовой проект 501-193Типовой проект 501-193Типовой проект 501-193Типовой проект 501-193Типовой проект 501-193

© 2013 Ёшкин Кот :-) Карта сайта