Информационная система
«Ёшкин Кот»

Скачать базу одним архивом
Скачать обновления
История создания базы
Карта сайта

Скачать Типовой проект 407-3-581.90 Альбом 1. Пояснительная записка. Электротехническая часть. Архитектурно-строительные решения. Строительные решения

Дата актуализации: 10.08.2017

Типовой проект 407-3-581.90

Альбом 1. Пояснительная записка. Электротехническая часть. Архитектурно-строительные решения. Строительные решения

Обозначение: Типовой проект 407-3-581.90
Обозначение англ: 407-3-581.90
Статус:не определен законодательством
Название рус.:Альбом 1. Пояснительная записка. Электротехническая часть. Архитектурно-строительные решения. Строительные решения
Дата добавления в базу:01.09.2013
Дата актуализации:05.05.2017
Дата введения:15.08.1990
Оглавление:Пояснительная записка
Электротехническая часть
   Общие данные
   Схема электрических соединений подстанции со шкафами КРН-10У1. Схема блокировки
   План и разрез подстанции со шкафами КРН-10У1
   Опросный лист на КРН-10У1
   Схема электрических соединений подстанции со шкафами К-10В. Схема блокировки
   План и разрез подстанции со шкафами К-108
   Опросный лист на К-108
   Ввод низкого напряжения в здание насосной станции. План и разрез
   Установка шкафов КРН-10У1
   Установка шкафа К-108
   Установка разъединителя РЛНД1-10/400У1
   Установка проходных изоляторов в шкафу КРН-10У1
   Плита с проходными изоляторами ИП-10
   Установка кронштейна К1
   Установка кронштейна К2
   Установка кронштейна К3
   Раскладка кабелей, освещение и заземляющее устройство подстанции со шкафами КРН-10У1
   Раскладка кабелей, освещение и заземляющее устройство подстанции со шкафами К-108
   Кабельные журналы
Архитектурно-строительные решения
   Общие данные
   План и разрез фундаментов подстанции со шкафами КРН-10У1
   План и разрез фундаментов подстанции со шкафами К-108
   Фундамент под трансформаторы мощностью 630, 1000 кВА
   Фундамент под шкаф К-108
   Опора под разъединитель РЛНД1-10/400У1
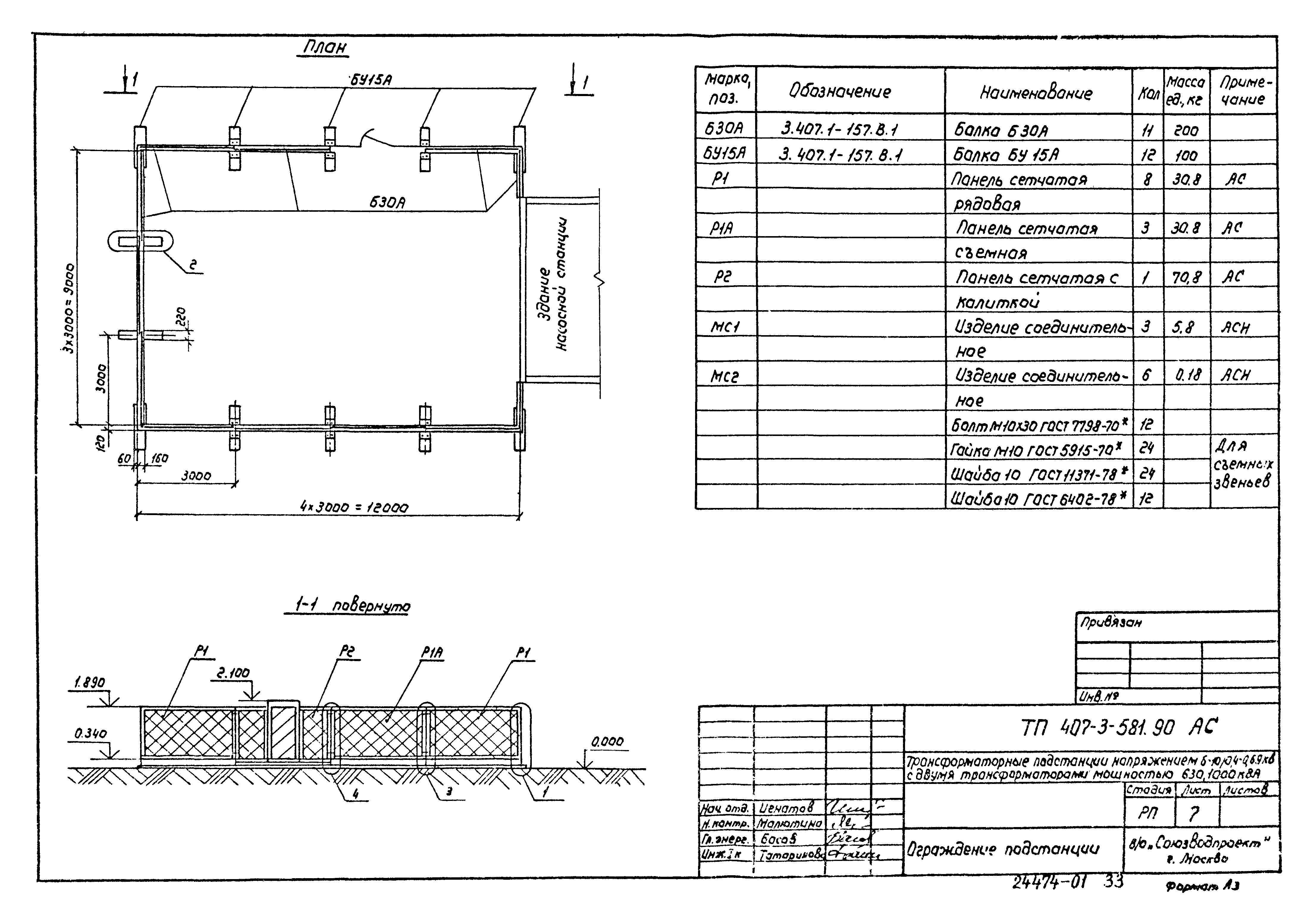
   Ограждение подстанции
   Монтажные узлы 1, 2
   Монтажные узлы 3, 4
   Панель сетчатая рядовая Р1. Панель сетчатая съемная Р1А
   Панель сетчатая с калиткой Р2
Строительные изделия
   Рама РМ1
   Рама РМ2. Марка М1
   Рама РМ3. Рама РМ4
   Рама РМ5
   Рама РМ6
   Марки М2, М3, М4
   Кронштейн К1
   Кронштейн К2
   Кронштейн К3. Рама РМ7
   Изделия соединительные МС1, МС2
Разработан: Союзводпроект Минводстроя СССР
Утверждён:15.08.1990 Союзводпроект (830)
Издан: ЦИТП Госстроя СССР (CITP, Gosstroy (USSR) 1990 г. )
Расположен в:Техническая документация Строительство Справочные документы Типовые строительные конструкции, изделия и узлы Общероссийский строительный каталог Промышленные предприятия, здания и сооружения Предприятия, здания и сооружения промышленности и электроэнергетики Электроэнергетика Устройства и подстанции распределительные
Типовой проект 407-3-581.90Типовой проект 407-3-581.90Типовой проект 407-3-581.90Типовой проект 407-3-581.90Типовой проект 407-3-581.90Типовой проект 407-3-581.90Типовой проект 407-3-581.90Типовой проект 407-3-581.90Типовой проект 407-3-581.90Типовой проект 407-3-581.90Типовой проект 407-3-581.90Типовой проект 407-3-581.90Типовой проект 407-3-581.90Типовой проект 407-3-581.90Типовой проект 407-3-581.90Типовой проект 407-3-581.90Типовой проект 407-3-581.90Типовой проект 407-3-581.90Типовой проект 407-3-581.90Типовой проект 407-3-581.90Типовой проект 407-3-581.90Типовой проект 407-3-581.90Типовой проект 407-3-581.90Типовой проект 407-3-581.90Типовой проект 407-3-581.90Типовой проект 407-3-581.90Типовой проект 407-3-581.90Типовой проект 407-3-581.90Типовой проект 407-3-581.90Типовой проект 407-3-581.90Типовой проект 407-3-581.90Типовой проект 407-3-581.90Типовой проект 407-3-581.90Типовой проект 407-3-581.90Типовой проект 407-3-581.90Типовой проект 407-3-581.90Типовой проект 407-3-581.90Типовой проект 407-3-581.90Типовой проект 407-3-581.90Типовой проект 407-3-581.90Типовой проект 407-3-581.90Типовой проект 407-3-581.90Типовой проект 407-3-581.90Типовой проект 407-3-581.90Типовой проект 407-3-581.90Типовой проект 407-3-581.90Типовой проект 407-3-581.90Типовой проект 407-3-581.90

© 2013 Ёшкин Кот :-) Карта сайта