| ||||||||||||||||||||||||
Скачать Серия ПК-01-07 Выпуск 2. Балки предварительно напряженные собираемые из блоков для пролета 24 мДата актуализации: 10.08.2017
|
| Обозначение: | Серия ПК-01-07 |
| Обозначение англ: | Series ПК-01-07 |
| Статус: | действует |
| Название рус.: | Выпуск 2. Балки предварительно напряженные собираемые из блоков для пролета 24 м |
| Дата добавления в базу: | 01.09.2013 |
| Дата актуализации: | 05.05.2017 |
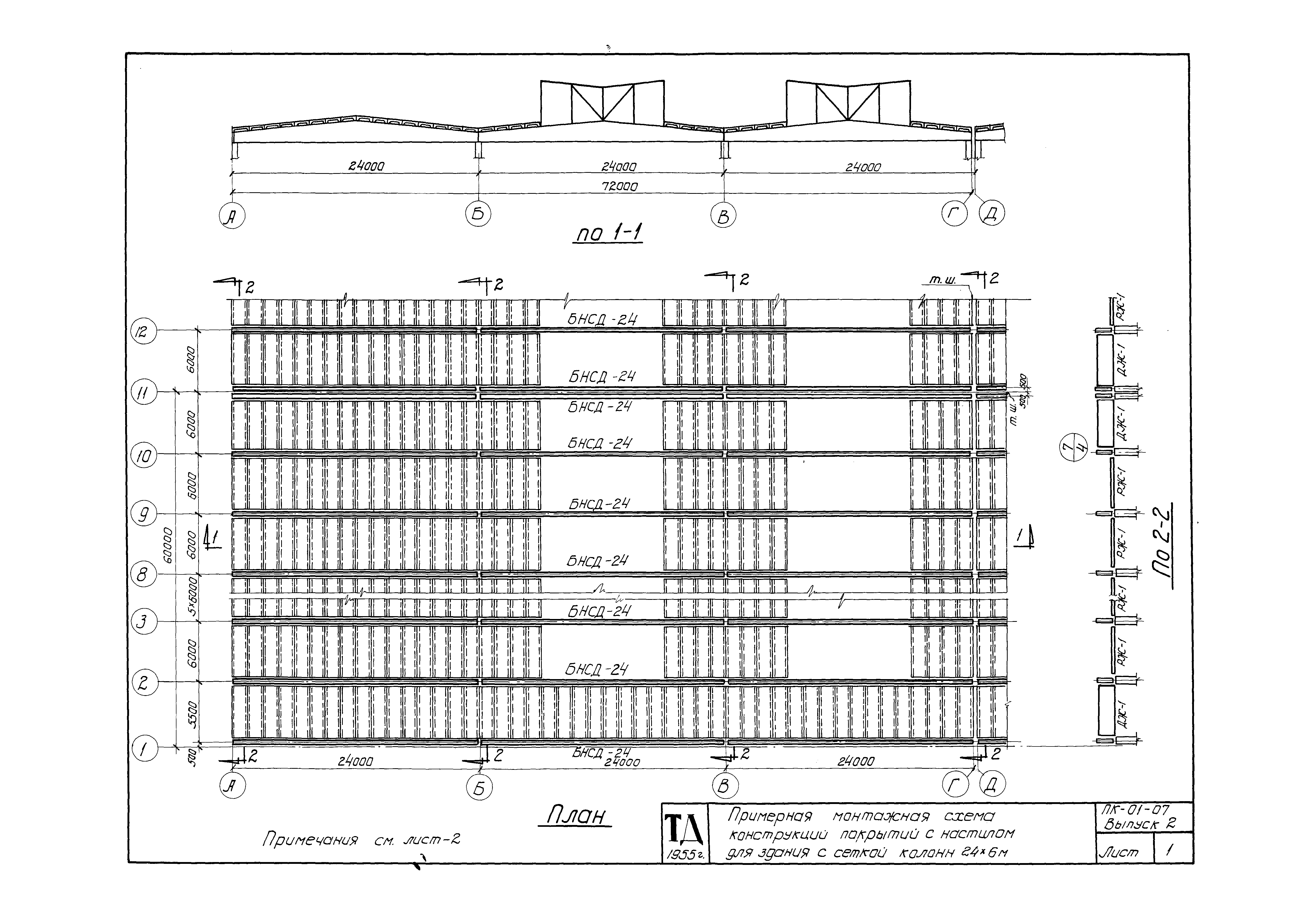
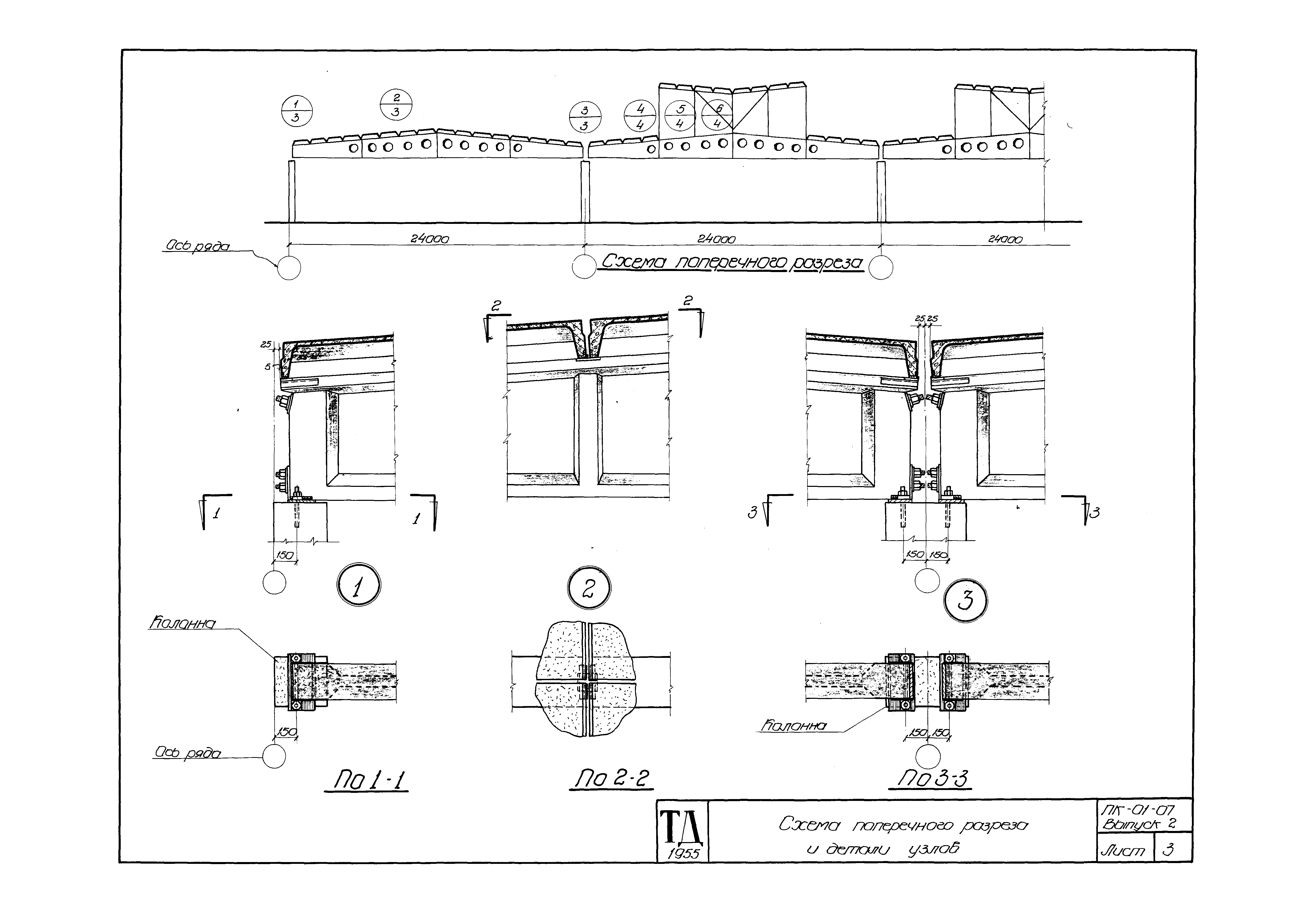
| Оглавление: | Пояснительная записка Краткие указания по изготовлению, приемке и хранению балок Примерная монтажная схема конструкций покрытий с настилом для здания с сеткой колонн 24х6 м Примерная монтажная схема конструкций покрытий с настилом для здания с сеткой колонн 24х6 м. Фонарь Схема поперечного разреза и детали узлов Детали крепления рамы фонаря, железобетонных распорок и диафрагм к балкам Диафрагма железобетонная ДЖ-1. Распорка железобетонная РЖ-1. Схема строповки балки ДЖ-1, РЖ-1. Спецификации Железобетонные предварительно напряженные балки, собираемые из блоков для пролета 24 м, БНСД-24-1, БНСД-24-2, БНСД-24-3. Общий вид. Технико-экономические показатели БНСД-24-1. Сталь 25ГС. Спецификация и выборка стали БНСД-24-1. Сталь СТ-5. Спецификация и выборка стали БНСД-24-2. Сталь 25ГС. Спецификация и выборка стали БНСД-24-2. Сталь СТ-5. Спецификация и выборка стали БНСД-24-3. Сталь 25ГС. Спецификация и выборка стали Блоки БЛ11-400 и БЛ11-500. Опалубка Блоки БЛ11-400 и БЛ11-500. Армирование Блоки БЛ11-400 и БЛ11-500. Спецификация Блоки БЛ12-400 и БЛ12-500. Опалубка Блоки БЛ12-400 и БЛ12-500. Армирование Блоки БЛ12-400 и БЛ12-500. Спецификация Каркасы К-1, К-1а, К-2, К-2а, К-3 Каркасы К-4, К-5, К-6, К-7 Каркасы К-8, К-8а, К-9, К-10 Каркасы К-11, К-12, К-13, К-14, К-15 Закладные детали М-1, М-2, М-3, М-4. Детали В-1, В-2, В-3. Тройники |
| Разработан: | Проектный институт № 1 Министерства строительства РСФСР |
| Утверждён: | 01.01.1955 Госстрой СССР (Государственный комитет Совета Министров СССР по делам строительства) (USSR Gosstroy ) |
| Расположен в: |
































