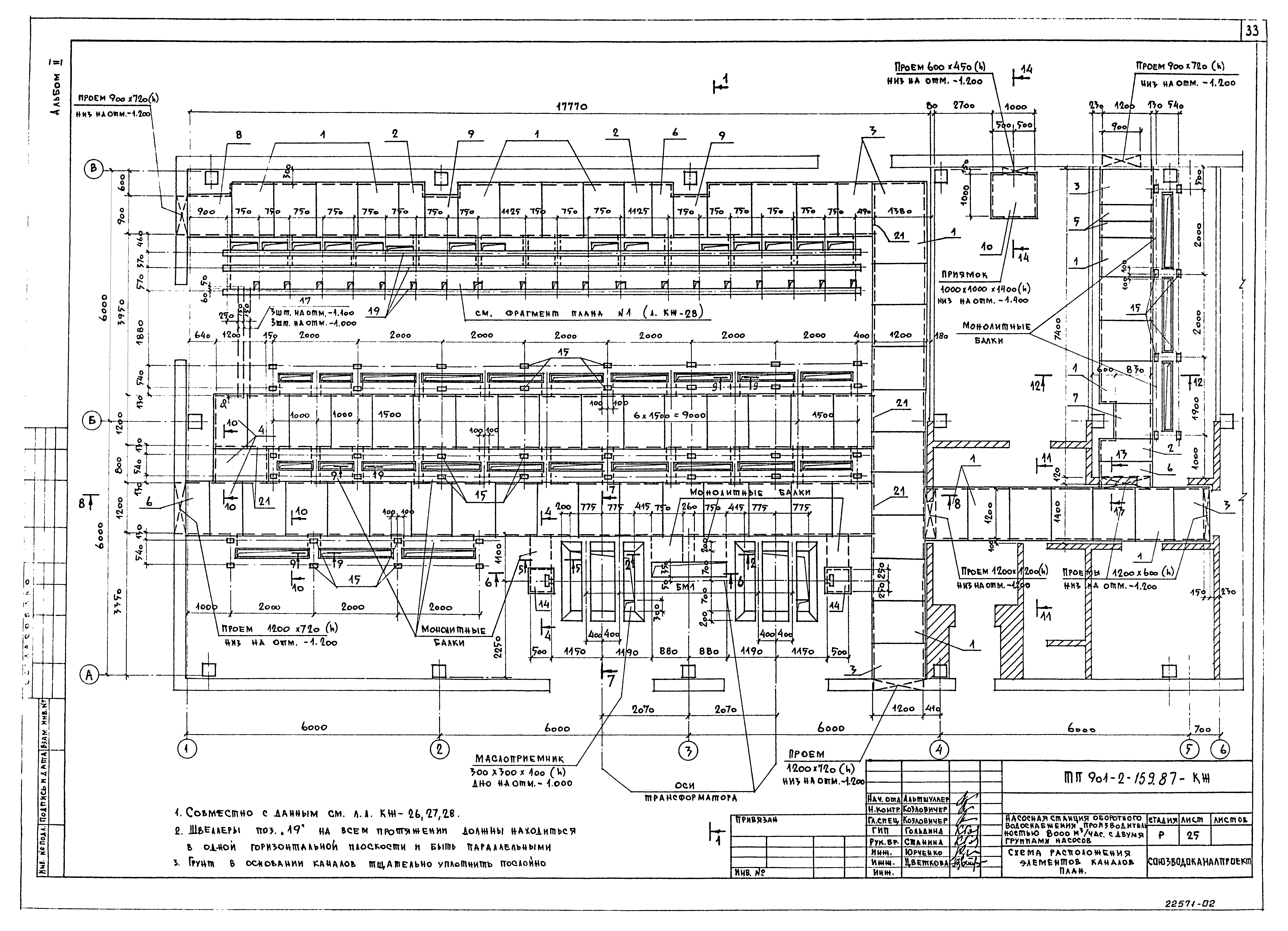
Скачать Типовой проект 901-2-159.87 Альбом II. Архитектурно-строительные чертежи. Отопление и вентиляцияДата актуализации: 10.08.2017 Типовой проект 901-2-159.87
Альбом II. Архитектурно-строительные чертежи. Отопление и вентиляцияОбозначение: | Типовой проект 901-2-159.87 | Обозначение англ: | 901-2-159.87 | Статус: | отменен | Название рус.: | Альбом II. Архитектурно-строительные чертежи. Отопление и вентиляция | Дата добавления в базу: | 01.02.2017 | Дата актуализации: | 05.05.2017 | Дата введения: | 01.07.1996 | Разработан: | Союзводоканалпроект
| Утверждён: | 18.08.1987 Госстрой СССР (Государственный комитет Совета Министров СССР по делам строительства) (USSR Gosstroy 50)
| Расположен в: |
| Заменяет собой: | |
                                                   
|