Информационная система
«Ёшкин Кот»

Скачать базу одним архивом
Скачать обновления
История создания базы
Карта сайта

Скачать Типовой проект 290-1-11 Альбом II. Спортивное оборудование

Дата актуализации: 10.08.2017

Типовой проект 290-1-11

Альбом II. Спортивное оборудование

Обозначение: Типовой проект 290-1-11
Обозначение англ: 290-1-11
Статус:действует
Название рус.:Альбом II. Спортивное оборудование
Дата добавления в базу:01.09.2013
Дата актуализации:05.05.2017
Оглавление:Содержание альбома
Спортивный городок
   Общий вид
   Крюк, поперечина
   Фланец, пластина, доска, подкос
   Перекладина, пластина
   Стойка
   Стойка, перемычки, нижняя и верхняя перекладина
   Косынка, лестница вертикальная, крюк
   Лестница наклонная, стойка, ножка
   Перекладина левая
   Спецификация. Буж
   Подвеска, дуга
   Качели, перемычка
   Основание, замок, крюк, клин, упор, буж
   Стойка, кольцо, сводная спецификация
   Основание, перемычка, сводная спецификация
Стойка баскетбольная для ОПФ
   Общий вид
   Втулка. Кольцо стопорное. Хомут. Кольцо ограничительное. Винт специальный
   Стойка в сборе
   Вылет, шарнир
   Рычаг, петля шарнира, рычаг длинный
   Противовес, диск, сводная спецификация
   Диск, скоба, буж, штифт, сводная спецификация
   Тяга, бобышка, ось, основание, петля, уголок
   Ручка, стойка
Ворота футбольные для ОФП и школ
   Общий вид
   Сводная спецификация
   Буж, ушко, труба, крючок, перекладина, стойка
   Стакан стойки, уголок, стакан мачты, крюк, мачта
Щит баскетбольный тренировочный
   Щит баскетбольный тренировочный
   Щит
   Рама
   Тяга, скоба
   Козырек, подкос короткий, подкос длинный, брус
   Фланец, пластина, кольцо, сводная спецификация
   Петля, ось, стакан, шайба, ролик, сводная спецификация
Стенка гимнастическая стальная
   Общий вид
   Стойка, перекладина, лестница
   Фиксатор, перемычки, стакан, дуга, каркас
   Стойка, фланец, сводная спецификация
Комбинированная башня-горка
   Общий вид
   Общий вид, крючок, крюк
   Склиз
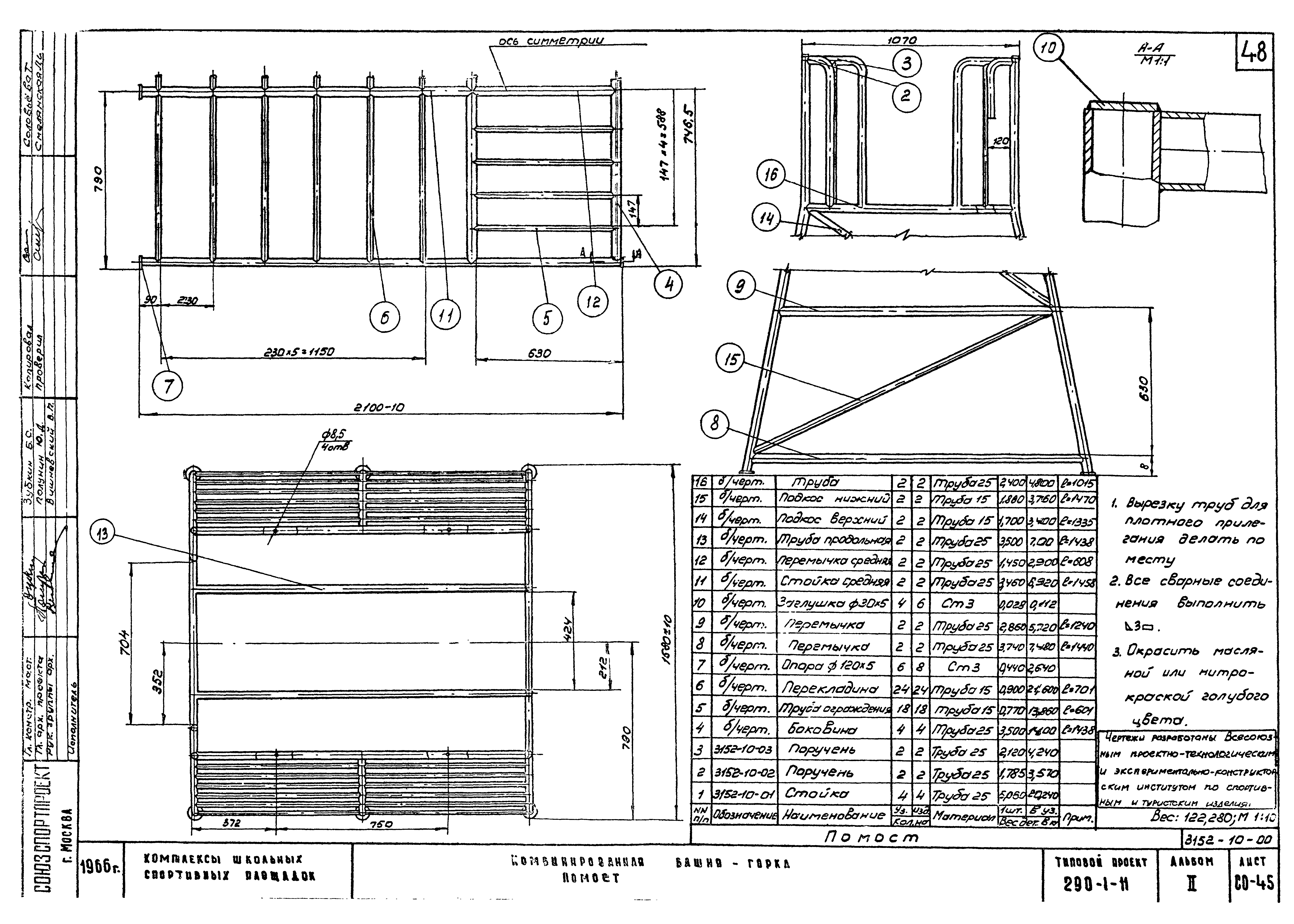
   Помост
   Щит верхний
   Щит нижний
   Лестница, поручень
   Стойка, поручень, боковина
   Настил
   Сводная спецификация, щит верхний
   Сводная спецификация, стойка
Брусья гимнастические
   Общий вид, разрезы, спецификация
   Пробка, головка, винт, вертлюг, рукоятка, стойка
   Седло, палец, стакан, сводная спецификация
Козел гимнастический
   Общий вид
   Корпус
   Винт, рукоятка, упор
   Шток, общий вид
   Бобышка, рукоятка, стойка
   Гнездо, фланец, стакан, ушко
   Палец, крышка, фиксатор, упор
   Ручка, фиксатор, кольцо, бобышка, спецификация
   Стенка торцевая, стенка боковая, стакан, сводная спецификация
Стойка волейбольная съемная разновысокая
   Стойка волейбольная съемная разновысокая
   Стакан, стойка
   Дно, буж, втулка, стакан, крюк
   Втулки, фланцы, сводная спецификация
Ворота для игры в ручной мяч
   Общий вид
   Петля, ушко, общий вид
   Опора
   Стойка, ушко, ось, штырь, шайба
   Перекладина, фиксатор, крючок, стержень
   Сводная спецификация
Качалка
   Общий вид, разрезы, спецификация
   Доска, шарнир, прокладка, доска, пластина
   Доска, щека, пятка, ушко
   Опора правая, шайба специальная, буж, крючок, перемычка
   Сводная спецификация, перемычка верхняя, стойка, левая опора
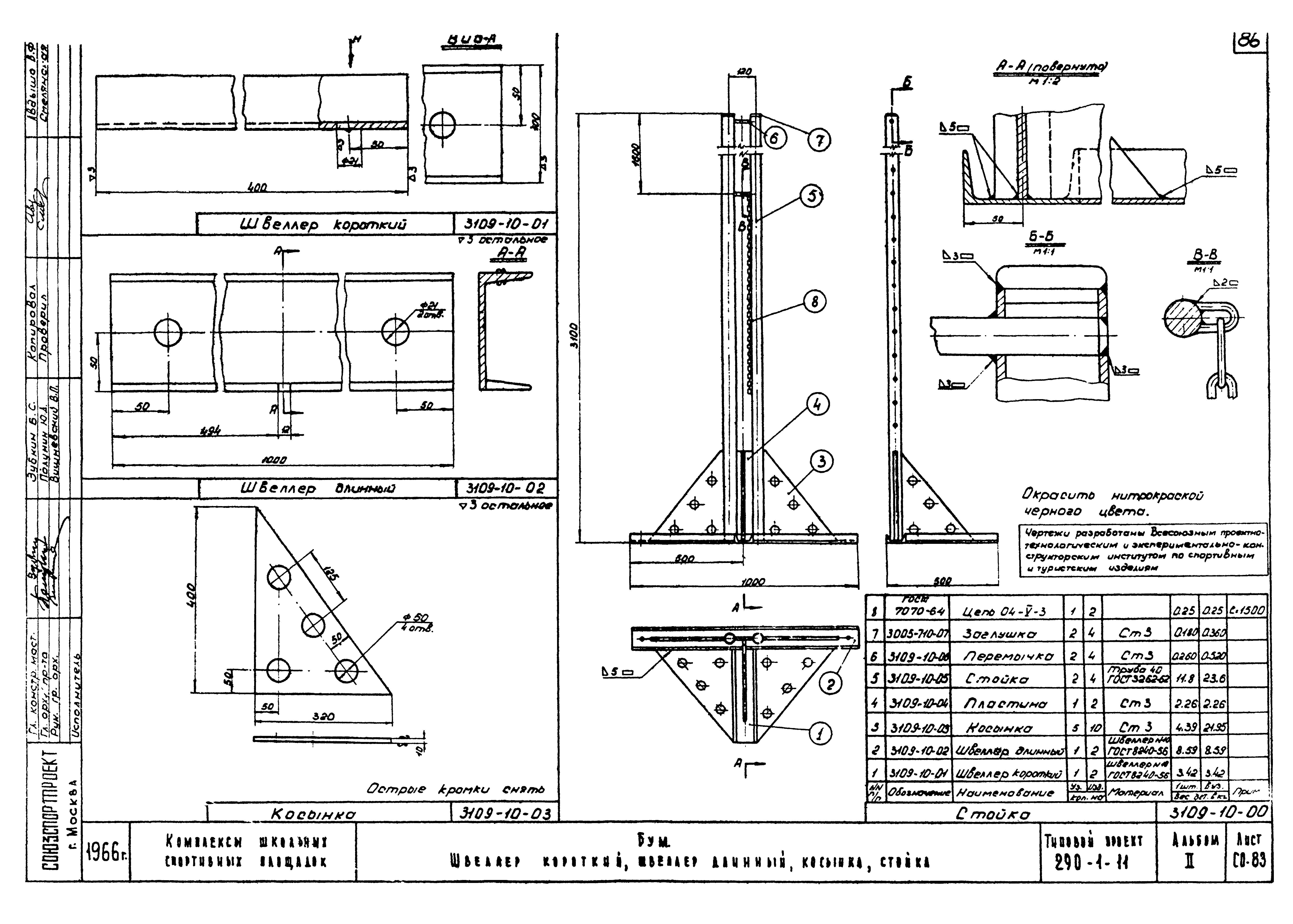
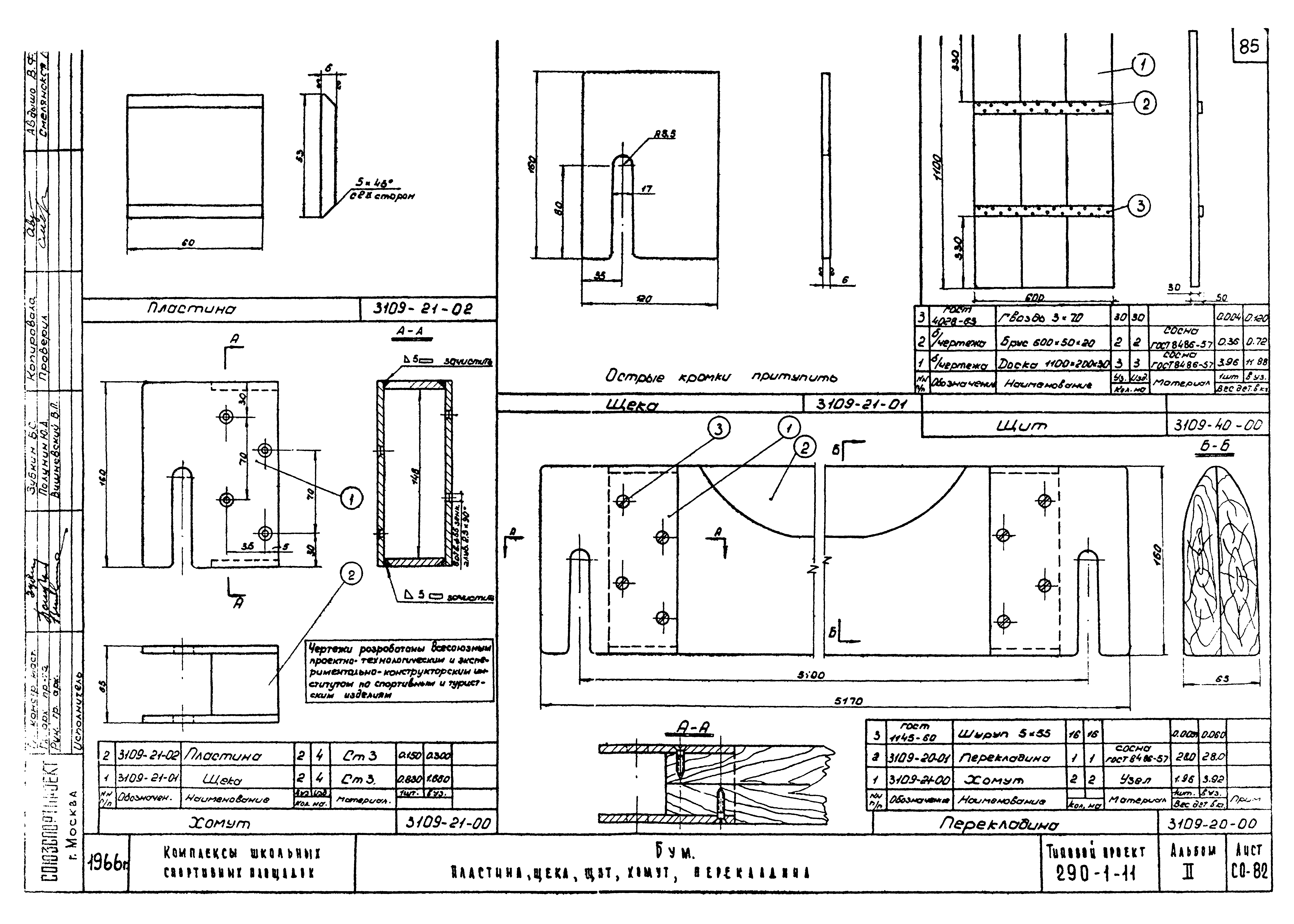
Бум
   Общий вид, спецификация
   Перекладина, болт фундаментный, пластина, стержень, шайба
   Пластина, щека, щит, хомут, перекладина
   Швеллер короткий, швеллер длинный, косынка, стойка
   Заглушка, перемычка, стойка
   Стержень, язычок, петля, головка, фиксатор, сводная спецификация
Шесты для лазанья неподвесные
   Общий вид
   Рама, фланец, пробка, прокладка, пробка
   Шайба, шест, петля, фланец, серьга, стакан под раму, поперечина нижняя, стакан под стяжку
   Сводная спецификация
Стойка для прыжков в высоту
   Общий вид
   Пластина, заглушка, стакан, опора
   Основание, фиксатор, винт, пластина, палка, хомуты
   Стойка, сводная спецификация
Перекладина гимнастическая
   Общий вид
   Винт, рукоятка, стакан, бобышка, стойка
   Перекладина, пробка, сводная спецификация
Пирамида гимнастическая
   Пирамида гимнастическая, стойка, заглушка
   Труба, перемычка, подкос, распорка, сводная спецификация
Батут складной
   Общий вид, разрезы
   Коврик, ролик
   Трубка, ось, полурама, звено, щечка
   Ролик, обойма, ось, цепи, защелка, шпилька
   Шарнир рамы, шарнир ноги, нога, звено, хомут, штифт
   Сводная спецификация
Технические указания
   Технические указания на производство и приемку работ по вертикальной микропланировке основания
   Технические указания на укладку конструкции без газонного покрытия
   Технические указания на приготовление и укладку спецсмеси
   Расчет оптимальной спецсмеси
   Технические указания на подготовку растительного слоя травяного спортивного поля
   Технические указания по залужению спортивного поля
Разработан: Институт Союзспортпроект
Утверждён:28.06.1967 Институт Союзспортпроект (442-т)
Расположен в:Техническая документация Строительство Справочные документы Типовые строительные конструкции, изделия и узлы Общероссийский строительный каталог Общественные здания в городах и поселках городского типа Физкультурно-оздоровительные и спортивные здания и сооружения Открытые спортивно-физкультурные сооружения
Типовой проект 290-1-11Типовой проект 290-1-11Типовой проект 290-1-11Типовой проект 290-1-11Типовой проект 290-1-11Типовой проект 290-1-11Типовой проект 290-1-11Типовой проект 290-1-11Типовой проект 290-1-11Типовой проект 290-1-11Типовой проект 290-1-11Типовой проект 290-1-11Типовой проект 290-1-11Типовой проект 290-1-11Типовой проект 290-1-11Типовой проект 290-1-11Типовой проект 290-1-11Типовой проект 290-1-11Типовой проект 290-1-11Типовой проект 290-1-11Типовой проект 290-1-11Типовой проект 290-1-11Типовой проект 290-1-11Типовой проект 290-1-11Типовой проект 290-1-11Типовой проект 290-1-11Типовой проект 290-1-11Типовой проект 290-1-11Типовой проект 290-1-11Типовой проект 290-1-11Типовой проект 290-1-11Типовой проект 290-1-11Типовой проект 290-1-11Типовой проект 290-1-11Типовой проект 290-1-11Типовой проект 290-1-11Типовой проект 290-1-11Типовой проект 290-1-11Типовой проект 290-1-11Типовой проект 290-1-11Типовой проект 290-1-11Типовой проект 290-1-11Типовой проект 290-1-11Типовой проект 290-1-11Типовой проект 290-1-11Типовой проект 290-1-11Типовой проект 290-1-11Типовой проект 290-1-11Типовой проект 290-1-11Типовой проект 290-1-11Типовой проект 290-1-11Типовой проект 290-1-11Типовой проект 290-1-11Типовой проект 290-1-11Типовой проект 290-1-11Типовой проект 290-1-11Типовой проект 290-1-11Типовой проект 290-1-11Типовой проект 290-1-11Типовой проект 290-1-11Типовой проект 290-1-11Типовой проект 290-1-11Типовой проект 290-1-11Типовой проект 290-1-11Типовой проект 290-1-11Типовой проект 290-1-11Типовой проект 290-1-11Типовой проект 290-1-11Типовой проект 290-1-11Типовой проект 290-1-11Типовой проект 290-1-11Типовой проект 290-1-11Типовой проект 290-1-11Типовой проект 290-1-11Типовой проект 290-1-11Типовой проект 290-1-11Типовой проект 290-1-11Типовой проект 290-1-11Типовой проект 290-1-11Типовой проект 290-1-11Типовой проект 290-1-11Типовой проект 290-1-11Типовой проект 290-1-11Типовой проект 290-1-11Типовой проект 290-1-11Типовой проект 290-1-11Типовой проект 290-1-11Типовой проект 290-1-11Типовой проект 290-1-11Типовой проект 290-1-11Типовой проект 290-1-11Типовой проект 290-1-11Типовой проект 290-1-11Типовой проект 290-1-11Типовой проект 290-1-11Типовой проект 290-1-11Типовой проект 290-1-11Типовой проект 290-1-11Типовой проект 290-1-11Типовой проект 290-1-11Типовой проект 290-1-11Типовой проект 290-1-11Типовой проект 290-1-11Типовой проект 290-1-11Типовой проект 290-1-11Типовой проект 290-1-11Типовой проект 290-1-11Типовой проект 290-1-11Типовой проект 290-1-11Типовой проект 290-1-11Типовой проект 290-1-11Типовой проект 290-1-11Типовой проект 290-1-11Типовой проект 290-1-11Типовой проект 290-1-11Типовой проект 290-1-11

© 2013 Ёшкин Кот :-) Карта сайта