Информационная система
«Ёшкин Кот»

Скачать базу одним архивом
Скачать обновления
История создания базы
Карта сайта

Скачать Типовой проект 902-2-441.87 Альбом V. Нестандартизированное оборудование (из ТП 902-2-428.87)

Дата актуализации: 10.08.2017

Типовой проект 902-2-441.87

Альбом V. Нестандартизированное оборудование (из ТП 902-2-428.87)

Обозначение: Типовой проект 902-2-441.87
Обозначение англ: 902-2-441.87
Статус:не определен законодательством
Название рус.:Альбом V. Нестандартизированное оборудование (из ТП 902-2-428.87)
Дата добавления в базу:01.10.2014
Дата актуализации:05.05.2017
Дата введения:09.11.1987
Оглавление:ТП 902-2-428.87 Титульный лист
ТП 902-2-428.87 ТМ99.00.00,100.01…04ПЗ Содержание альбома
ТП 902-2-428.87 ТМ99.00.00ТП Нестандартизированное оборудование. Пояснительная записка
ТП 902-2-428.87 ТМ99.00.00ВП Илосос вторичных горизонтальных отстойников 12х24 м. Ведомость технического проекта
ТП 902-2-428.87 ТМ99.00.00СХ Илосос вторичных горизонтальных отстойников 12х24 м. Ведомость покупных изделий
ТП 902-2-428.87 ТМ99.00.00ВО Илосос вторичных горизонтальных отстойников 12х24 м. Схема запасовки канатной системы
ТП 902-2-428.87 ТМ99.00.00ВО Илосос вторичных горизонтальных отстойников 12х24 м. Чертеж общего вида
ТП 902-2-428.87 ТМ99.00.00ВО Мост. Чертеж общего вида
ТП 902-2-428.87 ТМ99.00.00ВО Балка. Чертеж общего вида
ТП 902-2-428.87 ТМ99.00.00ВО Привод. Чертеж общего вида
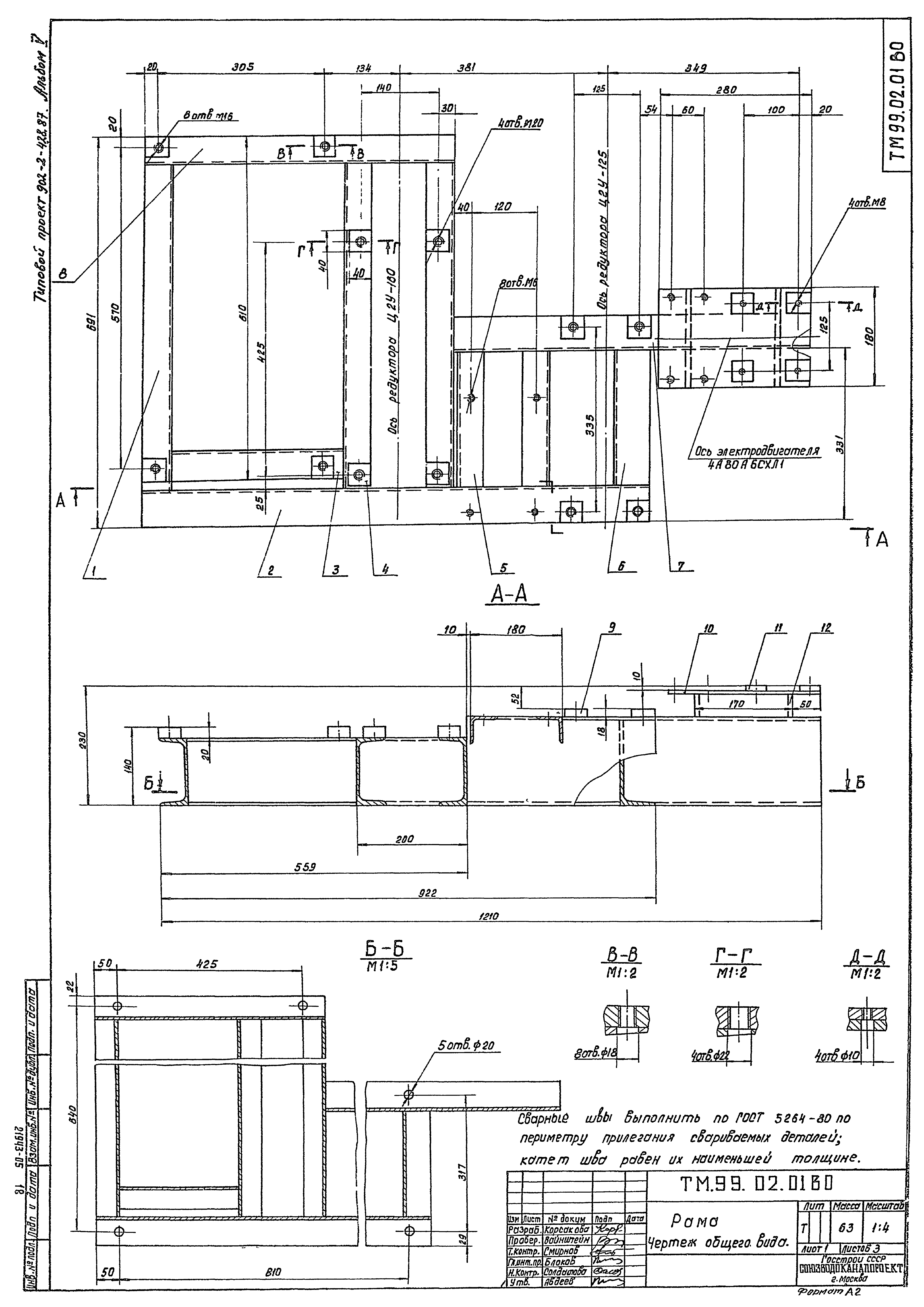
ТП 902-2-428.87 ТМ99.00.00ВО Рама. Чертеж общего вида
ТП 902-2-428.87 ТМ99.00.00ВО Корпус. Чертеж общего вида
ТП 902-2-428.87 ТМ99.00.00ВО Тележка правая. Чертеж общего вида
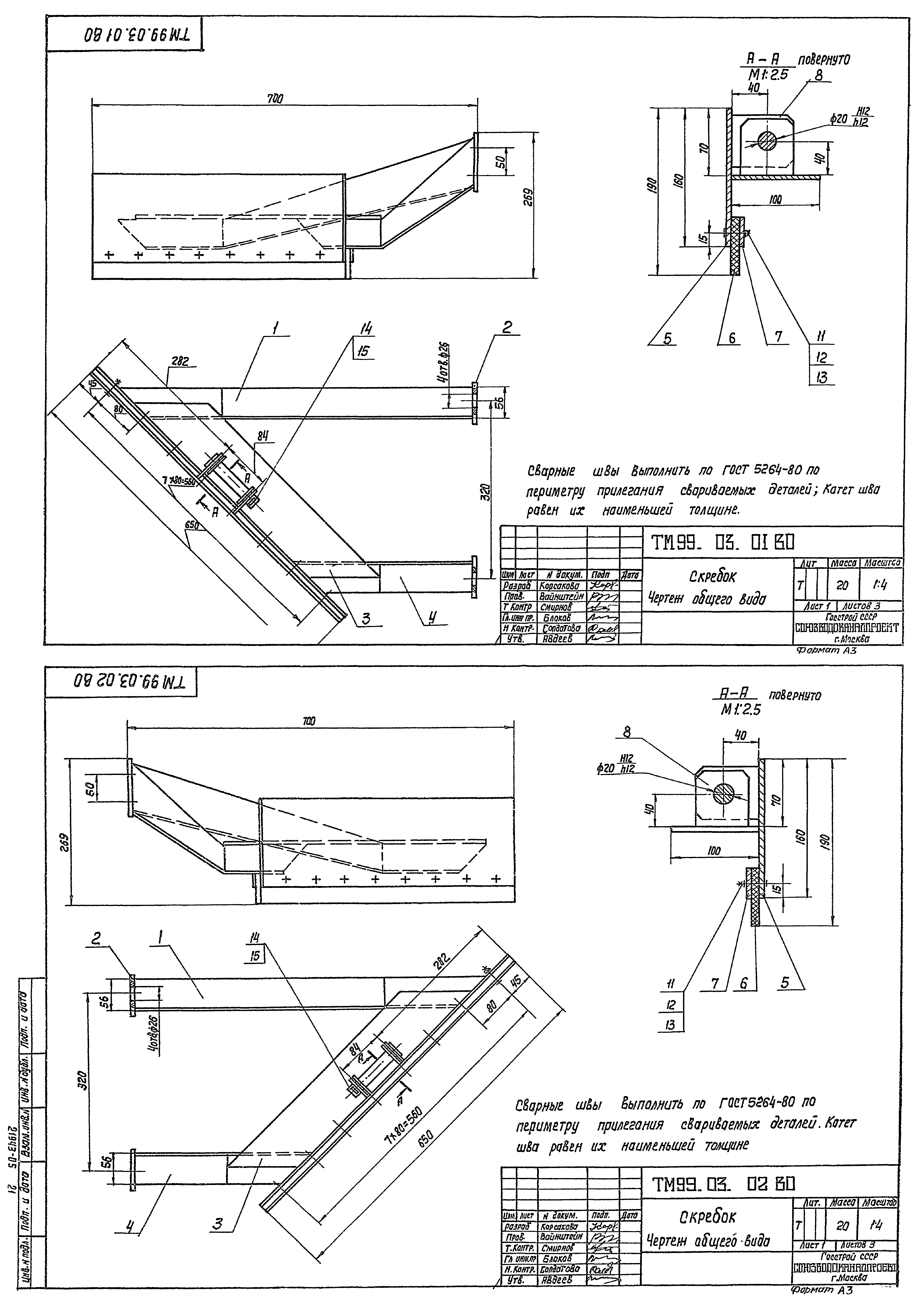
ТП 902-2-428.87 ТМ99.00.00ВО Скребок. Чертеж общего вида
ТП 902-2-428.87 ТМ99.00.00ВО Тележка левая. Чертеж общего вида
ТП 902-2-428.87 ТМ99.00.00ВО Динамометр. Чертеж общего вида
ТП 902-2-428.87 ТМ99.00.00ВО Труба илосборная. Чертеж общего вида
ТП 902-2-428.87 ТМ99.00.00ВО Воздуховод. Чертеж общего вида
ТП 902-2-428.87 ТМ99.00.00ВО Эрлифт. Чертеж общего вида
ТП 902-2-428.87 ТМ99.00.00ВО Ролик. Чертеж общего вида
ТП 902-2-428.87 ТМ99.00.00ВО Стойка. Чертеж общего вида
ТП 902-2-428.87 ТМ99.00.00ТП Затвор-водослив 900х500. Ведомость технического проекта
ТП 902-2-428.87 ТМ99.00.00ТП Затвор щитовой 300х250. Ведомость технического проекта
ТП 902-2-428.87 ТМ99.00.00ТП Установка трубки пито Ду350. Ведомость технического проекта
ТП 902-2-428.87 ТМ99.00.00ТП Эрлифт. Ведомость технического проекта
ТП 902-2-428.87 ТМ99.00.00ВО Затвор-водослив 900х500. Чертеж общего вида
ТП 902-2-428.87 ТМ99.00.00ВО Затвор щитовой 300х250. Чертеж общего вида
ТП 902-2-428.87 ТМ99.00.00ВО Установка трубки пито Ду350. Чертеж общего вида
ТП 902-2-428.87 ТМ99.00.00ВО Эрлифт. Чертеж общего вида
Разработан: Союзводоканалпроект
Утверждён:07.08.1987 Госстрой СССР (Государственный комитет Совета Министров СССР по делам строительства) (USSR Gosstroy АЧ-69)
Расположен в:Техническая документация Строительство Справочные документы Типовые строительные конструкции, изделия и узлы Общероссийский строительный каталог Промышленные предприятия, здания и сооружения Здания и сооружения санитарно-технические Канализация Сооружения биологической (биохимической) очистки Аэротенки, аэрируемые биопруды, аэроакселаторы
Типовой проект 902-2-441.87Типовой проект 902-2-441.87Типовой проект 902-2-441.87Типовой проект 902-2-441.87Типовой проект 902-2-441.87Типовой проект 902-2-441.87Типовой проект 902-2-441.87Типовой проект 902-2-441.87Типовой проект 902-2-441.87Типовой проект 902-2-441.87Типовой проект 902-2-441.87Типовой проект 902-2-441.87Типовой проект 902-2-441.87Типовой проект 902-2-441.87Типовой проект 902-2-441.87Типовой проект 902-2-441.87Типовой проект 902-2-441.87Типовой проект 902-2-441.87Типовой проект 902-2-441.87Типовой проект 902-2-441.87Типовой проект 902-2-441.87Типовой проект 902-2-441.87Типовой проект 902-2-441.87Типовой проект 902-2-441.87Типовой проект 902-2-441.87Типовой проект 902-2-441.87Типовой проект 902-2-441.87Типовой проект 902-2-441.87Типовой проект 902-2-441.87Типовой проект 902-2-441.87Типовой проект 902-2-441.87Типовой проект 902-2-441.87Типовой проект 902-2-441.87Типовой проект 902-2-441.87Типовой проект 902-2-441.87Типовой проект 902-2-441.87Типовой проект 902-2-441.87Типовой проект 902-2-441.87Типовой проект 902-2-441.87Типовой проект 902-2-441.87Типовой проект 902-2-441.87Типовой проект 902-2-441.87Типовой проект 902-2-441.87Типовой проект 902-2-441.87Типовой проект 902-2-441.87Типовой проект 902-2-441.87Типовой проект 902-2-441.87Типовой проект 902-2-441.87

© 2013 Ёшкин Кот :-) Карта сайта