| ||||||||||||||||||||||||||||
Скачать Типовые проектные решения 407-03-433.87 Альбом I. Часть 1. Электротехнические чертежи (листы ЭП-5…ЭП-67)Дата актуализации: 10.08.2017
|
| Обозначение: | Типовые проектные решения 407-03-433.87 |
| Обозначение англ: | 407-03-433.87 |
| Статус: | заменен |
| Название рус.: | Альбом I. Часть 1. Электротехнические чертежи (листы ЭП-5…ЭП-67) |
| Дата добавления в базу: | 01.09.2013 |
| Дата актуализации: | 05.05.2017 |
| Дата введения: | 01.10.1992 |
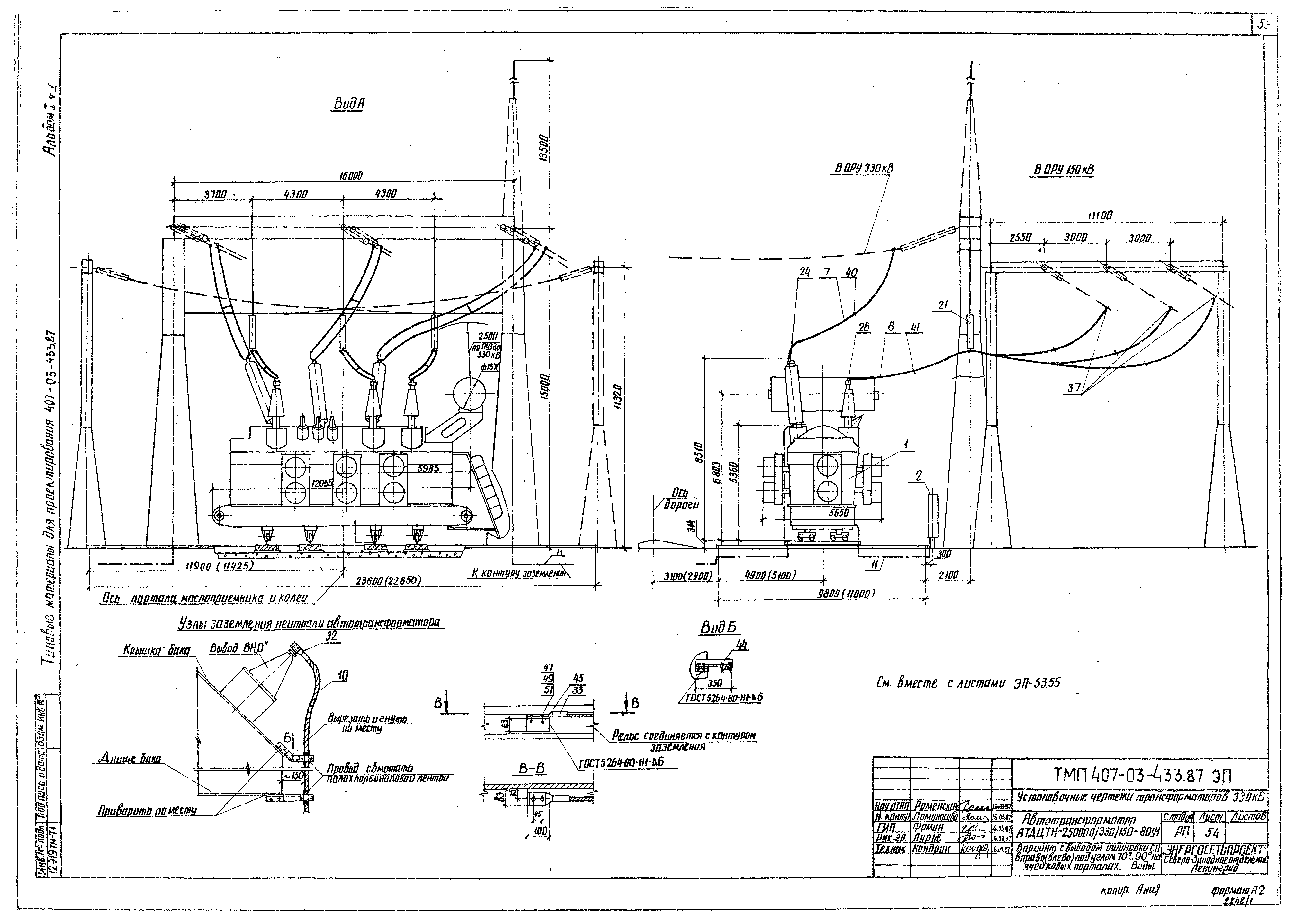
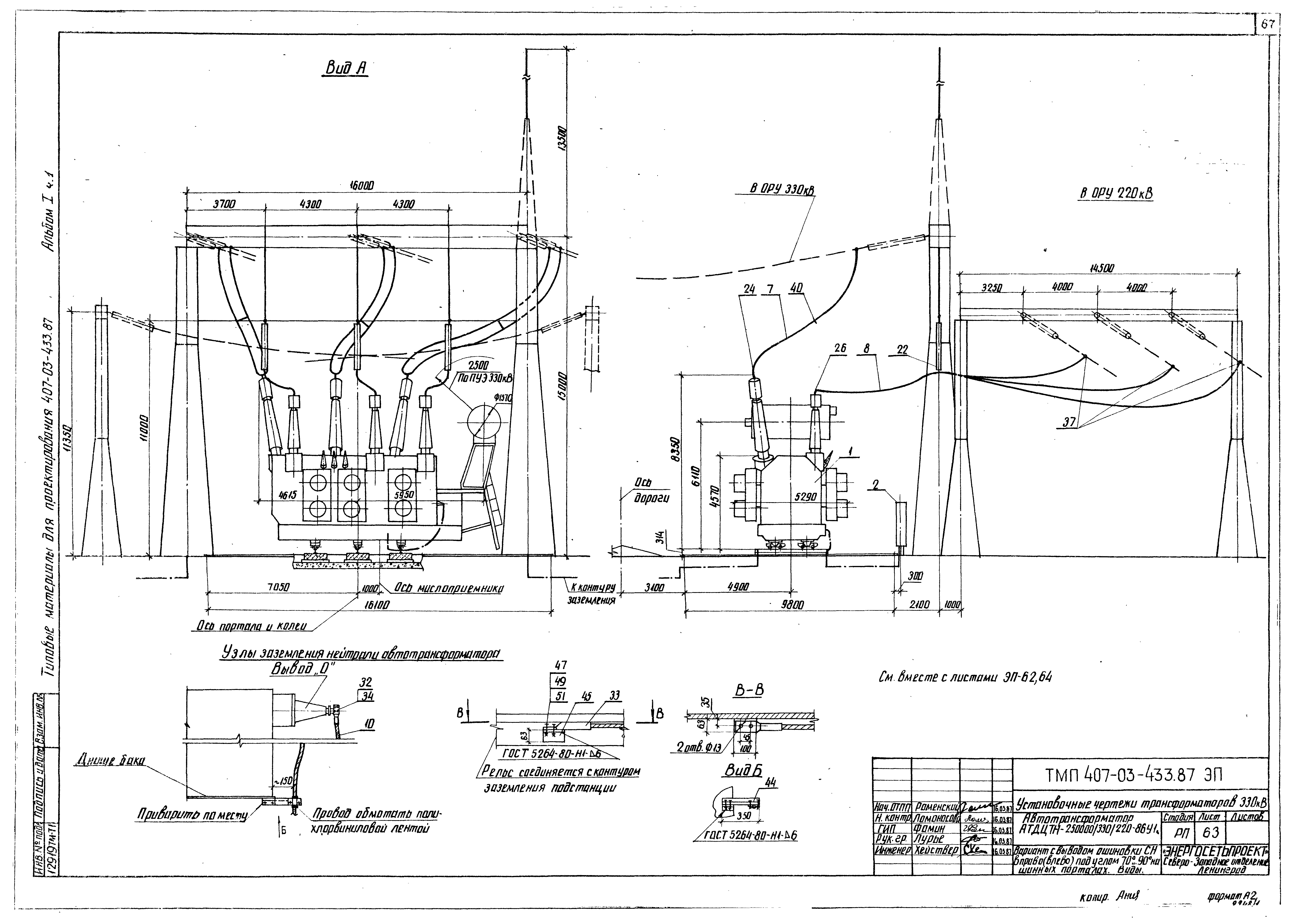
| Оглавление: | Содержание альбома Пояснительная записка Общие данные Автотрансформатор АОДЦТН-133000/330/220-74У1. План, виды 3хАОДЦТН-133000/330/220-74У1. Установка без огнезащитных перегородок между фазами 3хАОДЦТН-133000/330/220-74У1. Установка с огнезащитными перегородками 3хАОДЦТН-133000/330/220-74У1. Спецификация оборудования и материалов к листам ЭП-5, 6, 7 3хАОДЦТН-133000/330/220-74У1 с резервной фазой. Вариант I. Установка без огнезащитных перегородок между фазами. План, разрез 3хАОДЦТН-133000/330/220-74У1 с резервной фазой. Вариант I. Установка с огнезащитными перегородками между фазами. План, разрез 3хАОДЦТН-133000/330/220-74У1 с резервной фазой. Вариант I. Установка без огнезащитных перегородок между фазами. Виды 3хАОДЦТН-133000/330/220-74У1 с резервной фазой. Вариант I. Установка с огнезащитными перегородками между фазами. Вид 3хАОДЦТН-133000/330/220-74У1 с резервной фазой. Спецификация оборудования и материалов к листам ЭП-5, 10, 11, 12, 13 3хАОДЦТН-133000/330/220-74У1 с резервной фазой. Вариант II. Установка без огнезащитных перегородок между фазами. План, разрез 3хАОДЦТН-133000/330/220-74У1 с резервной фазой. Вариант II. Установка с огнезащитными перегородками между фазами. План, разрез 3хАОДЦТН-133000/330/220-74У1 с резервной фазой. Вариант II. Установка без огнезащитных перегородок между фазами. Вид 3хАОДЦТН-133000/330/220-74У1 с резервной фазой. Вариант II. Установка с огнезащитными перегородками между фазами. Вид 3хАОДЦТН-133000/330/220-74У1 с резервной фазой. Спецификация оборудования и материалов к листам ЭП-5, 16, 17, 18, 19 3хАОДЦТН-133000/330/220-74У1 с резервной фазой. Вариант III. Установка без огнезащитных перегородок между фазами 3хАОДЦТН-133000/330/220-74У1 с резервной фазой. Вариант III. Установка с огнезащитными перегородками между фазами 3хАОДЦТН-133000/330/220-74У1 с резервной фазой. Спецификация оборудования и материалов к листам ЭП-5, 22, 23 3хАОДЦТН-133000/330/220-74У1 с резервной фазой. Пример выполнения ошиновки НН на одностоечных опорах. План, разрез 3хАОДЦТН-133000/330/220-74У1 с резервной фазой. Пример выполнения ошиновки НН на одностоечных опорах. Виды 3хАОДЦТН-133000/330/220-74У1 с резервной фазой. Шинный мост на 10 кВ на стороне НН. Схема Трансформатор ТРДЦН-63000/330-73У1. Вариант с выводом ошиновки вправо (влево) под углом 0…20 градусов. План Трансформатор ТРДЦН-63000/330-73У1. Вариант с выводом ошиновки вправо (влево) под углом 0…20 градусов. Виды Трансформатор ТРДЦН-63000/330-73У1. Спецификация оборудования и материалов к листам ЭП-29, 30 Автотрансформатор АТДЦТН-125000/330/110-77У1. Вариант с выводом ошиновки СН вправо (влево) под углом 0…20 градусов. План Автотрансформатор АТДЦТН-125000/330/110-77У1. Вариант с выводом ошиновки СН вправо (влево) под углом 0…20 градусов. Виды Автотрансформатор АТДЦТН-125000/330/110-77У1. Спецификация оборудования и материалов к листам ЭП-32, 33 Автотрансформатор АТДЦТН-125000/330/110-77У1. Вариант с выводом ошиновки СН вправо (влево) под углом 70…90 градусов на ячейковых порталах. План Автотрансформатор АТДЦТН-125000/330/110-77У1. Вариант с выводом ошиновки СН вправо (влево) под углом 70…90 градусов на ячейковых порталах. Виды Автотрансформатор АТДЦТН-125000/330/110-77У1. Спецификация оборудования и материалов к листам ЭП-35, 36 Автотрансформатор АТДЦТН-125000/330/110-77У1. Вариант с выводом ошиновки СН вправо (влево) под углом 70…90 градусов на одностоечных опорах. План Автотрансформатор АТДЦТН-125000/330/110-77У1. Вариант с выводом ошиновки СН вправо (влево) под углом 70…90 градусов на одностоечных опорах. Виды Автотрансформатор АТДЦТН-125000/330/110-77У1. Спецификация оборудования и материалов к листам ЭП-38, 39 Автотрансформатор АТДЦТН-200000/330/110-84У1. Вариант с выводом ошиновки СН вправо (влево) под углом 0…20 градусов. План Автотрансформатор АТДЦТН-200000/330/110-84У1. Вариант с выводом ошиновки СН вправо (влево) под углом 0…20 градусов. Виды Автотрансформатор АТДЦТН-200000/330/110-84У1. Спецификация оборудования и материалов к листам ЭП-41, 42 Автотрансформатор АТДЦТН-200000/330/110-84У1. Вариант с выводом ошиновки СН вправо (влево) под углом 70…90 градусов на ячейковых порталах. План Автотрансформатор АТДЦТН-200000/330/110-84У1. Вариант с выводом ошиновки СН вправо (влево) под углом 70…90 градусов на ячейковых порталах. Виды Автотрансформатор АТДЦТН-200000/330/110-84У1. Спецификация оборудования и материалов к листам ЭП-44, 45 Автотрансформатор АТДЦТН-200000/330/110-84У1. Вариант с выводом ошиновки СН вправо (влево) под углом 70…90 градусов на одностоечных опорах. План Автотрансформатор АТДЦТН-200000/330/110-84У1. Вариант с выводом ошиновки СН вправо (влево) под углом 70…90 градусов на одностоечных опорах. Виды Автотрансформатор АТДЦТН-200000/330/110-84У1. Спецификация оборудования и материалов к листам ЭП-47, 48 Автотрансформатор АТДЦТН-250000/330/150-80У1. Вариант с выводом ошиновки СН вправо (влево) под углом 0…20 градусов. План Автотрансформатор АТДЦТН-250000/330/150-80У1. Вариант с выводом ошиновки СН вправо (влево) под углом 0…20 градусов. Виды Автотрансформатор АТДЦТН-250000/330/150-80У1. Спецификация оборудования и материалов к листам ЭП-50, 51 Автотрансформатор АТДЦТН-250000/330/150-80У1. Вариант с выводом ошиновки СН вправо (влево) под углом 70…90 градусов на ячейковых порталах. План Автотрансформатор АТДЦТН-250000/330/150-80У1. Вариант с выводом ошиновки СН вправо (влево) под углом 70…90 градусов на ячейковых порталах. Виды Автотрансформатор АТДЦТН-250000/330/150-80У1. Спецификация оборудования и материалов к листам ЭП-53, 54 Автотрансформатор АТДЦТН-250000/330/150-80У1. Вариант с выводом ошиновки СН вправо (влево) под углом 70…90 градусов на одностоечных опорах. План Автотрансформатор АТДЦТН-250000/330/150-80У1. Вариант с выводом ошиновки СН вправо (влево) под углом 70…90 градусов на одностоечных опорах. Виды Автотрансформатор АТДЦТН-250000/330/150-80У1. Спецификация оборудования и материалов к листам ЭП-56, 57 Автотрансформатор АТДЦТН-250000/330/220-86У1. Вариант с выводом ошиновки СН вправо (влево) под углом 0…20 градусов. План Автотрансформатор АТДЦТН-250000/330/220-86У1. Вариант с выводом ошиновки СН вправо (влево) под углом 0…20 градусов. Виды Автотрансформатор АТДЦТН-250000/330/220-86У1. Спецификация оборудования и материалов к листам ЭП-59, 60 Автотрансформатор АТДЦТН-250000/330/220-86У1. Вариант с выводом ошиновки СН вправо (влево) под углом 70…90 градусов на шинных порталах. План Автотрансформатор АТДЦТН-250000/330/220-86У1. Вариант с выводом ошиновки СН вправо (влево) под углом 70…90 градусов на шинных порталах. Виды Автотрансформатор АТДЦТН-250000/330/220-86У1. Спецификация оборудования и материалов к листам ЭП-62, 63 Автотрансформатор АТДЦТН-250000/330/220-86У1. Вариант с выводом ошиновки СН вправо (влево) под углом 70…90 градусов на одностоечных опорах. План Автотрансформатор АТДЦТН-250000/330/220-86У1. Вариант с выводом ошиновки СН вправо (влево) под углом 70…90 градусов на одностоечных опорах. Виды Автотрансформатор АТДЦТН-250000/330/220-86У1. Спецификация оборудования и материалов к листам ЭП-65, 66 |
| Разработан: | Северо-западное отделение института Энергосетьпроект |
| Утверждён: | 17.03.1987 Минэнерго СССР (USSR Minenergo 19) |
| Расположен в: | |
| Чем заменён: |
|








































































