Информационная система
«Ёшкин Кот»

Скачать базу одним архивом
Скачать обновления
История создания базы
Карта сайта

Скачать Типовой проект 212-2-41/75 Альбом I. Архитектурно-строительные и технологические чертежи

Дата актуализации: 10.08.2017

Типовой проект 212-2-41/75

Альбом I. Архитектурно-строительные и технологические чертежи

Обозначение: Типовой проект 212-2-41/75
Обозначение англ: 212-2-41/75
Статус:действует
Название рус.:Альбом I. Архитектурно-строительные и технологические чертежи
Дата добавления в базу:01.09.2013
Дата актуализации:05.05.2017
Оглавление:Содержание альбома. Пояснительная записка. Спецификация типовых деталей и нормалей, применяемых в проекте
План 1 этажа. Узлы 8 - 10
План 2 этажа
Фасады в осях 1 - 11; по осям 1 и 11. Раскладка стеновых панелей по осям А, 1, 11. Узел 11
Фасады в осях 11 - 1. Раскладка стеновых панелей в осях 11 - 1; 7 - 5 по осям 5 и 7. Разрез 1-1. Узел 12
Фасады в осях 1 - 11; 11 - 1; А - Г. Разрез 1-1. Вариант с тройным остеклением
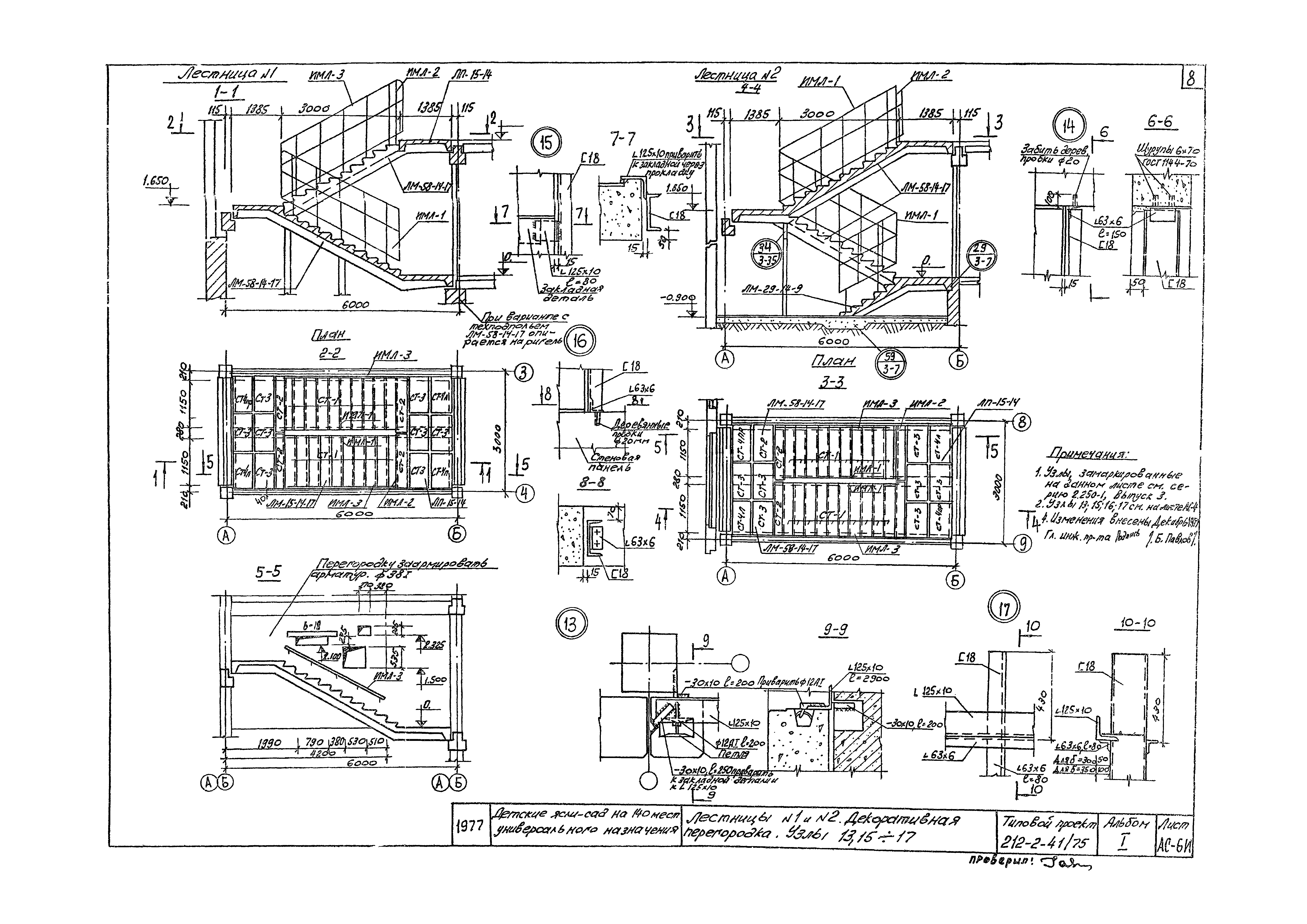
Лестницы №1 и №2. Декоративная перегородка. Узлы 13, 15 - 17
Монтажные планы перекрытий над 1 этажом. Покрытия и подшивного потолка. Сечения. Узлы 18 - 21
Монтажные схемы остекленных перегородок ИОП-1, ИОП-2. Сечения. Узлы 22 - 24
Эвакуационные лестницы. Монтажный план. Сечения. Узлы 25 - 36
План кровли. Сечения. Узел 37
Теневой навес. План. Монтажная схема каркаса и покрытия. Разрез I-I
Теневой навес. Фасад. Узлы 38 - 42
Примерное решение интерьеров
Узлы 43 - 45
Узлы 46 - 48
Монтажный план перегородок 1 этажа (вариант перегородок на деревянном каркасе)
Монтажный план перегородок 2 этажа (вариант перегородок на деревянном каркасе)
Планы 1 и 2 этажей
Расстановка технологического оборудования и монтажный план пищеблока и постирочной
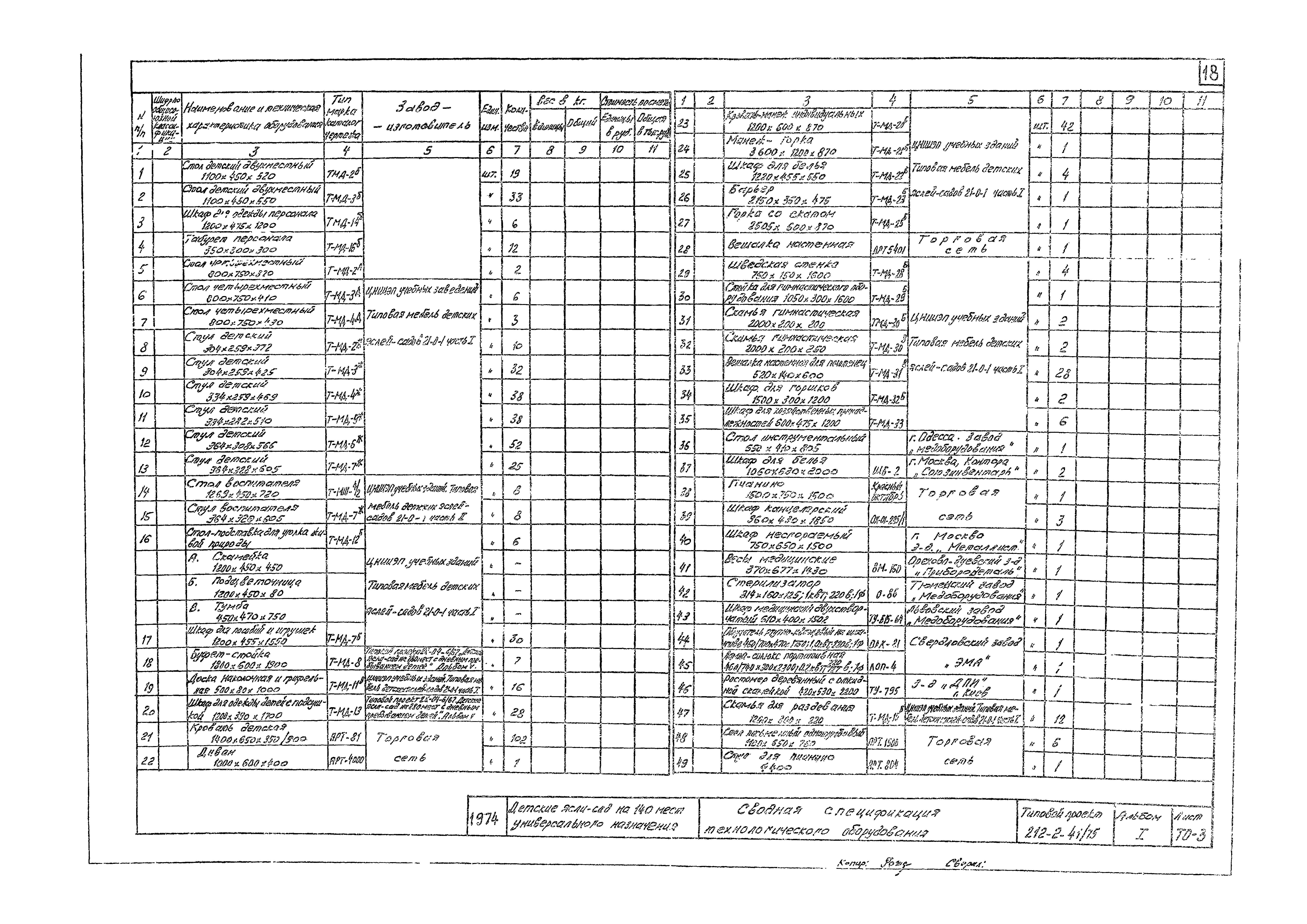
Сводная спецификация технологического оборудования
Разработан: ЦНИИЭП учебных зданий
Утверждён:20.07.1971 Госгражданстрой (Gosgrazhdanstroy 125)
Расположен в:Техническая документация Строительство Справочные документы Типовые строительные конструкции, изделия и узлы Общероссийский строительный каталог Общественные здания в городах и поселках городского типа Детские дошкольные учреждения Детские ясли-сады
Типовой проект 212-2-41/75Типовой проект 212-2-41/75Типовой проект 212-2-41/75Типовой проект 212-2-41/75Типовой проект 212-2-41/75Типовой проект 212-2-41/75Типовой проект 212-2-41/75Типовой проект 212-2-41/75Типовой проект 212-2-41/75Типовой проект 212-2-41/75Типовой проект 212-2-41/75Типовой проект 212-2-41/75Типовой проект 212-2-41/75Типовой проект 212-2-41/75Типовой проект 212-2-41/75Типовой проект 212-2-41/75Типовой проект 212-2-41/75Типовой проект 212-2-41/75Типовой проект 212-2-41/75Типовой проект 212-2-41/75Типовой проект 212-2-41/75Типовой проект 212-2-41/75Типовой проект 212-2-41/75

© 2013 Ёшкин Кот :-) Карта сайта